Студопедия

Главная страница Случайная страница

КАТЕГОРИИ:

АвтомобилиАстрономияБиологияГеографияДом и садДругие языкиДругоеИнформатикаИсторияКультураЛитератураЛогикаМатематикаМедицинаМеталлургияМеханикаОбразованиеОхрана трудаПедагогикаПолитикаПравоПсихологияРелигияРиторикаСоциологияСпортСтроительствоТехнологияТуризмФизикаФилософияФинансыХимияЧерчениеЭкологияЭкономикаЭлектроника






Приложения






В приложении помещают материал вспомогательного характера, который нецелесообразно включать в основную часть текстового документа. Например, расчеты вспомогательного характера, таблицы и распечатки, выполненные на листах формата А4 или А3.

 

 

3 Виды конструкторских документов

 

Виды и комплектность конструкторских документов на изделия установлены ГОСТ 2.102 – 2013.

К конструкторским документам относятся графические и текстовые материалы, которые в отдельности или в совокупности определяют состав и устройство изделия и содержат все необходимые данные для его разработки или изготовления, контроля, приемки, эксплуатации и ремонта.

В зависимости от содержания стандартами установлено 25 видов конструкторских документов, в том числе: чертеж детали, чертеж общего вида, сборочный чертеж, спецификация и другие.

Виды конструкторских документов, применяемые в учебном процессе, приведены в таблице 3.1.

 

Таблица 3.1 - Виды конструкторских документов по ГОСТ 2.102-2013 ЕСКД. Виды и комплектность конструкторских документов

 

  Наименование Документа   Код документа   Определение
Чертеж детали   Документ, содержащий изображение детали и другие данные, необходимые для ее изготовления и контроля
Сборочный чертеж СБ Документ, содержащий изображение сборочной единицы и другие данные, необходимые для ее сборки и контроля. К сборочным чертежам также относятся чертежи, по которым выполняют гидромонтаж и пневмомонтаж
Чертеж общего вида ВО Документ, определяющий конструкцию изделия, взаимодействие его составных частей и поясняющий принцип работы изделия
Теоретический чертеж ТЧ Документ, определяющий геометрическую форму изделия и координаты расположения составных частей
Габаритный чертеж ГЧ Документ, содержащий контурное изображение изделия с габаритными, установочными и присоединительными размерами
Электромонтажный чертеж МЭ Документ, содержащий данные, необходимые для выполнения электрического монтажа изделий
Монтажный чертеж МЧ Документ, содержащий контурные изображения изделия, а так же данные, необходимые для его установки на месте применения. К монтажным чертежам также относят чертежи фундаментов, специально разрабатываемых для установки изделия
Схема по ГОСТ 2.701-2008   Документ, на котором показаны в виде условных изображений или обозначений составные части изделия и связи между ними
Спецификация   Документ, определяющий состав сборочной единицы, комплекса или комплекта
Ведомость покупных изделий ВП Документ, содержащий перечень покупных изделий, примененных в разрабатываемом изделии
Пояснительная записка ПЗ Документ, содержащий описание устройства и принципа действия разрабатываемого изделия, а также обоснование принятых при его разработке технических и технико-экономических решений
Технические условия ТУ Документ, содержащий требования к изделию, его изготовлению, контролю, приемки и поставки, которые нецелесообразно указывать в других конструкторских документах
Таблица ТБ Документ, содержащий в зависимости от его назначения соответствующие данные, сведенные в таблицу
Расчет РР Документ, содержащий расчеты параметров и величин, например, расчет размерных цепей, расчет на прочность и др.

 

 

4 Общие правила выполнения чертежей

4.1 Форматы

Чертежи выполняются на листах бумаги определенного размера (формата). Форматы листов чертежей и других документов, предусмотренных стандартами на конструкторскую документацию, устанавливает ГОСТ 2.301-68.

20
5
 
Формат листа определяется размером внешней рамки, выполняемой тонкой линией. Внутренняя рамка проводится сплошной основной линией на расстоянии 20мм от левой стороны внешней рамки и на расстоянии 5мм от остальных сторон. Правильное оформление листа формата показано на рисунке 4.1.

 

Рисунок 4.1 - Правильное оформление листа формата

 

Форматы подразделяются на основные и дополнительные. Обозначения и размеры основных форматов должны соответствовать указанным в таблице 4.1.

 

Таблица 4.1 - Обозначение и размеры основных форматов по ГОСТ 2.301-68 ЕСКД. Форматы

 

Обозначение формата А0 А1 А2 А3 А4
Размеры сторон формата, мм 841*1189 594*841 420*594 297*420 210*297

Формат размером 841*1189мм считается наибольшим из основных форматов и имеет площадь 1м . Остальные форматы получаются путем последовательного деления предыдущего большого формата на две равные части, параллельно его меньшей стороне (рисунок 4.2).

 

 

Рисунок 4.2 - Деление формата А1 на меньшие

 

Допускается применение дополнительных форматов, образуемых увеличением коротких сторон основных форматов в целое число раз, например, формат А0*2 имеет размеры 1189*1682, формат А4*3 имеет размеры 297*630 и т. д.

Все надписи на чертежах выполняются и читаются по отношению к рамке основной надписи, которая может быть расположена вдоль большей или меньшей стороны листа в правом нижнем углу за исключением формата А4.

 

4.2 Основная надпись конструкторских документов

Каждый конструкторский документ должен иметь основную надпись, которая располагается в правом нижнем углу листа и содержит общие сведения. Примеры оформления основных надписей приведены в приложении И.

Формы, размеры, содержание и порядок заполнения основных надписей в конструкторских документах устанавливает ГОСТ 2.104 – 2006 ЕСКД. Основные надписи. На формате А4 основная надпись располагается только вдоль короткой стороны.

Основная надпись выполняется основными и тонкими линиями. В графах основной надписи (номера граф указаны в скобках) указывают:

в графе 1 – наименование изделия (шрифт №7, строчный);

в графе 2 – обозначение документа (шрифт №5, прописной);

в графе 3 – обозначение материала детали (заполняется только на чертежах деталей) (шрифт №5, строчный);

в графе 4 – литера, присваиваемая данному документу. На учебных чертежах допускается не проставлять;

в графе 5 – масса изделия;

в графе 6 - масштаб чертежа (шрифт №5);

в графе 7 – порядковый номер листа (на документах, состоящих из одного листа, графу не заполняют);

в графе 8 – общее количество листов документа (графу заполняют только на первом листе);

в графе 9 – различительный индекс учебной группы (например, МСХК гр. М41) (шрифт №5, строчный);

в графе 10 – характер работы, выполняемой лицом, подписывающим документ (шрифт №3, 5; строчный);

в графе 11 – фамилии лиц, подписывающих документ (шрифт №3, 5; строчный);

в графе 12 – подписи лиц, подписывающих документ;

в графе 13 – дату подписания документа.

Для чертежей и схем предусмотрена основная надпись по форме 1 (рисунок 4.3).

Рисунок 4.3 - Основная надпись для чертежей и схем (форма 1)

 

Для первого листа текстовых конструкторских документов (например, спецификация, пояснительная записка, технические условия и т.д.) предусмотрена основная надпись по форме 2 (рисунок 4.4)

 
Рисунок 4.4 - Основная надпись для первого листа текстовых конструкторских документов (форма 2)

 

Для последующих листов текстовых конструкторских документов предусмотрена основная надпись по форме 2а (рисунок 4.5)

Рисунок 4.5 - Основная надпись для последующих листов текстовых конструкторских документов (форма 2а)

4.2.1 Обозначение документа в основной надписи

В графе 2 основной надписи необходимо указывать обозначение документа по ГОСТ 2.201 – 80 ЕСКД. Обозначение изделий и конструкторских документов.

При разработке конструкторской документации студентам учебных заведений допускается графу 2 основной надписи заполнять по следующей схеме:

 

ОБОЗНАЧЕНИЕ ДОКУМЕНТА В ОСНОВНОЙ НАДПИСИ

XX. XXXX. XX. XX. XX. XX

Индекс типа проекта: дипломного ДП;

курсового КП;

курсовой работы КР;

дипломной работы ДР;

Индекс специальности: 110809;

Номер темы согласно приказу

Номер сборочной единицы

Номер детали в сборочной единице

Шифр (код) работы: пояснительная записка ПЗ;

сборочный чертеж СБ;

чертеж общего вида ВО;

габаритный чертеж ГЧ;

технологическая карта ТК;

таблицы ТБ;

схемы электрические: структурные Э1;

функциональные Э2;

принципиальные Э3;

соединений (монтажные) Э4;

подключения Э5;

общие Э6;

наименование и марки строительных чертежей:

генеральный план ГП;

отопление, вентиляция и кондиционирование воздуха ОВ;

внутренние системы водоснабжения и канализации ВК

наружные сети водоснабжения НВ;

наружные сети канализации НК;

наружные сети водоснабжения и канализации НВК;

технология производства ТХ.

При обозначении схем основополагающим стандартом является ГОСТ 2.701-2008 ЕСКД. Схемы виды и типы. Общие требования к выполнению.

Наименование и маркировку строительных чертежей устанавливает ГОСТ Р21.1101-2013. Марка состоит из заглавных начальных букв названия данной части проекта. Например: генеральный план – ГП; тепломеханические решения тепловых сетей – ТС и т.д.

Строительно-монтажные технологические чертежи входят в комплект чертежей марки ТХ (технология производства). В состав строительно-монтажных чертежей проекта производственных зданий входят чертежи расстановки технологического оборудования.

 

4.3 Масштабы

Масштабом называется отношение размеров изображения к действительным размерам изделия.

В зависимости от сложности чертежа и величины изображаемых изделий масштаб выбирают из рядов, установленных стандартом (таблица 4.2).

 

Таблица 4.2 - Масштабы по ГОСТ 2.302-68 ЕСКД. Масштабы

Масштабы уменьшения 1: 2; 1: 2, 5; 1: 4; 1: 5; 1: 10; 1: 15; 1: 20; 1: 25; 1: 40; 1: 50; 1: 75 и т. д.
Натуральная величина 1: 1
Масштабы увеличения 2: 1; 2, 5: 1; 4: 1; 5: 1; 10: 1; 20: 1; 40: 1; 50: 1; 100: 1 и т.д.

 

При выборе масштаба следует руководствоваться, прежде всего, удобством пользования чертежом.

Масштаб указывают в графе основной надписи. Масштаб изображения, отличающийся от указанного в основной надписи, помещают непосредственно над изображением вместе с надписью.

Например:

для выносных элементов, дополнительных и местных видов – А (2: 1);

для разрезов и сечений – А-А (2: 1)

 

5 Основные требования к текстовым документам

Общие положения

Общие требования к оформлению текстовых документов, а также требования к использованию в них формул, рисунков и таблиц определены межгосударственным стандартом ГОСТ 2.105-95 ЕСКД. Общие требования к текстовым документам. Пояснительные записки дипломных и курсовых проектов представляют на белой бумаге формата А4, с рамкой и основной надписью для первого и последующих листов текстовых документов.

Все материалы в пояснительной записке помещаются только на одной стороне листа (исключение – бланк задания).

Текст пояснительной записки должен быть написан с использованием компьютера. Требуется установить следующие настройки:

1. Параметры шрифта:

· шрифт – Times New Roman;

· размер – 18; · начертание – Обычный для наименования разделов
· размер – 16; · начертание – Обычный для наименования подразделов
· размер – 14; · начертание – Обычный для остальных слов

2. Параметры абзаца:

· выравнивание – По центру (для наименования министерства, учебного заведения, наименования работы, года, для заголовков «Содержание», «Список использованной литературы», «Приложения»);

· выравнивание - По ширине (для остальных строк);

· отступ первая строка (красная строка) – 10 мм;

· отступы слева и справа – 0 (т.е. отсутствуют);

· межстрочный интервал – Полуторный;

· интервалы перед и после абзацев – 0 (т.е. отсутствуют);

· расстояние между заголовками раздела и подраздела - 2 межстрочных интервала;

· расстояние между заголовком подраздела и текстом – Полуторный.

Нумерация страниц пояснительной записки начинается с титульного листа и является сквозной, включая приложения. На титульном листе номер не проставляется. Страницы нумеруются в основной надписи.

 

5.2 Построение документа

Текст документа при необходимости может быть разделен на разделы и подразделы. Каждый раздел документа рекомендуется начинать с нового листа (страницы).

Разделы должны иметь порядковые номера в пределах всего документа, обозначенные арабскими цифрами без точки и записанные с абзацевого отступа. Номера подразделов в пределах каждого раздела образуются из номеров раздела и подраздела, разделенных точкой. В конце номера подраздела точка не ставится. Например:

 

1 Термины и определения

 


1.1

1.2 Нумерация пунктов первого раздела документа

1.3

 

Если документ имеет подразделы, то нумерация пунктов должна быть в пределах подраздела, и номер пункта состоит из номеров раздела, подраздела и пункта, разделенных точками, например:

 

3 Определение твердости металлов и сплавов

 

3.1 Твердость по Бринеллю

 

3.2 Твердость по Роквеллу

 

Если раздел или подраздел состоит из одного пункта, он также нумеруется. Если текст документа подразделяется только на пункты, они нумеруются порядковыми номерами в пределах документа.

 

5.3 Оформление перечислений

Внутри пунктов или подпунктов могут быть приведены перечисления. Перед каждой позицией перечисления следует ставить дефис или при необходимости ссылки в тексте документа на одно из перечислений, строчную букву, после которой ставится скобка. Для дальнейшей детализации перечислений необходимо использовать арабские цифры, после которых ставится скобка, а запись производится с абзацного отступа, как показано в примере.

 

Пример.

а) _________________

б) _________________

1) ______________

2) ______________

в) _________________

 

Каждый пункт, подпункт и перечисление записывают с абзацного отступа.

Разделы, подразделы должны иметь заголовки. Пункты, как правило, заголовков не имеют.

Заголовки должны четко и кратко отражать содержание разделов, подразделов.

Заголовки следует печатать с прописной буквы без точки в конце, не подчеркивая.

 

5.4 Изложение текста документа

5.4.1 Текст пояснительной записки должен быть кратким, четким, не допускающим различных толкований. При изложении обязательных требований в тексте надо применять слова «должен», «следует», «необходимо» и производные от них.

5.4.2 Терминология в тексте должна соответствовать общепринятой в научно-технической литературе.

5.4.3 В тексте документа не допускается:

- применять индексы стандартов (ГОСТ, СТ СЭВ, ОСТ, СПДС и др.) без регистрационного номера;

- сокращать слова в тексте (исключение составляют общепринятые в русском языке и установленные соответствующими государственными стандартами сокращения).

5.4.4 Условные буквенные обозначения величин, а также условные графические обозначения должны соответствовать обозначениям, установленным государственными стандартами. В тексте перед обозначением дают его пояснение, например: «Временное сопротивление разрыву Ơ В».

5.4.5 Не допускается применять в тексте без числовых значений математические знаки: ≤, ≥, ≠, а также знаки: №, %.

Математический знак минус (-) перед отрицательными значениями величин не ставят, а пишут слово «минус».

5.4.6 В тексте документа числа с размерностью следует писать цифрами, а без размерности – словами, например: «Зазор – не более 2 мм», «Окрасить деталь в два слоя».

Единица физической величины одного и того же параметра в пределах документа должна быть постоянной. Если приводится ряд числовых значений, выраженных в одной и той же единице физической величины, то ее указывают после последнего числового значения, например: 1; 1, 5; 2 м.

 

5.5 Оформление ссылок

В конце пояснительной записки приводится список литературы, которая была использована при составлении документа. Список литературы и ссылки на него в тексте выполняются в соответствии с ГОСТ 7.1 – 2003 Библиографическое описание источников информации.

Порядок размещения названия книг и других документов должен быть алфавитным. Названия пишут с красной строки, вторую и последующие строки пишут от края левого поля.

Перечень литературы и других документов пишут через 1, 5 интервала.

Общие правила оформления списка:

1. Автор (фамилия, инициалы), точка. Если произведение написано двумя или тремя авторами, они перечисляются через запятую. Если произведение написано четырьмя авторами и более, то указывают лишь первого, а вместо фамилий остальных авторов ставят «и др.».

2. Наименование литературы (без сокращения и без кавычек), двоеточие. Подзаглавие (также без кавычек), точка, тире.

3. Место издания с прописной буквы. Москва, Ленинград и Санкт-Петербург сокращенно (М., Л., СПб.), точка, двоеточие; а другие города полностью, двоеточие.

4. Название издательства (без кавычек с прописной буквы), запятая.

5. Год издания (слово год не ставят), точка (тире, если есть указание страниц).

6. Страницы (сокращенно), точка. Например: - 128с.

Пример оформления страницы со списком использованной литературы смотри в приложении Ж.

Ссылаться следует на документ в целом или же на разделы и приложения. Ссылка на подразделы, пункты, таблицы и иллюстрации не допускается.

Ссылки на документы в курсовых, дипломных проектах рекомендуется оформлять непосредственно в строке после текста, к которому она относится. В тексте работы дается в квадратных скобках указание на номер источника и конкретную страницу (или, при необходимости, несколько страниц), например: [67, с. 82–84], при этом в списке под номером 67 может быть указана монография объемом в 387 страниц. Внутритекстовые ссылки к одному и тому же источнику могут даваться многократно.

 

5.6 Оформление формул

В формулах символы должны соответствовать обозначениям, установленным государственными стандартами. Значения символов и числовых коэффициентов, входящих в формулу, должны быть приведены непосредственно под формулой в той последовательности, в какой они приведены в формуле. Первая строка расшифровки должна начинаться со слова «где» без двоеточия после него.

Все формулы, если их в тексте документа более одной, нумеруют арабскими цифрами в пределах раздела.

Номер формулы состоит из номера раздела и порядкового номера формулы, разделенных точкой. Допускается нумерация формул в пределах всего документа.

Номер указывают с правой стороны листа на уровне формулы в круглых скобках, например:

 

 

, (3.1)

 

 

где P – мощность, Вт;

W – работа, Дж;

t – время совершения работы, с.

Формулы располагают симметрично относительно середины строки. Расстояние между строкой формулы и строками текста при выполнении текста рукописным способом, должно быть равно 10 мм. При выполнении текста с использованием компьютера – 1, 5 интервалам. Расстояние между строками формул такое же, как и в тексте. При ссылке в тексте на формулу указывают ее номер в скобках, например: «… в формуле (3.1)». Пример оформления страницы с расчетами по формулам смотри в приложении К.

 

5.7 Оформление иллюстраций

Число иллюстрации должно быть достаточным для пояснения излагаемого текста. Иллюстрации должны быть выполнены в соответствии с требованиями стандартов ЕСКД и СПДС.

Иллюстрации, именуемые рисунками, должны иметь порядковые номера, если рисунков в тексте документа больше одного. Нумерация ведется арабскими цифрами в пределах раздела. Номер иллюстрации состоит из номера раздела и порядкового номера иллюстрации разделенных точкой, например: «Рисунок 1.1», «Рисунок 1.2».

Допускается сквозная нумерация иллюстраций в пределах всего документа. При ссылках на иллюстрации следует писать "... в соответствии с рисунком 1" при сквозной нумерации и "... в соответствии с рисунком 1.2" при нумерации в пределах раздела.

Иллюстрации, если этого требует изложение текста, могут иметь наименования, а при необходимости и поясняющие данные (подрисуночный текст). Слово " Рисунок" и наименование помещают после пояснительных данных и располагают симметрично под рисунком.

Пример.

 

Рисунок 4.3 - Кинематическая схема коробки скоростей

 

5.8 Оформление примечаний

Текст и таблицы документа при необходимости сопровождают примечаниями, в которых указывают только справочные и поясняющие данные и не должны содержать требований.

Примечания следует помещать непосредственно после текстового, графического материала или в таблице, к которым относятся эти примечания, и печатать с прописной буквы с абзаца. Если примечание одно, то после слова " Примечание" ставится тире и примечание печатается тоже с прописной буквы. Одно примечание не нумеруют. Несколько примечаний нумеруют по порядку арабскими цифрами. Примечание к таблице помещают в конце таблицы под линией, обозначающей окончание таблицы.

 

Пример.

Примечание - _________________________________

 

Пример.

Примечания

1 ______________________________

2 ______________________________

3______________________________

 

5.9 Построение таблиц

Таблицы применяют для лучшей наглядности и удобства сравнения показателей. Цифровые материалы, помещаемые в документе, оформляют в виде таблиц. Название таблицы, при его наличии, должно отражать ее содержание, быть точным, кратким. Название следует помещать над таблицей слева без абзацного отступа в одну строку с ее номером через тире.

При переносе части таблицы название помещают только над первой частью таблицы.

Цифровой материал, как правило, оформляют в виде таблиц в соответствии с рисунком 5.1.

 

 

Рисунок 5.1

 

Таблицы, за исключением таблиц приложений, следует нумеровать арабскими цифрами сквозной нумерацией.

Таблицы каждого приложения обозначают отдельной нумерацией арабскими цифрами с добавлением перед цифрой обозначения приложения. Если в документе одна таблица, она должна быть обозначена " Таблица 1" или " Таблица В.1", если она приведена в приложении В.

На все таблицы документа должны быть приведены ссылки в тексте документа, при ссылке следует писать слово " таблица" с указанием ее номера.

Таблицы слева, справа и снизу, как правило, ограничивают линиями.

Головка таблицы должна быть отделена линией от остальной части таблицы.

Высота строк таблицы должна быть не менее 8 мм.

В головке таблицы записывают заголовки и подзаголовки граф, в боковике – заголовки строк.

Заголовки граф и строк таблицы следует писать с прописной буквы, а подзаголовки граф - со строчной буквы, если они составляют одно предложение с заголовком, или с прописной буквы, если они имеют самостоятельное значение. В конце заголовков и подзаголовков таблиц точки не ставят. Заголовки и подзаголовки граф указывают в единственном числе.

Заголовки граф, как правило, записывают параллельно строкам таблицы. При необходимости допускается перпендикулярное расположение заголовков граф.

Допускается заголовки и подзаголовки граф таблицы выполнять через один интервал.

Горизонтальные и вертикальные линии, разграничивающие строки таблицы, допускается не проводить, если их отсутствие не затрудняет пользование таблицей.

Таблицу, в зависимости от ее размера, помещают под текстом, в котором впервые дана ссылка на нее, или на следующей странице, а при необходимости, в приложении к документу.

Допускается помещать таблицу вдоль длинной стороны листа документа.

Если строки или графы таблицы выходят за формат страницы, ее делят на части, помещая одну часть под другой или рядом, при этом в каждой части таблицы повторяют ее головку и боковик. При делении таблицы на части допускается ее головку или боковик заменять соответственно номером граф и строк. При этом нумеруют арабскими цифрами графы и (или) строки первой части таблицы.

Слово " Таблица" указывают один раз слева над первой частью таблицы, над другими частями пишут слова " Продолжение таблицы" с указанием номера (обозначения) таблицы (смотри таблицу 5.1 и таблицу 5.2).

 

 

Таблица 5.1 - Размеры втулок Продолжение таблицы 5.1

 

В миллиметрах

d Ds L l
      0, 6
1, 5 4, 5   0, 9
      0, 9
2, 5      
       

 

d Ds L l
4 10 8 2
5 12 9 3
6 14 10 3, 5
7 16 11 4
8 16 11 4

 

Таблица 5.2 - (название)

В миллиметрах

Номинальный Внутренний Толщина шайбы
диаметр резьбы болта, диаметр легкой нормальной тяжелой
винта, шпильки шайбы a b a b a b
2, 0 2, 1 0, 5 0, 8 0, 5 0, 5 - -
2, 5 2, 6 0, 6 0, 8 0, 6 0, 6 - -
3, 0 3, 1 0, 8 1, 0 0, 8 0, 8 1, 0 1, 2

 

 

Продолжение таблицы 5.2

В миллиметрах

Номинальный Внутренний Толщина шайбы
диаметр резьбы болта, диаметр легкой нормальной тяжелой
винта, шпильки шайбы a b a b a b
4, 0 4, 1 1, 0 1, 2 1, 0 1, 2 1, 2 1, 6
... ... ... ... ... ... ... ...
... ... ... ... ... ... ... ...
42, 0 42, 5 - - 9, 0 9, 0 - -

Примечание - Здесь (и далее по тексту) таблицы приведены условно для иллюстрации соответствующих требований настоящего стандарта.

Если в конце страницы таблица прерывается и ее продолжение будет на следующей странице, в первой части таблицы нижнюю горизонтальную линию, ограничивающую таблицу, не проводят.

Если все показатели, приведенные в графах таблицы, выражены в одной и той же единице физической величины, то ее обозначение необходимо помещать над таблицей справа, а при делении таблицы на части - над каждой ее частью (смотри таблицу 5.2).

Если в графе таблицы помещены значения одной и той же физической величины, то обозначение единицы физической величины указывают в заголовке (подзаголовке) этой графы (смотри таблицу 5.3). Числовые значения величин, одинаковые для нескольких строк, допускается указывать один раз (смотри таблицу 5.3).

 

Таблица 5.3 - …

 

Тип изолятора Номинальное напряжение, В Номинальный ток, А
ПНР-6/400    
ПНР-6/800    
ПНР-6/900    

 

Если числовые значения величин в графах таблицы выражены в разных единицах физической величины, их обозначения указывают в подзаголовке каждой графы.

Обозначения, приведенные в заголовках граф таблицы, должны быть пояснены в тексте или графическом материале документа.

Текст, повторяющийся в строках одной и той же графы и состоящий из одиночных слов, чередующихся с цифрами, заменяют кавычками. Если повторяющийся текст состоит из двух и более слов, при первом повторении его заменяют словами " То же", а далее – кавычками (смотри таблицу 5.4).

 

Таблица 5.4 - …

  Наименование отливки     Положение оси вращения
Гильза цилиндрическая То же » Горизонтальное » Вертикальное  

 

Заменять кавычками повторяющиеся в таблице цифры, математические знаки, знаки процента и номера, обозначение марок материалов и типоразмеров изделий, обозначения нормативных документов не допускается.

Графы таблиц не должны быть пустыми. Если сведений по данной графе не существует, в графе ставится прочерк.

Цифры в графах таблиц располагают так, чтобы классы чисел во всей графе должны иметь одинаковое количество десятичных знаков.

Дробные числа приводят в виде десятичных дробей, за исключением размеров в дюймах, которые записывают по типу ½ " , ¼ " .

При указании в таблицах последовательных интервалов значений величин, охватывающих все значения ряда, перед числами пишут «От»… и «Св». перед первым числом и «до» - перед вторым. В интервалах, охватывающих любые значения величин, между ними следует ставить тире. Числа в интервале значений указывают от меньших к большим.

Единицы измерения угловых величин (градусы, минуты, секунды) проставляют в каждой строке (при отсутствии горизонтальных линий – только в первой строке) таблицы.

Пример оформления страницы с таблицами смотри в приложении К.

 

5.10 Оформление приложений

Иллюстрационный материал, таблицы, фотографии, текст вспомогательного характера, могут быть оформлены в виде приложений. Приложения могут быть обязательными и информационными. Информационные приложения могут быть рекомендуемого или справочного характера.

Приложения оформляются как продолжение документа на последующих его листах. Каждое приложение должно начинаться с нового листа, иметь тематический заголовок (при необходимости), который записывают симметрично относительно текста с прописной буквы отдельной строкой.

В тексте документа на все приложения должны быть даны ссылки. Приложения располагают в порядке ссылок на них в тексте документа.

Приложения обозначают заглавными буквами русского алфавита, начиная с А, за исключением букв Ё, З, Й, О, Ч, Ь, Ы, Ъ. После слова " Приложение" следует буква, обозначающая его последовательность.

Если в документе одно приложение, оно обозначается " Приложение А".

Приложения, как правило, выполняют на листах формата А4. Допускается приложения оформлять на листах форматов А3, А2 и А1 по ГОСТ 2.301 – 68* (СТ СЭВ 1181 – 78).

 

6 Общие правила оформления строительных чертежей

 

6.1 Общие положения

Строительными чертежами называются чертежи, на которых изображены различные строительные объекты – здания, мосты, дороги и т.п.

Выполнение строительных чертежей осуществляется в соответствии со следующими стандартами:

ЕСКД (Единая система конструкторской документации),

СПДС (Система проектной документации для строительства),

СНиП (Строительные нормы и правила).

Строительные чертежи выполняются на форматах, размеры которых устанавливает ГОСТ 2.301- 68 ЕСКД.

Масштабы этих чертежей зависят от размеров и сложности изображаемого объекта, его назначения. Масштабы определяет ГОСТ 2.302-68 с учетом требований ГОСТ 21. 501-2011 и ГОСТ 21.602-2003. Рекомендуемые на строительных чертежах масштабы приведены в таблице 6.1.

 

Таблица 6.1 – Рекомендуемые масштабы строительных чертежей

Наименование Масштабы изображений
Планы этажей (кроме технических), разрезы, фасады 1: 50; 1: 100; 1: 200; 1: 400; 1: 500  
Планы технических этажей 1: 200; 1: 500
Фрагменты планов, фасадов 1: 50; 1: 100
Планы и разрезы чертежей систем 1: 50; 1: 100; 1: 200
Схемы систем в аксонометрической проекции 1: 50; 1: 100; 1: 200
Генеральные планы 1: 500; 1: 200; 1: 10000

На строительных чертежах основная надпись, форма которой приведена на рисунке 6.1, выполняется в соответствии с ГОСТ Р21.1101-2013. Образец заполнения основной надписи приведен в Приложении И.

Рисунок 6.1 – Основная надпись для строительных чертежей

6.2 Нанесение координационных осей

Выполнение плана здания необходимо начинать с нанесения координационных осей, сначала продольных, затем поперечных. Эти оси являются условными геометрическими линиями. Они служат для привязки здания к строительной координатной сетке и реперам генерального плана, а также для определения положений несущих конструкций, так как эти оси проводят только по капитальным стенам и колоннам. В отдельных случаях они могут не совпадать с осями симметрии стен.

Координационные оси зданий и сооружений наносят штрихпунктирными линиями с длинными штрихами (допускается после обводки чертежа оси оставлять только в пересечении стен), выводят за контур стен и маркируют в кружках диаметром 6-12мм.

Маркировка координационных осей производится арабскими цифрами и прописными буквами, за исключением символов: 3, Й, О, X, Ы, Ъ, Ь. Цифрами обозначают оси по стороне здания с наибольшим количеством координационных осей (чаще всего большее число осей проходит поперек здания).

Направление маркировки осей наносят слева на право - по горизонтали и снизу вверх - по вертикали.

Для маркировки осей размер шрифта берут на номер или два больше, чем высота цифр размерных чисел.

Пример.

В зданиях с несущими продольными или поперечными стенами привязку к координационным осям наружных и внутренних стен производят следующим образом (рисунок 6.2):

а) координационную ось наружной стены располагают на расстоянии, а = 100 мм, соблюдая отступ для установки плит перекрытия.

б) во внутренних стенах геометрическая ось симметрии должна совпадать с координационной осью.

 

Рисунок 6.2 – Координационные оси наружных и внутренних стен

6.3 Нанесение размеров на строительных чертежах

На строительных чертежах размеры наносят в соответствии с ГОСТ 2.307-68 с учетом требований системы проектной документации для строительства ГОСТ Р21.1101-2013.

Размеры в миллиметрах на строительных чертежах, как правило, наносят в виде замкнутой цепочки без указания единиц измерения. Если размеры проставляют в других единицах, это оговаривают в примечании к чертежам.

Размерные линии на строительных чертежах ограничивают засечками – короткими штрихами длиной 2-4 мм, проводимыми с наклоном вправо под углом 45 к размерной линии. Толщина линии засечки равна толщине сплошной основной линии, принятой на данном чертеже.

Размерные линии должны выступать за крайние выносные линии на 1-3 мм. Размерное число располагают над размерной линией примерно на расстоянии от 0, 5 до 1 мм.

Выносная линия может выступать за размерную на 1-5 мм.

Расстояние от контура чертежа до первой размерной линии рекомендуется принимать не менее 10 мм.

Расстояние между параллельными размерными линиями должно быть не менее 7 мм, а от размерной линии до кружка координационной оси – 4 мм. Пример нанесения размеров показан на рисунке 6.3.

Рисунок 6.3 – Нанесение размеров на планах

 

Для обозначения высот и глубин строений и зданий, с отсчётом от какого-либо начального уровня, используют знаки отметки уровня.

Знак отметки уровня на строительных чертежах наносится в виде стрелки с прямым углом, указывающей на местоположение уровня (рисунок 6.4 а).

На чертежах планов зданий отметки уровней наносят в прямоугольнике или на полке линии-выноски и указываются с математическим знаком плюс (рисунок 6.4 б).

а) б)

Рисунок 6.4 – Знаки отметки уровня

 

6.4 Оформление плана расстановки оборудования


В состав строительно-монтажных чертежей проекта производственных зданий входят чертежи расстановки технологического оборудования. Эти чертежи составляют на основе предварительных расчетов площадей и размеров помещений с учетом рационального размещения оборудования и транспортных средств.

На планах производственных зданий показывают расположение технологического оборудования, подкрановые пути, мостовые краны, места временного складирования и площадки, железнодорожные пути с указанием ширины колеи. Рядом с изображением подъемных механизмов указывают их грузоподъемность. Оборудование вычерчивают в масштабе чертежа.

Контуры плана вычерчивают тонкими линиями толщиной 0, 2-0, 3 мм, контуры оборудования – линиями толщиной 0, 6 мм, а сплошными линиями толщиной 0, 4-0, 6 мм изображают рельсовые пути нормальной и узкой колеи.

Подкрановые пути, мостовые краны, краны-балки, подпольные каналы вычерчивают штриховыми линиями. При необходимости указывают зону действия крана.

Если площадки и антресоли в промышленных зданиях располагаются на высоте более двух метров от уровня пола, их показывают пересекающимися штриховыми линиями с двумя точками.

Пристройки к промышленному зданию на основном плане можно не показывать, ограничиваясь нанесением линии обрыва. В наименованиях планов здания или сооружения указывают слово " План" и отметку чистого пола или номер этажа, или обозначение соответствующей секущей плоскости.

Примеры.

1. План на отм. 0, 000.

2. План 2 этажа.

При выполнении части плана в наименовании указывают оси, ограничивающие эту часть плана.

Пример.

План на отм. 0, 000 между осями 21 - 30 и А - Д.

К чертежам расположения технологического оборудования и/или трубопроводов, установок (блоков) технологического, санитарно-технического и другого оборудования составляют спецификацию по форме 7 приложения К ГОСТ Р21.1101-2013, которая приведена на рисунке 6.5.

 

Рисунок 6.5 – Спецификация на оборудование

Спецификацию помещают, как правило, на листе, где изображены схемы, планы чертежей расположения оборудования и трубопроводов, планы чертежей установок.

Допускается выполнять спецификацию на отдельных листах.

На планах промышленных зданий пишут наименование помещений или технологических участков с указанием категории производств по взрывной, взрывопожарной и пожарной опасности. Допускается наименование помещений и категорий производств помещать в экспликации, форма которой приведена на рисунке 6.6 с нумерацией помещений на плане в кружках диаметром 6-8 мм.

Рисунок 6.6 – Экспликация помещений

Пример оформления плана расстановки оборудования поста технического обслуживания приведен в приложении Л.

7 Основные правила оформления диаграмм

Основные правила выполнения диаграмм, изображающих функциональную зависимость двух или более переменных величин в системе координат, установлены в рекомендациях Р 50-77-88 Рекомендации ЕСКД.

Диаграмма может иметь наименование, поясняющие изображенную функциональную зависимость. Текстовую или графическую часть, поясняющую примененные в диаграмме обозначения и размещаемую после наименования диаграммы или на свободном месте поля диаграммы.

В диаграммах оси могут быть без стрелок или могут заканчиваться стрелками, но за пределами шкал. В прямоугольной системе координат положительные значения величин откладывают на осях, как правило, вправо и вверх от точки начала отчета, причем независимую переменную откладывают на горизонтальной оси.

Значения переменных величин откладывают на осях в линейном или не линейном масштабах изображения. Масштаб может быть разным для каждого направления координат и выражается шкалой значения откладываемой величины.

Если в диаграмме изображены несколько функций различных переменных или одна и та же переменная должна быть выражена одновременно в различных единицах, в качестве шкал используют как координатные оси, так и линии координатной сетки и (или) прямые, проведенные параллельно координатным осям. На рисунке 7.1 дан пример выполнения диаграммы с несколькими шкалами.

Координатные оси, являющиеся шкалами значений изображаемых величин, разделяют на графические интервалы тремя способами:

1) координатной сеткой;

2) делительными штрихами (рисунок 7.2 и 7.5);

3) сочетанием координатной сетки и делительных штрихов (рисунок 7.1).

Шкалы, расположенные параллельно координатной оси, разделяют на интервалы только штрихами (рисунок 7.2и 7.5).

Рядом с делением сетки или делительными штрихами, соответствующими началу и концу шкалы, проставляют числовые значения величин. Если началом отсчета является нуль, то его указывают один раз у точки пересечения шкал. Частота нанесения числовых значений и промежуточных делений шкал определяется удобством пользования диаграммой.

При необходимости допускается наносить числа у шкал внутри поля диаграммы. Многозначные числа стоит выражать как кратные 10n, где n – целое число. Коэффициент 10n указывают для данного диапазона. Оси координат, оси шкал, ограничивающие поле диаграммы, выполняют основной (сплошной толстой) линией. Линии координатной сетки и делительные штрихи проводят сплошной тонкой линией

Если в одной диаграмме изображают две или более функциональные зависимости, их допускается проводить линиями различных типов по ГОСТ 2.303-68. Если на диаграмме изображены пучки или серии линий, то допускается в них применять линии различных типов и различной толщины.

 

 

Рисунок 7.1 – Пример выполнения диаграммы с несколькими шкалами


 

Переменные величины указывают на диаграмме одним из четырех способов:

1) символом (рисунок 7.1);

2) наименованием (рисунок 7.4);

3) наименованием и символом

4) математическим выражением функциональной зависимости

В диаграмме со шкалами обозначения величин размещают у середины шкалы её внешней стороны или (при объединении символа с обозначением единицы величины в виде дроби) в конце шкалы после последнего числа.

В диаграмме без шкал обозначения величин размещают вблизи стрелки обозначения величин, которой заканчивается ось.

Если в диаграмме изображаются линиями две или более функциональные зависимости, около этих линий проставляют наименования или (и) символы соответствующих величин или порядковые номера, расшифровывая их в поясняющей части диаграммы (рисунок 7.1).

Единицы физических величин наносят тремя способами:

1) между последним и предпоследним числами в коне шкалы при недостатке места предпоследнее число не наносят (рисунок 7.1);

2) за наименованием переменой величины после запятой;

3) после последнего числа в конце шкалы вместе с обозначением переменой величины в виде дроби, в числителе которым проставляют обозначение переменой величины, а в знаменателе – обозначение единицы этой величины (рисунок 7.1).

 

7.1 Столбиковые диаграммы

Построение столбиковых диаграмм подчинено всем правилам, изложенным ранее, но важнейшим из них является масштабность, т.е. соразмерность столбиков по высоте и их пропорциональности цифровым значениям. Ширина столбиков и расстояние между ними должны быть одинаковыми. Промежутки между столбиками желательно брать в пределах от половины до полной ширины столбиков. Ширина столбиков зависит от их количества и от рабочего поля чертежа. Столбиковая диаграмма в зависимости от данных величин может быть структурной или простого сопоставления.

 

Рисунок 7.2 - Пример выполнения столбиковой диаграммы

 

На рисунках 7.2 – 7.3 приведен пример выполнения столбиковых диаграмм простого сопоставления. При выполнении столби­ковой диаграммы координатную сетку не изображают, но базовую линию, от которой дают отсчет величины, выполняют обязательно. Масштаб выбирают по наибольшей величине.

Рисунок 7.3 – Пример выполнения столбиковой диаграммы

 

7.2 Полосовые диаграммы

Все, что было сказано о столбиковых диаграммах, полностью относится и к полосовым. Различие только в том, что прямоугольники расположены горизонтально, а базовая линия располагается вертикально.

Рисунок 7.4 - Пример выполнения полосовой диаграммы

 

 

Рисунок 7.5 - Пример выполнения полосовой диаграммы

 

7.3 Секторные диаграммы

Эти диаграммы применяются для изображения удельного веса составных частей чего-либо целого. При выполнении секторной диаграммы геометрическим параметром является центральный угол круга. За единицу измерения принимают угол, равный 3, 6 – одной сотой части полного круга в 360.В процентном выражении 360 приравнивают к 100 %, а следовательно, угол 3, 6 – 1%.

Рисунок 7.6 - Пример выполнения секторной диаграммы

Секторную диаграмму считают основной формой в том случае, когда все суммарные цифровые данные выражены в процентах. Но есть обстоятельства, ограничивающее применение этих диаграмм. К ним относятся:

1) число частей секторной диаграммы не должно превышать 7-8, иначе круг будет перенасыщен, а величина секторов очень незначительная;

2) разница между сравниваемыми величинами должна быть ощутимой, иначе диаграмма становиться маловыразительной.

Пример выполнения секторной диаграммы дается на рисунке 7.6 Цифры в процентном отношении или в абсолютных значениях записывают в соответствующих секторах. Отдельно в виде небольших прямоугольников дают условные графические обозначения каждого сектора в отдельности. На диаграмме эти условности различаются изменением направления штриховки. Секторные диаграммы по своему содержанию относятся к группе структурных диаграмм, так как в них данные сопоставляются по их структуре. Если в такой диаграмме структура сравниваемых величин дается в процентном соотношении, то такая диаграмма называется диаграммой удельных весов. Предлагаемые для примеров диаграммы частично были выполнены в табличном процессоре Microsoft Excel, поэтому диаграммы анализа хозяйственной деятельности в дипломных проектах рекомендуем выполнять с применением компъютера.

 

 


8 Общие требования к выполнению схем

 

При обозначении схем основополагающим стандартом является ГОСТ 2.701-2008 ЕСКД. «Схемы виды и типы. Общие требования к выполнению».

В зависимости от разновидности элементов и связей, входящих в состав изделия, виды схем имеют следующие наименования и буквенные коды:

· электрические – код Э,

· гидравлические – код Г,

· пневматические – код П,

· газовые – код Х,

· кинематические - код К,

· вакуумные - код В,

· оптические – код Л,

· энергетические – код Р,

· деления – код Е,

· комбинированные – код С.

Под комбинированной схемой понимается схема, когда на одном конструкторском документе выполняют схемы двух и более видов, выпущенных на одно изделие.

В зависимости от основного назначения типы схем имеют следующие наименования и цифровые коды:

· структурные – код 1,

· функциональные – код 2,

· принципиальные – код 3,

· соединений (монтажные) – код 4,

· подключения – код 5,

· общие – код 6,

· расположения – код 7,

· объединенные – код 0.

Схемы структурные и функциональные предназначены для общего ознакомления с изделием и для изучения общих принципов работы изделия.

Схема электрическая принципиальная предназначена для определения полного состава изделия, изучения принципов его работы и расчета, обозначается Э3.

Схемы соединений, подключений и общая, предназначены для представления сведений о соединениях составных частей и изделий в целом.

Схема расположения определяет относительное расположение составных частей изделия и, при необходимости, их соединений.

Под объединенной схемой понимается схема, когда на одном конструкторском документе выполняют схемы двух и более типов, выпущенных на одно изделие. Например, схема структурная, принципиальная и соединений.

Таким образом, наименование и обозначение схемы, как вида документа, состоит из кода (вида и типа) схемы.

Схемы выполняют на листах стандартных форматов; при этом основные форматы являются предпочтительными.

Перечень элементов схемы помещают на первом листе схемы или выполняют в виде самостоятельного документа на листах формата А4, основную надпись выполняют по ГОСТ 2.104 – 2006 (формы 2 и 2а).

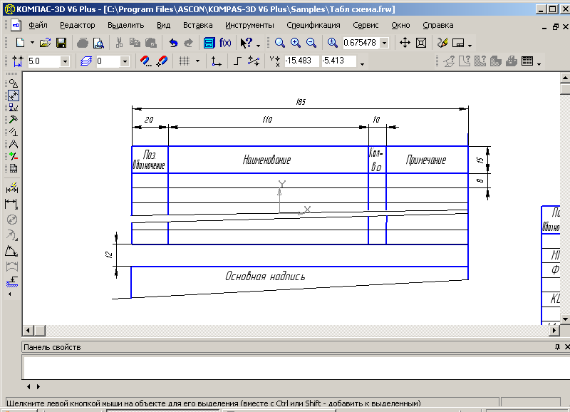
Перечень элементов оформляют в виде таблицы, заполняемой сверху вниз. При выполнении перечня на первом листе схемы его располагают, как правило, над основной надписью на расстоянии не менее 12мм от нее. При необходимости продолжение перечня элементов помещают слева от основной надписи, повторяя головку таблицы. Форма таблицы для перечня элементов приведена на рисунке 8.1.

Рисунок 8.1 – Форма таблицы для перечня элементов схемы

 

В графах перечня указывают следующие данные:

в графе «Поз. обозначение» - позиционное обозначение элемента;

в графе «Наименование» - наименование элемента схемы в соответствии с документом, на основании которого он применен, и обозначение этого документа (для функциональной группы – наименование);

в графе «Кол.» - количество одинаковых элементов;

в графе «Примечание», при необходимости, - технические данные элемента, не содержащиеся в его наименовании.

Элементы в перечень записывают группами в алфавитном порядке буквенных позиционных обозначений, причем в пределах каждой группы, имеющей одинаковые буквенные позиционные обозначения, их располагают в порядке возрастания порядковых номеров. Элементы одного вида с одинаковыми параметрами, имеющие на схеме последовательные порядковые номера, допускается записывать в перечень одной строкой. В этом случае в графу «Поз. обозначение» вписывают позиционные обозначения только с наименьшим и наибольшим порядковыми номерами, а в графе «Кол.» указывают общее число этих элементов. При выполнении на схеме цифровых обозначений в перечень их записывают в порядке возрастания.

При записи элементов одинакового наименования, отличающихся техническими характеристиками и другими данными и имеющих одинаковое буквенное позиционное обозначение, допускается в графе «Наименование» записывать наименование этих элементов в виде общего наименования, указывая тип и обозначение документа, на основании которого эти элементы применены. На рисунке 8.2 приведен пример записи элементов одинакового наименования.

Рисунок 8.2 – Пример оформления таблицы для перечня элементов схемы

 

При присвоении позиционных обозначений элементам в пределах групп устройств или при вхождении в изделие одинаковых функциональных групп элементы, относящиеся к устройствам и функциональным группам, записывают в перечень элементов отдельно. Запись элементов, входящих в каждое устройство (функциональную группу), начинают с наименования устройства, которое записывают в графе «Наименование» и подчеркивают. Ниже наименования устройства должна быть оставлена одна свободнаястрока, выше – не менее одной свободной строки.

При заполнении перечня сначала записывают элементы, не входящие в устройства (функциональные группы), затем устройства, не имеющие самостоятельных принципиальных схем, и функциональные группы с элементами, входящими в них, на рисунке 8.2 приведен пример заполнения указанного перечня.

 

8.1 Построение схемы

Схемы выполняют без учета действительного пространственного расположения частей изделия и без соблюдения масштаба. Условные графические обозначения элементов на схеме допускается располагать в том же порядке, в котором они расположены в изделии, при условии, что это не нарушит удобочитаемость схемы.

Графические обозначения и соединяющие их линии связи располагают на схеме таким образом, чтобы обеспечить наилучшее представление о структуре изделия и взаимодействии его составных частей. Линии связи должны состоять из горизонтальных и вертикальных отрезков, иметь минимальное число пересечений и изломов. Допускается в отдельных случаях применять наклонные отрезки линий связи, длину которых следует по возможности ограничивать. Расстояние между соседними параллельными линиями связи должно быть не менее 3 мм.

Допускается изображать на схеме одного вида элементы схем другого вида, непосредственно влияющие на работу схемы этого вида, а также элементы и устройства, не входящие в изделие, на которое составляют схему, но необходимые для разъяснения принципов работы изделия. Графические обозначения таких элементов и устройств отделяют на схеме штрихпунктирными линиями, равными по толщине линиям связи, и помещают надписи, указывающие местонахождение этих элементов, а также необходимые данные. Графические обозначения таких элементов и устройств установлены в стандартах ЕСКД или построены на их основе.

 

 

Список использованной литературы

 

1. Куликов В.П. Стандарты инженерной графики. Учебное пособие. М.: ФОРУМ, 2009.

2. Куликов В.П., Кузин А.В., Демин В.М. Инженерная графика: учебник. М.: ФОРУМ: ИНФРА-М, 2009.

3. Томилова С.В. Инженерная графика. Строительство: учебник для студ. учреждений сред. проф. образования. – М.: Издательский центр «Академия», 2012.

4. Государственные стандарты " Единая система конструкторской документации" (ЕСКД).

5. Боголюбов С.К., Воинов А.В. Черчение. – М.: Машиностроение, 2000.

6. Богданов В.Н. и др. Справочное руководство по черчению.- М.: Машиностроение, 1989.-864с.

7. Будасов Б.В., Каминский В.П. Строительное черчение: Учеб. для вузов. – М.: Стройиздат, 1990. – 464 с.

8. Ганенко А.П. и др. Оформление текстовых и графических материалов при подготовке дипломных проектов, курсовых и письменных экзаменационных работ: Учебное пособие. – М.: ИРПО, 2005. – 352 с.

9. Короев Ю.И. Черчение для строителей: Учебник для проф. учеб. заведений. – М.: Высшая школа, 1998 – 256 с.

10. Попова Г.Н., Алексеев С.Ю. Машиностроительное черчение: Справочник.- СПб.: Политехника, 1999.- 453с.

11. Миронова Р.С., Миронов В.Г. Сборник задач по инженерной графике. – М.: Высшая школа, 2001.

 

Приложения

 

 

Приложение А


Поделиться с друзьями:

mylektsii.su - Мои Лекции - 2015-2026 год. (0.844 сек.)Все материалы представленные на сайте исключительно с целью ознакомления читателями и не преследуют коммерческих целей или нарушение авторских прав Пожаловаться на материал