Студопедия

Главная страница Случайная страница

КАТЕГОРИИ:

АвтомобилиАстрономияБиологияГеографияДом и садДругие языкиДругоеИнформатикаИсторияКультураЛитератураЛогикаМатематикаМедицинаМеталлургияМеханикаОбразованиеОхрана трудаПедагогикаПолитикаПравоПсихологияРелигияРиторикаСоциологияСпортСтроительствоТехнологияТуризмФизикаФилософияФинансыХимияЧерчениеЭкологияЭкономикаЭлектроника






Выполнение раздела по охране труда и производственной санитарии






Содержание раздела должно соответствовать основной теме дипломного проекта и быть его составной частью. Раздел должен состоять из 8…12 страниц пояснительной записки.

В разделе следует поместить выводы из анализа состояния охраны труда на объекте преддипломной практики с указанием причин наиболее тяжелых и наиболее частых несчастных случаев, расчеты показателей травматизма, графики изменения показателей травматизма по годам. Основными вопросами, прорабатываемыми в данном разделе дипломного проекта, являются: выполнение норм по обеспечению одного работника площадью и кубатурой в производственных и вспомогательных помещениях; обеспечение норм освещенности, естественной и принудительной вентиляцией рабочих мест и помещений; снижение запыленности и шума в производственных помещениях до установленных норм; обеспечение температурно-влажностного режима в производственных помещениях, обеспечение электробезопасности и безопасности в производственных помещениях и на открытом воздухе, обеспечение установленных норм противопожарных разрывов на территории проектируемого объекта; обеспечение территории объекта и помещений противопожарной сигнализацией и средствами обычного автоматического пожаротушения.

В этом же разделе следует привести данные о средствах индивидуальной защиты работающих на участке, одежде, обуви и на какие сроки выделяются. Рекомендуемая литература [Л.24.].

6.1. Расчет вентиляции

При расчете вентиляции определяют необходимый воздухообмен, подбирают вентилятор и электродвигатель.

 

Производительность вентилятора определяют по формуле:

Wв=Vп Kв, м3/ч,

где Vп – объем помещения, м3;

Kв – кратность обмена воздуха, ч-1 (таблица 2).

 

По производительности подбирают соответствующий вентилятор (приложение 13), с полной характеристикой вентилятора.

 


Таблица 2

Кратность обмена воздуха

Участок Kв Участок Kв
Сварочный 4…6 Испытания двигателей 4…6
Кузнечный 4…6 Разборочно-моечный  
Ремонта топливной аппаратуры   Ремонта электрооборудования 3…4
Механический 4   Гальванический 6…8
Агрегатный   Малярный, окраски автомобилей  
Диагностирования      

Характеристики вентиляторов в приложении 13.

6.2. Расчет освещения

При расчете искусственного освещения надо подсчитать число ламп для участка, выбрать тип светильника, определить высоту подвеса светильников, разместить их по участку.

Необходимое число ламп нормальной освещенности определяют по формуле:

 

n =

 

где Ecр – средняя освещенность, лк (таблица 3);

F – площадь помещения, м2;

K – коэффициент запаса освещенности, равный 1, 3;

Fл – световой поток каждой лампы, лк (табл.4);

h - коэффициент использования светового потока (для помещений ремонтных мастерских берется 0, 3…0, 5).

Таблица 3

Наименование участков (отделений) Естественное освещение Искусственное освещение
Коэффициент освещенности Отношение световой поверхности окон к площади пола Минимальная освещенность, Еср , лк
При лампах накаливания При люминесцентных лампах
Разборочное, моечное, кузнечное, сварочное, медницкое, испытательное, столярное 0, 3…0, 4 1: 6    
ТО и ТР 0, 3…04 1, 5    
Комплектовочное, сборочное 0, 3…0, 4 1: 6    
Электротехническое, ремонта топливной аппаратуры 0, 4…0, 5 1: 6    
Дефектовочное 0, 4…0, 5 1: 5    
Конторские комнаты 0, 3…0, 4 1: 6    
Склады, кладовые 0, 2…0, 3 1: 8    
Проходы, проезды 0, 2…0, 3 1: 8    

Таблица 4

Характеристика осветительных ламп

Мощность лампы, Вт Световой поток, лк
При напряжении 220 В
   
   
   
   
   

 


7. ВЫПОЛНЕНИЕ РАЗДЕЛА «МЕРОПРИЯТИЯ ПО ОХРАНЕ ОКРУЖАЮЩЕЙ СРЕДЫ»

В разделе объемом 5-8 страниц объект проектирования рассматривается с точки зрения воздействия на окружающую среду. Даются рекомендации по уменьшению этого воздействия, приводятся расчеты, подтверждающие уменьшение воздействия факторов производства после проведения природоохранных мероприятий.

Основными вопросами, прорабатываемыми в данном разделе, являются: обеспечение чистоты сточных вод в производственных и ремонтных цехах и на пунктах наружной мойки; применение многооборотного водоснабжения с современными очистными сооружениями; обеспечение сбора, хранения и регенерации отработавших технологических жидкостей; предотвращение утечек и разлива технологических жидкостей; контроль и мероприятия по снижению токсичности отработавших газов в дизельных и бензиновых двигателях, очистка дымовых и отработавших газов в производственных корпусах; улавливание паров топлива при хранении на складах.

Целесообразно выполнить расчет производительности очистных сооружений оборотного водоснабжения для автомоек, определить степень очистки воды, выбрать соответствующее оборудование.

Рекомендуется использовать литературу [Л.13, Л.22].


ОСОБЕННОСТИ ОФОРМЛЕНИЯ ТЕХНОЛОГИЧЕСКИХ ПЛАНИРОВОК ПРОИЗВОДСТВЕННЫХ ПОДРАЗДЕЛЕНИЙ АТП И СТОА

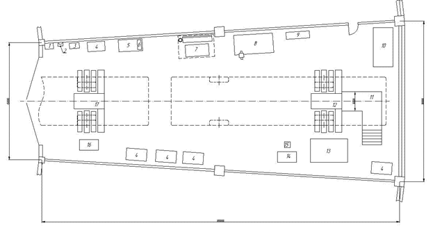
План здания. Планом здания называется разрез здания горизонтальной плоскостью, расположенной несколько выше подоконников. Такой выбор секущей плоскости позволяет показать на плане оконные и дверные проемы в наружных стенах и дверные проемы во внутренних стенах и перегородках, колонны, лестницы, лифты, ворота. На планах промышленных зданий (рисунок 1) показывают размещение машин, станков (по габаритному очертанию); коммуникации, канавы, подъемники, места подвода электричества, сжатого воздуха, воды. Посты ТО и ТР, автомобиле-места хранения и ожидания наносятся в плане пунктиром по их габаритному очертанию с соблюдением нормативных размеров; стрелками указываются пути движения автомобилей в соответствии с последовательностью технологического процесса.

На планах наносят все необходимые размеры (в миллиметрах). В первой цепочке размещают размеры простенков, толщину стен, ширину проемов; во второй цепочке – размеры между разбивочными осями, в третьей – габаритные размеры здания в плане. Кроме этого, необходимо указывать размеры ширины проездов между рядами стоящих автомобилей, расстояния между осями канав, расстояния между постами. На строительных чертежах применяют замкнутые размеры цепи; при этом неизбежно происходит пересечение размерных и выносных линий, что считается допустимым. Другой особенностью строительных чертежей является то, что на них обычно не заштриховывают стены и колонны, попавшие в разрез (ГОСТ 2.306-68). Элементы, попавшие в плоскость сечения, изображают более толстыми сплошными линиями. Это создает контрастность, придающую чертежу наглядность при минимуме чертежной работы.

В строительных чертежах допускается не применять обозначения материалов, если нет необходимости в графическом выявлении материала (например, при его однообразии), или применять их частично, если необходимо выделить на чертеже отдельные элементы, изготовленные из разных материалов. Допускается также в сечениях незначительной площади любой материал обозначать как металл или вообще не применять обозначение, сделав поясняющую надпись в поле чертежа (ГОСТ 2.306-68).

 

Рисунок 1. План промышленного здания.

Для планов зданий обычно применяют масштабы 1: 100 или 1: 200. Для планов зданий малых габаритов применяют масштаб 1: 10, 1: 15, 1: 20, 1: 25, 1: 40, 1: 50, 1: 75, 1: 100.

Контуры стен и колонн, попавшие в разрез, обводят линиями толщиной 0, 5…0, 6мм, другие линии контура – толщиной 0, 3мм, контуры оборудования – линиями толщиной 0, 2…0, 3мм.

На плане помещается экспликация всех помещений и зон с указанием полезной площади.

Для двухэтажных и многоэтажных зданий выполняют планы для каждого этажа, в том числе и для подвального.

Условные обозначения, применяемые при составлении планов зданий, даны в разделе 9.

Фасад здания. Наружный вид здания называют фасадом. Фасадов может быть несколько: главный, боковые. Обычно их вычерчивают в том же масштабе, в каком и план, иногда в более крупном масштабе.

 



Поделиться с друзьями:

mylektsii.su - Мои Лекции - 2015-2026 год. (1.715 сек.)Все материалы представленные на сайте исключительно с целью ознакомления читателями и не преследуют коммерческих целей или нарушение авторских прав Пожаловаться на материал