Студопедия

Главная страница Случайная страница

КАТЕГОРИИ:

АвтомобилиАстрономияБиологияГеографияДом и садДругие языкиДругоеИнформатикаИсторияКультураЛитератураЛогикаМатематикаМедицинаМеталлургияМеханикаОбразованиеОхрана трудаПедагогикаПолитикаПравоПсихологияРелигияРиторикаСоциологияСпортСтроительствоТехнологияТуризмФизикаФилософияФинансыХимияЧерчениеЭкологияЭкономикаЭлектроника






Выбор основного оборудования






1.1 Силовой трансформатор

Uном = 110/10кВ;

Iкз = 8кА;

Рmax = 50МВт;

cosφ =0, 9;

nтр=1;

Условия выбора силового трансформатора:

- Uн1, Uн2;

- Схемы соединения обмоток;

- Мощность трансформатора;

- Учет графика нагрузки;

- Конструкция;

- Стойкость к токам КЗ.

Далее приведены расчеты для выбора трансформатора.

Расчет полной мощности:

S = = =55, 5 МВА

Расчет номинального (рабочего тока):

 

На основании расчетов выбирается двухобмоточный трансформатор ТМН 63000/110.

На рисунке Рис 1.1. приведен общий вид данного трансформатора.

Рис.1 Описание внешнего вида трансформатора ТМН 63000/110

Общий вид трансформатора ТМН-63000/110: 1. Расширитель; 2. Ввод нейтрали ВН 3. Ввод ВН; 4. Ввод НН; 5. Труба для отвода газа из установок трансформаторов тока; 6. Люки для раскрепления активной части в баке; 7. Скоба для стропления при подъеме трансформатора; 8. Крышка бака; 9. Табличка трансформатора; 10. Термометр манометрический (сигнализирующий); 11. Коробка клеммная; 12. Бак трансформатора; 13. Затвор поворотный дисковый DN 80 для слива масла из бака; 14. Крюк для подъема бака; 15. Пробка для слива остатков масла из бака; 16. Каретка; 17. Каток. 18. Клапан предохранительный; 19. Кран для взятия пробы масла; 20.Затвор поворотный дисковый DN 50 для подсоединения вакуум-насоса; 21. Люк для осмотра устройства РПН; 22. Маслопровод; 23. Реле газовое трансформатора; 24. Серьга для зачаливания при перекатке трансформатора; 25. Устройство РПН; 26. Скоба для стропления при подъеме крышки. 27. Маслоуказатель трансформатора; 28. Пробка для слива остатков масла из расширителя трансформатора; 29. Радиатор; 30. Болт заземления трансформатора; 31. Маслоуказатель устройства РПН; 32.Пробка для слива остатков масла из расширителя устройства РПН; 33. Вентиль DN 25 для долива масла в расширитель трансформатора. 34. Вентиль DN 25 для долива масла в расширитель устройства РПН; 35. Установка трансформаторов тока ВН. 36. Реле защитное устройства РПН; 37. Воздухоосушитель трансформатора. 38. Воздухоосушитель устройства РПН; 39. Фильтр термосифонный; 40. Привод устройства РПН; 41. Датчик термометра манометрического.

Габаритные размеры трансформатора ТМН 63000/110:

Габаритные размеры: (LхBхH), мм 5090х2685х5110

 

 

Трансформатор силовой масляный трехфазный двухобмоточный ТМН-63000/110 мощностью 63000 кВА и напряжением 110 кВ с естественной циркуляцией воздуха и масла, с регулированием напряжения под нагрузкой (РПН) предназначен для преобразования и поддержания заданного уровня напряжения в распределительных сетях общего назначения 110 кВ.

Нормативный документ для изготовления: ТУ BY 200022862.086-2011, ГОСТ 11677-85, ГОСТ 12965-93.

Климатическое исполнение и категория размещения по ГОСТ 15150-90 – У1.

Допустимая высота установки над уровнем моря. М - до 1000.

Производитель: ОАО «Белоозерский Энергомеханический Завод» (Р.Белорусь)

Общие данные:

 

Силовой трансформатор трехфазного исполнения с регулированием напряжения под нагрузкой предназначен для работы в электрических сетях общего назначения 110 кВ.

Маркировка трансформаторов – по ГОСТ 11677-85.

Конструкция трансформатора предусматривает возможность его крепления к фундаменту, платформе. Трансформатор снабжен устройством для перекатки в продольном и поперечном направлении. Допускается установка трансформатора непосредственно на фундамент без кареток.

Уровень шума на расстоянии 2 м – 58 дБ.

Требования безопасности, в том числе пожарной безопасности, соответствуют ГОСТ 12.2.007.0-75, ГОСТ 12.2.007.2-75, ГОСТ 12.1.004-91.

Заземляющие зажимы и знаки заземления выполнены по ГОСТ 21130-75.

Трансформаторы заполнены трансформаторным маслом, по физико-химическим показателям не уступающим показателям масла по ГОСТ 10121-76 и ГОСТ 982-80.

Защитные покрытия выполнены в соответствии с ГОСТ 11677-85.

Качество защитных покрытий трансформатор соответствует классу V по ГОСТ 9.032-74.

 

Надежность оборудования:

 

- безотказная наработка на отказ – не менее 25 000 ч;

- вероятность безотказной работы за наработку 8800 ч – не менее 0, 995;

- cрок службы до первого капитального ремонта – не менее 15 лет.

- полный срок службы трансформатора – не менее 30 лет.

Показатели надежности соответствуют ГОСТ 11677-85.
Режим работы трансформатора продолжительный на любой ступени напряжения.

 

Табл.1.1. Технические характеристики трансформатора

Наименование и размерность показателя ТМН-63000/110  
Климатическое исполнение и категория размещения У1  
Номинальная мощность, кВА обмотка ВН 6 300  
обмотка НН 6 300  
Номинальная частота, Гц    
Схема и группа соединения обмоток Y-о/ Δ -11  
Номинальное значение ВН    
напряжения, кВ НН    
Напряжение короткого замыкания, %, Uk 10, 5  
Ток холостого хода, не более, %    
Диапазон и число ступеней регулирования РПН в нейтрали ВН±9х1, 78%  
 
Защитное реле РПН URF-25/10  
(RS-2001)  
Испытательное напряжение полных грозовых импульсов, кВ линейного зажима не менее 480  
зажима нейтрали не менее 200  
Испытательное напряжение одноминутное, кВ линейного зажима не менее 200  
зажима нейтрали не менее 100  
Вид системы охлаждения М  
Передвижение трансформатора поперечно-продольное  
Ширина колеи, мм продольного перемещения    
поперечного перемещения    
Форма катков с ребордой  
Напряжение питания системы охлаждения и РПН, В цепей управления ~ 220  
цепей сигнализации    
двигателей ~ 380  
Встроенные трансформаторы тока коэффициент трансформации 300-200-150-100/5  
сердечник №1 кл. 5Р/40В× А/20  
сердечник №2 кл. 5Р/40В× А/20  
Масса, тонн активной части 9, 13  
масла 9, 52  
транспортная 21, 48  
полная 24, 65  
Отправка (с маслом/без масла) с маслом  
Срок эксплуатации, лет    

 

 

1.2 Выключатель и Разъединитель

Условия выбора выключателя:

- Uн;

- Iн;

- Конструкция (тип);

- Термическое действие I2*t;

- Допустимое апериодическое действие;

- Управление цепи.

Параметры, требующие проверки для подтверждения корректности выбора разъединителя::

- Uн;

- Iн;

- Iэл.дин.ст.;

- I2*t;

- Конструкция;

- Вторичные цепи.

Расчет параметров выключателя:

Iкз = 8кА;

Uн = 110кВ;

T=0, 1 сек;

Расчет периодической составляющей:

Iпо=Iкз=8кА;

Ударный коэффициент:

Куд=1, 8;

Расчет ударного тока:

Iуд=(√ 2)*Iпо*Куд=1, 41*8*1, 8=20, 3 кА;
iп(t)=Iпо;

Ia(t)=Iпо*e(-0, 01/0, 1)=7, 24;

Расчет тока термической и электродинамической стойкости:

Вк=Iтерм2*t-тепловой импульс;

Вк=Iпо*2*(T+Tоткл);

Tоткл. принимается равным 4 сек;

Вк=8*2*(0, 1+1)=17, 6 кА2*сек, (из расчетных данных);

Iтерм= = =4, 4 кА, t=4 выбирается с соответствии со временем термической стойкости необходимого выключателя.

Iдин=1.8*(√ 2)*Iтерм*t= 1, 8*1, 4*4, 4*4=44, 35кА;

Исходя из каталожных данных, представленных в таблице 1.2, выбирается выключатель элегазовый типа: LW36A(B)BEL-126 и разъединитель типа: РГ-110/2000- УХЛ1.

Таблица 1.2. Основные технические параметры выключателя

Наименование Единица измерения Значение
  Номинальное напряжение кВ  
  Одноминутное испытательное напряжение промышленной частоты Относительно земли Между контактами кВ 230/275 265/275
  Испытательное напряжение грозового импульса Относительно земли Между контактами кВ 550/650 630/750
  Номинальная частота Гц  
  Номинальный ток А 2000/3150
  Номинальный ток отключения КЗ кА 31.5/40
  Номинальный ток электродинамической стойкости кА 80/100
  Номинальный ток термической стойкости в течение 4 секунд кА 31, 5/40
  Номинальный пиковый ток кА 80/100
  Номинальная продолжительность тока с  
  Номинальный коммутационный цикл   О-0.3с-ВО-180(20)с-ВО
  Время отключения собственное время отключения полное время отключение мс 30+3 45 и 60*
  Время включения мс  
  Время включения-отключения мс ≤ 60
  Сопротивление первичной цепи мкОм ≤ 40
  Номинальное давление элегаза мПа 0.6 (0.5)
  Утечка элегаза в течение года % ≤ 0.5
  Механический ресурс циклов 6000 (10000*)

*согласовывается с Унитарным предприятием " АЭС-комплект"

 

Высоковольтный элегазовый выключатель модели LW36A(B)BEL-126 предназначен для сетей и энергосистем с напряжением 110 кВ и частотой 50 Гц. Данный выключатель используется как оборудование контроля и защиты энергосистем, а также может быть использован как выключатель для соединения отдельных энергетических систем.
Выключатель соответствует требованием стандартов GB1984-2003 и МЭК62271- 100 («Высоковольтный выключатель для сетей переменного тока»). Выключатель работает по принципу гашения дуги КЗ в элегазовой камере, привод пружинно-моторный механизм СТ30. Отличительными характеристиками выключателя являются: высокая способность разрыва дуги КЗ, небольшая потребляемая энергия, высокая надежность.


Условия эксплуатации:
Нормальные условия эксплуатации выключателя должны соответствовать требованиям стандарта GB11022-99 («Общие технические требования для высоковольтного коммутационного и контрольного оборудования»), а именно:

1. Температура окружающей среды:
Исп. I: -40°С~+40°С;
Исп. II: -45°С~+40°С;
Исп. II: -60°С~+40°С*
2. Высота над уровнем моря < 2500 м
3. Скорость ветра 34 м/с
4. Разница температуры в течение дня 25°
5 Толщина обледенения 10 мм (20 мм)
6. Место установки: наружная установка
7. Длина пути утечки тока: III класс 25 мм/кВ; IV класс 31 мм/кВ

Рис.2 1. Полюс (фарфоровый) 2. База/основание 3. Указатель прибора контроля плотности 4. Шкаф управления 5. Паспортная табличка

(габариты выключателя указаны на Рис.2)

Разъединители наружной установки серии РГ производства компания «Локус».
Назначение: Разъединители предназначены для включения и отключения обесточенных участков электрических цепей, находящихся под напряжением, а также заземления отключенных участков при помощи заземлителей. Разъединители также используют для отключения токов холостого хода трансформаторов и зарядных токов воздушных и кабельных линий. Конструкция: Разъединители серии РГ на напряжения 110 с нормальным уровнем изоляции по ГОСТ 1516.3 как и разъединители с повышенной электрической прочностью, выполнены с улучшенными эксплуатационными свойствами. Присоединительные размеры новых разъединителей выбраны с учетом возможности установки их на существующие опорные конструкции разъединителей серии РДЗ. Разъединители представляют собой двухколонковые аппараты с поворотом контактных ножей в горизонтальной плоскости. Разъединители состоят из главной токоведущей системы, опорно-поворотной изоляции, несущей рамы и заземлителей. Контактные ножи разъединителей выполнены из медных шин (на 110 кВ) или труб (на 220 кВ), к которым закреплены ламели из бронзового сплава. Выводные контакты выполнены с переходными контактными роликами и герметично закрыты. Это обеспечивает стабильное контактное нажатие в течении всего срока службы и небольшие усилия оперирования на рукоятке ручного привода. Контактирующие поверхности разъемного и выводного контактов покрыты серебром. Разъединители комплектуются высокопрочными фарфоровыми или полимерными изоляторами. Управление главными контактными ножами разъединителей и заземлителями может осуществляться как электродвигательными приводами ПД-14УХЛ1, так и ручными приводами ПРГ-6УХЛ1. Приводы ПД-14УХЛ1 комплектуются блоками коммутации на базе микровыключателей. Все приводы комплектуются модернизированной электромагнитной блокировкой типа ЗБ-1М с электромагнитным ключом КЭЗ-1М и ключом КМ-1 для аварийного деблокирования. Разъединители и их основные составные части защищены свидетельствами РФ на полезные модели. Условное обозначение: РГНП.Х1Х2- Х3-110.II/ Х4-Х5УХЛХ1 Р – разъединитель Г – горизонтально-поворотный тип Н – уровень изоляции по ГОСТ 1516.3-96 (в усиленном исполнении индекс не проставляется) П – с полимерной изоляцией (в исполнении с фарфоровой изоляцией индекс отсутствует) В – вертикальная установка Х1 – количество заземлителей (1 или 2) Х2 - расположение заземлителей относительно ведущей и ведомой колонок: а – со стороны ведущей колонки, б – со стороны ведомой колонки Х3 – тип установки (К – для килевой установки, СК – для ступенчато-килевой установки, В – для установки на вертикальной плоскости, ОП – для однополюсной установки) 110 - номинальное напряжение, кВ II- степень загрязнения изоляции по ГОСТ 9920-89 (в исполнении I индекс не проставляется) Х4 – номинальный ток (1000, 1600, 2000 или 3150), А Х5 - номинальный кратковременный выдерживаемый ток с повышенной стойкостью к воздействию токов к.з. 40, 50, 63 кА (в нормальном исполнении параметр не проставляется) УХЛ – климатическое исполнение по ГОСТ 15150-69 1 - категория размещения по ГОСТ 15150-69 Условия эксплуатации: - температура окружающей среды: от -60 до +45°С; - толщина корки льда при гололеде: 20 мм; - скорость ветра при гололеде: не более 15 м/с.

Рис. 2.2 Габариты разъединителя РГ-110/2000- УХЛ1.

 

 

1.3 Трансформатор тока

Условия выбора трансформатора тока:

- Uн;

- Iн;

- Iкз;

- I2*t;

- Конструкция;

-Схема (количество обмоток).

 

Элегазовый трансформатор тока серии ТРГ-110

Трансформаторы тока серии ТРГ предназначены для передачи сигнала измерительной информации измерительным приборам и устройствам защиты и управления в установках переменного тока частоты 50 Гц с номинальным напряжением 110 кВ.

Трансформаторы предназначены для эксплуатации в открытых и в закрытых распределительных устройствах в районах с умеренным, тропическим (до плюс 55°С) или холодным климатом (до минус 60°С), невзрывоопасной окружающей средой, не содержащей агрессивных газов и паров в концентрациях, разрушающих металлы и изоляцию. Содержание коррозионно-активных агентов по ГОСТ 15150 (для атмосферы типа II).

Изоляционной средой трансформаторов тока серии ТРГ является шестифтористая сера SF6 (элегаз), или смеси SF6 и CF4 (тетрафторметан-14). Контроль газовой среды осуществляется с помощью сигнализатора плотности.

В специальном исполнении трансформатора предусмотрено пломбирование выводов вторичных обмотки для измерения.

Трансформаторы тока выпускаются по ГОСТ 7746-2001 и техническим условиям, согла­сованными с РАО ЕЭС России.

Особенности и преимущества:

Трансформатор тока взрыво- и пожаробезопасен, так как в качестве главной изоляции применен инертный негорючий газ, или смесь газов. Каждый трансформатор тока оснащен эффективно действующим взрывозащитным устройством (мембраной), исключающим повреждение трансформатора тока даже при коротком внутреннем замыкании. Взрывобезопасность трансформатора подтверждена испытанием, проведенным по методикам МЭК в аккредитованном испытательном центре.

Во всех уплотнительных соединениях применены сдвоенные уплотнения из специального полимерного материала, который в отличие от резины нечувствителен к воздействию низких температур и практически не подвержен старению. Повышенная надежность узла уплотнения вторичных цепей (эпоксидный клемник), в котором используется многоуровневое лабиринтное уп­лотнение. Многократные испытания в камерах холода и накопленный опыт эксплуатации подтвердил абсолютную герметичность изделия, в том числе и при температурах окружающего воздуха до минус - 55°С. Алюминиевые газоплотные корпуса изготавливаемые методом высококачественной сварки на специализированном оборонном предприятии с использованием самых современных методов обеспечения и контроля герметичности. Все это обеспечивает низкий нормируемый уровень утечек изолирующего газа в год менее 0, 5% от общей массы.

Высокий класс точности обмотки для измерения (вплоть до класса коммерческого учета электроэнергии 0, 2S).

Возможность изготовления трансформатора тока с 5-ю вторичными обмотками.

Возможность изменения коэффициента трансформации. В эксплуатации коэффициент трансформации можно изменять в соотношении 1: 2: 4. Изменение коэффициента трансформации заключается в перестановке перемычек на головной части трансформатора без нарушения герметичности газовой полости трансформатора. При этом узел переключений перемычек надежно защищен от внешних воздействий окружающей среды.

Наличие в обмотке для измерения отпайки от половины числа витков позволяет использовать обмотку для измерения с пониженным вдвое коэффициентом трансформации.

Отсутствие внутренней твердой изоляции исключает возникновение частичных разрядов, позволяет не проводить перио­дические проверки и испытания изоляции, а также снижает до минимума вероятность внутреннего пробоя изоляции.

Усиленное крепление стойки с активной частью гарантирует сохранность изделия даже в жестких условиях транспорти­рования и при любых динамических нагрузках при эксплуатации.

Возможность пломбирования выводов вторичной обмотки для коммерческого учета электроэнергии, что позволяет предотвратить несанкционированный доступ к этим выводам.

Трансформатор тока практически необслуживаемый. Применение элегазовой изоляции с низким уровнем утечек, а также надежных, с большим сроком службы комплектующих практически исключают объем регламентных работ и обеспечивают работу без обслуживания в течение 20 лет при среднем сроке службы - 40 лет.

По специальному заказу возможна поставка трансформатора тока с покрытием горячим цинком заводской опорной металлоконструкцией.

По специальному заказу возможна поставка заводской металлоконструкции покрытой горячим цинком для установки выключателя ВГТ-110 совместно с тремя трансформаторами тока ТРГ-110.

Конструкция:

Трансформатор тока серии ТРГ представляет собой конструкцию, в верхней части которой расположен металлический корпус, закрепленный на опорном изоляторе. Изолятор в свою очередь закреплен на основании, в котором находится коробка выводов вторичных обмоток. В металлическом корпусе закреплена первичная обмотка и ее выводы, внутри корпуса размещаются вторичные обмотки. Внутренняя полость корпуса и изолятора заполнена изолирующим газом.

Конструкция первичной обмотки позволяет получить различные коэффициенты трансформации при изменении количества витков путем последовательно-параллельного соединения секций первичной обмотки. Возможно изготовление без переключения с одним коэффициентом трансформации.

Вторичные обмотки помещены в электростатические экраны, с целью выравнивания внутреннего электрического поля.

Магнитопровод вторичной обмотки для измерения изготовлен из нанокристаллического сплава, магнитопровод вторичной обмотки для защиты изготовлен из холоднокатаной анизотропной электротехнической стали.

Контроль давления газа производится с помощью сигнализатора плотности, имеющего температурную компенсацию. Сигнализатор плотности оснащен двумя парами контактов, что позволяет получать сигнал при двух значениях плотности (давления) газа и дистанционно осуществлять контроль давления газа.

При необходимости, имеется возможность пломбирования выводов вторичной обмотки для учета электроэнергии. Пломбирование осуществляется любым удобным способом. Для этого в конструкции трансформатора предусмотрены специальные места.

В верхней части трансформатора тока расположено защитное устройство, которое соединяет внутренний газовый объем с атмосферой при значительном превышении внутреннего давления (например, при избыточном заполнении газом или внутреннем дуговом перекрытии), что делает аппарат взрывобезопасным.

В таблице 1.2. представлены каталожные данные элегазового трансформатора тока серии ТРГ-110.

Таблица1.3. Технические данные

Наименование параметра Значение
ТРГ-110
Номинальное напряжение, кВ  
Наибольшее рабочее напряжение, кВ  
Испытательное одноминутное напряжение частоты 50 Гц, кВ  
Испытательное напряжение грозового импульса (1, 2/50 мкс), кВ  
Номинальная частота, Гц  
Номинальные первичные токи трансформатора, А 1)  
а) Трансформатор тока с коэффициентами трансформации в соотношении 1: 2: 4 200-400-800; 300-600-1200; 400-800-1600; 500-1000-2000
б) Трансформатор тока с одним коэффициентом трансформации 800; 1000; 1200; 1500; 2000
Номинальный вторичный ток, А 1 или 5
Величина утечки газа, % в год от общей массы газа, не более 0, 5
Параметры тока короткого замыкания:  
Наибольший пик (в скобках указаны значения для трансформатора тока с одним коэффициентом трансформации), кА 102 2) (160)
Односекундный ток термической стойкости (в скобках указаны значения для трансформатора тока с одним коэффициентом трансформации), кА 40 2) (63)
Трехсекундный ток термической стойкости для трансформатора тока с одним коэффициентом трансформации, кА.  
Климатическое исполнение, по ГОСТ 15150 УХЛ*, Т14)
Главная изоляция для климатического исполнения УХЛ1*, Т15) элегаз (SF6) с параметрами:  
Номинальное давление заполнения, приведенное к 20°С, МПа, абс. 0, 4
Давление предупредительной сигнализации 3), приведенное к 20 °С, МПа, абс. 0, 27
Давление аварийной сигнализации 3), приведенное к 20 °С, МПа, абс. 0, 24
Температура окружающего воздуха для исполнения УХЛ1* и ХЛ1*:  
Минимальная, °С - 55
Максимальная, °С + 40
Температура окружающего воздуха для исполнения T14):  
Минимальная, °С -10
Максимальная, °С +55
Максимальная скорость ветра, м/с  
Тяжение проводов:  
в горизонтальной плоскости вдоль выводов трансформатора, Н  
в вертикальной плоскости вниз, Н  
Масса трансформатора, кг  
Средний срок службы трансформатора, лет  

При включении трансформатора тока на первичные токи 200, 300, 400 и 500А наибольший пик тока короткого замыкания 80 кА, односекундный ток термической стойкости 31, 5 кА.

Давления предупредительной и аварийной сигнализации – это величины давлений, при снижении до которых происходит замыкание контактов в цепях предупредительной и аварийной сигнализации соответственно.

Специальное исполнение. Стоимость и сроки поставки следует согласовать с изготовителем.

Метрологические параметры вторичных обмоток:

Номер обмотки   2 3) 3 3) 43) 5 5)
Назначение для измерения для защиты для защиты для защиты 5)
Обозначение выводов 1И1-1ИЗ 1) 2И1-2И2 ЗИ1-ЗИ2 4И1-4И2 5)
Класс точности по ГОСТ 7746 0, 2 2) 5)
Номинальная мощность вторичной нагрузки, В-А         5)
     
Номинальная предельная кратность, не менее - 20 (15) 4) 20 (15) 4) 20 (15) 4) 5)
Коэффициент безопасности, не более   - - - 5)

 

Обмотка имеет отпайку 1И2, соответствующую первичному току, равному 0, 5 номинального значения. Класс точности 0, 2 по ГОСТ 7746 в случае использования отпайки 1И2 при нагрузке 30 В*А, для стандартного ряда номинальных токов.

Значение в скобках указано для номинального ряда первичных токов 200-400-800 А и для трансформаторов тока с одним коэффициентом трансформации с номинальным током 800; 1000А.

На рис. 3.1 представлены габариты трансформатора тока ТРГ-110.

Рис. 3.1 Габариты ТРГ-110.

Завод изготовитель ЗАО «Энергомаш-Уралэлектротяжмаш».

1.4 Трансформатор напряжения

Условия выбора трансформатора напряжения:

- Uн;

- Класс точности;

-общая мощность;

- Конструкция.

Элегазовый однофазный измерительный трансформатор напряжения «ЗНОГ110 У1»

 

Предназначен для применения на подстанциях открытого типа класса напряжения 110 кВ с заземленной нейтралью для передачи сигнала измерительной информации измерительным приборам, устройствам защиты, сигнализации, управления и автоматики.

Внутренняя полость трансформатора заполняется элегазом, служащим изолирующей и теплоотводящей средой. Заполнение трансформатора элегазом производится через клапан, установленный на корпусе трансформатора.

На корпусе трансформатора установлена предохранительная мембрана, срабатывающая при аварийном повышении внутреннего давления. Поток выхлопных газов направлен вниз, вдоль корпуса.

Трансформатор ЗНОГ110-У1 комплектуется термокомпенсированным сигнализатором плотности элегаза типа «WIKA».

Для комплектации КРУЭ (элегазовое комплектное распределительное устройство) может поставляться с герметичным изолятором, предназначенным для присоединения к КРУЭ.

 

Таблица1.4. Технические характеристики ЗНОГ110-У1

Характеристики Значения
Номинальное первичное напряжение, В 110 000/Ö 3
Номинальное вторичное напряжение, В:  
- основной вторичной обмотки 110/Ö 3
- дополнительной обмотки  
Количество вторичных обмоток  
Номинальная мощность при нагрузке с коэффициентом мощности cos φ =0.8, ВА:  
- основной вторичной обмотки для измерений: в классе точности 0, 2.... 100 в классе точности 0, 5.... 400 в классе точности 1, 0.... 600 в классе точности 3, 0.... 1 200
- основной вторичной обмотки для коммерческого учета расхода электроэнергии в классе точности 0, 2.... 30
- дополнительной вторичной обмотки в классе точности 3, 0.... 1200
Суммарная предельная мощность вторичных обмоток, ВА  
Предельная мощность доп. вторичной обмотки, ВА  
Давление заполнения (абсолютное) трансформатора элегазом при t +20°С, МПа 0, 45
Масса трансформатора ЗНОГ110-У1, кг  
Температура эксплуатации, ˚ C - 45.... +50
Сейсмостойкость M9

 

На рис. 4.1 представлены габариты трансформатора напряжения «ЗНОГ110 У1»

 

Рис. 4.1 Габариты «ЗНОГ110 У1».

 

1.5 ОПН

Условия выбора ОПН:

- Uн;

- Iраб;

- Пропускная способность;

- Конструкция.

 

Ограничители перенапряжения ОПН-110

Ограничитель перенапряжений ОПН-110 Ограничитель перенапряжений ОПН-110 предназначен для защиты электрооборудования сетей класса напряжения 110 кВ переменного тока частоты 50 Гц с глухозаземлённой и эффективно заземлённой нейтралью от грозовых и коммутационных перенапряжений.

Структурное обозначение ограничителя перенапряжений ОПН-110

ОПНп-110/(56; 60; 73; 78; 86)/10/2/III УХЛ1, тип «А»/«Б»
п – полимерная покрышка;
110 – класс напряжения сети 110 кВ;
56; 60; 73; 78; 86 – наибольшее длительно допустимое рабочее напряжение 56, 60, 73, 78 или 86 кВ;
10 – номинальный разрядный ток 10 А;
2 – класс пропускной способности (ток пропускной способности 550 А);
III – степень загрязнения по ГОСТ 9920;
УХЛ – климатическое исполнение – умеренный и холодный климат, температура от –60С до +45С;
1 – степень размещения на открытом воздухе;
тип «А»/«Б» – исполнение без изолированного вывода / с изолированным выводом.

Приведём маркировку всех возможных исполнений ограничителя ОПН-110:

ОПНп-110/56/10/2/III УХЛ1 тип «А» и «Б»
ОПНп-110/60/10/2/III УХЛ1 тип «А» и «Б»
ОПНп-110/73/10/2/III УХЛ1 тип «А» и «Б»
ОПНп-110/78/10/2/III УХЛ1 тип «А» и «Б»
ОПНп-110/86/10/2/III УХЛ1 тип «А» и «Б»

Детальное описание технических параметров и характеристик по каждому из ограничителей приведено в таблице ниже.

Выбор ограничителей ОПН-110 лучше осуществлять исходя из нескольких электрических параметров (произвести как можно более точный анализ параметров сети), для высоковольтных сетей это необходимо. Другое дело обстоит с сетями среднего и низкого напряжения – процедура подбора ограничителей перенапряжения для таких сетей гораздо проще.

Ограничители перенапряжений ОПН-110 в течении установленного срока службы выдерживают не менее 20 импульсов перенапряжений – грозовых и коммутационных.
Срок службы ограничителя – 30 лет.
Гарантийный срок эксплуатации – 3 года с момента ввода в эксплуатацию, но не более 5 лет с момента отгрузки производителем.
В комплект поставки ограничителя входят ограничитель, экран и комплект документации (паспорт, по требованию заказчика – руководство по эксплуатации).

Ограничители перенапряжения ОПН-110 отгружаются с индивидуальными паспортами, пакуются в ящики по три штуки. Чтобы снизить уровень возможных при транспортировке вибраций. Ограничители перенапряжения ОПН-110 устанавливаются на пенопластовую плиту и фиксируются сверху еще одной плитой, что позволяет при перевозке сохранить первородность ограничителей перенапряжений ОПН-110.

Таблица1.5. Технические характеристики ограничителей перенапряжения ОПН-110

Основные технические данные и характеристики ОПН-110/73 ОПН-110/78 ОПН-110/86 ОПН-110/56 ОПН-110/60
  Класс напряжения сети, действующее значение, кВ      
  Наибольшее длительно допустимое рабочее напряжение (Uнр), действующее значение, кВ   78/86 56/60
  Ток пропускной способности, А      
  Номинальный разрядный ток, кА      
  Классификационное напряжение при амплитуде активного тока 1 мА, не менее, кВ действ.      
  Остающееся напряжение при коммутационном импульсе тока 30/60 мкс, кВ, не более      
  - с амплитудой 150 А 178, 0 184, 0 143, 0
  - с амплитудой 500 А 191, 0 198, 0 153, 5
  Остающееся напряжение при грозовом импульсе тока 8/20 мкс, кВ, не более      
  - с амплитудой 5000 А 230, 0 238, 0 185, 0
  - с амплитудой 10000 А 250, 0 260, 0 198, 0
  - с амплитудой 20000 А 288, 0 298, 0 226, 3
  Остающееся напряжение при импульсе тока 1/10 мкс, амплитудой 10 кА, кВ, не более 267, 5 278, 2 212, 0
  Удельная энергоемкость, кДж/кВ UНР (за одно воздействие) 2, 7 2, 7 2, 7
  Максимальная высота, мм      
  Масса, кг, не более      
  Длина пути утечки, мм      

 

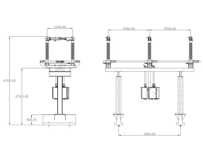
На рис. 5.1 представлены габариты ОПН-110

Рис. 5.1 Габариты ОПН-110

 

 

1.6 Система шин, токопроводы

Условия выбора системы шин, токопровода:

- Сечение и материал;

- Iном.???

- Конструкция.

Провода выбраны типа: АС-70/11, с диаметром 16, 8мм и весом 554 кг на 1 километр.; какой ток допустим для АС-70/11? - см. справочн. информацию

Элементы конструкции

Сердечник из стальных оцинкованных проволок;

Алюминиевая проволока.

Число проволок АС 70/11: 7;
Число повивов АС 70/11: 1;

Проволоки провода АС скручены правильной скруткой, при этом следующий повив всегда скручен в противоположную сторону. Наружный повив всегда имеет правое направление скрутки.

Область применения

Провод неизолированный АС 70/11 применяется для передачи электроэнергии в воздушных электрических сетях (ЛЭП).

Провод АС предназначается для эксплуатации в условно-чистой (тип I) или промышленной (тип II) атмосфере воздуха при условии содержания в атмосфере сернистого газа не более 150 мг/м2 сут (1.5 мг/м3) и хлоридов менее 0, 3 мг/м3 х сут.

Провод марки АС предназначен для эксплуатации в макроклиматических районах с умеренным и холодным климатом (УХЛ), кроме районов с влажным и сухим тропическим климатом (ТВ и ТС).

Длительно-допустимая температура провода АС 70/11 при эксплуатации не должна быть выше +90°С.

Срок службы АС 70/11 — 45 лет.

 

В соответствии с ПУЭ, выбираются изоляторы типа ПС6-Б в количестве 9шт.

Для проектирования данной ПС выбирается жесткая ошиновка типа ШОП.
Шинные опоры наружной установки типа ШОП-110-И для гибкой связи между алюминиевыми круглыми шинами жесткой ошиновки в открытых распределительных устройствах (ОРУ) напряжением 110кВ переменного тока частотой до 60 Гц.

1.1.2 Шинные опоры изготавливаются в климатическом исполнении УХЛ, категории размещения 1 по ГОСТ 15543.1-89 и ГОСТ 15150-69, при этом:

высота над уровнем моря не более 1000 м;

толщина корки льда не более 20 мм;

скорость ветра при гололеде до 15 м/с;

скорость ветра при отсутствии гололеда до 40 м/с;

верхнее значение температуры окружающего воздуха плюс 40°С;

нижнее значение температуры окружающего воздуха минус 60°С.

Окружающая среда невзрывоопасная, содержание коррозионно-активных агентов должно соответствовать атмосфере I и II по ГОСТ 15150-69.

1.1.3 Расшифровка условного обозначения шинной опоры:

ШОП - Х1 - Х2X3 - Х4 УХЛ 1,

ШОП -товарный знак шинных опор, Х1 -номинальное напряжение в кВ, Х2 - индекс обозначающий типоисполнение шинной опоры (И- гибкая связь между шинами жесткой ошиновки), X3- условный диаметр алюминиевой шины, Х4- степень загрязнения по ГОСТ9920, X3- условный диаметр круглых шин, Х4- степень загрязнения по ГОСТ9920, УХЛ - климатическое исполнение по ГОСТ 15150, 1- категория размещения по ГОСТ15150

Пример условного обозначения типоисполнения опоры на напряжение 110кВ с изоляцией степени загрязнения 4 для гибкой связи круглых алюминиевых труб условным диаметром 100, при ее заказе и в документации другого изделия:

ШОП-110-И100-4 УХЛ1.

 

Табл.1.6. габариты ШОП.

Марка шинной опоры жесткой ошиновки Диаметр трубы жесткой ошиновки, мм, S Условный диаметр круглой шины, L Строительная высота, мм, H Масса, кг
ШОП-110-И60-4 УХЛ1 60/54     28, 0

Табл. 6.2 Основные технические характеристики

Технические характеристики значение
Номинальное напряжение, кВ  
Наибольшее рабочее напряжение, кВ  
Испытательное напряжение полного грозового импульса, кВ  
50%-ное разрядное напряжение промышленной частоты в загрязненном и увлажненном состоянии, кВ - при удельной поверхностной проводимости слоя загрязнения, мкСм 110
Минимальная разрушающая сила на изгиб, кН, не менее  
Минимальный разрушающий крутящий момент, не менее, кН*м  
Длина пути утечки не менее, см  
Наибольший пик номинального кратковременновыдерживаемого тока(ток электродинамической стойкости), кА  
Допустимое натяжение шин в горизонтальной плоскости шинных опор в месте крепления шин, Н  
Установочный размер нижнего фланца, мм Диам. 178* 4отв.диам.18

 

Шинные опоры изготавливаются на базе специальных изоляторов, разработанных для применения в шинных опорах. Специальные требования к изоляционной конструкции, предназначенной для поддержания шин жесткой ошиновки учтены в шинных опорах ШОП. Завод не рекомендует применение стандартных изоляторов в качестве изолирующего тела шинных опор. Шинные опоры ШОП предназначены для изоляции и крепления токоведущих частей в электрических аппаратах и распределительных устройствах (РУ) электрических станций и подстанций переменного тока напряжением 6-220 кВ частотой 50 Гц. Изоляторы изготавливаются в соответствии с ГОСТ Р 52082-2003 " Изоляторы полимерные опорные наружной установки на напряжение 6-220кВ. Общие технические условия". Технические условия на шинные опоры ТУ 3494-005-59116459-0 " Шинные опоры жесткой ошиновки на напряжение 10-220кВ " разработанными и выпущенными ОАО" ФСК ЕЭС" с регистрацией в Госстандарте. Монолитный стержень в изоляционном теле шинных опор исключает возникновение внутренних разрядов и пробоя в отличие от труб заполненных пеной, а также утечки тока по внутренней полости и по стенкам трубы в следствие выпадения конденсата, в отличии от полых

Компоновка и устройство ПС:

Компоновка ОРУ выполняется с учетом стандартов, правил и требований, приведенных в ПУЭ.

Порталы для крепления изоляторов и проводов выполняются железобетонными или металлическими.

Железобетонные фундаменты под трансформаторы и выключатели выполняются сборными или монолитными. Стойки выполняются железобетонными.

Под трансформаторами выполняется приямок (маслоприемник), заполненный гравием, для аварийного слива масла с объемом, равным количеству масла в трансформаторе, с отводом масла в подземный маслосборник.

Для крепления гибкой ошиновки используют подвесные изоляторы, а для крепления жесткой ошиновки на комплектных ПС – опорные изоляторы.

Для защиты от перенапряжений на ПС устанавливаются разрядники или ограничители перенапряжения.

ПС ограждается ограждением высотой 1, 8-2, 5м., сетчатое с железобетонными стойками, которое исключает накопление снега вдоль забора.

Заключение:

В данном проекте было разработано ОРУ 110 кВ ПС «Алукард», которое удовлетворяет всем стандартам и правилам проектирования ПС.
Все расчеты и принятые решения были обоснованы и применены в практическом описании проектируемой ПС и ее частей.

Список литературы:

Сайты:

1. https://sev-torg.com/ogranichiteli-perenapryazheniy-opn-110.html

2. https://www.voasw.ru/maslianye-transformatory/obshchepromyshlennye/tmn/6300kva

3. https://www.aes.by/_oid199.html

4. https://forca.ru/knigi/arhivy/kak-vypolnyayutsya-zavodskie-podstancii-12.html

Книги, справочники, пособия:

5. Схемы принципиальные электрические распределительных устройств 6-750 кВ. Северо-Западное отделение Энергосетьпроекта–Л.: 1993г.

6. Федоров А.А., Старкова Л.Е. Учебное пособие для курсового и дипломного проектирования по электроснабжению промышленных предприятий: Уч. пособие для вузов. - М.: Энергоатомиздат, 1987, -368с.

7. Электрическая часть электростанций и подстанций

Б.Н. Неклепаев, И.П. Крючков М.: Энергоатомиздат, 1989г.

 

 


Поделиться с друзьями:

mylektsii.su - Мои Лекции - 2015-2026 год. (1.892 сек.)Все материалы представленные на сайте исключительно с целью ознакомления читателями и не преследуют коммерческих целей или нарушение авторских прав Пожаловаться на материал