Студопедия

Главная страница Случайная страница

КАТЕГОРИИ:

АвтомобилиАстрономияБиологияГеографияДом и садДругие языкиДругоеИнформатикаИсторияКультураЛитератураЛогикаМатематикаМедицинаМеталлургияМеханикаОбразованиеОхрана трудаПедагогикаПолитикаПравоПсихологияРелигияРиторикаСоциологияСпортСтроительствоТехнологияТуризмФизикаФилософияФинансыХимияЧерчениеЭкологияЭкономикаЭлектроника






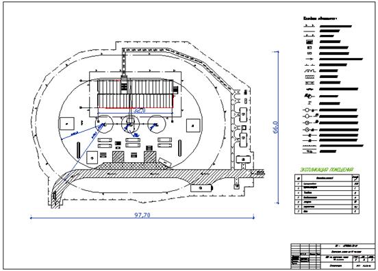
Ведомость расчета площадей временных зданий






Временные здания Кол-во рабочих Площадь помещения, м2 Размеры зданий, м Характеристика здания
На 1 рабочего общая
1 2 3 4 5 6
1. Охранное помещение 3 4 12 3× 2, F=6м2, 2шт неинвентарное
2. Контора прораба 3 4 12 9× 2.7× 2.7, F=24м2, 1шт вагончик, 420-01-3
3. Гардероб 28 0.9 25.2 6.5× 2.6× 2.8, F=15м2, 3 шт вагончик 4078-1.00.00.000 СБ
4. Комната приема пищи 24 0, 25 6
5. Душевая 12 0, 43 5.16
6. Сушилка 24 0, 2 4.8
7. Обогревалка 24 0.1 2.4
8. Туалет 27 0.07 1.89 1× 1, 3 шт Биотуалет

Л и т е р а т у р а

Л.Г.Дикман “Организация гражданского строительства. Справочник строителя”

А.Ф.Гаевой, С.А.Усик “Курсовое и дипломное проектирование. Промышленные и гражданские здания”

Девятаева Г.В. «Расчеты к стройгенплану» – компьютерная программа, расчет временных зданий.

 

 

 

 

Условные обозначения


Поделиться с друзьями:

mylektsii.su - Мои Лекции - 2015-2026 год. (0.912 сек.)Все материалы представленные на сайте исключительно с целью ознакомления читателями и не преследуют коммерческих целей или нарушение авторских прав Пожаловаться на материал