Студопедия

Главная страница Случайная страница

КАТЕГОРИИ:

АвтомобилиАстрономияБиологияГеографияДом и садДругие языкиДругоеИнформатикаИсторияКультураЛитератураЛогикаМатематикаМедицинаМеталлургияМеханикаОбразованиеОхрана трудаПедагогикаПолитикаПравоПсихологияРелигияРиторикаСоциологияСпортСтроительствоТехнологияТуризмФизикаФилософияФинансыХимияЧерчениеЭкологияЭкономикаЭлектроника






ОХОРОННО-ПОЖЕЖНА СИГНАЛIЗАЦIЯ






 

3.1 Завдання

 

- Провести аналiтичне порiвняння 3-х охоронно-пожежних систем.Данi звести в зведену таблицю. Пiсля на пiдставi отриманої iнформацiї обгрунтувати вибiр однiєї з представлених систем охоронно-пожежної сигналiзацiї. При виборi системи враховувати площу i призначення примiщень, визначених за варiантом, висоти i iншi параметри.

- привести короткий опис системи з розкриттям функцiональностi основних модулiв системи (централi, типи датчикiв, лiнiї зв’язку, виконавчі пристрої i т.д.);

- привести структурну схему системи охоронно-пожежної сигналізації;

- обгрунтувати вибiр охоронних i пожежних датчикiв в системi ОПС;

- привести умовнi позначення елементiв охоронно-пожежних систем;

- виходячи з ТЗ i планiв примiщення, а також вимог до розмiщення даного обладнання провести вибiр мiсць розмiщення централi, датчикiв, виконавчих пристроїв та лiнiй зв’язку мiж ними;

- провести розрахунок струмових навантажень по лiнiях живлення спо-

вiщувачiв ОПС;

- на планi примiщення показати розмiщення елементiв системи;

- привести специфiкацiю i розрахувати вартiсть ОПС.

3.2 Теоретична частина

Пiд системою охоронно-пожежної сигналiзацiї слiд розумiти цiлий комплекс технiчних пристроїв, якi сприяють своєчасному виявленню, обробці та передачi надiйшовших сигналiв про початок загоряння, порушення доступу в примiщеннi, подачi певних команд, автоматично приводять у дію механiзм включення установок пожежогасiння, виклик охорони на мiсце злому, а також забезпечення спрацьовування протидимного захисту та iнших пристроїв, необхiдних для комплексного забезпечення безпеки на об’єктi.

Мета установки систем пожежної сигналiзацiї - забезпечення автоматичного виявлення об’єкта загоряння, своєчасне включення систем, iнформують людей про пожежу чи проникненнi на об’єкт, що забезпечують локалiзацiю або захист.

Автоматичнi системи пожежної сигналiзацiї, що встановлюються на об’єктах, повиннi вiдповiдати наступним вимогам:

 
– забезпечувати пiдвищену надiйнiсть i своєчаснiсть подачi сигналів (сповiщення) про виникнення пожежi;

– мати автоматичне регулювання посилення i ступiнчасте регулювання

чутливостi встановлених датчикiв;

– не перевищувати встановлену санiтарними нормами радiоактивнiсть

iонiзацiйних сповiщувачiв;

– мати можливiсть збору та передачi сигналiв з розрiзнених приймачів на центральний диспетчерський пульт;

– автоматично контролювати справнiсть кожного датчика, включеного в систему сигналiзацiї i стан сповiщувачiв;

– мати можливiсть повної автоматизацiї охоронно-сигналiзацiйного процесу за рахунок застосування нового програмного забезпечення;

– автоматично контролювати i визначати дiлянку, на якiй виникло пошкодження;

– вести автоматичний контроль i облiк справностi функцiонування всiх

складових системи пожежної сигналiзацiї.

Системи пожежної сигналiзацiї можуть бути:

а) Адресна. Основною вiдмiннiстю адресної системи пожежної сигналiзацiї вiд порогової вважається алгоритм, за яким вiдбувається зв’язок контрольної панелi зi сповiщувачем. В той час, як контрольна панель в порогової системi пожежної сигналiзацiї весь час «чекає» сигналу про змiну стану датчика пожежної сигналiзацiї, в адресному системi пожежної сигналiзацiї контрольна панель лише перiодично посилає запити на пiдключення пожежнi оповiщувачi. Мета запитувиявити їх стан. До переваг даної системи вiдносяться: оптимальне спiввiдношення цiна - якiсть, контроль працездатностi всiх пожежних сповiщувачiв, що входять в систему, постiйна iнформованiсть. Вагомий недолiк - пiзнiше виявлення загоряння.

б) Порогова. У данiй системi кожен пожежний сповiщувач має поріг спрацьовування. Наприклад, тепловий сповiщувач при досягненнi заданої температури навколишнього середовища подає вiдповiдний сигнал на контрольну панель пожежної сигналiзацiї. Друга вiдмiнна риса порогових систем - радiальна топологiя побудови шлейфiв сигналiзацiї. Що це значить? Вiд контрольної панелi в рiзнi боки йдуть кабелі пожежних шлейфiв - променiв. У кожен такий промiнь включають близько 20-30 датчикiв, при спрацьовуваннi одного з них контрольна панель вiдображає номер променя, до якого приєднаний спрацював пожежний сповiщувач. Перевагою таких систем є низька вартiсть. До недолiкiв можна вiднести такi фактори, як: вiдсутнiсть контролю працездатностi датчикiв, низька iнформативнiсть отриманих сигналiв від датчикiв, пiзнiше виявлення пожежi.

 
в) Адресно-аналогова. В автоматичних системах пожежної сигналізації аналогова технологiя є самою просунутою. Данi системи пожежної сигналiзацiї володiють рядом достоїнств i переваг, якi є тiльки у них. Головною вiдмiннiстю цих систем є те, що рiшення про стан на пiдконтрольному об’єктi приймає контрольна панель, а не датчик. Комп’ютеризований контрольний пульт є складним обчислювальним пристроєм, який виробляє безперервний опит пiдключених датчикiв (звiдси ж i назва «аналоговий» - безперервний). Отриманi данi система аналiзує. Далi, в залежностi вiд отриманого аналiзу, приймає остаточне рiшення. Наприклад, датчики тепла весь час передають значення температури навколишнього середовища на контрольну панель. Панель стежить за величиною цього значення i динамiкою його змiни. Це єдина система пожежної сигналiзацiї, яка дозволяє виявляти вогнища загоряння на самих раннiх стадiях розвитку, тим самим за побiгаючи можливу шкоду. Ефективнiсть виявлення вогнища спалаху подiбних систем в 15-20 разiв вище, нiж у iнших. До переваг сигналiзацiй такого роду вiдноситься: раннє виявлення загорянь, контроль працездатностi пожежних сповiщувачiв. До недолiкiв можна вiднести лише вiдносну дорожнечу обладнання.

Система охоронної сигналiзацiї (ОС) - це сукупнiсть взаємопов’язаних технiчних засобiв для виявлення ознак знаходження порушника на об’єктах, що охороняються, збору, обробки, передачi i представлення в заданому виглядi iнформацiї споживачам. Будь-яка система охоронної сигналізації складається з датчикiв (сповiщувачiв), якi безпосередньо контролюють охоронювану зону, а в разi тривоги видають електричний сигнал; приймально-контрольних приладiв (пультiв-концентраторiв), якi обробляють цей сигнал за допомогою вбудованих мiкропроцесорiв i визначають всi подальшi дії (включення сирени або автодозвону i т.п.), а також виконавчих пристроїв, до яких вiдносяться звуковi або свiтловi оповiщувачi, блоки iндикацiї, принтери для роздруку протоколу подiй i т.п. Для зручностi всi датчики об’єднуються в зони. Кiлькiсть зон, що охороняються залежить вiд вимог до рівня безпеки на об’єктi. В даний час має мiсце тенденцiя до зменшення кiлькостi сповiщувачiв в однiй зонi, що охороняється. Бiльш того, з метою визначення точного мiсця проникнення на об’єкт i мiсцеположення зловмисника, в однiй зонi, що охороняється прагнуть розмiстити один сповiщувач.

 

3.3 Порiвняльна характеристика 3-х охоронно-пожежних систем

 

Таблица 3.1 - Порівняльна характеристика 3-х охоронно-пожежних систем

  Приймально-контрольний охоронно-пожежний прилад:   " R780-04"       FL150-08       BR12-574  
       
Режим використання: Автономний/ Централізований Автономний/ Централізований Автономний/ Централізований
Кількість зон:      
Максимальна кількість зон 16 провідних і 16 безпровідних 64 провідних і 64 безпровідних 8 провідних і 8 безпровідних
Області      
Кількість клавіатур      
Буфер подій      
Коди користувача 32 і головний код 32 і головний код 32 і головний код
Комунікатор + + -
Кількість телефонів      
Програмування через РС + + +
Автоматичне включення охорони + + -
Робоча напруга от 10, 2 до 28, 4 В Від 11В до 15В від15 В до 25 В
Допустимая рабочая температура від -40 до +50 °С від -25 °C до +40 °C від -15 °C до +20 °C
Допустимая температура хранения від -20 °C до +30 °C від -20 °C до +35 °C від -10 °C до +15 °C
Класс защиты по IEC 60529 IP30 IP32 IP30
Ціна: 1350 грн. 795 грн. 560грн

 

Оскільки Приймально-контрольний охоронно-пожежний прилад типу DC-1064 забезпечує необхідну кількість зон обслуговування, то в розглянутій системі будемо використовувати саме його.

3.4 Структурна схема системи охоронно-пожежної сигналізації

 

Використане обладнення охоронно-пожежної сигналiзацiї приведено вдодатку А. Пожежна безпека нашого офiсу складається з наступних компонентiв:

– наявнiсть вогнегасникiв i плану евакуацiї;

– пожежна сигналiзацiя (сповiщувачi, свiтловi табло), при необхiдностiсистеми димовидалення та пожежогасiння;

– наочна агiтацiя i iнструктаж з пожежної безпеки.

 

Таблиця 3.2 – Умовнi позначення використаного обладнання

  Датчик движения Crow SWAN-QUAD
Датчик комбинированный дыма и тепла СПД 3.5
Сирена Страж М-205
Прилад приймально-контрольний охоронно-пожежний PC-1864
Клавіатура РКІ DSC, PK 5500
Сповісник ручний " Тирас"  

 

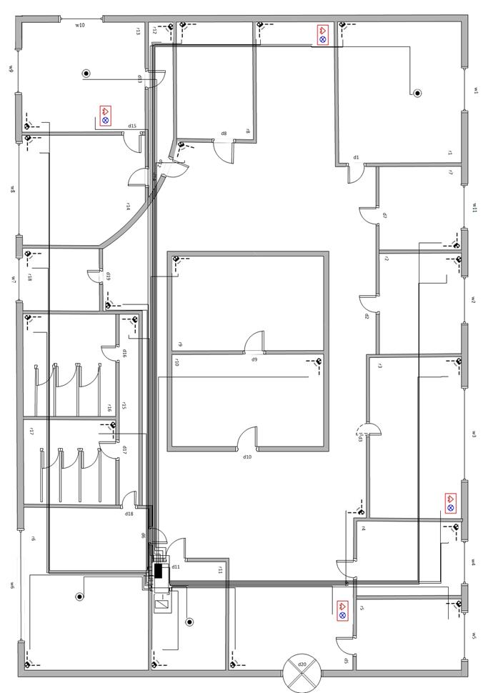
На рисунку 3.1 представлене розташування системи охоронної. На рисунку 3.2 представлене розташування системи пожежної сигналізації.




 
3.5 Розрахунок струмових навантажень сповiщувачiв

 


Розрахунок струмових навантажень по лiнiях живлення сповiщувачiв, пультiв управлiння, розширювачiв зчитувачiв, електрозамкiв та iнших пристроїв i блокiв проектованої системи виконується для правильного вибору перетину проводiв i кабелiв, а так само джерел живлення, проектованої системи з метою її нормального функцiонування в процесi експлуатацiї. Такий розрахунок особливо актуальний, якщо вiд одного джерела живлення здiйснюється живлення десятка i бiльше споживачiв, особливо з струмом споживання бiльше 50 мА, або довжина лiнiї живлення становить кілька десяткiв, а то й сотнi метрiв.

Початкові дані (система охоронно сигналізації):

1. Кількість сповіщувачів типу «CrowSWAN-QUAD» - 21 шт.

2. Максимальний споживаний струм одним сповіщувачем - 12 мА.

3. Загальний споживаний струм усіма сповіщувачами: 12мА∙ 21шт=252мА.

4. Опір постійному струму однієї жили кабелю UTP 2х2x0, 5 дорівнює 88 Ом на 1 кілометр, або 0, 088 Ом на один метр.

5. Довжина жили живлення до найдальшого сповіщувача(туди і назад)

складе 25, 7м ∙ 2 = 51, 4 м

Розрахуємо за законом Ома, які втрати напруги будуть в цьому кабелі при вказаних вище початкових даних:

U = J ∙ R = 0, 12 А∙ 51, 4 м ∙ 0, 088 Ом = 0, 54 В.

Таким чином, втрати в лінії живлення до найдальшого сповіщувача складуть 0, 95 вольта. Значить, до сповіщувача буде підведено наступну напругу: U =12В - 0, 54 В = 11, 45 В, де 12 B вихiдна напруга джерела живлення. Для бiльшостi сповiщувачiв нижнiй порiг робочої напруги дорівнює 9 вольтам. При можливих вiдхиленнях вихiдної напруги джерела живлення (в першу чергу в бiк зменшення) може призводити до нестiйкої роботи i помилкових спрацьовувань найбiльш вiддалених сповiщувачiв. У даному випадку для живлення сповiщувачiв вибраний правильний дрiт з великим перетином жили.

Початкові дані (система пожежної сигналізації):

1.Кількість сповіщувачів типу «СПД 3.5» - 23 шт.

2.Максимальний споживаний струм одним сповіщувачем - 12 c.

3.Загальний споживаний струм усіма сповіщувачами: 12 ∙ 23шт= =276 =0, 276 А.

4. Опір постійному струму однієї жили кабелю UTP 2х2x0, 5 дорівнює 88 Ом на 1 кілометр, або 0, 088 Ом на один метр.

5. Довжина жили живлення до найдальшого сповіщувача(туди і назад)

складе 26, 7м ∙ 2 = 53, 4м.

Розрахуємо за законом Ома, які втрати напруги будуть в цьому кабелі при вказаних вище початкових даних:

U = J ∙ R = 0, 276 А∙ 53, 4 м ∙ 0, 088 Ом = 0, 62 В.

Таким чином, втрати в лінії живлення до найдальшого сповіщувача складуть 1, 91 вольта. Значить, до сповіщувача буде підведено наступну напругу: U =12В – 0, 62 В = 11, 37 В, де 12 B вихiдна напруга джерела живлення. Для бiльшостi сповiщувачiв нижнiй порiг робочої напруги дорівнює 9 вольтам. При можливих вiдхиленнях вихiдної напруги джерела живлення (в першу чергу в бiк зменшення) може призводити до нестiйкої роботи i помилкових спрацьовувань найбiльш вiддалених сповiщувачiв. У даному випадку для живлення сповiщувачiв вибраний правильний дрiт з великим перетином жили.

 

3.6 Розрахунок вартостi пожежно охоронної-системи

 

У приміщенні знаходиться 4 (32 грн кожна) сирена Флейта М, 21 (72 грн кожен) датчик руху, з імунітетом домашніх тварин Crow SWAN-QUAD, 23 (43 грн кожен) датчик комбінований диму і тепла СПД 3.5, 9 (45 грн кожен) сповіщувач пожарний ручний " Тірас", 6 (59 грн кожен) сповіщувач охоронний точковий магнітоконтактний СО-102-15/1, 1 (695 грн) Прилад приймально-контрольний DSC, PC-1864H, 1 (738 грн) Клавіатура РКІ DSC, PK 5500. Загальна вартiсть пожежно-охоронної системи для приміщення становить: 3539 грн.

 

 
 
 



Поделиться с друзьями:

mylektsii.su - Мои Лекции - 2015-2026 год. (1.371 сек.)Все материалы представленные на сайте исключительно с целью ознакомления читателями и не преследуют коммерческих целей или нарушение авторских прав Пожаловаться на материал