Студопедия

Главная страница Случайная страница

КАТЕГОРИИ:

АвтомобилиАстрономияБиологияГеографияДом и садДругие языкиДругоеИнформатикаИсторияКультураЛитератураЛогикаМатематикаМедицинаМеталлургияМеханикаОбразованиеОхрана трудаПедагогикаПолитикаПравоПсихологияРелигияРиторикаСоциологияСпортСтроительствоТехнологияТуризмФизикаФилософияФинансыХимияЧерчениеЭкологияЭкономикаЭлектроника






Виды ЭЛОУ






 

На НПЗ Российской Федерации эксплуатируется ЭЛОУ трех основных типов в зависимости от типа электродегидраторов и характера их связи с нефтеперегонными установками.

Первый тип - отдельно стоящие электрообессоливающие установки,. На этих установках мощностью 0, 6-1, 2 млн.т/год обессоливание нефти осуществляют обычно в одну (реже в две) электрическую ступень в двенадцати вертикальных электродегидраторах объемом по 30 м3 каждый. Нагрев нефти осуществляют водяным паром. После ЭЛОУ нефть охлаждают, сбрасывают в промежуточный резервуар, откуда она сырьевым насосом подается на перегонку.

Второй тип - в основном двухступенчатые ЭЛОУ производительностью 2-3 млн.т/год. В состав ЭЛОУ входят шаровые электродегидраторы объемом 600 м3, по одному аппарату в ступени. На большинстве таких установок нагрев нефти осуществляют не водяным паром, а за счет тепла продуктов перегонки нефти. Обессоленная нефть после ЭЛОУ не охлаждается, а минуя промежуточный резервуар, поступает на прием сырьевого насоса.

Третий тип - двухступенчатые (иногда трехступенчатые) блоки ЭЛОУ, производительностью до 6 млн.т/год, в состав которых входят горизонтальные электродегидраторы, рассчитанные на давление до 1, 8 МПа и температуру до 160 °С. Здесь нагрев нефти осуществляют также за счет тепла продуктов перегонки.

 

 

2. Реагентное хозяйство. Назначение, оборудование для дозирования реагена.

 

Блок реагентного хозяйства (БРХ) предназначен для дозированного ввода жидких деэмульгаторов в приемные трубопроводы системы подготовки нефти с целью осуществления внутритрубной деэмульсации нефти.

БРХ представляет собой блок:

- расходную емкость V=1, 2 м3 для хранения и подогрева реагента с помощью вмонтированного электронагревателя;

- насос дозировочный (НД) осуществляющий непрерывное объемное дозирование деэмульгатора.

- насос шестеренчатый, осуществляющий заполнение расходной емкости реагентом.

В расходную емкость реагент закачивается шестеренчатым насосом с бочек. Из емкости реагент поступает на вход сепараторов. Указатель уровня реагента в емкости выведен в блок насосов. Расход реагента в зависимости от расхода нефти, ее температуры и качества, режима работы отстойников регулируется изменением длины хода плунжера насоса - дозатора. Управление насосом и вентилятором осуществляется со щита автоматики, расположенного в приборном отсеке.

Контроль за давлением на выкиде НД осуществляется электроконтактным манометром ЭКМ.

БРХ оснащен вытяжной вентиляцией, пожарной сигнализацией, масляными обогревателями во взрывозащищенном исполнении для работы в зимнее время. Для контроля загазованности установлены стационарные сигнализаторы СТМ, поверены метано-воздушной смесью 2, 14%.

 

 

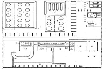
План реагентного хозяйства

 

Реагентное хозяйство состоит из:

1. Ингибитор коррозии

2. Деэмульгатор

3. Моноэтаноламина

4. Щелочи

5. Раствор соды

6. Помещение для хранения аммиака

7. Насосная взрывоопасныхреагентов

8. Насосная невзрывоопасных реагентов

9. Компрессорная аммиака

10. Сливная эстакада

11. Сливный стояки для аммиака

12. Склад бочек

13. Навес для бочек

14. Склад соды

 

 

3. Средства индивидуальной защиты, используемые при работе с газом, нефтью и нефтепродуктами. Их назначение.

Основным назначением спецодежды, спецобуви и других средств индивидуальной защиты является защита работающих от неблагоприятных воздействий внешней среды. Спецодежда и спецобувь должны защищать тело человека от различных механических воздействий, термических и химических ожогов, от вредных влияний паров жидкостей и газов, от загрязнений, сырости и т.д. Правильно подобранная для соответствующих условий спецодежда способствует предупреждению травм и профзаболеваний. Спецодежда, спецобувь и защитные приспособления выдаются в ТПП по Типовым нормам бесплатной выдачи спецодежды, спецобуви и других средств индивидуальной защиты работников ОАО «Нефтяная компания «ЛУКОЙЛ».

Персоналу ДНС выдается: костюм нефтяника зимний и летний, сапоги, валенки, шапка, рукавицы. Для производства земляных работ и работ на высоте выдаются монтажные пояса, защитные каски. Для защиты органов дыхания от вредных паров и газов используются фильтрующие противогазы марки " А", которые выдаются каждому работнику цеха. Имеется также аварийный комплект шланговых противогазов ПШ-1 и ПШ-2, которые используются при ремонтных работах в аппаратах, резервуарах или колодцах, проведении газоопасных работ.

Спецодежда. Защитные свойства спецодежды определяются тканями, из которых ее изготавливают. К тканям для рабочих нефтяной промышленности предъявляются следующие основные требования: хорошие теплозащитные свойства, воздухопроницаемость, малая влагоемкость и нефтенепроницаемость.

Для пошива спецодежды используют различные ткани. Иногда применяют ткани, пропитанные специальными составами. Большое значение имеет покрой спецодежды. Спецодежда не должна стеснять движений рабочего во время работы, должна быть удобной. Разработаны комплекты зимней и летней спецодежды для нефтяников. Она предназначена для защиты рабочих от нефти, нефтепродуктов, технологических жидкостей (водные растворы солей, щелочей, глины, цемента) и от холода.

Спецобувь предназначена для предохранения ног от механических повреждений и от опасностей и вредностей производства (действия воды, кислот, от порезов и т. п.). Кроме того, обувь должна быть теплой и удовлетворять гигиеническим требованиям. Материал для подошвы должен быть прочным, эластичным, обладать теплопроводностью и максимальной водоупорностью. Материал для верхней части обуви должен отличаться теплопроводностью и прочностью.

Головные уборы (каски) предназначены для защиты головы от механических повреждений. Разработаны каски, предохраняющие головы работающих от механических повреждений, а также от поражения электрическим током, от холода и атмосферных осадков. В летнее время года каски используют с летней внутренней оснасткой и пелериной. Зимой летнюю оснастку заменяют теплым

регулируемым подшлемником.

Во время работы рабочие обязаны пользоваться выданной им спецодеждой, спецобувью и индивидуальными средствами защиты. Персонал, обслуживающий механизмы, обязан носить спецодежду в застегнутом виде, должен убирать длинные волосы под головной убор или косынку. Запрещается носить кашне и платки со свисающими концами.

Для работы с реагентами на ДНС находится комплект спецодежды: очки защитные, фартук прорезиненный, перчатки резиновые.

При проведении работ в запыленных зонах и помещениях используются респираторы различного типа в зависимости от источника загрязнения воздуха.

Специфические особенности спецодежды, применяемой в цехе, определяются тем, что предприятие находится в суровой климатической зоне, приравненной к районам Крайнего Севера.

БИЛЕТ 4

1. Установка стабилизации. Назначение. Принципиальная схема работы.

Стабилизация нефти основана на сочетании процессов испарения и конденсации. Поэтому основное оборудование установок стабилизации нефти — это нагреватели и печи, теплообменники и конденсаторы-холодильники, сепараторы и колонные аппараты (абсорберы, ректификационные колонны и др.).

схема устройства ректификационной колонны. Колонна состоит из вертикального цилиндрического корпуса с опорой, которой она устанавливается на фундамент и закрепляется к нему фундаментными болтами. Сверху и снизу корпус колонны закрыт эллиптическими днищами. Колонна имеет люки. Внутри колонны смонтированы ректификационные тарелки, улитка, отбойник, гидравлический затвор, паровой маточник. Колонны снабжены штуцерами: ввода сырья, для отвода целевых паров в конденсатор-холодильник, откачки стабильной нефти, ввода холодного орошения, отбора боковых погонов.

Основной элемент ректификационных колонн и тарельчатых абсорберов — это тарелки. Элементы контактных устройств барботажных тарелок колпачковых, клапанных, ситчатых (отверстия в полотне тарелок) создают движение пара в слое жидкости почти в вертикальном направлении. Среди барботажных тарелок можно выделить тарелки со стесненным и свободным зеркалом барботажа. В тарелках со стесненным зеркалом барботажа часть поверхности жидкости (50—75%) занята устройствами для ввода пара в жидкость (колпачками).

В тарелках со свободным зеркалом барботажа устройства для ввода пара в жидкость размещены практически на одном уровне с полотном тарелки (отверстия, клапаны, язычки и т. п.). Поэтому площадь для выхода пара из жидкости составляет 70—90 % рабочей площади тарелки.

 

2. Подготовка пластовых и сточных вод в РВС. Требования, предъявляемые к качеству подготовки.

Сточные воды, используемые в целях поддержания пластового давления состоят на 85 – 90 % из добытой пластовой воды. В нефтедобывающей промышленности применяются как специально разработанные методы подготовки сточных пластовых вод, так и заимствованные из смежных отраслей, применяющих крупнотоннажные системы очистки воды.

Наиболее часто применяют следующие методы:

· отстаивание воды;

· фильтрование воды через пористые или иные среды;

· флотация;

· коалесценция;

· центробежное разделение;

· диспергирование;

· удаление примесей поглотителями;

 

В качестве технических средств для отстаивания воды используют резервуары отстойники, нефтеловушки, пескоотделители и пруды-отстойники.

Резервуары – отстойники обеспечивают очистку отсойной воды по герметизированной схеме. В зависимости от производительности, качества сырья и требований к очищенной воде применяют резервуары различной вместимости (от 200 до 5 000 м 3)с разнообразной начинкой и обвязкой. Выбор и расчет резервуаров проводится исходя из времени отстаивания воды в течение 8 – 16 часов. Процесс очистки может производится в циклическом или непрерывном режиме. Обвязка водоочистных резервуаров большей частью последовательная.

 

 

1– корпус резервуара – отстойника; 2 – трубопровод подачи загрязненной воды; 3 – трубопровод отвода уловленной нефти; 4 – кольцевой короб сбора уловленной нефти; 5 - лучевой распределитель ввода загрязненной воды; 6 – сифонный регулятор для поддержания уровня раздела фаз «нефть -вода» и отвода очищенной воды; 7 – трубопровод подачи воды для размыва осадка; 8 – трубопровод отвода шлама.

Для обеспечения надлежащей приемистости водонагнетательных скважин, выполнения задач поддержания пластового давления и повышения нефтеотдачи к нагнетаемой воде предъявляются следующие основные требования.

1. Вода не должна вступать в химическую реакцию с пластовыми водами, так как при этом может происходить выпадение осадка и закупорка пор пласта.

Количество механических примесей в воде должно быть небольшим, так как это может приводить к засорению призабойной зоны пласта и потере приемистости воды скважинами.

2.Вода не должна содержать примесей сероводорода и углекислоты, вызывающих коррозию наземного и подземного оборудования.

При использовании для нагнетания воды поверхностных источников она должна подвергаться обработке на биологическую очистку от микроорганизмов и спор водорослей. Попадая вместе с нагнетаемой водой в поры пласта, микроорганизмы и споры водорослей могут оказаться в благоприятных температурных условиях для размножения, что приведет к закупорке пор пласта. Особую опасность представляет попадание в поры пласта анаэробных бактерий, способных восстановить серу из ее соединений в минералах, составляющих пласт. Это обусловливает появление в пластовых водах сероводорода со всеми вытекающими из этого неблагоприятными последствиями -- сероводородная коррозия подземного оборудования, засорение нефти и газа сероводородом и т. д.

3. Нагнетаемая вода не должна вызывать разбухание глинистых пропластков внутри объекта разработки и глинистых частиц цементирующего материала пласта. Это может привести к закупорке пор и разрушению призабойной зоны скважины с нарушением целостности эксплуатационной колонны. Вопрос взаимодействия воды с глинами пласта изучается на стадии подготовки геолого-промысловых материалов по месторождению и проектированию разработки. Тогда же отрабатываются мероприятия по подготовке воды, не приводящие к разбуханию глин.

4. Нагнетаемая вода должна обладать хорошей способностью отмывать нефть от породы. Это достигается добавлением к воде поверхностно-активных веществ.

3. Фильтрующие и изолирующие противогазы, их устройство и назначение.

Противогазы, средство защиты органов дыхания, лица и глаз человека от вредных веществ, находящихся в атмосфере в виде паров, газов и аэрозолей.

В зависимости от принципа действия различают фильтрующие и изолирующие противогазы В фильтрующем противогазы наружный зараженный воздух очищается от содержащихся в нем вредных примесей и затем поступает в органы дыхания. Выдыхаемый воздух удаляется наружу. Очистка атм. воздуха основана на сорбции (поглощении парови газов) и фильтрации (удержании частиц аэрозоля). Как более простые по устройству фильтрующие противогазы получили наибольшее распространение.

В изолирующем противогазы органы дыхания, лицо и глаза изолированы от окружающей зараженной атмосферы. Дыхание обеспечивается подачей дыхательной смеси из индивидуальных источников воздухоснабжения или подачей воздуха, пригодного для дыхания, из чистой зоны. Выделяющийся в процессе дыхания СО2 поглощается в спец. патроне или выбрасывается в атмосферу.

 

Фильтрующие противогазы По назначению современные фильтрующие противогазы подразделяются на войсковые, гражданские и промышленные. Войсковые и гражданские противогазы предназначены для защиты от радиоактивнойпыли. ОВ и бактериальных аэрозолей; промышленные противогазы - от вредных примесей на производстве. Общий вид войскового и гражданского фильтрующего противогазы

Рис. 1. Фильтрующий противогаз. 1-фильтрующе-поглощающая коробка; 2 - лицевая часть противогаз.; 3 - очковый узел; 4-шихга; 5-ПАФ; 6-кла- панная коробка.

Изолирующие противогазы обеспечивают наибольшую универсальную защиту органов дыхания человека; их применяют в условиях недостатка в атмосфере кислорода или чрезвычайно ее высокой загазованности, а также при неизвестном составе загрязняющих воздух примесей.

Различают изолирующие противогазы на основе сжатого О2 и сжатого воздуха (в баллонах); на основе химически связанного О2 - использование препаратов, выделяющих О2 при взаимодействии с СО2 и Н2О, находящихся в выдыхаемом воздухе; шланговые изолирующие противогазы, в которых воздух для дыхания забирается из чистой зоны.

В состав комплекта изолирующего противогаза на основе сжатого О2 входят: баллон с кислородом, находящимся под давлением 150 атм (14, 7 МПа), патрон с поглотителем выдыхаемого СО2, дыхательный мешок объемом около 5 л, редукционный вентиль, обеспечивающий равномерную подачу О2 в дыхательный мешок 3, лицевая часть 1. Основные части противогаза смонтированы в металлическом корпусе.

Продолжительность пользования противогаза 1-2 ч. В изолирующем противогазе на основе сжатого воздуха выдыхаемый воздух сбрасывается в атмосферу.

В изолирующем противогазе, основанном на химически связанном О2, реализуется " маятниковое дыхание". При выдохе воздух, содержащий избыток паров Н2О и СО2, поступает в регенеративный патрон, снаряженный кислородсодержащими соединениями.

Воздух, обогащенный О2, поступает в дыхательный. мешок 3, из него - в органы дыхания. Продолжительность пользования одним регенеративным патроном зависит от физической нагрузки, выполняемой человеком, и может составлять от 1 до 5 ч.

 

БИЛЕТ 5

1. Установка подготовки нефти. Назначение. Принципиальная схема.

Установка подготовки нефти (УПН) предназначена для сбора и подготовки водонефтяной эмульсии, поступающей со скважин месторождений. УПН также используется для подготовки подтоварной и пластовой воды с ее дальнейшей закачкой в пласт для поддержания пластового давления.

Комплекс УПН может включать в себя:

  • Нефтегазосепаратор
  • Установки дозирования химреагентов
  • Путевой подогреватель
  • Трехфазный сепаратор
  • Отстойник нефти
  • Электродегидратор
  • Газосепаратор (горизонтальный или вертикальный)
  • Блок насосов
  • Блок подготовки газа
  • Операторный и бытовые помещения
  • Прочее технологическое оборудование
  • Оборудование АСУ ТП УПН

2. Принцип работы электродегидратора.

Электродегидратор типа 1ЭГ-160 (рис. 2.12) представляет собой горизонтальную цилиндрическую емкость, в которой имеется два электрода I в форме решетчатых прямоугольных рам, подвешенных параллельно и занимающих почти все горизонтальное сечение аппа­рата. Расстояние между электродами может изменяться от 20 до 40 см. Электроды через подвесные проходные изоляторы 3 под­соединены к высоковольтным выводам двух трансформаторов 5 типа ОМ-66/35 мощностью по 50 кВА. Каждый установлен наверху технологической емкости. Напряжение между электродами может иметь значения 11, 33 и 44 кВ. Для ограничения величины тока и защиты электрооборудования от короткого замыкания в цепь пер­вичной обмотки трансформаторов включены реактивные катушки 4 типа РОС-50/05, которые обладают большой индуктивностью, поэтому при возрастании тока происходит перераспределение напряжений, и разность потенциалов между электродами уменьшается. Реактивные катушки установлены наверху технологической емкости рядом с трансформаторами. Нагретая нефтяная эмульсия I, содержащая деэмульгатор и до 10% пресной воды, поступает через два распределителя эмульсии 6 под слой отделившейся воды и поднимается вверх. После перехода через границу раздела вода - нефть нефтяная эмульсия попадает сначала в зону низкой напряженности электрического поля, образующейся между нижним электродом и поверхностью отделившейся воды, затем в зону высокой напряженности между верхним и нижними электродами.

 

 

Под действием электрического поля капли воды, содержащиеся в нефти, поляризуются, взаимно притягиваются друг к другу, коалесцируют, укрупняются и осаждаются. Обезвоженная и обессоленная нефть II выводится сверху аппарата через сборник нефти 2, а отделившаяся вода III — снизу.

 

3. Правила подготовки аппаратов и оборудования к ремонту.

Ремонт резервуаров с огневыми работами разрешается проводить только после полной очистки резервуара от остатков нефтепродуктов, дегазации его, при обеспечении пожарной безопасности рядом расположенных резервуаров (освобождение от нефти и нефтепродуктов соседних резервуаров с надежной герметизацией их, уборка разлитого продукта с засыпкой песком замазученных мест, надежная герметизация канализации, отглушение всех коммуникаций и т. п.) и наличии письменного разрешения главного инженера предприятия, согласованного с пожарной охраной.

Очистку резервуаров от остатков нефтепродуктов должны выполнять рабочие, прошедшие медицинское освидетельствование, в установленном порядке под руководством инженерно-технических работников. Ответственный за подготовку должен руководствоваться специально разработанными инструкциями по очистке и дегазации резервуара, утвержденными главным инженером.

Концентрацию паров углеводородов внутри резервуара, освобожденного от жидкого продукта, следует снизить до значения, меньшего нижнего предела взрываемости, используя систему естественной и принудительной вентиляции.

Для осуществления естественной вентиляции открывают люки на крыше и в нижних поясах стенки. При этом более тяжелые по отношению к воздуху углеводороды выходят из резервуара через нижние люки, а атмосферный воздух поступает внутрь резервуара через верхние люки. Естественная вентиляция более эффективна в высоких вертикальных резервуарах.

Наилучший способ очистки резервуаров большого объема от тяжелых остатков отложений, которые могут содержать значительные количества легких углеводородов и создавать реальную угрозу взрыва и пожара, — промывка их моющими растворами типа МЛ, подаваемыми специальными моечными машинками струями под напором 0, 8—1, 2 кПа. Одновременно с промывкой резервуара от тяжелых остатков происходит и его дегазация.

Моечная машинка должна надежно заземляться, а струи очищающей жидкости для уменьшения силы удара и разбрызгивания нужно направлять под небольшим углом к поверхности.

Если на днище резервуара остается часть продукта, то резервуар необходимо заполнить водой выше уровня задвижки и всплывший продукт откачать.

Пропарку резервуаров небольшого объема следует вести при одном открытом верхнем люке. Во время пропаривания внутри резервуара поддерживается температура около 60—70 °С.

Пар следует направлять через нижний люк по шлангу, выходное отверстие которого должно быть расположено на расстоянии 1/4 диаметра резервуара по направлению к центру последнего. Металлические наконечники резиновых шлангов и паропроводы заземляют для отвода зарядов статического электричества. Наконечники шлангов изготовляют из цветного металла.

Очистка резервуаров от остатков сернистых нефтепродуктов с пирофорными осадками проводится в соответствии с инструкцией по борьбе с пирофорными соединениями при эксплуатации и ремонте нефтезаводского оборудования.

Перед началом работ по очистке, осмотру и ремонту рабочие проходят инструктаж о правилах безопасного ведения работ и методах оказания первой помощи при несчастных случаях.

Состав бригады и отметка о прохождении инструктажа заносятся в наряд-допуск лицами, ответственными за проведение подготовительных и ремонтных работ. Рабочие, не прошедшие инструктаж, к работе не допускаются. Без оформленного наряда-допуска на производство работ и разрешения начальника цеха приступать к очистке, осмотру и ремонтным работам не разрешается.

Рабочие, выполняющие работу внутри резервуара, должны быть обеспечены спецодеждой и обувью без металлических гвоздей и подковок. При работах по очистке рабочие обязаны быть в шланговых противогазах. При необходимости использования противогазов со шлангами длиннее 10 м требуется применять противогазы с принудительной подачей воздуха.

Срок единовременного пребывания рабочего в шланговом противогазе определяется лицом, ответственным за проведение очистных и ремонтных работ в резервуаре, и записывается в наряде-допуске. Этот срок не должен превышать 30 мин с последующим отдыхом не менее 15 мин. Открытый конец приемного воздушного шланга противогаза должен закрепляться в заранее выбранном месте в зоне чистого воздуха. Рабочие, находящиеся внутри и снаружи резервуара, должны следить, чтобы шланг не имел изломов и крутых изгибов.

Поверх спецодежды должен быть надет спасательный пояс с крестообразными лямками и прикрепленной к нему сигнальной веревкой. Выведенный из люка конец сигнальной веревки длиной не менее 5 м должен быть в руках наблюдающего рабочего, который, подергивая ее и подавая голос, обязан периодически удостоверяться в нормальном самочувствии рабочего, находящегося внутри. В случае необходимости наблюдающий должен вытащить пострадавшего наружу.

Наблюдающий рабочий обеспечивается спецодеждой и защитными средствами, как и работающий внутри резервуара. Он должен знать правила спасения работающего и оказания первой доврачебной помощи пострадавшему. Работы внутри резервуара в отсутствие наблюдающего рабочего не должны проводиться. Ответственный за проведение очистных и ремонтных работ в резервуаре обязан систематически наблюдать за их ходом, контролировать соблюдение правил безопасности и самочувствие рабочих.

Для предотвращения искрообразования при работе в резервуаре до его полной дегазации разрешается применять только омедненный инструмент, деревянные лопаты, жесткие травяные щетки и т. п. Аккумуляторные фонари взрывобезопасного исполнения напряжением не выше 12 В необходимо включать до входа в резервуар и выключать после выхода из него.

БИЛЕТ 6

1. Назначение и принципиальная схема дожимной насосной станции.

Дожимная насосная станция

В тех случаях, когда расстояние от кустов скважин до ЦПС велико, а устьевого давления недостаточно для перекачки флюидов, сооружают ДНС. На ДНС смесь попадает по нефтесборным трубопроводам после ГЗУ.

Сооружение ДНС необходимо потому, что насосное оборудование не позволяет перекачивать смеси с большим содержанием газа из-за возникновения кавитационных процессов. Газ, отделившийся в результате снижения давления на первой ступени сепарации, чаще всего подается на факел сжигания или для использования на местные нужды. Нефть и вода с растворенным оставшимся газом поступают в сепараторы второй ступени на ЦПС и УПН.

 

2.Блочное оборудование установок подготовки нефти. Преимущества блочных установок.

 

Блочные автоматизированные установки для сбора и подготовки нефти и газа (УПНиГ) предназначены для предварительного разделения добываемой продукции на нефть, газ и пластовую воду непосредственно в районе нефтедобывающих скважин с последующей очисткой, замером, откачкой продукции по трубопроводу, а также для окончательной подготовки нефти до товарного качества. Блочные установки подготовки газа также обеспечивают подготовку попутно добываемого газа до требуемых норм для последующего сбора и перекачки до газоперерабатывающих заводов.

Комплектность

 

В зависимости от физико-химических свойств и качества конечной продукции, Блочные Установки Подготовки Нефти и Газа (УПНиГ) комплектуются следующим оборудованием:

- нефтегазовый сепаратор;

- трехфазный сепаратор;

- нагреватель нефти;

- аппарат подготовки пластовой воды;

- газовый сепаратор;

- блок насосной откачки нефти;

- блок насосной перекачки воды;

- блочная кустовая насосная станция;

- оперативный узел учета нефти;

- блок коммерческого учета нефти;

- факельная установка;

- буферные и дренажные емкости;

- резервуары;

- блок ЩСУ;

- операторная;

- химико-аналитическая лаборатория;

- система современных средств автоматизации;

Преимущества блочных установок: сосредоточенность всего оборудования в одном месте, облегчает обслуживание установки, удобство в контроле и автоматизации установки.

3. Требования к организации труда, подготовке и аттестации работников.

Подготовка и аттестация специалистов в области промышленной безопасности проводится в объеме, соответствующем их должностным обязанностям.

Первичная аттестация специалистов проводится не позднее одного месяца с момента назначения на должность, при переводе на другую работу, трудоустройству в организацию, поднадзорную Ростехнадзору.

Периодическая аттестация специалистов проводится не реже одного раза в пять лет, если другие сроки не предусмотрены иными нормативными правовыми актами.

Проверка знаний у рабочих должна проводиться не реже одного раза в 12 месяцев в соответствии с квалификационными требованиями производственных инструкций и/или инструкции по данной профессии.

Специалисты, привлекаемые к работам по диагностике состояния сооружений, оборудования и других технических средств, должны пройти проверку знаний и получить право на ведение таких работ.

Аттестация сварщиков, привлекаемых к ремонтным работам на ОПО на нефтяных и газовых месторождениях, а также к строительству и ремонту промысловых нефтегазоконденсатопроводов, должна проводиться в соответствии с Правилами аттестации сварщиков и специалистов сварочного производства, утвержденными постановлением Госгортехнадзора России от 30 октября 1998 г. N 63 (зарегистрировано Минюстом России 4 марта 1999 г., регистрационный N 1721); с изменениями, внесенными приказом Ростехнадзора от 17 октября 2012 г. N 588 (зарегистрирован Минюстом России 23 октября 2012 г., регистрационный N 25903); Технологическим регламентом проведения аттестации сварщиков и специалистов сварочного производства, утвержденным постановлением Госгортехнадзора России от 25 июня 2002 г. N 36 (зарегистрировано Минюстом России 17.07.2002, регистрационный N 3587); с изменениями, внесенными приказом Ростехнадзора от 17 октября 2012 г. N 588 (зарегистрирован Минюстом России 23 ноября 2012 г., регистрационный N 25903).

Работники должны владеть приемами оказания доврачебной помощи пострадавшим при несчастных случаях.

К руководству и ведению работ по бурению, освоению, ремонту и реконструкции скважин, ведению геофизических работ в скважинах, а также по добыче и подготовке нефти и газа допускаются лица, имеющие профессиональное образование по специальности и прошедшие проверку знаний в области промышленной безопасности.

Работники, осуществляющие непосредственное руководство и выполнение работ по бурению, освоению, ремонту и реконструкции скважин, ведению геофизических и прострелочно-взрывных работ на скважинах, раз в 2 года должны дополнительно проходить проверку знаний по курсу " Контроль скважины. Управление скважиной при ГНВП". Данное требование не распространяется в отношении работников, осуществляющих авторский надзор и научное сопровождение внедрения технологических процессов, технических устройств и инструмента.

Работники комплексных бригад при необходимости выполнения работ, требующих совмещения профессий, должны пройти обучение и получить соответствующую классификацию по видам выполняемых работ, а также иметь допуски к самостоятельной работе по совмещаемым профессиям.

Работники, прибывшие на ОПО для работы, должны быть ознакомлены с правилами внутреннего распорядка, характерными опасными и вредными производственными факторами и признаками их проявления, действиями по конкретным видам тревог, другими вопросами, входящими в объем вводного инструктажа. Сведения о проведении инструктажа фиксируются в специальных журналах с подтверждающими подписями инструктируемого и инструктирующего.

Специалисты и рабочие должны быть ознакомлены с перечнем газоопасных мест и работ и соответствующими инструкциями.

Работы на ОПО, связанные с освоением месторождений, в продукции которых содержится сернистый водород, другие вредные вещества, должны осуществляться в соответствии с требованиями нормативных правовых актов, регулирующих деятельность в условиях возможности появления сернистого водорода в воздушной среде. На этих объектах работники должны быть обеспечены изолирующими дыхательными аппаратами, лечебно-профилактическим питанием, средствами и препаратами для оказания первой медицинской помощи.

В ПЛА этих объектов должны быть установлены места " островков" безопасности, порядок эвакуации с учетом конкретных метеоусловий.

При содержании в продукции месторождений свыше 6 (объемных) % сернистого водорода следует руководствоваться требованиями глав XLVI - LV настоящих Правил.

Персонал должен быть ознакомлен с соответствующими инструкциями и разделами ПЛА.

Знание ПЛА проверяется во время учебных тревог и учебно-тренировочных занятий с персоналом объекта, проводимых по графику, утвержденному техническим руководителем ОПО, но не реже одного раза в месяц.

 

БИЛЕТ 7

1. Виды сепараторов. Конструкция и назначение сепаратора НГС.

НЕФТЕГАЗОВЫЙ СЕПАРАТОР— предназначен для отделения нефтяного газа от нефти на нефтяном промысле. Нефтегазовые сепараторы различаются геометрической формой (цилиндрическая, сферическая) и положением в пространстве (вертикальные, горизонтальные), характером проявления основных сил (гравитационные, инерционные и центробежные — т.н. гидроциклонные), величиной рабочего давления (низкого давления до 0, 6 МПа, среднего — 0, 6-2, 5 МПа и высокого — более 2, 5 МПа) и количеством разделяемых фаз (двух- и трёхфазные, в последнем случае кроме разделения нефти и газа происходит также отделение от нефти свободной пластовой воды, которая добывается попутно с нефтью).

Конструкция сепаратора

Внешне нефтегазовые сепараторы выполнены в виде емкости, которая в двух сторон имеет округлые днища, к которым подведены функциональные патрубки.

Конструкции сепараторов условно подразделяются на два основных и два вспомогательных типа:

· тип I имеют узлы предварительного отбора газообразных веществ (дополнительно оснащены депульсаторами);

· тип I-П с узлами предварительного отбора газов (имеют пеногасящую насадку);

· тип II применяется без узлов предварительного отбора газов;

· тип II-П не имеют узлов предварительного отбора газов, но оснащены пеногасящей насадкой.

2. Порядок обслуживания установок подготовки нефти. Преимущества блочных установок.

Персонал, обслуживающий установки, обязан знать их схему и назначение всех аппаратов, трубопроводов, арматуры, контрольно-измерительных приборов и средств автоматики.

Во время работы установки необходимо обеспечить контроль за всеми параметрами технологического процесса (давлением, температурой, уровнем продукта и т. д.).

Показания контрольно-измерительных приборов, находящихся на щите в операторной (давление, уровень и др.), должны периодически проверяться дублирующими приборами, установленными непосредственно на аппаратах.

Все аппараты и емкости, под давлением выше 0, 7 ати, должны эксплуатироваться в соответствии с «Правилами устройства и безопасной эксплуатации сосудов, работающих под давлением».

Запрещается эксплуатация аппаратов, емкостей и оборудования при неисправных предохранительных клапанах, отключающих и регулирующих устройствах, при отсутствии и неисправимости контрольно-измерительных приборов и средств автоматики.

Обслуживающий персонал обязан строго следить за исправностью аппаратов, оборудования и контрольно-измерительных приборов.

При обнаружении пропусков в аппаратах, оборудовании, трубопроводах и арматуре для предотвращения воспламенения вытекающих нефти и нефтепродукта необходимо немедленно подать водяной пар к месту пропуска и выключить аппарат из работы или остановить установку.

В случае загазованности участка на границе его необходимо вывесить предупредительные надписи: «Не входить», «Газоопасно».

Запрещается производить какие-либо работы, связанные с ударами, подтяжкой, креплением болтов и шпилек на аппаратах и трубопроводах, находящихся под давлением, а также производить набивку и подтяжку сальников на работающих насосах.

Запрещается работать с низким (аварийным) уровнем продуктов в аппаратах и емкостях, питающих горячие насосы.

Установка должна быть аварийно остановлена согласно плану ликвидации аварии в случае прекращения подачи газа, сырья, пара, воды, электроэнергии, воздуха, разрыва коммуникаций и аппаратуры, прогара труб змеевика печи, а также в случае аварии на расположенной рядом установке или объекте.

Преимущества блочных установок: сосредоточенность всего оборудования в одном месте, облегчает обслуживание установки, удобство в контроле и автоматизации установки.

 

3. Правила ведения огневых работ. Подготовка аппаратов, оборудования к проведению сварочных работ.

Перед началом временных огневых работ непосредственные исполнители (электро- и газосварщики, газо- и бензорезчики и т.д.) должны получить от лица, ответственного за проведение огневых работ, инструктаж с фиксацией в разрешении под расписку о мерах по взрывопожаробезопасности и путях эвакуации на конкретном месте ведения огневых работ.

Допуск на проведение огневых работ должно осуществлять лицо, ответственное за проведение огневых работ, после приемки оборудования от лица, ответственного за подготовку к огневым работам, проверки вместе с исполнителем подготовки места работы, состояния сварочной аппаратуры (оборудования) и коммуникаций в соответствии с требованиями взрывопожаробезопасности. При этом ответственное лицо за проведение огневых работ передает исполнителю утвержденное разрешение.

Разрешение на весь период проведения сварочных работ, а также в случае их продолжения, на другую смену, вместе с квалификационным удостоверением и талоном по технике пожарной безопасности должны постоянно находиться у непосредственного исполнителя огневых работ.

В период проведения огневых работ ответственным лицом за проведение огневых работ должен быть установлен систематический контроль за соблюдением исполнителями огневых работ мер взрывопожаробезопасности и техники безопасности.

Ответственный за огневые работы и начальник цеха (заместитель начальника цеха) перед возобновлением огневых работ (после перерыва) и перед началом продленных огневых работ должны проверять состояние места проведения огневых работ и оборудования.

При проведении огневых работ запрещается:

а) допускать к огневым работам учеников и других лиц, не сдавших испытаний по сварочным и газопламенным работам и не получивших удостоверения и талоны в результате проверочных испытаний в знании требований взрывопожаробезопасности;

б) приступать к работе и работать с неисправной аппаратурой;

в) вскрытие люков и крышек, удары по металлическим бункерам, пылеуловителям, воздуховодам аспирации, продуктопроводам, различному оборудованию и т.п.; проведение работ по уборке помещений, а также другие операции, которые могут привести к возникновению пожаров и взрывов из-за запыленности мест проведения огневых работ;

г) нахождение в помещении опасных зон, где проводятся временные огневые работы обслуживающего персонала, не связанного с их проведением

д) производство сварки, резки или пайки свежеокрашенных конструкций и изделий до полного высыхания краски;

е) пользование одеждой и рукавицами со следами масел, жиров, бензина, керосина и других горючих жидкостей;

ж) соприкосновение электрических проводов с баллонами со сжатым, сжиженным газом;

з) производство сварки, резки, пайки или нагревание открытым огнем аппаратов и коммуникаций, заполненных продуктом или пылью, а также находящимися под давлением негорючими жидкостями, газами (парами) и воздухом или под электрическим напряжением;

и) выполнение огневых работ вблизи легковоспламеняющихся материалов;

к) сбрасывание на (под) землю оборудования, сооружений и их элементов, демонтируемых посредством электро- иди газорезательных работ (должно быть предусмотрено их плавное опускание);

л) перекручивание, заламывание или зажатие газоподводящих шлангов, использование в работе неисправных шлангов (с подмоткой изоляционной лентой иди другим материалом), а также шлангов, неплотно присоединенных к аппарату, редуктору, горелке;

м) использование в качестве обратного провода сети заземления или зануления металлических конструкций зданий, коммуникаций и технологического оборудования;

н) питание электрической дуги непосредственно от распределительной сети (оно должно осуществляться через сварочный трансформатор или от сварочного генератора и выпрямителя);

о) подвергать ударам баллоны, заполненные кислородом, и допускать их падение;

Используемое сварочное оборудование и электродные материалы должны отвечать требованиям действующих стандартов. Применение электродов и электрододержателей незаводского изготовления запрещается.

Каждая партия электродов должна иметь сертификат или паспорт.

При отсутствии этих документов пользоваться электродами запрещается.

Электросварочные работы должны производиться с применением двух проводов. Обратный провод от свариваемого изделия до источника тока выполняется изолированным, не уступающим по качеству изоляции прямому проводу, присоединяемому к электрододержателю.

При смене электродов в процессе сварки их остатки (огарки) следует выбрасывать в специальный металлический ящик, устанавливаемый у места сварочных работ.

Огневые работы должны быть немедленно прекращены при обнаружении отступлений от требований взрывопожаробезопасности, настоящей Инструкции, несоблюдении мер безопасности, предусмотренных разрешением, возникновении опасной ситуации, а также по первому требованию инженера по технике безопасности, начальника смены, начальника цеха, ответственного за проведение огневых работ, представителей Госпожнадзора, Госгортехнадзора, Рострудинспекции, начальников охраны и ДПД предприятия.

 

К подготовительным работам относятся все виды работ, связанные с подготовкой помещений и рабочего места (оборудования, коммуникаций, конструкций и т.п.) к проведению огневых работ.
Оборудование и коммуникации, на которых должны проводиться сварочные работы, необходимо освободить от продукта и тщательно очистить изнутри и снаружи от пыли (с использованием при необходимости водяных струй или эмульсии с 2% раствором пенообразователя). При этом труднодоступные для очистки места рекомендуется заполнять воздушномеханической пеной средней кратности (порядка 50-100).
Все емкости и коммуникации, непосредственно связанные с местом проведения сварочных работ, также должны быть очищены от пыли.
Методы очистки от пыли помещений, а также оборудования и коммуникаций, на которых проводятся огневые работы, не должны приводить к образованию пылевоздушных смесей и появлению источников зажигания.
Воздуховоды, продуктопроводы и другие коммуникации, связывающие место проведения огневых работ с другим оборудованием, должны быть перекрыты с помощью технологических задвижек, огнепреградителей, заглушек, мокрой мешковины и т.д.
На месте огневых работ должны быть приняты меры по предотвращению возможности разлета искр за пределы настила из мокрой мешковины особенно в проемы междуэтажных перекрытий, приемные отверстия машин и аспирационных сетей нижележащих этажей с использованием специальных металлических экранов или других приспособлений.
Место проведения огневых работ должно быть обеспечено необходимыми средствами пожаротушения (огнетушителями, ящиками с песком и лопатой, ведром с водой и др.). При этом, если вблизи от места ведения огневых работ имеется кран внутреннего пожарного водопровода, напорный рукав со стволом должен быть присоединен к крану и доставлен к месту работы, а в пожарный водопровод подана вода.


БИЛЕТ 8

1. Электродегидраторы. Назначение и устройство. Принцип работы.

Электродегидратор представляет собой горизонтальный цилиндрический аппарат, устанавливаемый на двух седловых опорах, оснащенный штуцерами для входа эмульсии, выхода нефти, выхода воды, необходимыми технологическими штуцерами и штуцерами для КИПиА, предназначенный для обессоливания нефти на блоке ЭЛОУ.

В нижней части корпуса размещена система ввода сырья, включая коллектор с отводами. Коллектор соединен с входным штуцером.

Электрическое поле в электродегидраторе создается системой двух заземленных и двух высокопотенциальных электродов, размещенных в верхней части аппарата. Заземленные электроды представляют собой решетчатый настил, состоящий из трех секций. Высокопотенциальные электроды включают горизонтальную решетку из прутков 12 мм. Несущими элементами высокопотенциальных электродов являются сдвоенные балки из труб сечением 40х25х3. Высокопотенциальные электроды подвешены на 3-х подвесках 16 мм, к одному из которых присоединена клемма токоведущего тросика; другой конец тросика закреплен в муфте. Длина тросика определяется из условия, что длина его достаточна для вытаскивания проходного изолятора из штуцера и чтобы тросик в рабочем состоянии располагался на удалении 150-180 мм от заземленных элементов корпуса электродегидратора.

В верхней части аппарата размещена система электропитания, включающая установленный на площадке обслуживания высоковольтный источник питания, и изолятор проходной типа ИПФ 25, соединенный с источником высоковольтным кабелем, входящим в комплект поставки источника.

Аппарат снабжен необходимыми штуцерами для манометра, термопары, уровнемера, предохранительного клапана, двумя люками-лазами для возможности доступа в нижнюю и верхнюю часть аппарата; вверхний люк-лаз врезан штуцер Ду 80 для вывода нефти. По нижней образующей врезан шламовый люк, в который врезаны штуцера для откачки и сброса воды.

Нефть с поданной в нее промывочной водой вводят в аппарат через штуцер. Она проходит по коллектору и отводам, истекая из отверстий. По мере подъема нефти из нее оседают капли воды; количество и размер оставшихся в нефти капель уменьшаются по высоте аппарата. До уровня нижней решетки электродной системы доходят только мелкие капли воды; поскольку под этой решеткой, находящейся под высоким напряжением, существует электрическое поле, в его объеме происходит коалесценция капель воды, их укрупнение и осаждение. Однако напряженности электрического поля под нижней решеткой недостаточно для коалесценции наиболее мелких капель воды, которые заносятся потоком нефти в область сильного электрического поля, создаваемого в объеме между прутками электродной системы. Нефть, проходя через электродную систему, окончательно обезвоживается. Вместе с водой из нефти удаляются и содержащиеся в ней соли.

2. Отстойники ОГ-200П, ОГ-200С. Область применения. Технические характеристики.

Отстойник нефти предназначен для разделения водонефтяной эмульсии на нефть и воду, которая затем сбрасывается из системы. Принцип работы аппарата основан на том, что на границе раздела фаз движение капель воды замедляется, что позволяет им затем слиться в общую фазу. Создается слой воды, отделенный от нефтяной эмульсии. По геометрии корпуса отстойники нефти делятся на вертикальные и горизонтальные. По действию различают отстойники непрерывного и периодического действия. В первых водонефтяная эмульсия подается непрерывно, а также непрерывно осуществляется слив пластовых вод. Во втором типе отстойников емкость загружается эмульсией и оставляется на время, необходимое для отстаивания.

Отстойник ОГ 200П

 

1. Объем, м3  
2. Давление в аппарате, МПа (кгс/см2) рабочее расчетное пробное гидравлическое (на прочность и герметичность)   0, 08 (8) 1, 0 (10) 1, 4(14)
3. Температура стенки аппарата, о С рабочая расчетная   95 100
4. Минимально допустимая отрицательная температура стенки, находящейся под давлением, 0С минус 40
5. Среда в аппарате: нефть, пластовая вода, попутный газ взрывоопасность по Р 51330-11-99 класс опасности по ГОСТ 12.2-1.007-76 категория пожароопасности   IIА-Т3 4 А
6. Срок службы, лет  
7. Группа аппарата по ОСТ 26-291-94  
8. Прибавка для компенсации коррозии и эрозии, мм  
9.Количество циклов нагружения от давления стесненности температурных деформаций или других воздействий за весь срок эксплуатации, не более  
10. Наработка на отказ-изношенность прокладок  

 

3. Понятие о производственном травматизме и профессиональных заболеваниях.

Производственная травма (трудовое увечье) - это следствие действия на организм различных внешних, опасных производственных факторов. Чаще производственная травма - это результат механического воздействия при наездах, падениях или контакте с механический оборудованием.

Травмирование возможно вследствие воздействий:

химических факторов, например, ядохимикатов, в виде отравлений или ожогов;

электрического тока - ожоги, электрические удары и др.;

высокой или низкой температуры (ожоги или обморожения);

сочетания различных факторов.

Производственный травматизм - это совокупность несчастных случаев на производстве (предприятии).

Различают несколько причин производственного травматизма

Технические, возникающие вследствие конструкторских недостатков, неисправностей машин, механизмов, несовершенства технологического процесса, недостаточной механизации и автоматизации тяжёлых и вредных работ.

Санитарно - гигиенические, связанные с нарушением требований санитарных норм (например, по влажности, температуре), отсутствием санитарно-бытовых помещений и устройств, недостатками в организации рабочего места и др.

Организационные, связанные с нарушением правил эксплуатации транспорта и оборудования, плохой организацией погрузочно-разгрузочных работ, нарушением режима труда и отдыха (сверхурочные работы, простои и т.п.), нарушением правил техники безопасности, несвоевременным инструктажем, отсутствием предупредительных надписей а др.

Психофизиологические, связанные с нарушением работниками трудовой дисциплины, опьянением на рабочем месте, умышленным самотравмированием, переутомлением, плохим здоровьем и др.

Профессиональное заболевание - это повреждение здоровья работника в результате постоянного или длительного воздействия на организм вредных условий труда.

Различают острые и хронические профессиональные заболевания. К острым относят профессиональные заболевания, возникшие внезапно (в течение одной рабочей смены) из-за воздействия вредных производственных факторов с большим превышением предельно допустимого уровня или предельно допустимой концентрации.

Профессиональное заболевание, при котором заболело два и более работников, называется групповым профессиональным заболеванием.

Острое профессиональное заболевание возможно в виде ожога глаз ультрафиолетовым излучением при выполнении сварочных работ, при отравлении хлором, оксидом углерода и др.

Хронические профессиональные заболевания развиваются после многократного и длительного воздействия вредных производственных факторов, например, вибрации, производственного шума и др.

Неблагоприятные (вредные) условия труда могут создаваться запыленностью (шахты, цементное производство), загазованностью (химическое производство, кирпичные заводы), повышенной влажностью, производственным шумом, вибрацией, неудобной рабочей позой, тяжёлым физическим трудом и др.

организация обучения и проверки знаний работников в области условий и охраны труда;

проведение сертификации производственных объектов организаций на соответствие требованиям по охране труда.

Большое значение придаётся обязательным предварительным и периодическим медицинским осмотрам. Министерством здравоохранения РФ издан ряд приказов, направленных на реализацию этой задачи.

 

БИЛЕТ 9

1. Типы отстойников. Назначение и принцип действия.

 

Отстойник нефти предназначен для разделения водонефтяной эмульсии. В процессе разделения получают непосредственно саму нефтяную эмульсию, которая затем собирается, и пластовые воды, которые сбрасываются. Вместе с пластовыми водами из сырья удаляются твердые примеси (соли).

Типы конструкций: классификация по геометрии емкостей

По геометрии емкостей различают шаровые, горизонтальные и вертикальные отстойники.

Производство шаровых отстойников не слишком распространено, хотя они, при средней вместительности в 600 метров кубических, отличаются довольно высокой производительностью и позволяют обработать до 20 000 кубических метров материала в сутки.

Вертикальные и горизонтальные конструкции вмещают от 50 до 200 кубических метров эмульсии, при этом производительность горизонтальных отстойников выше. В промышленности наиболее распространены горизонтальные отстойники с вместительностью в 200 кубических метров.

Отстойник нефти

Типы конструкций: классификация по типу действия

По типу действия различают отстойники периодического и непрерывного действия.

В конструкциях периодического действия резервуар, находящийся внутри отстойника, наполняется эмульсией, после чего эмульсия остается внутри аппарата на время, необходимое для обезвоживания и обессоливания нефти. Затем образовавшийся слой воды сливается через предусмотренные для этого штуцеры.

В аппаратах непрерывного действия эмульсия подается непрерывно и вода сливается непрерывным потоком. Это обеспечивает более высокую производительность, позволяя обработать большее количество материала на единицу времени.

Типы конструкций: классификация по направлению потока эмульсии

Отстойные аппараты снабжены вводными и выводными распределителями, расположение которых может варьироваться в зависимости от типа конструкции. Расположение распределителей обуславливает направление потока сырья внутри отстойника. Аппараты с восходящим потоком называются вертикальными, аппараты с горизонтальным потоком, соответственно, называются горизонтальными.

Конструктивные особенности отстойников

В зависимости от конструкции отстойника, подача эмульсии может осуществляться под слой дренажной воды или в нефтяную фазу.

В первом случае конструкция аппарата часто предполагает наличие трубчатых распределителей. В таких конструкциях струя нефти выходит из трубы и дробиться на капли. Капли, всплывая к поверхности раздела фаз, коалесцируют и образуют сплошную фазу. Недостаток конструкции с трубчатыми распределителями заключается в том, что для равномерного распределения необходима установка большого количества таких вводных труб.

Поэтому в некоторых конструкциях на распределительные трубы устанавливаются короба с отверстиями. Нефть при этом вытесняет воду и, растекаясь по коробу, образует сплошной слой. Поскольку у воды и нефти разные плотности, нефть всплывает, выходя через отверстия на поверхности коробов.

При подаче нефти непосредственно в нефтяную фазу, эмульсия обычно поступает через распределитель к границе раздела фаз, где и происходит отделение дренажной воды и нефти. В данном случае конструкция часто снабжена отбойниками, чтобы предотвратить турбулентное смешивание в области распределителя, что достигается за счет сокращения длины затопленной струи нефти.

 

2. Расходомеры (НОРД и др.). Принцип действия, правила эксплуатации.

 

Счетчик сырой нефти НОРД-М предназначен для измерения объемного количества нефти (нефтепродуктов) и других нейтральных к сталям 20X13 и 12X18Н10Т неагрессивных жидкостей. В зависимости от диаметра условного прохода и условного давления имеет 18 исполнений.

Область применения счетчиков - технологические установки нефтедобывающих и нефтеперерабатывающих предприятий.

Принцип работы счетчика нефти НОРД-М: преобразователь счетчика преобразует количество протекающей жидкости в пропорциональное число оборотов крыльчатки, преобразующееся в свою очередь датчиком в пропорциональное количество электрических импульсов, которые пересчитываются электронным блоком в импульсы, соответствующие стандартным единицам.

Исполнение составных частей в зависимости от воздействия окружающей среды:

1. преобразователя расхода - защищенное от агрессивной среды;

2. блока обработки данных " VEGA-03" и блока электронного " НОРД-Э3М" - обыкновенное;

3. магнитоиндукционного датчика - взрывозащищенное, маркировка по взрывозащите IExdllBT4.

Взрывозащищенность достигается заключением электрических частей во взрывонепроницаемую оболочку, которая выдерживает давление взрыва и исключает передачу взрыва в окружающую взрывоопасную среду и заливкой элементов счетчика компаундом.

Состав счетчика нефти НОРД-М:

1. турбинный преобразователь расхода ТПР;

2. магнитоиндукционный датчик НОРД-И2У-02, НОРД-И2У-04;

3. блок обработки данных VEGA-03 или блок электронный НОРД-ЭЗМ-1П, V исполнения.

 

 

3.Правила безопасности при работе на высоте.

К работе на высоте относятся работы, при выполнении которых работник находится на расстоянии менее 2 м от неогражденных перепадов по высоте 1, 3 м и более.
Верхолазными считаются работы, выполняемые на высоте более 5 м от поверхности земли, перекрытия или рабочего настила, над которыми производятся работы непосредственно с конструкций или оборудования при их монтаже или ремонте; при этом основным средством, предохраняющим работников от падения, является предохранительный пояс.
К самостоятельной работе на высоте допускаются лица не моложе 18 лет, прошедшие медицинское освидетельствование и не имеющие противопоказаний к выполнению работ на высоте, вводный инструктаж, первичный инструктаж, обучение и стажировку на рабочем месте, проверку знаний требований охраны труда и по правилам безопасности при работе на высоте и получившие допуск на право выполнения этой работы.
Работники, впервые допускаемые к верхолазным работам, в течение одного года должны работать под непосредственным надзором опытных работников, назначенных приказом (распоряжением) по филиалу.
Работник, допущенный к работе на высоте, обязан:

Выполнять только ту работу, которая определена рабочей или должностной инструкцией.
Выполнять правила внутреннего трудового распорядка.
Правильно применять средства индивидуальной и коллективной защиты.
Соблюдать требования охраны труда.
Немедленно извещать своего непосредственного или вышестоящего руководителя о любой ситуации, угрожающей жизни и здоровью людей, о каждом несчастном случае, происшедшем на производстве, или об ухудшении состояния своего здоровья, в том числе о проявлении признаков острого профессионального заболевания (отравления).
Проходить обучение безопасным методам и приемам выполнения работ и оказанию первой помощи пострадавшим на производстве, инструктаж по охране труда, проверку знаний требований охраны труда.
Проходить обязательные периодические (в течение трудовой деятельности) медицинские осмотры (обследования), а также проходить внеочередные медицинские осмотры (обследования) по направлению работодателя в случаях, предусмотренных Трудовым кодексом и иными федеральными законами.

Уметь оказывать первую помощь пострадавшим от электрического тока и при других несчастных случаях.
Уметь применять первичные средства пожаротушения.
1.7 Для защиты от опасных и вредных факторов работник должен быть обеспечен спецодеждой, спецобувью и другими средствами индивидуальной защиты в соответствии с Типовыми отраслевыми нормами бесплатной выдачи специальной одежды, специальной обуви и других средств индивидуальной защиты и Коллективным договором.
1.8 Работы на высоте в открытых местах запрещаются:
-во время грозы;
-при температуре наружного воздуха ниже нормы, установленной местными органами самоуправления;
-при силе ветра 10-12 м/сек и более;
-при сильном снегопаде или тумане;
-при гололеде.
Исключение допускается при ликвидации аварий. В этом случае руководитель работ обязан организовать средства для обогрева.

2. Требования охраны труда перед началом работы


2.1 Прежде чем приступать к работе на высоте следует осмотреть место предстоящей работы и привести его в порядок; если оно загромождено ненужными предметами, мешающими в работе, необходимо привести его в порядок и убрать все лишнее.
2.2 Перед началом работы работник должен осмотреть инструмент, приспособления, вспомогательное оборудование, которые будут использоваться в работе, и убедиться и их исправности, а также проверить сроки очередных испытаний стремянок, лестниц, лестниц-стремянок.
2.3 Применяемые при работе на высоте средства индивидуальной защиты проверяются и приводятся в готовность до начала рабочего процесса, в том числе:
2.3.1 Перед пользованием предохранительным поясом нужно убедиться в том, что он своевременно испытан на прочность, и проверить его исправность. При этом карабин предохранительного пояса должен быть снабжен предохранительным устройством, исключающим его случайное раскрытие, и обеспечивать быстрое (не более 3 секунд) и надежное закрепление и открепление одной рукой при надетой утепленной рукавице.
Кроме того, предохранительный пояс должен быть отрегулирован по длине, и обеспечивать обхват талии.
2.3.2 Перед пользованием каской для защиты головы внешним осмотром она проверяется на отсутствие повреждений корпуса и внутренней оснастки.
2.4 Работник должен знать следующие основные общие требования, предъявляемые к организации рабочего места и подготовке работ на высоте:
2.4.1 Рабочие места и проходы к ним на высоте 1, 3 м и более и на расстоянии менее 2 м от границы перепада по высоте ограждаются временными инвентарными ограждениями высотой не менее 1, 1 м в соответствии с установленными требованиями;
2.4.2 При невозможности применения предохранительных ограждений или в случае кратковременного периода нахождения работников на высоте допускается производство работ с применением предохранительного пояса;
2.4.3 Технологические проемы, проемы и отверстия в настилах, лифтовые шахты и т.п. места возможного падения работников должны надежно закрываться или ограждаться и обозначаться знаками безопасности;
2.4.4 При выполнении работ на высоте внизу под местом производства работ определяются и соответствующим образом обозначаются и ограждаются опасные зоны;
2.4.5 Перед работой вблизи токоведущих частей, находящихся под напряжением и не защищенных от случайного прикосновения к ним, напряжение должно быть отключено; при этом у выключающего устройства должен быть вывешен предупредительный знак: " Не включать! Идут работы! ".
2.4.6 Организация рабочего места должна обеспечивать устойчивое положение и свободу движения работника, визуальный контроль и безопасность выполнения технологических операций.
При этом должно быть исключено (или допущено на кратковременный период) выполнение работы в неудобных позах (при значительных наклонах, приседании, с вытянутыми или высокоподнятыми руками и т.п.), вызывающих повышенную утомляемость;
2.4.7 Личный инструмент должен находиться в сумках.
2.5 Во время проверки исправности и устойчивости стремянок и лестниц следует помнить о следующем:
2.6.1 Стремянки, как правило, должны иметь высоту ограждения рабочих площадок не менее 1 м.
2.5.2 Нижняя опорная часть стремянок, лестниц должна иметь противоскользящие устройства (заострения, резиновые наконечники и т.п.).
2.5.3 Ступеньки стремянок должны иметь рифленую поверхность, содержаться в состоянии, исключающем поскальзывание и падение работника.
2.6 Приставные лестницы и лестницы стремянки перед применением осматриваются работником на исправность и соответствие их следующим основным требованиям:
2.6.1 На всех лестницах и лестницах-стремянках, находящихся в эксплуатации, указывается инвентарный номер, дата следующего испытания и принадлежность подразделению (цеху, участку и т.п.);
2.6.2 Длина приставных лестниц не должна превышать 5 м; при этом ширина лестницы вверху должна быть не менее 300 мм, а внизу - не менее 400 мм;
2.6.3 Тетивы деревянных лестниц должны быть скреплены стяжными болтами диаметром не менее 8 мм под верхней и нижней ступенями; при длине лестницы свыше 2 м должны быть установлены дополнительные болты таким образом, чтобы расстояние между ними не превышало 2 м.
2.6.4 Ступени деревянных лестниц должны быть врезаны в тетивы; применять лестницы со ступенями, нашитыми гвоздями, запрещается; расстояние между ступенями должно быть не более 250 мм и не менее 150 мм.
2.6.5 Нижние опорные концы приставных лестниц и лестниц-стремянок должны иметь противоскользящие устройства:
-для установки на земле - должны быть оковки с острыми наконечниками;
-для установки на гладких опорных поверхностях (паркет, линоле


Поделиться с друзьями:

mylektsii.su - Мои Лекции - 2015-2026 год. (1.629 сек.)Все материалы представленные на сайте исключительно с целью ознакомления читателями и не преследуют коммерческих целей или нарушение авторских прав Пожаловаться на материал