Студопедия

Главная страница Случайная страница

КАТЕГОРИИ:

АвтомобилиАстрономияБиологияГеографияДом и садДругие языкиДругоеИнформатикаИсторияКультураЛитератураЛогикаМатематикаМедицинаМеталлургияМеханикаОбразованиеОхрана трудаПедагогикаПолитикаПравоПсихологияРелигияРиторикаСоциологияСпортСтроительствоТехнологияТуризмФизикаФилософияФинансыХимияЧерчениеЭкологияЭкономикаЭлектроника






Участок выдачи сжиженного углеводородного газа на МАЗС М-5 Урал 1265км






 

1.8.1 Технологические решения участка выдачи СУГ

На участке АГЗС предусматривается заправка автомобилей одорированным сжиженным углеводородным газом, соответствующим ГОСТ 27578-87 и ГОСТ 20448-90 «Газы углеводородные сжиженные топливные для коммунально-бытового потребления». Газы доставляются на АЗС одорированными с интенсивностью запаха не менее трех баллов.

Доставка одорированного этилмеркаптаном сжиженного газа на площадку МАЗС предусматривается транспортной автоцистерной СУГ.

Проектируемые сооружения участка СУГ размещаются в пределах отведенной территории МАЗС из условия рационального размещения инженерных коммуникаций, оптимального технологического режима эксплуатации оборудования и с соблюдением взрывоопасных и санитарных норм в соответствии с нормативными документами.

Согласно заданию на проектирование производительность участка СУГ составляет 100 заправок в сутки. Годовое потребление СУГ составляет 800 м3.

В соответствии с техническими условиями на проектирование проектом предусмотрен монтаж следующего технологического оборудования

(рисунок 7):

- резервуар горизонтальный стальной (2шт.) V=9200 м3, каждый для приема и хранения СУГ;

- насосный агрегат типа SIHI (1шт.), производительностью 50л/мин;

- электронная двухпистолетная топливораздаточная колонка тип FAS-230 (1 шт.), производительностью 50 литров в минуту.

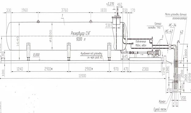
Рисунок 7 – План размещения технологического оборудования СУГ

1 – ТРК СУГ; 2 – резервуары для приема и хранения СУГ; 3 – площадка для автоцистерны; 4 – сбросная свеча; 5 – насосный агрегат.

Для заправки баллонов автомобилей клиентов сжиженным углеводородным газом предлагается комплектная газовая заправочная станция производства фирмы «FAS». Данная технологическая топливозаправочная система представляет собой наземное расположение комплектной заправочной станции, состоящая из отдельных модулей, которые на месте монтируются на отдельные рамы. Кроме того, в составе поставки предусмотрен азотный блок состоящий из двух баллонов высокого давления V=40л каждый и специальной арматуры, которые размещаются в металлическом шкафу на расстоянии более десяти метров от площадки с оборудованием СУГ. В этом же шкафу хранятся шланги высокого давления с длинной не менее 10м.

Так же проектом предусматривается монтаж технологических надземных трубопроводов между блоком приема и блоком раздачи СУГ, продувочной свечи, сбросных труб от системы предохранительных клапанов, а также строительство площадки для автоцистерны и сетчатого ограждения технологической площадки участка СУГ.

 

1.8.2 Блок приема и хранения СУГ

Блок приема и хранения СУГ состоит их двух резервуаров. Блок имеет в своем составе аппаратуру контроля уровня, запорно-регулирующую арматуру, систему безопасности, средства КИП и А, арматуру для отбора паровой фазы, предохранительную арматуру, обвязочные трубопроводы.

Резервуары приняты цилиндрической формы Д-1200мм, V=9200 м3. Все оборудование устанавливается на бетонную площадку, огражденную бордюром (рисунок 7).

Конструкция резервуаров предусматривает возможность очистки, промывки и полного опорожнения от жидкой и паровой фазы СУГ при проведении ремонта, технического обслуживания и освидетельствования в установленном порядке.

 

Рисунок 8 – Рама по резервуар СУГ

 

Насосный агрегат для СУГ принят горизонтальный самовсасывающий, открыто вихревого исполнения с обратной ступенью типа «SIHI» с электродвигателем во взрывозащитном исполнении, установленных на общую раму. Насосный агрегат имеет следующие характеристики:

- назначение – специальное, для перекачки СУГ;

- производительность – 40/100 л/мин;

- температурный диапазон – от минус 400С до плюс 500С;

- максимальное давление – 4, 0 МПа;

- мощность электродвигателя – 3, 6/6, 8 кВт;

- число оборотов – 1450 об/мин;

- электрообеспечение – переменный ток, 380/600 В, 50 Гц;

- вес агрегата - 85/95 кг.

Резервуары для хранения СУГ фирмы «FAS» представляются единым модулем в комплекте с насосным агрегатом, устанавливаются надземно, крепятся на общей раме, которая устанавливается на фундамент и подлежит заземлению.

Стандартная комплектация надземно размещенного сосуда СУГ включает:

- наполняющий клапан – служит для наполнения резервуара СУГ с автоцистерны;

- клапан для отбора паровой фазы СУГ – служит для отбора паровой фазы СУГ и контроля переполнения резервуара. Клапан оборудован манометром и контрольным клапаном для визуального определения предельного уровня наполнения;

- угловой клапан – служит для отбора паровой фазы СУГ;

- указатель уровня – служит для процентного определения уровня жидкой фазы СУГ в резервуаре;

- предохранительный клапан – служит для предотвращенения недопустимого роста давления в сосуде, давление открытия составляет 1, 84 МПа;

- два ревизионных люка, расположенных в сферических днищах по центральной оси резервуара;

- люк-лаз – расположенный в сферических днищах верхней оси резервуара;

- трубопроводы жидкой фазы СУГ (подающий трубопровод к насосному агрегату) с быстродействующим запорным устройством, защищенных от механических повреждений и действия пламени;

- шаровой клапан;

- угловой клапан.

После монтажа резервуары теплоизолируют минераловыми прошивными матами толщиной 300мм, с защитным слоем из тонколистовой оцинкованной стали S=1, 5мм до первой запорной арматуры от резервуара (рисунок 9).

При заправке емкостей используют автоцистерны СУГ, обоудованные донным клапаном. При наполнении резервуаров СУГ работа АЗС приостанавливается.

 

Рисунок 9 – Тепловая изоляция резервуара СУГ


Заправочные островки оборудованы сигнализаторами довзрывоопасных концентраций с порогами срабатывания превышающим 10% НКПР с подачей звукового и светового сигнала, автоматическим прекращением слива СУГ из автоцистерны и отключением топливораздаточных устройств.

 

1.8.3 Блок раздачи СУГ

Блок раздачи СУГ состоит из одной электронной газовой топливораздаточной колонки с двумя дисплеями, одним электронным блоком, двумя счетными устройствами и двумя заправочными пистолетами (рисунок 10).

 

.

Рисунок 10 – Общий вид электронной газовой заправочной колонки фирмы «FAS»

Техническая характеристика электронной двусторонней двухрукавной газовой заправочной колонки типа «FAS-230» используемой на МАЗС:

- назначение – специальное, для заправки СУГ баллонов автомобилей;

- производительность - 5/50 л/мин;

- номинальная заправка – 5л;

- максимальное рабочее давление – 25 бар;

- электрообеспечение – 230В/50 Гц.

Номинальный уровень наполнения – 85% общего объема газовой емкости автомобиля. Контроль уровня происходит с помощью контрольного клапана предельного наполнения. Соединительные узлы для подающего (жидкая фаза) и обратного (газовая фаза) должны быть соединены с соответствующими узлами стационарного трубопровода.

Раздаточная колонка устанавливается на раме заправочного островка, которая представляет собой сварную конструкцию высотой 200мм. Торцевые части блока закруглены. Подвод трубопроводов жидкой и паровой фазы СУГ к ТРК осуществляется снизу. Для защиты ТРК от повреждений транспортными средствами на заправочном островке устанавливаются защитные дуги. Крепление защитных дуг к оборудованию, к его фундаментам и опорным конструкциям не допускается.

На МАЗС для приема, хранения и выдачи СУГ допускается заправка баллонов только газобаллонных автомобилей. Заправка других баллонов, в том числе бытовых категорически запрещается. Так же запрещается работа МАЗС при температуре ниже минус 400С.

 

1.8.4 Сбросные и продувочные трубы участка СУГ

При выходе рабочих параметров внутри резервуара для СУГ за пределы допустимых значений и на случай возникновения аварийных ситуаций в составе поставки оборудования СУГ предусмотрена установка клапанов на резервуарах хранения СУГ. Сброс газа производится в сбросную трубу.

Высота сбросной трубы паров СУГ должна отвечать следующим условиям:

- быть выше пешеходных дорог АЗС, расположенных в радиусе 150d по горизонтали от указанной трубы (где d – диаметр сбросной трубы) и прилегающей к сбросной трубе площадки не менее чем на 2+50d, но не менее чем на 3 м;

- быть выше максимальной высоты транспортного средства допускаемого проектом АЗС для заправки е менее чем на hм+50d (где hм -максимальная высота транспортного средства), в случае если проезды для указанных транспортных средств, расположены по отношению к сбросной трубе на расстоянии менее 150d по горизонтали.

Проектом предлагается монтаж единой для обоих резервуаров сбросной трубы 57х3, 5 высотой 5м, которая монтируется на площадке резервуаров и крепится к опоре, установленной на монолитный фундамент (рисунок 11). Сброс продувочных газов из системы оборудования СУГ предлагается производить через продувочную свечу Ду-25, высотой 6, 5 м.

Рисунок 11 – Сбросная свеча резервуара СУГ

 

Сбросная труба должна быть защищена в следствии пожара теплоизоляцией в виде полуцилиндров толщиной 40мм, внутренним диаметром 57 мм марки ПЦ 100-1000.57.40. Теплоизоляцию фиксировать навивкой проволоки диаметр на 2 мм.

 

1.8.5 Трубопроводы жидкой и паровой фазы СУГ

На МАЗС разрешается надземная и подземная прокладка трубопроводв.

Подземно прокладываются:

- газопроводы СУГ от насосного агрегата до ТРК для подачи топлива потребителям. Трубопроводы прокладываются в лотках и

заглублены в технологических шахтах на глубине не менее 0, 7м, исключающих возможность проникновения жидкой фазы топлива (при возможных утечках) за их пределы. Лотки слеует заполнять, с уплотнением негорючим материалом, например песком при толщине подушечки не менее 100мм и засыпкой на толщину не менее 300мм с последующим перекрытием лотков армированным бетоном, в местах опусков и подъемов устанавливаются контрольные трубки;

- трубопроводы СУГ и его паров, проходящие в зоне возможного присутствия водителей и пассажиров прокладываются в футляре, оснащенном контрольной трубкой.

Надземно разрешается прокладывать трубопроводы на опорах не менее 0, 5м в местах защищенных от механических повреждений, например по газонам на расстоянии 1, 5 м от проезжей части.

Трубопроводы жидкой и паровой фазы СУГ к ТРК запроектированы из стальных бесшовных труб по ГОСТ 8732-78* (группа В). Надземные участки трубопроводов СУГ окрашены эмалью в заводскихвой условиях и оснащаются теплоизоляцией, обеспечивающей предотвращение прогрева стенок. Трубопроводы СУГ от технологического блока до раздаточных колонок прокладываются подземном (каналах), исключающих их повреждения от транспортных средств.

 

1.8.6 Площадка под оборудование и для автоцистерны СУГ

Все технологическое оборудование установки СУГ монтируется на площадке с твёрдым покрытием из монолитного бетона, ограждается бортовым камнем высотой 200 мм.

Площадка для АЦ с СУГ выполняется из монолитного бетона, ограждается бордюрным камнем высотой не менее 150 мм, обеспечивающим предотвращением растекание пролива жидкой фазы СУГ за её пределы при аварийной разгерметизации емкости или арматуры АЦ. По торцам площадки предусмотрены пандусы и валики из бетона высотой 200 мм.

На площадке АЦ предусмотрена стационарная система водяного орошения на случай возникновения пожара на АЦ.

 

2 РАСЧЕТНАЯ ЧАСТЬ


Поделиться с друзьями:

mylektsii.su - Мои Лекции - 2015-2026 год. (1.275 сек.)Все материалы представленные на сайте исключительно с целью ознакомления читателями и не преследуют коммерческих целей или нарушение авторских прав Пожаловаться на материал