Студопедия

Главная страница Случайная страница

КАТЕГОРИИ:

АвтомобилиАстрономияБиологияГеографияДом и садДругие языкиДругоеИнформатикаИсторияКультураЛитератураЛогикаМатематикаМедицинаМеталлургияМеханикаОбразованиеОхрана трудаПедагогикаПолитикаПравоПсихологияРелигияРиторикаСоциологияСпортСтроительствоТехнологияТуризмФизикаФилософияФинансыХимияЧерчениеЭкологияЭкономикаЭлектроника






Блок 2 Блок 4






2.1 Определение потребной площади Размещение на площадке бытовых и административно-хозяйственных зданий и сооружений

для складирования материалов и

конструкций

Блок 5

2.2 Определение потребности в зданиях

и сооружениях для обслуживания Проектирование сетей временного водо- и энергоснабжения строительства

строительства

 

 

2.3 Определение потребности в воде и

электроэнергии

 

 

Рисунок 1 – Блок-схема проектирования объектного стройгенплана

 

 

Проектирование СГП следует вести на основе следующих принципов:

- стройгенплан является частью комплексной документации по организации строительства, поэтому его решения должны быть увязаны с остальными разделами проекта (ПОС, ППР), в том числе с последовательностью в материально-технических и энергетических ресурсах, рабочих кадрах, жилье и социально-бытовом обслуживании, временных зданиях и сооружениях, условиями сохранения окружающей среды, мероприятиями по охране труда: временные здания, сооружения и установки(кроме мобильных) располагают на территориях, не предназначенных под застройку до конца строительства;

- перевозка грузов на строительной площадке, особенно массовых, крупногабаритных, особо тяжелых, должна осуществляться, как правило, без применения промежуточных погрузочно-разгрузочных работ, целесообразность промежуточных складов необходимо подвергать тщательному анализу;

- СГП должен обеспечивать выполнение нормативных требований по бытовому обслуживанию работающих на строительной площадке, по охране труда, технике безопасности и охране окружающей природной среды;

- затраты на временное строительство должны минимизироваться за счет использования существующих, возводимых, инвентарных зданий и сооружений путем вариантной проработки и технико-экономического анализа применяемых решений.

Необходимо описать, что такое стройгенплан, что является исходными данными для разработки СГП, перечислить основные требования при размещении строительного хозяйства на СГП, указать масштабы построения СГП, какие необходимо выполнить расчеты для составления СГП, условные обозначения.

В этом разделе необходимо дать характеристику своего по варианту СГП в таком виде:

Строительный генплан разработан в масштабе 1: ____ на период _________ работ с отражением в нем вопросов подготовительного периода - ___ лист.

На стройгенплане указаны:

-ситуационная схема размещения территории строительной площадки;

-возводимое / реконструируемое здание;

-ограждение строительной площадки;

-проезды и площадки складирования;

-временные инвентарные здания и помещения охраны территории строительной площадки;

-путь движения и зоны перемещения грузов грузоподъемным механизмом, определен тип грузоподъемного механизма исходя из условий строительной площадки;

-временное энергоснабжение строительной площадки;

-освещение территории;

-зона мойки колес автотранспорта.

Территория строительной площадки выгораживается в границах участка застройки сплошным дощатым забором (или металлическим профилированным листом) высотой не менее 2, 0 м (описываются все стороны).

Въезд автотранспорта на территорию строительной площадки осуществляется через ___ ворот со стороны ул. _____________. Расположение временных проездов в основном совпадает с проектируемыми постоянными проездами. Временную дорогу на строительной площадке организовать с ____сторонним движением автотранспорта. Ширину дорог принять не менее ____ м. Покрытие временных дорог выполнить из _________. Радиус закругления дорог должен составлять не менее 12 м. Скорость движения автотранспорта по внутриплощадочным дорогам ограничить до ____ км/час. Въезд на строительную площадку оборудовать знаками ограничения скорости движения и предупреждения о выезде автомобиля.

Временные здания обеспечиваются электроэнергией, питьевой водой и источниками обогрева.

Запас строительных материалов на объекте принят в размере ____дневного объема потребления. Материалы складируются на открытых площадках складирования с соблюдением норм и требований техники безопасности.

Для хранения арматуры, металлических конструкций и закладных деталей предусмотреть устройство навесов. Штабели для складирования конструкций организовать в соответствии со #M12291 5200023СНиП 3.01.01-85#S, #M12291 1200003966#S#M12291 901794520СНиП 12-03-2001#S#M12291 1200003966#S и #M12291 901829466СНиП 12-04-2002#S, соблюдая установленные высоты штабелей и ширину проходов между ними. Штабели металлоконструкций и арматуры должны дополнительно укрываться полиэтиленовой пленкой или иным гидроизоляционным материалом.

Обеспечение объекта на период строительства электроэнергией и водой решается _______________.

Освещение строительной площадки выполнить прожекторами ___________ с лампами мощностью _______ Вт в количестве ____ шт. При производстве СМР (бетонирование, кирпичная кладка и др.) предусмотреть дополнительное освещение рабочих мест со степенью освещенности не менее 25 лк.

Прожекторы и светильники установить на отдельно стоящих столбах или стойках. Кабель питания светильников расположить на высоте не менее 2, 0 м. Крепление прожекторов к стволам растущих деревьев запрещается.

Прокладку силового кабеля от существующего здания на строительной площадке до временных зданий (до распределительного щита марки ЩС) выполнить в воздушном варианте на опорах. Высота подвески силового кабеля должна быть не менее 2, 0 м. Переходы кабеля через временные дороги выполнить под землей в футлярах из металлических труб.

Для обеспечения строительного процесса технической и питьевой водой проложить заглубленный в грунт временный водопровод из полиэтиленовых труб. Переход под временной дорогой выполнить в футляре. Водоснабжение осуществляется по временному водопроводу, подключенному к существующей сети.

Строительная площадка оборудуется необходимыми знаками безопасности и наглядной агитацией. На фасадной части ограждения строительной площадки оборудуется информационный щит о строительстве объекта и участниках строительства.

 

2.1.4.1 Подбор кранов, их привязка, определение зон действия

 

 

Выбор монтажного крана (или другой строительной машины), параметры которого удовлетворяют расчетным, производятся исходя из наличия кранов в строительно-монтажных организациях – участниках строительства и технико-экомических показателей.

При привязке строительных машин предусматривается:

-соответствие устанавливаемых кранов условиям строительно-монтажных работ по грузоподъемности, высоте подъема крюка и вылету стрелы;

-обеспечение безопасных расстояний от сетей и воздушных электрических линий транспорта и пешеходов, а также безопасности расстояний приближения кранов к строениям и местам складирования;

-условия установки и работы кранов вблизи откосов котлованов;

-условия безопасности работы нескольких кранов на одном пути и па-раллельных путях;

-перечень применяемых грузозахватных приспособлений и графическое изображение схем строповки грузов;

-места и габариты складирования грузов, подъездные пути и т.п.;

-мероприятия по безопасному производству работ на участке, где установлен кран (ограждение строительной площадки, монтажной зоны и т.п.)

Зная техническую пригодность крана, определяют места стоянок и схемы установки конструкций с каждой стоянки, проверяя при этом соблюдение требований безопасности, обеспечивает ли кран установку монтажных элементов по грузоподъемности, радиусу действия и высоте подъема.

Расположение стоянок зависит от пролета сооружения, требуемой высоты подъема и параметров крана, а длина путей перемещения кранов - от пролета, высоты подъема и метода монтажа. Необходимо стремиться к уменьшению числа стоянок кранов и длины путей, но при обязательном условии соблюдения технологической последовательности монтажа конструкций.

При определении необходимой грузоподъемности, вылета стрелы и высоты подъема крюка, если они не полностью соответствуют условиям монтажа, следует учитывать возможность его оснащения сменными устройствами (дополнительные стрелы, гуськи и т.д.). Связанные с этим дополнительные затраты должны быть учтены при выборе окончательного решения.

Грузоподъемность крана определяется из условия обеспечения монтажа тяжелых элементов с учетом массы оснастки, устанавливаемой на конструкциях до их монтажа, массы строповочных устройств и уточняются в зависимости от вылета стрелы и расположения кранов.

Необходимая грузоподъемность крана Qтр определяется из следующего выражения:

 

Qтр ≥ Рmaxос, (2)

 

где Рmax - максимальная масса монтируемого элемента,

Рос – масса монтажной оснастки для подъема конструкций.

После определения наибольшей грузоподъемности крана проверяют соответствие потребного грузового момента грузовому моменту выбранного крана.

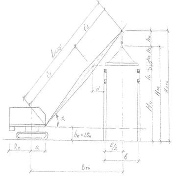
Вылет стрелы принимается из условия размеров здания, расположения в нем элементов различной массы и возможного приближения крана к монтируемому зданию. Минимальное приближение башенных кранов зависит от расположения крайней по отношению к зданию нитки рельсов подкранового пути.

Требуемая высота подъема крюка крана определяется по формуле:

 

Нмо+hз+ hэ+ hст (3)

 

где Но - превышение отметки монтируемого элемента над уровнем стоянки монтажного крана, м;

hз - запас по высоте, требующийся по условиям монтажа для подачи элемента в проектное положение или переноса его над ранее смонтированными элементами, м;

hэ - высота элемента в монтажном положении, м;

 
 

hст - высота строповки элемента, м.

 

Рисунок 2 - Схема для определения требуемых технических параметров башенного крана

Определяем вылет крюка:

 

LK = a/2+b+c, (4)

 

где а-ширина подкранового пути, м;

b-расстояние от оси подкранового рельса до ближайшей выступающей части здания, м;

с-расстояние от центра тяжести элемента до выступающей части здания со стороны крана, м.

На СГП показываются рабочая и опасная зоны крана:

Радиус рабочей зоны крана равен максимальному вылету стрелы крана:

 

Rрз=Rmax

 

Радиус опасной зоны крана определяется по следующей формуле:

 

Rоз=Rmax+1, 5lmax+lбез, (5)

 

где lmax - максимальная длина монтируемого элемента

Зона перемещения груза:

 

Rпг=Rmax+1.5lmax (6)

 

 

Рисунок 3 – Схема для расчетов технологических параметров при монтаже конструкций самоходным стреловым краном

 

Границы опасных зон в местах, над которыми происходит перемещение грузов подъемными кранами, а также вблизи строящегося здания принимаются от крайней точки горизонтальной проекции наружного наименьшего габарита перемещаемого груза или стены здания с прибавлением наибольшего габаритного размера перемещаемого (падающего) груза и минимального расстояния отлета груза при его падении согласно таблице 6.

 

Таблица 6 – Минимальное расстояние отлета груза (предмета)

 

Высота возможного падения груза (предмета), м Минимальное расстояние отлета груза (предмета), м
перемещаемого краном падающего с здания
До 10   3, 5
До 20    
До 70    
До 120    
До 200    
До 300    
До 450    
Примечание – при промежуточных значениях высоты возможного падения груза (предмета) минимальное расстояние их отлета допускается определять методом интерполяции

 

Расчет высоты подъема головки стрелы крана производиться по выражению:

 

Нстрм + hп (7)

 

где Нм - требуемая высота подъема крюка крана;

hп – длина грузового полиспаста в стянутом положении, принимаемая для кранов грузоподъемностью 5-10т 2, 65м; при грузоподъемности 20-40т от 2, 8-3, 0м; при грузоподъемности 50-80т от 3, 6-4, 2м.

Необходимая минимальная длина стрелы крана Lстр равна:

 

(H0+h1+h2) - hш d+b/2 Lстр= l 1+ l 2= -------------------- + ---------, sinα cosα   (8)

 

 

где H0, h1 , h2 то же, что в формуле (7);

hш - расстояние от оси шарнира пята стрелы крана до уровня его стоянки; для кранов грузоподъемностью до 40т принимать равным 1, 6м; для кранов грузоподъемностью 40т и более – 2м;

d - расстояние между осью стрелы крана и наиболее приближенной частью здания: в расчетах принимать равным от 1 – 1, 5м;

b - расстояние от наиболее приближенной к крану части здания на уровне опоры монтируемого элемента до его оси, м;

α - угол наклона стрелы крана, град.

Угол наклона стрелы монтажного крана определяется по формуле:

 
 


(H0+h1+h2) - hш tgα = 3 ------------------, d+b/2     (9)

Требуемый вылет стрелы крана определяется по выражению:

 

Втр= Lстр cos α +а, (10)

 

где а - расстояние от оси шарнира пяты стрелы крана до оси крана; для кранов грузоподъемностью до 40т принимать равным 1, 8м; для кранов грузоподъемностью 40т и более – 2м.

Рисунок 4 – Обозначение зон кранов башенных и стреловых

 

1 – место нахождения контрольного груза; 2 - площадка для складирования; 3 – шкаф электропитания крана; 4 – площадка для разгрузки автотранспорта; 5 – площадка для приема раствора; 6 – стенд со схемами строповки грузов; 7 – место для хранения грузозахватных приспособлений и тары.

 

Рисунок 5 – Варианты привязки монтажных кранов при возведении зданий жилищно-гражданского назначения

 

 

2.1.4.2 Расчет площадей складов

 

 

Приобъектные склады организуются на строительных площадках для временного хранения материалов, конструкций, технологического оборудования в объеме, обеспечивающем непрерывность строительно-монтажных работ на данном объекте при прерывистом характере поставок материально-технических ресурсов. Они могут быть открытыми, полузакрытыми и закрытыми.

Открытые склады (складские площадки) являются основным типом приобъектных складов. Они предназначены для хранения материалов, не боящихся солнечной радиации и атмосферных воздействий.

Полузакрытые склады (навесы) применяются для хранения материалов и изделий, которые надо защищать от прямого воздействия солнца и осадков.

Закрытые склады (отапливаемые и не отапливаемые) сооружаются для хранения материалов дорогостоящих или портящихся на открытом воздухе.

Проектирование складов рекомендуется вести в следующей последовательности:

1) определение запасов основных строительных материалов и конструкций;

2) выбор типов и конструкции складов;

3) размещение складов на строительной площадке.

Для основных материалов и изделий расчет площади склада S м2 производят по удельным нагрузкам:

 

S= Pскл ·q, (11)

 

где q – норма площади пола склада на единицу складируемого ресурса, принятая по расчетным нормативам (Приложение Г).

Рскл- расчетный запас материала в натуральных измерителях.

 

Рскл= (Робщ/Т)·Тн·К1·К2 (12)

 

где Робщ - количество материалов, деталей и конструкций, необходимых на расчетный период;

Т- продолжительность расчетного периода по КП, дн.;

Тн- норма запасов материалов;

К1- коэффициент неравномерности поступления материалов, 1, 1;

К2- коэффициент неравномерности производственного потребления материала, 1, 3

Для прочих материалов и оборудования и оборудования расчет ведут на 1 млн. руб. годового объема СМР по формуле:

 

S=С/К ·SМ, (13)

где C– годовой объем СМР млн. рублей, определяемый по графику строительства;

К– коэффициент приведения сметной стоимости строительно-монтажных работ к сметной стоимости строительства в районах с территориальным коэффициентом, равным 1 (см. таблицу 7);

Sм– нормативная площадь склада на 1млн. руб. годового объема СМР (Приложения Г и Д).

 

Таблица 7 - Территориальные коэффициенты для приведения сметной стоимости строительно-монтажных работ к сметной стоимости строительства в районах с территориальным коэффициентом равным единице

 

Территориальные пояса   I II III IV V VI VII VIII IX  
Коэффициенты К 1, 0 1, 05 1, 1 1, 15 1, 26 1, 8 2, 0 2, 1   2, 7

 

Когда запас материалов и конструкций необходимо расположить на существующих или ограниченных площадях вместимость их учитывают проверочным расчетом:

 

Sскл≥ Sп/β (14)

 

где Sскл– площадь, отведенная под склад,

β – коэффициент использования площади склада, характеризующий отношение полезной площади складах общей (см. таблицу 8);

Sп– расчетная, полезная площадь склада, определяемая исходя из запаса материала и его количества, укладываемого на 1 м2 полезной площади.

 

Таблица 8 – Коэффициенты использования площади складов

 

Вид склада Коэффициенты ß  
Закрытый универсальный, оборудованный стеллажами между рядами при главном проходе шириной 2, 5…3 м отапливаемый не отапливаемый при штабельном хранении материалов для силосных складов цемента     0, 35…0, 4     0, 6…0, 7 0, 5…0, 7 0, 4…0, 6 0, 8…0, 9  
Открытый лесоматериалов металла нерудных строительных материалов     0, 4...0, 5 0, 5...0, 6 0, 6...0, 7  
Навес 0, 5...0, 6

 

Норма складирования зависит от вида складируемого материала способа производства погрузо-разгрузочных работ, типа и конструктивной характеристики склада.

Расчет складов произвести в табличной форме (см. Приложение Е).

 

 

2.1.4.3 Проектирование временных дорог

 

 

В этом разделе необходимо описать временные дороги, согласно СГП.

Тип и конструкция временных дорог зависят от грузонапряженности, типа автотранспорта, грунтовых и гидрогеологических условий.

Дороги могут быть следующих типов:

простейшие – естественные грунтовые или улучшенные минеральными материалами (песок, щебень, гравий или шлак вдавливаются катками в поверхность дороги), профилированные (поперечный уклон дорог 4…6%), при-

меняемые при благоприятных грунтовых условиях и небольшой интенсивности движения транспорта до 35 автомобилей в сутки или до 3…6 в час (в расчетах интенсивности движения для полуприцепов вводится коэффициент 1, 5, а для машин с прицепом — коэффициент 2);

переходные — с гравийным, щебеночным или шлаковым покрытием с обработкой органическими или минеральными вяжущими материалами, применяемые при интенсивности движения более 6 машин в час; отсыпку покрытия производят с устройством или без устройства корыта;

усовершенствованные — колейные из сборных инвентарных железобетонных плит, деревянных щитов, стальных лент на песчаной постели толщиной 10…25 см, применяемые при неблагоприятных геологических и гидрогеологических условиях и при большой интенсивности движения и нагрузке на ось 12т и более.

Тротуары и переходы устраивают на строительной площадке для обеспечения надежного и безопасного прохода работающих к местам производства работ и подсобным зданиям. Они трассируются самостоятельно, т.е. вне связи с системой автодорог, при этом должно учитываться:

-возможность использования существующих и построенных в подготовительный период запроектированных тротуаров;

-принятая схема движения работающих, которая обуславливается общим направлением развития строительства и размещением объектов по площадке;

-требования техники безопасности;

-сокращение до минимума времени на пешеходные переходы.

Тротуары в зависимости от интенсивности движения пешеходов устраиваются шириной 1, 5…2 м. Тип покрытия принимается исходя из грунтовых и гидрогеологических условий и продолжительности эксплуатации (асфальтовое по щебёночному основанию или из инвентарных плит по песчаному основанию)

2.1.4.4 Расчет временных мобильных (инвентарных) зданий

 

 

Временные объекты подразделяются по следующим признакам:

1)по типу мобильности: контейнерные и сборно-разборные;

2)по функциональному назначению:

a)производственные (мастерские, лаборатории, установки производственного и инженерного обеспечения, станции и подстанции);

b)складские;

c)вспомогательные (административные и санитарно-бытовые здания);

d)жилые и общественные;

3)по климатическим условиям и нагрузкам:

a)северного исполнения (С), t = – 55 0С;

b)обычного (О1), t = – 45 0С и (О2), t = – 35 0С;

c)южного (Ю), t = –25 0С.

Параметры временных зданий регламентируются ГОСТ 22853 – 86 «Здания мобильные (инвентарные)». Общие технические условия:

1)габаритные размеры (см. Приложения Ж);

2)расчётные сроки службы в годах (не менее):

a)контейнерные с несъёмной ходовой частью — 10;

b)контейнерные со съёмной ходовой частью — 15;

c)сборно-разборные — 20.

3)число передислокаций за расчётный срок службы (не менее):

a)сборно-разборные из блок контейнеров — 5;

b)из плоских и линейных элементов — 3.

Состав комплекса подсобных зданий для строительной площадки определяется с учетом:

-возможности максимального использования постоянных или вновь возводимых объектов;

-применение мобильных зданий заводского изготовления для обеспечения строительного производства и работающих на любом участке и этапе строительства;

-подбора рационального состава зданий; соответствующего условиям и календарному плану строительства.

Исходные данныепри расчете комплекса подсобных зданий являются:

-степень развития строительства и состояние его материально-технической базы,

-перечень и характеристика существующих и возводимых постоянных зданий, которые можно использовать для нужд строительства,

-природно-климатические условия района строительства,

-оснащенность строительных и специализированных организаций наборами мобильных зданий и их техническое состояние,

-графики потребности и поставки на строительную площадку основных материально-технических ресурсов,

-графики поставки технологического оборудования,

-графики потребности в трудовых ресурсах,

-каталог проектов мобильных (инвентарных) зданий, рекомендованных к применению в строительстве.

Проектирование комплекса подсобных зданийстроительной площадки производится в следующей последовательности:

1)определяется номенклатура комплекса инвентарных зданий;

2) устанавливается общая потребность во временных зданиях,

3) определяется рациональный тип и количество мобильных зданий

4) разрабатывается планировка городка строителей;

5) оформляется привязка городка на строительной площадке.

Общая потребность во временных зданиях (временных помещениях) определяется на весь период строительства в целом, либо на его отдельные этапы и периоды следующим образом:

- для административно-бытовых зданийпо формуле:

 

F= Fn· P, (15)

 

где F общая потребность в зданиях данного типа в м2, рабочих местах, посадочных местах, сетках, очках, кранах;

Fn - нормативный показатель потребности здания, един. изм./вместимость (м2/чел.; рабочее место/чел.; посадочное место/чел.; сетка/чел.; очко/чел.; кран/чел.) определяется по Расчётным нормативам, ч.1 или по Приложению И;

Р– число работающих (или их отдельных категорий) в наиболее многочисленную смену, кроме гардеробных, которые рассчитываются на всё количество рабочих.

- для производственных зданийпо формуле:

 

F= Fn·C, (16)

 

где Fn нормативный показатель потребности здания, м2/млн. руб. или

объём продукции/млн.руб, рабочих мест (см. Приложение К);

С– годовой объём строительно-монтажных работ в млн. руб.

Определение численности пользователей зданием (помещением):

1. Устанавливается общее максимальное количество рабочих на строительной площадке на основании календарного плана работ. В ППР эти данные снимают с графиков потребности в рабочих. В ПОС количество рабочих устанавливается по формуле10:

 

N0=C/Q·T (17)

 

где C – стоимость строительных, монтажных или специальных работ на расчётный период в руб.; Q – среднегодовая выработка на одного работающего в руб./(чел.- год);

T – продолжительность расчётного периода по календарному плану в днях.

2. Рассчитывается численность различных категорий работающих на строительной площадке.

Структура работающих по отраслям и видам работдостаточно индивидуальна для различных регионов страны и строительных площадок и, следовательно, уточняется при выполнении расчётов (см. таблицу 9).

 

Таблица 9 - Соотношение категорий работающих по отраслям и видам строительства

 

Отрасль или вид строительства Рабочие ИТР   Служащие   МОП и охрана  
Промышленное 82…85, 5 11…12, 5 2, 5…4 1…1, 5
Промышленное в условиях города   78, 5   13, 5 4, 5 3, 5
Жилищно-гражданское        
Промышленное и жилищно-гражданское в Сибири и на Дальнем Востоке   82…84   0, 5…1 2, 5…4  
Промышленное и жилищно-гражданское в северной зоне европейской части России   80, 5…84, 5 11…13, 5 3…4, 4 1, 5  
Сельскохозяйственное        

 

Количество линейных ИТР, служащих, МОП и охраны, работающих на строительной площадке, принимается в соответствии со структурой управления

строительством, при отсутствии таких данных количество работников этих категорий принимается в объёме 30% от их общего числа.

Численность работающих в наиболее многочисленную смену, в случае отсутствия утверждённых ведомственных нормативов, принимают равной 70% от общего числа рабочих (до 85% для жилищно-гражданского строительства) и

80% от общего числа инженерно-технических работников (ИТР), служащих, младшего обслуживающего персонала (МОП) (до 95% – для жилищно-гражданского строительства) и охрана. При этом ученики и практиканты (до 5% от общего числа работающих) работают только в наиболее многочисленную смену.

Структура работающих по признаку пола, при отсутствия ведомственных нормативов или специально оговоренных условий производства СМР, принимается равной 30% женщин и 70% мужчин от всех работающих в наиболее многочисленную смену.

Уборные ведут в расчете 1 на 20 женщин, 1 на 25 мужчин.


Поделиться с друзьями:

mylektsii.su - Мои Лекции - 2015-2026 год. (1.297 сек.)Все материалы представленные на сайте исключительно с целью ознакомления читателями и не преследуют коммерческих целей или нарушение авторских прав Пожаловаться на материал