Студопедия

Главная страница Случайная страница

КАТЕГОРИИ:

АвтомобилиАстрономияБиологияГеографияДом и садДругие языкиДругоеИнформатикаИсторияКультураЛитератураЛогикаМатематикаМедицинаМеталлургияМеханикаОбразованиеОхрана трудаПедагогикаПолитикаПравоПсихологияРелигияРиторикаСоциологияСпортСтроительствоТехнологияТуризмФизикаФилософияФинансыХимияЧерчениеЭкологияЭкономикаЭлектроника






Вероятность возникновения наиболее вероятного и наиболее опасного по своим последствиям сценария аварийной ситуации






Вероятность возникновения наиболее опасного по своим последствиям сценария аварии, в результате реализации которого возможно поражение персонала предприятия (сценарий С31 – разгерметизация коллектора жидкого аммиака от э/задвижки №13/1, 2 до входа в корпуса), составляет 5, 3× 10-8 в течение года. Вероятность поражения персонала предприятия при возникновении наиболее опасного по своим последствиям сценария аварии С31 составляет 5, 3× 10-8 в течение года.

Вероятность возникновения наиболее вероятного сценария аварии (сценарий С211 – выброс токсичного вещества (аммонизированного раствора фосфорной кислоты) в результате разгерметизации насоса 209 (210) или 213 (214)) составляет 0, 1 1/год.


2 ПРИНЦИПИАЛЬНАЯ ТЕХНОЛОГИЧЕСКАЯ СХЕМА УЧАСТКА МИНЕРАЛЬНЫХ УДОБРЕНИЙ № 2 ПРОИЗВОДСТВА МИНЕРАЛЬНЫХ УДОБРЕНИЙ ОАО «АММОФОС»

 

Участок минеральных удобрений № 2 производства минеральных удобрений ОАО «Аммофос» можно разделить на 4 блока:

- блок № 1 – узел приема жидкого аммиака в корпус;

- блок № 2 – узел нейтрализации и гранулирования;

- блок № 3 – склад кислот;

- блок № 4 – узел приема кислот в корпус.

Принципиальные технологические схемы блоков участка минеральных удобрений № 2 производства минеральных удобрений ОАО «Аммофос» представлены на рис.1-6.

 


 

Принципиальная технологическая схема блока № 1 участка минеральных удобрений № 2

 

Файл: ТС_А4_блок 1 №2.cdr

Формат А3

 

 

Рис.1


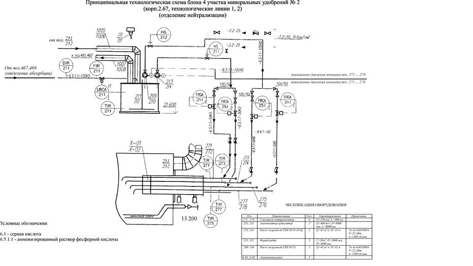
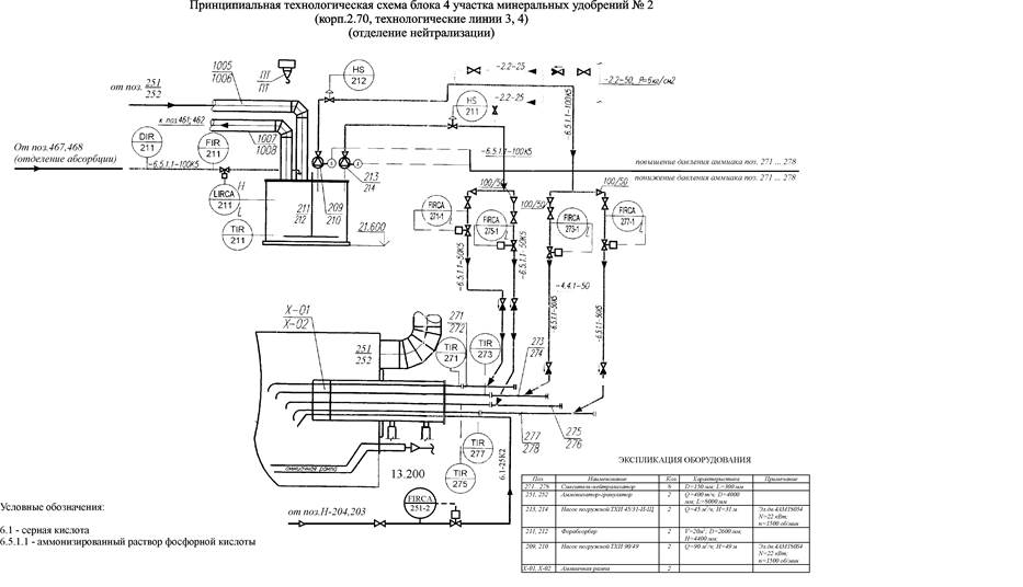
Принципиальная технологическая схема блока № 2 участка минеральных удобрений № 2

 

Файл: ТС_А3_блок 2 №2.cdr

Формат А3

 

Рис.2


Принципиальная технологическая схема блока № 3 участка минеральных удобрений № 2

 

Файл: ТС_А3_склад кислот №2.dwg

Формат А3

 

 

Рис.3


Рис.4


Рис.5


Принципиальная технологическая схема блока № 4 (абсорбция) участка минеральных удобрений № 2

 

Файл: ТС_А3_блок 4 (абсорбция) №2.cdr

Формат А3

 

Рис.6


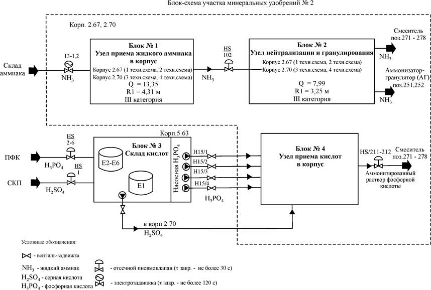
3 БЛОК-СХЕМА УЧАСТКА МИНЕРАЛЬНЫХ УДОБРЕНИЙ №2 ПРОИЗВОДСТВА МИНЕРАЛЬНЫХ УДОБРЕНИЙ ОАО «АММОФОС»

 

Блок-схема участка минеральных удобрений №2 производства минеральных удобрений ОАО «Аммофос» представлена на рис.7.


Рис.7


СИТУАЦИОННЫЙ ПЛАН

 

Наиболее крупным (тяжелым) по последствиям сценарием аварии на участке минеральных удобрений №2 производства минеральных удобрений ОАО «Аммофос» является сценарий С31 – разгерметизация коллектора жидкого аммиака от э/задвижки №13/1, 2 до входа в корпуса. Ситуационный план c указанием зон возможного заражения представлен на рис.8.

Ситуационный план ОАО «Аммофос» c указанием маршрутов эвакуации и путей ввода сил и средств спецтехники представлен на рис.9.


Наиболее опасная по своим последствиям авария – разгерметизация коллектора жидкого аммиака от э/задвижки № 13/1, 2 до входа в корпуса (сценарий С31)

Обозначения: А – зона возможного порогового поражения, Аф - зона фактического порогового поражения, Б – зона возможного смертельного поражения, Бф - зона фактического смертельного поражения

Краткое описание сценария аварии: Нарушение герметичности коллектора жидкого аммиака на открытой площадке ® выброс аммиака в окружающую среду ® растекание жидкости + мгновенное испарение части жидкости за счет снятия энергии перегрева + образование паро-аэрозольного первичного облака ® растекание облака под действием сил гравитации ® испарение аммиака с поверхности розлива за счет теплопритока от окружающей среды + образование вторичного облака ® распространение токсичного облака

Основные исходные расчетные данные: температура окружающей среды - +220С; скорость ветра на высоте 10 м – 1 м/с; температура аммиака в трубопроводе - + 220С; характер подстилающей поверхности – бетон; тип местности – городская застройка; класс устойчивости атмосферы – инверсия

Наименование и количество вещества, участвующего в аварии: жидкий аммиак – 2, 167 т

Величины зон действия поражающих факторов: Основной поражающий фактор – токсическое поражение. При расчете зон действия поражающих факторов при авариях с выбросом низкокипящих токсичных веществ (аммиак) использовались формулы для расчета полей концентраций и токсодоз методики ПБ 09-579-03. Радиус гравитационного растекания – 23 м; длина зоны смертельных поражений – 505 м; ширина зоны смертельных поражений – 94 м; длина зоны пороговых поражений – 2090 м; ширина зоны пороговых поражений – 316 м.

Рис.8


Ситуационный план участка минеральных удобрений № 2 ОАО «Аммофос»

 

Файл: СП_А3_№2.dwg

Формат А3

 

Рис.9


ПЛАН РАСПОЛОЖЕНИЯ ОСНОВНОГО ТЕХНОЛОГИЧЕСКОГО ОБОРУДОВАНИЯ

 

Планы расположения основного технологического оборудования блоков участка минеральных удобрений №2 производства минеральных удобрений ОАО «Аммофос» представлены на рис. 10-15.

 


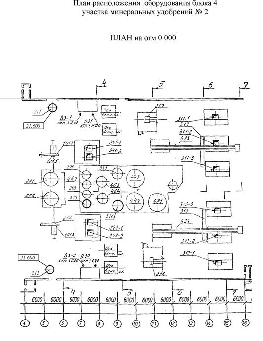
План расположения оборудования блока 1 участка № 2

 

Файл: План_А4_блок 1 №2.cdr

Формат А4

 

 

Рис.10


План расположения оборудования блока 2 участка № 2

 

Файл: План_А4_блок 2-2 №2.cdr

Формат А4

 

Рис.11


План расположения оборудования блока 2 (1 и 3 т.с.) участка № 2

 

Файл: План_А4_блок 2 (1-3) №2.cdr

Формат А4

 

 

Рис.12


План расположения оборудования блока 2 (2 и 4 т.с.) участка № 2

 

Файл: План_А4_блок 2 (2-4) №2.cdr

Формат А4

 

 

Рис.13


План расположения оборудования блока 3 участка № 2

 

Файл: План_А4_блок 3 №2.cdr

Формат А4

 

Рис.14


 

Рис.15

 


6 Оперативная часть плана по локализации и ликвидации аварийных ситуаций уровня «А» на участке №2

Блок № 1. Узел приема жидкого аммиака в корпус

(наименование технологического блока)

Таблица 3

Наименование, уровень и место аварийной ситуации Опознавательные признаки аварийной ситуации Оптимальные способы противоаварийной защиты (ПАЗ) Технические средства (системы) противоаварийной защиты, применяемые при подавлении и локализации аварийной ситуации (ПАЗ) Исполнители и порядок их действий
         
А. Аварийная разгерметизация коллектора жидкого аммиака, арматуры от входа в корпус до отсечного клапана HS 102   1.Появление характерного запаха аммиака из-за пропусков. 2. Падение давления в блоке 3. Срабатывание сигнализации по падению давления аммиака перед смесителями. 4. Срабатывание сигнализации по превышению концентрации аммиака в отделении нейтрализации и грануляции более – 19 мг/м3. 5. Срабатывание блокировки по закрытию электрозадвижек № 13/1 (13/2) и включению аварийной вентиляции при превышении концентрации аммиака более - 20 мг/м3.   1. Прекращение подачи аммиака в корпус. 2. Отсечка аварийного оборудования. 3. Использование средств защиты органов дыхания и кожи. 4. Эвакуация персонала из опасной зоны. 5. Ограждение опасной зоны.     1. Электрозадвижки № 13/1 (13/2). 2. Сигнализаторы. Газоанализаторы. 3. Запорная арматура. 4. Фильтрующие противогазы с коробкой марки «КД». 5.Быстромонтируемые герметизирующие хомуты.     1. Первый заметивший аварию обязан: Окриком оповестить всех, находящихся рядом, об аварии. Немедленно оповестить об аварии оператора ДПУ АСУТП по прямой связи, телефону или лично. 2. Оператор ДПУ АСУТП обязан: 2.1. Оценить угрозу возникновения аварийной ситуации. 2.2. По телефонной связи сообщить диспетчеру предприятия об аварии. 2.3. При необходимости вызвать дежурный персонал ВГСО, работников здравпункта МСЧ. 2.4. Объявить аварийную тревогу по громкоговорящей связи и направление эвакуации персонала из зоны аварии. 2.5. Дистанционно отключить блок и оповестить персонал склада аммиака. Проверить срабатывание ПАЗ по монитору компьютера. 2.6. Сообщить об аварии начальнику смены. 2.7. Сбросить остаточное давление аммиака через смесители, не прекращая подачи фосфорной кислоты. Остановить технологическую систему. 3. Начальник смены обязан: 3.1. Связаться с диспетчером предприятия, уточнить у него направление ветра и район, куда направлены аварийно-спасательные службы. 3.2. По телефону сообщить начальнику производства об аварийной ситуации. 3.3. Прекратить проведение огневых, газоопасных и других работ, обеспечить вывод из опасной зоны персонала, не задействованного в ликвидации аварии. Обеспечить оцепление опасной зоны. 3.4. Организовать работы по локализации аварии, если позволяет степень загазованности. 3.5. Организовать встречу аварийных служб, поставить перед ними задачу по проверке опасной зоны, отключению поврежденного участка, локализации распространения аммиачной волны, оказанию помощи пострадавшим. 3.6. Информировать диспетчера предприятия о прибытии аварийных служб, предпринятых действиях по локализации аварии, спасению пострадавших и окончании работ после ликвидации аварийной ситуации. 3.7. Организовать первую доврачебную помощь пострадавшим. 4. Диспетчер предприятия обязан: 4.1. При получении сообщения об аварии уточнить у оператора ДПУ АСУТП характер аварии. 4.2. По компьютерной программе «Аммиачная волна» уточнить зону возможного распространения аммиачной волны. 4.3. Направить к месту аварии необходимые аварийно-спасательные службы ВГСО, МСЧ. Проинформировать их о направлении ветра для подъезда к месту аварии, и через какие проходные (и по каким дорогам) можно проехать. 4.4. При необходимости оповестить склад аммиака об аварийной ситуации на участке №1 ПМУ. 4.5. Оповестить руководство предприятия, согласно схемы оповещения (Приложение 2) и организовать их доставку к месту аварии. 5. Начальник ПМУ (до его прибытия – начальник смены) прибывает на место аварии и руководит работами по локализации аварийной ситуации. 6. Технологический персонал по указанию Ответственного руководителя обязан: 6.1. Покинуть опасную зону (кроме лиц, на которых возложены обязан­ности по локализации аварии). 6.2. Надеть средства защиты органов дыхания (фильтрующий противогаз) и принять меры по спасению пострадавших и оказанию им доврачебной помощи. 6.3. Установить посты для огражде­ния опасной зоны, используя при необходимости фильтрующие противогазы. 6.4. В случае отсутствия загорания проветрить помещение (включить вен­тиляцию, открыть окна, двери, ворота). 6.5. Далее действовать по указанию Ответственного руководителя. 7.Члены дежурного отделения ВГСО, получив сигнал об аварийной ситуации, в течение 3-х минут прибывают на место аварии. Принимают меры по эвакуации из помещения корпуса персонала, не занятого в ликвидации аварийной ситуации, оказывают первую медицинскую помощь возможным пострадавшим. Совместно с Ответственным руководителем определяют газоопасную зону, устанавливают предупредительные знаки «Стой - опасная зона», «Проход запрещен» и выставляют перед загазованным участком дежурные посты. 8. Персонал здравпункта (МСЧ)по вызову, выезжает на место аварии и оказывает медицинскую помощь пострадавшим, организует отправку пострадавших в больницу. 9. Ремонтный персонал производствапо указанию Ответственного руководителя работ, совместно с дежурным персоналом ВГСО обязаны с применением средств защиты органов дыхания и кожи отглушить поврежденный учас­ток трубопровода от технологической схемы, надеть бандажи, хомуты на аварийное оборудование.

 

 

Блок № 2. Узел нейтрализации и гранулирования

(наименование технологического блока)

 

Продолжение таблицы 3
         
А. Аварийная разгерметизация трубопровода жидкого аммиака, арматуры от клапана HS 102 до смесителей и аммонизаторов-грануляторов поз271-278, 251-252   1.Появление характерного запаха аммиака из-за пропусков. 2. Падение давле-ния в блоке 3. Срабатывание сигнализации по падению давления в блоке. 4. Срабатывание сигнализации по загазованности. 5. Срабатывание сигнализация по превышению концентрации аммиака в отделении нейтрализации и грануляции более – 19 мг/м3. 6. Срабатывание блокировки по закрытию электрозадвижек № 13/1 (№13/2) и включению аварийной вентиляции при превышении концентрации аммиака более - 20 мг/м3.   1. Прекращение подачи аммиака в блок. 2. Включение аварийной вентиляции при превышении концентрации аммиака. 2. Отсечка аварийного оборудования. 3. Использование средств защиты органов дыхания и кожи. 4. Эвакуация персонала из опасной зоны. 5. Ограждение опасной зоны.   1. Электрозадвижки № 13/1 (№13/2) на входе в корпус. 2. Сигнализаторы. Газоанализаторы. 3. Запорная арматура. 4. Фильтрующие противогазы с коробкой марки «КД». 5.Быстромонтируемые герметизирующие хомуты.   1. Первый заметивший аварию обязан: Окриком оповестить всех, находящихся рядом, об аварии. Немедленно сообщить об аварии оператору ДПУ АСУТП по прямой связи, телефону или лично. 2. Оператор ДПУ АСУТП обязан: 2.1. По телефонной связи сообщить об аварии диспетчеру предприятия. Уточнить у него направление ветра. 2.2. Объявить аварийную тревогу по громкоговорящей связи и направление эвакуации персонала из зоны аварии. 2.3. По монитору проконтролировать закрытие клапана HS 102, срабатывание ПАЗ. 2.4. Сообщить об аварии начальнику смены и персоналу склада аммиака. 2.5. Сбросить остаточное давление аммиака через смесители, не прекращая подачи фосфорной кислоты. Остановить технологическую систему. 2.6. Вызвать дежурный персонал ВГСО, работников здравпункта МСЧ. 3. Начальник смены обязан: 3.1. Обеспечить отключение поврежденного технологического блока. 3.2. Связаться с диспетчером предприятия, уточнить у него направление ветра и район, куда направлены аварийно-спасательные службы. 3.3. Прекратить проведение в опасной зоне всех работ, не связанных с ликвидацией аварийной ситуации, обеспечить вывод из опасной зоны персонала, не задействованного в ликвидации аварии. 3.4. Обеспечить оцепление опасной зоны. 3.5. Организовать работы по локализации аварии, если позволяет степень загазованности. 3.6. По телефону сообщить начальнику производства об аварийной ситуации 3.7. Организовать встречу аварийно-спасательных служб и объяснить им ситуацию. Поставить перед ними задачу по проверке опасной зоны, отключению поврежденного участка, локализации распространения аммиачной волны, оказанию помощи пострадавшим. 3.8. Информировать диспетчера предприятия о прибытии аварийных служб, предпринятых действиях по локализации аварии, спасению пострадавших и окончании работ после ликвидации аварийной ситуации. 3.9. Организовать первую доврачебную помощь пострадавшим. 4. Диспетчер предприятия обязан: 4.1. При получении сообщения об аварии уточнить у оператора ДПУ АСУТП характер аварии. 4.2. По компьютерной программе «Аммиачная волна» уточнить зону возможного распространения аммиачной волны. 4.3. Направить к месту аварии необходимые аварийно-спасательные службы ВГСО, МСЧ. Проинформировать их о направлении ветра для подъезда к месту аварии и маршруте аварии (по каким дорогам и через какие проходные проезжать). 4.4. Оповестить руководство предприятия, согласно схеме оповещения (Приложение 2) и организовать их доставку к месту аварии. 5. Начальник ПМУ– Ответственный руководитель(до его прибытия – начальник смены) по прибытию на место аварии руководит работами по локализации и ликвидации аварийной ситуации. Принимает меры к немедленной эвакуации третьих лиц и личного состава из загазованной зоны. 6. Технологический персонал после оповещения оператором ДПУ АСУТП об аварийной ситуации обязан: 6.1. Надеть средства защиты органов дыхания (фильтрующий противогаз). 6.2. По указанию Ответственного руководителя покинуть опасную зону (кроме лиц, на которых возложены обязан­ности по локализации аварии). 6.3. Персонал, участвующий в локализации аварии по указанию Ответственного руководителя обязан: 6.3.1. Принять меры по спасению пострадавших и оказанию им доврачебной помощи 6.3.2. Оградить опасную зону. 6.3.3. В случае отсутствия загорания проветрить помещение (включить вен­тиляцию, открыть окна, двери, ворота). 6.3.4. Все действия по локализации аварии согласовывать с Ответственным руководителем. 7.Члены дежурного отделения ВГСО, получив сигнал об аварийной ситуации, в течение 3-х минут прибывают на место аварии. Подъезд и развертывание газоспасательной базы осуществляется с учетом направления ветра. 7.1. Получив информацию о текущей обстановке, отделение включается в дыхательные аппараты и в защитных изолирующих костюмах газовой и химической защиты следует в загазованную зону, где проводит разведку по поиску пострадавших, их эвакуацию и оказание первой медицинской помощи возможным пострадавшим. 7.2. По указанию Ответственного руководителя отключают поврежденный участок. Принимают меры по эвакуации из помещения корпуса персонала, не занятого в ликвидации аварийной ситуации. 7.3. Совместно с Ответственным руководителем определяют газоопасную зону, устанавливают предупредительные знаки «Стой - опасная зона», «Проход запрещен» и выставляют перед загазованным участком дежурные посты. 8. Персонал здравпункта (МСЧ) по вызову, немедленно выезжает на место аварии и оказывает медицинскую помощь возможным пострадавшим, при необходимости организует отправку пострадавших в больницу. 9. Ремонтный персонал производствапо указанию Ответственного руководителя работ, совместно с дежурным персоналом ВГСО обязаны: 9.1. С применением средств защиты органов дыхания и кожи отглушить поврежденный учас­ток трубопровода от технологической схемы. 9.2. На аварийное оборудование надеть хомуты, бандажи.  

 

Блок № 3. Склад кислот

(наименование технологического блока)

 

Продолжение таблицы 3
         
А. Аварийная разгерметизация хранилищ серной и фосфорной кислоты, трубопроводов, арматуры расположенных в поддоне.     1. Срабатывание сигнализации по минимальному уровню кислоты в хранилище. 2. Падение уровня кислоты в хранилище. 3. Появление пролива жидкости в приямке поддона. 4. Шум, издаваемый истекающим продуктом. 1. Прекращение подачи кислоты в хранилище. 2. Освобождение аварийного хранилища от кислоты. 3. Ограничение площади пролива токсичной жидкости. 4. Нейтрализация разлившейся токсичной жидкости. 5. Сбор пролитой кислоты.   1. Использование средств защиты органов дыхания и кожи. 2. Противогазы 3. Средства нейтрализации (сода, известь) 4. Обвалование хранилищ. Приямки. 5. Насосы. 6. Грузовая автомобильная техника. 1. Первый заметивший аварию окриком предупреждает об этом остальной рабочий персонал. Немедленно оповещает оператора ДПУ АСУТП по прямой связи, телефону или лично. 2. Оператор ДПУ АСУТП обязан: 2.1. По телефонной связи сообщить об аварии диспетчеру предприятия и начальнику смены. Уточнить у него направление ветра. 2.2. Объявить аварийную тревогу по громкоговорящей связи и направление эвакуации персонала склада из зоны аварии. 2.3. По монитору проконтролировать закрытие клапанов HS 1, HS 2-6, срабатывание ПАЗ. Дистанционно отключить блок 2.4. Дать указание персоналу склада кислоты на прекращение приема кислоты в аварийное хранилище; перекачку кислоты из аварийного хранилища в другое хранилище. 2.5. Оповестить начальника смены СКП об аварии на складе. 2.6. Вызвать дежурный персонал ВГСО, работников здравпункта МСЧ. 3. Начальник смены обязан: 3.1. Обеспечить отключение поврежденного хранилища, оборудования. 3.2. Связаться с диспетчером предприятия, уточнить у него направление ветра и район, куда направлены аварийно-спасательные службы. 3.3. Прекратить проведение в опасной зоне всех работ, не связанных с ликвидацией аварийной ситуации, обеспечить вывод из опасной зоны персонала, не задействованного в ликвидации аварии. 3.4. Организовать ограждение зоны пролива, нейтрализацию остатков кислоты и уборку территории склада 3.5. По телефону сообщить начальнику производства об аварийной ситуации. 3.6. Организовать встречу аварийно-спасательных служб и объяснить им ситуацию. Поставить перед ними задачу по проверке опасной зоны, оказанию помощи пострадавшим при необходимости отключению поврежденного участка. 3.7. Информировать диспетчера предприятия о прибытии аварийных служб, предпринятых действиях по локализации аварии, спасению пострадавших и окончании работ после ликвидации аварийной ситуации. 3.8. Организовать первую доврачебную помощь пострадавшим. 4. Диспетчер предприятия обязан: 4.1. При получении сообщения об аварии уточнить у оператора ДПУ АСУТП характер аварии. 4.2. Направить к месту аварии необходимые аварийно-спасательные службы ВГСО, МСЧ. Проинформировать их о направлении ветра для подъезда к месту аварии и маршруте движения (по каким дорогам и через какие проходные можно проехать). 4.3. Оповестить руководство предприятия, согласно схеме оповещения (Приложение 2) и организовать их доставку к месту аварии. 5. Начальник ПМУ – Ответственный руководитель (до его прибытия – начальник смены) по прибытию на место аварии руководит работами по локализации аварийной ситуации. Принимает меры к немедленной эвакуации третьих лиц и личного состава из загазованной зоны. 6. Технологический персонал складапо указанию Ответственного руководителя, участвующий в локализации аварийной ситуации, надевает средства защиты органов дыхания и отсекает при помощи арматуры подачу кислоты в аварийное хранилище. Производит перекачку кислоты из аварийного хранилища в исправное. Погружным насосом откачивает кислоту из поддона приямка. Производит нейтрализацию остатков пролива кислоты в обваловании. Принимает меры по спасению пострадавших и оказанию им доврачебной помощи. После нейтрализации пролитой кислоты и достижении герметичности технологической системы производит уборку загрязненной продуктами территории склада. При необходимости, по указанию Ответственного руководителя, совместно с членами ВГСО, участвует в ограждении опасной зоны. Зараженный грунт автотранспортом вывозят со склада. 7. Члены дежурного отделения ВГСО, получив сигнал об аварийной ситуации, в течение 3-х минут прибывают на место аварии. Подъезд и развертывание газоспасательной базы осуществляется с учетом направления ветра. Получив информацию о текущей обстановке, отделение включается в дыхательные аппараты и в защитных изолирующих костюмах газовой и химической защиты обходят зону пролива, выявляют и оказывают первую медицинскую помощь пострадавшим и принимают меры по их эвакуации. Выставляют оцепление и принимают меры по эвакуации персонала, не занятого в ликвидации аварийной ситуации. По указанию Ответственного руководителя отключают поврежденный участок. Совместно с Ответственным руководителем определяют опасную зону, устанавливают предупредительные знаки «Стой - опасная зона», «Проход запрещен» и выставляют дежурные посты. Остаются на месте аварийной ситуации до полной её ликвидации. 8. Персонал здравпункта (МСЧ)немедленно выезжает по вызову на место аварии и оказывает медицинскую помощь возможным пострадавшим, при необходимости организует отправку пострадавших в больницу.  
А. Аварийная разгерметизация трубопроводов с серной и фосфорной кислотой, насосов, фланцевых соединений, запорной арматуры в насосной склада. 1. Появление пролива жидкости в насосной. 2. Шум, издаваемый истекающим продуктом. 3. Срабатывание сигнализации по остановке насосов.   1. Прекращение подачи кислоты по аварийному трубопроводу. 2. Ограничение площади пролива токсичной жидкости. 3. Нейтрализация разлившейся токсичной жидкости.     1. Средства защиты органов дыхания и кожи. 2. Противогазы 3. Средства нейтрализации (сода, известь) 4.Песок, земля. 5. Грузовая автомобильная техника. 1. Первый заметивший аварию окриком предупреждает об этом остальной рабочий персонал. Немедленно оповещает оператора ДПУ АСУТП по прямой связи, телефону или лично. 2. Оператор ДПУ АСУТП обязан: 2.1. По телефонной связи сообщить об аварии диспетчеру предприятия и начальнику смены. 2.2. Объявить аварийную тревогу по громкоговорящей связи и направление эвакуации персонала склада из зоны аварии. 2.3. По монитору проконтролировать закрытие клапанов НS 2-6, (НS 1), срабатывание ПАЗ. Дистанционно отключить блок. 2.4. Дать указание персоналу склада кислоты на прекращение всех технологических операций по приему и выдачи кислоты; отключение поврежденного участка. 2.5. Оповестить начальника смены СКП об аварии на складе. 2.6. При необходимости вызвать дежурный персонал ВГСО, работников здравпункта МСЧ. 3. Начальник смены обязан: 3.1. Обеспечить отключение поврежденного оборудования. 3.2. Прекратить проведение в опасной зоне всех работ, не связанных с ликвидацией аварийной ситуации, обеспечить вывод из опасной зоны персонала, не задействованного в ликвидации аварии. 3.3. Связаться с диспетчером предприятия, уточнить у него направление ветра и район, куда направлены аварийно-спасательные службы. 3.4. Организовать ограждение зоны пролива, сбор и нейтрализацию остатков кислоты, уборку насосной склада. 3.5. По телефону сообщить начальнику производства об аварийной ситуации. 3.6. Организовать встречу аварийно-спасательных служб и объяснить им ситуацию. Поставить перед ними задачу по проверке опасной зоны, оказанию помощи пострадавшим, при необходимости отключению поврежденного участка. 3.7. Информировать диспетчера предприятия о прибытии аварийных служб, предпринятых действиях по локализации аварии, спасению пострадавших и окончании работ после ликвидации аварийной ситуации. 3.8. Организовать первую доврачебную помощь пострадавшим. 4. Диспетчер предприятия обязан: 4.1. При получении сообщения об аварии уточнить у оператора ДПУ АСУТП характер аварии. 4.2. Направить к месту аварии необходимые аварийно-спасательные службы ВГСО, МСЧ. Проинформировать их о направлении ветра для подъезда к месту аварии и маршруте движения (по каким дорогам и через какие проходные можно проехать). 4.3. Оповестить руководство предприятия, согласно схеме оповещения (Приложение 2), и организовать их доставку к месту аварии. 5. Начальник ПМУ – Ответственный руководитель (до его прибытия – начальник смены) по прибытию на место аварии руководит работами по локализации и ликвидации аварийной ситуации. Принимает меры к немедленной эвакуации третьих лиц и личного состава из загазованной зоны. 6. Технологический персонал склада, участвующий в локализации аварийной ситуации, надевает средства защиты органов дыхания и по указанию Ответственного руководителя отсекает при помощи арматуры подачу кислоты в хранилище. Отключает от действующего оборудования поврежденный участок. Производит нейтрализацию остатков пролива кислоты в насосной. Принимает меры по спасению пострадавших и оказанию им доврачебной помощи. После нейтрализации пролитой кислоты и достижении герметичности технологической системы производит уборку загрязненной продуктами территории насосной. При необходимости, по указанию Ответственного руководителя, совместно с членами ВГСО, участвует в ограждении опасной зоны. Зараженный грунт автотранспортом вывозят со склада. 7. Члены дежурного отделения ВГСО, получив сигнал об аварийной ситуации, в течение 3-х минут прибывают на место аварии. Подъезд и развертывание газоспасательной базы осуществляется с учетом направления ветра. Получив информацию о текущей обстановке, отделение включается в дыхательные аппараты и в защитных изолирующих костюмах газовой и химической защиты обходят зону пролива, выявляют и оказывают первую медицинскую помощь пострадавшим и принимают меры по их эвакуации. Выставляют оцепление и принимают меры по эвакуации персонала, не занятого в ликвидации аварийной ситуации. По указанию Ответственного руководителя отключают поврежденный участок. Совместно с Ответственным руководителем определяют опасную зону, устанавливают предупредительные знаки «Стой - опасная зона», «Проход запрещен» и выставляют дежурные посты. Остаются на месте аварийной ситуации до полной её ликвидации. 8. Персонал МСЧ немедленно выезжает по вызову на место аварии и оказывает медицинскую помощь возможным пострадавшим, при необходимости организует отправку пострадавших в больницу.    

 


 

Блок № 4. Узел приема кислот в корпус

(наименование технологического блока)

 

Продолжение таблицы 3
         
А. Аварийная разгерметизация сборников фосфорной кислоты, трубопроводов, арматуры в поддоне.   1. Шум, издаваемый истекающим продуктом 2. Срабатывание сигнализации по минимальному уровню фосфорной кислоты в сборниках и остановке насосов. 3. Появление пролива кислоты в поддоне приямка.   1. Прекращение подачи кислоты в сборники. 2. Освобождение аварийного сборника от кислоты. 3. Ограничение площади пролива токсичной жидкости. 4. Нейтрализация разлившейся токсичной жидкости.   1. Закрытие задвижек поз. Н 15/1 – Н 15/4 2. Средства защиты органов дыхания и кожи. 3. Противогазы 4. Средства нейтрализации (сода, известь) 5. Поддоны. Приямки. 6. Грузовая автомобильная техника. 1. Первый заметивший аварию окриком предупреждает об этом остальной рабочий персонал. Немедленно оповещает оператора ДПУ АСУТП по прямой связи, телефону или лично. 2. Оператор ДПУ АСУТП обязан: 2.1. По телефонной связи сообщить об аварии диспетчеру предприятия и начальнику смены. 2.2. Объявить аварийную тревогу по громкоговорящей связи и направление эвакуации персонала из зоны аварии. 2.3. Дать указание технологическому персоналу на закрытие задвижек и прекращение приема кислоты в аварийный сборник; перекачку кислоты из аварийного сборника в другой; отключение поврежденного оборудования. 2.4. Вызвать дежурный персонал ВГСО, работников здравпункта МСЧ. 3. Начальник смены обязан: 3.1. Обеспечить отключение поврежденного оборудования. 3.2. Прекратить проведение в опасной зоне всех работ, не связанных с ликвидацией аварийной ситуации, обеспечить вывод из опасной зоны персонала, не задействованного в ликвидации аварии. 3.3. Связаться с диспетчером предприятия, уточнить у него куда направлены аварийно-спасательные службы. 3.4. Организовать ограждение зоны пролива, сбор и нейтрализацию остатков кислоты, уборку приямка поддона. 3.5. По телефону сообщить начальнику производства об аварийной ситуации. 3.6. Организовать встречу аварийно-спасательных служб и объяснить им ситуацию. Поставить перед ними задачу по проверке опасной зоны, оказанию помощи пострадавшим, при необходимости отключению поврежденного участка. 3.7. Информировать диспетчера предприятия о прибытии аварийных служб, предпринятых действиях по локализации аварии, спасению пострадавших и окончании работ после ликвидации аварийной ситуации. 3.8. Организовать первую доврачебную помощь пострадавшим. 4. Диспетчер предприятия обязан: 4.1. При получении сообщения об аварии уточнить у оператора ДПУ АСУТП характер аварии. 4.2. Направить к месту аварии необходимые аварийно-спасательные службы ВГСО, МСЧ. Проинформировать их о направлении ветра для подъезда к месту аварии и маршруте движения (по каким дорогам и через какие проходные можно проехать). 4.3. Оповестить руководство предприятия, согласно схеме оповещения (Приложение 2), и организовать их доставку к месту аварии. 5. Начальник ПМУ – Ответственный руководитель (до его прибытия – начальник смены) по прибытию на место аварии руководит работами по локализации и ликвидации аварийной ситуации. Принимает меры к немедленной эвакуации третьих лиц и личного состава из загазованной зоны. 6. Технологический персоналпосле оповещения оператором ДПУ АСУТП об аварийной ситуации обязан: 6.1. Надеть средства защиты органов дыхания (фильтрующий противогаз). 6.2. По указанию Ответственного руководителя покинуть опасную зону (кроме лиц, на которых возложены обязан­ности по локализации аварии). 6.3. Персонал, участвующий в локализации аварии, по указанию Ответственного руководителя отсекает при помощи арматуры подачу кислоты в аварийный сборник. Производит перекачку кислоты из аварийного сборника в исправный, отключает поврежденное оборудование. Производит сбор и нейтрализацию остатков пролива кислоты. Принимает меры по спасению пострадавших и оказанию им доврачебной помощи. После нейтрализации пролитой кислоты и достижении герметичности технологической системы производит уборку загрязненной продуктами территории. При необходимости, по указанию Ответственного руководителя, совместно с членами ВГСО, участвует в ограждении опасной зоны. Зараженный грунт автотранспортом вывозят с территории технологической системы. 7. Члены дежурного отделения ВГСО, получив сигнал об аварийной ситуации, в течение 3-х минут прибывают на место аварии. Подъезд и развертывание газоспасательной базы осуществляется с учетом направления ветра. Получив информацию о текущей обстановке, отделение включается в дыхательные аппараты и в защитных изолирующих костюмах газовой и химической защиты обходят зону пролива, выявляют и оказывают первую медицинскую помощь пострадавшим и принимают меры по их эвакуации. Выставляют оцепление и принимают меры по эвакуации персонала, не занятого в ликвидации аварийной ситуации. По указанию Ответственного руководителя отключают поврежденный участок. Совместно с Ответственным руководителем определяют опасную зону, устанавливают предупредительные знаки «Стой - опасная зона», «Проход запрещен» и выставляют дежурные посты. Остаются на месте аварийной ситуации до полной её ликвидации. 8. Персонал МСЧ немедленно выезжает по вызову на место аварии и оказывает медицинскую помощь возможным пострадавшим, при необходимости организует отправку пострадавших в больницу.  
А. Аварийная разгерметизация трубопроводов с серной и фосфорной кислотой, насосов, фланцевых соединений, запорной арматуры в корпусе.   1. Шум, издаваемый истекающим продуктом. 2. Срабатывание сигнализации по остановке насосов. 3. Падение уровня кислоты в сборниках. 4. Появление пролива кислоты на технологической площадке. . 1. Прекращение подачи кислоты в корпус. 2. Отключение поврежденного участка. 3. Ограничение площади пролива токсичной жидкости. 4. Нейтрализация разлившейся токсичной жидкости.     1. Средства защиты органов дыхания и кожи. 2. Противогазы 3. Средства нейтрализации (сода, известь) 4. Грузовая автомобильная техника. 1. Первый заметивший аварию окриком предупреждает об этом остальной рабочий персонал. Немедленно оповещает оператора ДПУ АСУТП по прямой связи, телефону или лично. 2. Оператор ДПУ АСУТП обязан: 2.1. По телефонной связи сообщить об аварии диспетчеру предприятия и начальнику смены. 2.2. Объявить аварийную тревогу по громкоговорящей связи и направление эвакуации персонала из зоны аварии. 2.3. Дать указание технологическому персоналу на прекращение приема серной и фосфорной кислоты в корпус и отключение поврежденного оборудования. 2.4. Вызвать дежурный персонал ВГСО, работников здравпункта МСЧ. 3. Начальник смены обязан: 3.1. Оценить угрозу возникновения аварийной ситуации. 3.2. Обеспечить отключение поврежденного оборудования. 3.3. Прекратить проведение в опасной зоне всех работ, не связанных с ликвидацией аварийной ситуации, обеспечить вывод из опасной зоны персонала, не задействованного в ликвидации аварии. 3.4. Организовать ограждение зоны пролива, сбор и нейтрализацию разлившейся кислоты, уборку загрязненной территории. 3.5. Связаться с диспетчером предприятия, уточнить у него направление ветра и район, куда направлены аварийно-спасательные службы. 3.6. По телефону сообщить начальнику производства об аварийной ситуации. 3.7. Организовать встречу аварийно-спасательных служб и объяснить им ситуацию. Поставить перед ними задачу по проверке опасной зоны, оказанию помощи пострадавшим, при необходимости отключению поврежденного участка. 3.8. Информировать диспетчера предприятия о прибытии аварийных служб, предпринятых действиях по локализации аварии, спасению пострадавших и окончании работ после ликвидации аварийной ситуации. 3.9. Организовать первую доврачебную помощь пострадавшим. 4. Диспетчер предприятия обязан: 4.1. При получении сообщения об аварии уточнить у оператора ДПУ АСУТП характер аварии. 4.2. Направить к месту аварии необходимые аварийно-спасательные службы ВГСО, МСЧ. Проинформировать их о направлении ветра для подъезда к месту аварии и маршруте движения (по каким дорогам и через какие проходные можно проехать). 4.3. Оповестить руководство предприятия, согласно схеме оповещения (Приложение 2) и организовать их доставку к месту аварии. 5. Начальник ПМУ – Ответственный руководитель (до его прибытия – начальник смены) по прибытию на место аварии руководит работами по локализации и ликвидации аварийной ситуации. Принимает меры к немедленной эвакуации третьих лиц и личного состава из загазованной зоны. 6. Технологический персоналпосле оповещения оператором ДПУ АСУТП об аварийной ситуации обязан: 6.1. Надеть средства защиты органов дыхания (фильтрующий противогаз). 6.2. По указанию Ответственного руководителя покинуть опасную зону (кроме лиц, на которых возложены обязан­ности по локализации аварии). 6.3. Персонал, участвующий в локализации аварии, по указанию Ответственного руководителя отсекает при помощи арматуры поврежденный участок и подачу кислоты в корпус. Производит сбор и нейтрализацию проливов кислоты на технологической площадке. Принимает меры по спасению пострадавших и оказанию им доврачебной помощи. После нейтрализации пролитой кислоты и достижении герметичности технологической системы производит уборку загрязненной продуктами территории. При необходимости, по указанию Ответственного руководителя, совместно с членами ВГСО, участвует в ограждении опасной зоны. Зараженный грунт автотранспортом вывозят с территории технологической системы. 7. Члены дежурного отделения ВГСО, получив сигнал об аварийной ситуации, в течение 3-х минут прибывают на место аварии. Подъезд и развертывание газоспасательной базы осуществляется с учетом направления ветра. Получив информацию о текущей обстановке, отделение включается в дыхательные аппараты и в защитных изолирующих костюмах газовой и химической защиты следует в загазованную зону, где проводит разведку по поиску пострадавших, их эвакуацию и оказание первой медицинской помощи возможным пострадавшим. По указанию Ответственного руководителя отключают поврежденный участок. Принимают меры по эвакуации из помещения корпуса персонала, не занятого в ликвидации аварийной ситуации. Совместно с Ответственным руководителем определяют опасную зону, устанавливают предупредительные знаки «Стой - опасная зона», «Проход запрещен» и выставляют дежурные посты. Остаются на месте аварийной ситуации до полной её ликвидации. 8. Персонал МСЧ немедленно выезжает по вызову на место аварии и оказывает медицинскую помощь возможным пострадавшим, при необходимости организует отправку пострадавших в больницу.  

 

 

6.1. Оперативная часть плана по локализации и ликвидации аварийных ситуаций уровня «А»

В корпусе участка минеральных удобрений № 2 производства минеральных удобрений

 

 

Таблица 4

Наименование, уровень и место аварийной ситуации Опознавательные признаки аварийной ситуации Оптимальные способы противоаварийной защиты (ПАЗ) Технические средства (системы) противоаварийной защиты, применяемые при подавлении и локализации аварийной ситуации (ПАЗ) и средства индивидуальной защиты Исполнители и порядок их действий
         
А. Аварийная разгерметизация радиоизотопного прибора, оснащенного источником ионизирующего излучения (ИИИ) 1. Нарушение целостности корпуса ИИИ. 2. Нарушение целостности биологической защиты. 3. Воздействие агрессивных сред (кислота, аммиак и т.д.) на блок. 4. Пожар или взрыв вблизи ИИИ.   1. Исключение контакта с аварийным прибором. 2. Использование средств радиационной защиты. 1.Средства радиационного и дозиметрического контроля службы РИП цеха КИП. 2. Индивидуальные средства защиты.   1. Первый заметивший аварию обязан: Окриком оповестить всех, находящихся рядом, об аварии. Немедленно сообщить об аварии оператору ДПУ АСУТП по прямой связи, телефону или лично. 2. Оператор ДПУ АСУТП обязан: 2.1. Объявить аварийную тревогу по громкоговорящей связи и направление эвакуации персонала из зоны аварии. 2.2. По телефонной связи сообщить об аварии диспетчеру предприятия и начальнику смены ПМУ. По телефону 39-29 вызвать службу РИП цеха КИП и работников здравпункта МСЧ. 2.4. При необходимости остановить технологическую систему. 3. Начальник смены обязан: 3.1. Доложить об аварии начальнику производства, Ответственному за радиационный контроль (РК) по телефону 38-68 и Ответственному за радиационную безопасность (РБ) по тел. 40-97. 3.2. Прекратить проведение всех видов работ в опасной зоне и обеспечить вывод персонала из опасной зоны на расстояние не менее 50 м 3.3. Встретить представителей службы РИП для проведения радиационного контроля 3.4. После проведения радиационного контроля по указанию Ответственного за РБ оградить зону знаками радиационной опасности и выставить посты, для предотвращения попадания лиц в радиационно-опасную зону; 3.5. Связаться с диспетчером предприятия и уточнить у него, куда направлены аварийно-спасательные службы, организовать их встречу. 3.6. Информировать диспетчера предприятия о прибытии аварийных служб, предпринятых действиях по локализации аварии, спасению пострадавших и окончании работ после ликвидации аварийной ситуации. 3.7. Организовать первую доврачебную помощь пострадавшим 3.8. Пострадавших при аварии, после дозиметрического обследования, немедленно отправить в медпункт (руководствоваться инструкцией «По действию персонала в аварийных ситуациях при эксплуатации радиационных источников».) 4. Диспетчер предприятия обязан: 4.1. При получении сообщения об аварии уточнить у оператора ДПУ АСУТП характер аварии. 4.2. Направить к месту аварии необходимые аварийно-спасательные службы. Проинформировать их о направлении ветра для подъезда к месту аварии и маршруте движения (по каким дорогам и через какие проходные можно проехать). 4.3. Оповестить руководство предприятия, согласно схеме оповещения (Приложение 2), организовать их доставку к месту аварии. 5. Начальник ПМУ – Ответственный руководитель (до его прибытия – начальник смены) по прибытию на место аварии руководит работами по локализации и ликвидации аварийной ситуации. Принимает меры к немедленной эвакуации третьих лиц и личного состава из зараженной зоны. 6. Технологический персонал по указанию Ответственного руководителя обязан: 6.1. Немедленно выключить вентиляционные установки 6.2. Покинуть опасную зону (кроме лиц, на которых возложены обязан­ности по ликвидации аварии и спасению пострадавших) 6.3. После окончания работ пройти радиационный контроль, а при необходимости - дезактивацию. 7. Персонал службы РИП цеха КИП по вызову, немедленно, выезжают на место аварии: 7.1. Проводят работы по ликвидации аварийной ситуации и определению дозы радиоактивного излучения. 7.2. После проведения радиационного контроля, по указанию Ответственного за РБ, ограждают зараженную зону знаками радиационной опасности и выставляют посты для предотвращения попадания лиц в радиационно-опасную зону. 8. Персонал здравпункта (МСЧ) немедленно выезжает по вызову на место аварии и оказывает медицинскую помощь возможным пострадавшим. Выявляет и направляет на медицинское обследование работников производства и других сторонних организаций, находившихся в радиационной зоне. При необходимости организует отправку пострадавших в больницу.  
         
А. Возникновение пожара в корпусе. 1. Появление дыма и пламени. 2. Появление характерного запаха горелой пластмассы. 1. Отключение в зоне пожара всех электроустановок и электрических сетей. 2. Ликвидация возможных очагов возгорания. 1. Пожарные гидранты. 2. Противопожарный водопровод. 3. Кнопки пожарной сигнализации. 4. Огнетушители углекислотные и пенные расположенные в мастерских электрослужбы и службы КИПиА в кор.2.67, 2.70, 5.63, 2.55, на ЦПУ АСУТП. Пожарные краны на отметках: 0.00м, 13.2м, 21.6м 5. Пожарная техника.     1. Первый заметивший аварию обязан: 1.1. Окриком оповестить всех, находящихся рядом, о пожаре. 1.2. Вызвать пожарную команду ПЧ-2 по телефону 01 или 34-01 и сообщить им конкретное место пожара, а также осуществить вызов по пожарному извещателю (разбить стекло, нажать кнопку, дождаться ответного сигнала, передать информацию). 1.3. Немедленно оповестить о пожаре оператора ДПУ АСУТП по прямой связи, телефону или лично. 2. Оператор ДПУ АСУТП обязан: 2.1. Вызвать по телефону дежурный персонал ПЧ-2, работников здравпункта МСЧ, ВГСО. 2.2. Объявить аварийную тревогу по громкоговорящей связи и указать направление эвакуации персонала из зоны пожара. 2.3. По телефонной связи сообщить диспетчеру предприятия о пожаре, уточнить у него направление ветра. 2.4. Доложить о пожаре начальнику смены. 2.5. Отключить вентиляцию в корпусе 2.67 (2.70) кнопкой с пульта на ДПУ. 2.6. При необходимости, остановить технологическую систему 3. Начальник смены обязан: 3.1. Прекратить проведение всех видов работ в корпусе. Совместно с руководителями других служб производства обеспечить вывод персонала из опасной зоны. 3.2. Дать задание дежурному электромонтеру на отключение электроустановок в зоне пожара. 3.3. Выставить посты для огражде­ния опасной зоны, до прибытия дежурного караула ПЧ-2. 3.3. Организовать работу по ограничению распространения огня и тушению пожара первичными средствами пожаротушения. 3.4. Организовать встречу аварийно-спасательных служб и довести им информацию о пожаре. 3.5. Организовать работу по оказанию до врачебной помощи пострадавшим, эвакуировав их из опасной зоны. 3.6. Провести инструктаж прибывшему караулу пожарной части. После доклада дежурного электромонтера о снятии напряжения с электроустановок выдать пожарному караулу письменное разрешение в форме допуска на тушение пожара на отключенном энергетическом оборудовании по форме (Приложение 6). 3.7. Информировать диспетчера предприятия о прибытии аварийных служб, предпринятых действиях по локализации пожара, спасению пострадавших и окончании работ после ликвидации аварийной ситуации. 4. Диспетчер предприятия обязан: 4.1. При получении сообщения о пожаре уточнить у оператора ДПУ АСУТП характер аварии. Сообщить ему направление ветра. 4.2. Направить к месту пожара необходимые аварийно-спасательные службы ПЧ-2, ВГСО, МСЧ. Проинформировать их о направлении ветра для подъезда к месту пожара и маршруте движения (по каким дорогам и через какие проходные можно проехать). 4.3. Оповестить руководство предприятия, согласно схеме оповещения (Приложение 2) и организовать их доставку к месту аварии. 5. Начальник ПМУ – Ответственный руководитель (до его прибытия – начальник смены) по прибытию на место пожара руководит работами по локализации и ликвидации аварийной ситуации. Принимает меры к немедленной эвакуации третьих лиц и личного состава из загазованной зоны. Координирует действия аварийно-спасательных служб. 6. Персонал производствапо указанию Ответственного руководителяобязан: 6.1. Покинуть опасную зону (кроме лиц, на которых возложены обязан­ности по ликвидации пожара). 6.2. Персонал, участвующий в локализации пожара, по указанию Ответственного руководителя обязан: 6.2.1. Встретить аварийно-спасательные службы ВГСО, ПЧ-2, МСЧ. 6.2.2. Установить посты для огражде­ния опасной зоны. 6.2.3. Выключить вен­тиляцию, закрыть окна, двери, ворота. 6.2.4. До прибытия ПЧ-2 приступить к тушению пожара имеющимися в производстве средствами, предварительно надев на себя средства органов дыхания (фильтрующий противогаз). Тушить пожар разрешается только при отсутствии угрозы жизни и здоровью. 6.2.5. Одновременно с тушением пожара производить охлаждение аппаратов, которым угрожает опасность от высоких температур. 6.2.6. При распространении огня обеспечить эвакуацию горючих веществ и материальных ценностей. 6.2.7. Принять меры по спасению пострадавших и оказанию первой помощи. 6.2.8. Все действия по локализации пожара согласовывать с Ответственным руководителем. 7. Дежурный электромонтер обязан: 7.1. Снять напряжение с электроустановок, находящихся в зоне загорания. 7.2. После проведения оперативных переключений доложить начальнику смены об отключенных электроустановках и сделать запись в оперативном журнале электротехнического персонала. 7.3. Сделать заявку начальнику смены ЦЭС на снятие напряжения с электроустановок в зоне пожара. 8. Начальник смены ЦЭС обязан: 8.1. По заявке дежурного электромонтера ПМУ должен дать распоряжение оперативному персоналу ЦЭС на снятие напряжения с электроустановок в зоне пожара. 8.2. Дежурный электромонтер ЦЭС должен произвести все необходимые оперативные отключения на трансформаторной подстанции по согласованию с дежурным электромонтером ПМУ и по распоряжению начальника смены ЦЭС. В процессе переговоров дежурный электромонтер ЦЭС использует транковую (мобильную) связь. 9. Члены дежурного отделения ВГСО, получив сигнал о пожаре, в течение 3-х минут прибывают на место пожара. Подъезд и развертывание газоспасательной базы осуществляется с учетом направления ветра. Получив информацию о текущей обстановке, отделение включается в дыхательные аппараты и в защитных изолирующих костюмах газовой и химической защиты следует в загазованную зону, где проводит разведку по поиску пострадавших, их эвакуацию и оказание первой медицинской помощи возможным пострадавшим. По указанию Ответственного руководителя принимают меры по эвакуации из зоны возгорания персонала, не занятого в ликвидации аварийной ситуации. Оказывают первую медицинскую помощь возможным пострадавшим. Совместно с Ответственным руководителем определяют газоопасную зону, устанавливают предупредительные знаки «Стой – опасная зона», «Проход запрещен» и выставляют перед опасным участком дежурные посты, перекрывают автодороги. 10. Члены дежурного караула ПЧ-2, получив сигнал о пожаре, в течение 5-ти минут прибывают на место пожара. Подключают передвижную пожарную технику к пожарным гидрантам. Проводят боевое развертывание. Пожарными рукавами подают средства тушения к очагу возгорания. Ликвидируют очаги загорания. Проводят орошение близлежащего к очагу пожара оборудования. 11. Персонал МСЧ немедленно выезжает по вызову к месту пожара и оказывает медицинскую помощь возможным пострадавшим, при необходимости отправляет их в больницу. 12. Ремонтный персонал производства по указанию Ответственного руководителя, совместно с членами ВГСО, отглушают поврежденные учас­тки от технологической схемы, участвуют в ограждении опасной зоны и спасению пострадавших.  
         
А. Отключение электроэнергии 1. Остановка электрооборудования и технологических систем. 2.Выключение приточно-вытяжной вентиляции.   1. Включение аварийного освещения. 2. Аккумуляторные фонари: место их нахождения – рабочее место дежурного электромонтера и оператора ДПУ АСУТП. 1. Оператор ДПУ АСУТП обязан: 1.1. Доложить диспетчеру предприятия, начальнику смены и персоналу склада аммиака об аварийной остановке оборудования. 1.2. Уточнить у диспетчера предприятия о длительности отключения электроэнергии. 1.3. Используя аварийный блок питания, остановить технологическую систему в соответствии с рабочей инструкцией. 2. Начальник смены (аппаратчик очистки газа) обязан: 1. В ночное время получить на ДПУ аккумуляторные фонари и обеспечить безопасный вывод персонала из производственных корпусов в раздевалку АБК. 2. Сообщить начальнику производства об отключении электроэнергии. 3. Информировать диспетчера предприятия о предпринятых действиях и пуске в работу оборудования после подачи напряжения. 3. Дежурный электромонтер обязан: Произвести осмотр ПСУ с целью выяснения причин исчезновения напряжения и подачи его вновь. 4. Начальник ПМУ – Ответственный руководитель (до его прибытия и в ночное время – начальник смены) по прибытию на место аварии руководит работами по локализации и ликвидации аварийной ситуации. 5.Технологический персоналобязан по указанию Ответственного руководителя: 4.1. В ночное время оставаться на рабочих местах до прихода провожатого, имеющего аккумуляторный фонарь 5.2. Перевести арматуру на технологических линиях в положение «закрыто». 5.3. Сдренировать растворы с кислотных, пульповых, водяных трубопроводов и насосов в отделениях нейтрализации, абсорбции, обеспыливания и склада кислот. 5.4. При необходимости проветрить помещение (открыть окна, двери, ворота)  
А. Разгерметизация трубопровода природного газа, фланцевых соединений, запорной арматуры. 1. Шум издаваемый истекающим газом. 2. Загазованность природным газом из-за пропусков 3. Падение давления природного газа. 4. Срабатывание световой и звуковой сигнализации по падению давления природного газа. 5. Срабатывание блокировки на прекращение подачи природного газа к топкам при достижении предельных значений параметров, превышение которых ведет к развитию аварийной ситуации. 1. Автоматика безопасности. 2. Закрытие задвижек на трубопроводе природного газа, на эстакаде, в кор.2.70 задвижка №13 (в кор. 2.67 №16). 2. Отключение отсекателей ПКН на трубопроводе природного газа перед топками (калориферами). 1. Противогазы и спецодежда. 2. Газоанализаторы, сигнализаторы. 3. Запорная арматура. 4. Система оповещения. 1. Первый обнаруживший аварию обязан по прямой связи, телефону или лично сообщить об аварии оператору ДПУ АСУТП 2. Оператор ДПУ АСУТП обязан: 2.1. Немедленно, по телефону 32-80 сообщить начальнику смены ТЭЦ об аварии на газопроводе и вызвать дежурную службу теплогазоснабжения ТЭЦ. 2.2. Сообщить об аварии диспетчеру предприятия и начальнику смены. 2.3. Вызвать аварийно-спасательные службы ВГСО, ПЧ-2, персонал здравпункта (МСЧ). 2.4. Объявить аварийную тревогу по громкоговорящей связи и направление эвакуации персонала из зоны аварии. 2.5. По монитору проверить срабатывание ПАЗ по отключению подачи природного газа к топкам. Для достоверности срабатывания клапанов- отсекателей, дать задание технологическому персоналу проверить их срабатывание по месту. В случае несрабатывания закрытия клапанов, отключить трубопровод с помощью запорной арматуры. 2.6. Оповестить об аварии персонал склада аммиака. 2.7. Сбросить остаточное давление аммиака через смесители, не прекращая подачи фосфорной кислоты. Остановить технологическую систему в соответствии с Инструкцией по безопасной остановке производства (Приложение 5). 3. Начальник смены обязан: 3.1. Продублировать действия диспетчера предприятия - потребовать от начальника смены ТЭЦ перекрытия подачи природного газа в корпус. 3.2. Связаться с диспетчером предприятия и уточнить у него направление ветра и место куда направлены аварийно-спасательные службы. 3.3. Прекратить проведение в опасной зоне всех работ, не связанных с ликвидацией аварийной ситуации, обеспечить вывод из опасной зоны персонала, не задействованного в ликвидации аварии. 3.4. Обеспечить оцепление опасной зоны. 3.4. Организовать работы по локализации аварии, если позволяет степень загазованности. 3.6. Дать задание аппаратчику очистки газа на закрытие задвижек природного газа к топкам. 3.7. По телефону сообщить начальнику производства об аварийной ситуации. 3.8. Организовать встречу аварийно-спасательных служб и объяснить им ситуацию. Поставить перед ними задачу по проверке опасной зоны, отключению поврежденного участка, оказанию доврачебной помощи пострадавшим. 3.9. Информировать диспетчера предприятия о прибытии аварийных служб, предпринятых действиях по локализации аварии, спасению пострадавших и окончании работ после ликвидации аварийной ситуации. 3.10. При возникновении пожара дать задание дежурному электромонтеру на отключение электроустановок в зоне пожара. 4. Диспетчер предприятия обязан: 4.1. При получении сообщения об аварии от оператора ДПУ АСУТП немедленно сообщить о ней начальнику смены ТЭЦ, потребовав перекрытия подачи природного газа в корпус. 4.2. Направить к месту аварии необходимые аварийно-спасательные службы ВГСО, ПЧ-2, МСЧ. Проинформировать их о направлении ветра для подъезда к месту аварии и маршруте движения (по каким дорогам и через какие проходные можно проехать). 4.3. Оповестить руководство предприятия согласно схеме оповещения (Приложение 2) и организовать их доставку к месту аварии. 5. Начальник ПМУ – Ответственный руководитель (до его прибытия и в ночное время – начальник смены) по прибытию на место аварии руководит работами по локализации и ликвидации аварийной ситуации. Принимает меры к немедленной эвакуации третьих лиц и личного состава из загазованной зоны. 5. Аппаратчик очистки газа обязан по указанию начальника смены (Ответственного руководителя): Закрыть задвижки на трубопроводе природного газа к топкам, в соответствии с Инструкцией по розжигу топок (калориферов). 6. Дежурный электромонтер обязан по указанию Ответственного руководителя: 6.1. При пожаре снять напряжение со щитов ПСУ 101, 102, 103, 106 или 201-203, 206 путем отключением вводных автоматов. 6.2. В случае взрыва в топке снять напряжение с вентиляторов топки поз.165(366) на щитах 3Щ ПСУ 202, 203 разборкой схемы. 6.3. После проведения оперативных переключений доложить начальнику смены об отключенных электроустановках и сделать запись в оперативном журнале электротехнического персонала. 6.4. Сделать заявку начальнику смены ЦЭС на снятие напряжения с электроустановок в зоне пожара. 7. Технологический персонал обязанпо указанию Ответственного руководителя: 7.1. Надеть средства защиты органов дыхания и остановить технологические системы в соответствии с Инструкцией по безопасной остановке производства (Приложение 5). 7.2. Покинуть опасную зону (кроме лиц, на которых возложены обязан­ности по локализации аварии) 7.3. Установить посты для огражде­ния опасной зоны, используя средства индивидуальной защиты. 7.4. В случае отсутствия загорания проветрить помещение (включить вен­тиляцию, открыть окна, двери, ворота). 7.5. После проветривания присту­пить к ликвидации последствий аварии. 7.6. С применением средств защиты органов дыхания принять меры по спасению пострадавших и оказанию им доврачебной помощи. 8.Члены дежурного отделения ВГСО, получив сигнал об аварийной ситуации, в течение 3-х минут прибывают на место аварии. Подъезд и развертывание газоспасательной базы осуществляется с учетом направления ветра. Получив информацию о текущей обстановке, отделение включается в дыхательные аппараты и в защитных изолирующих костюмах газовой и химической защиты следует в загазованную зону, где проводит разведку по поиску пострадавших, их эвакуацию и оказание первой медицинской помощи возможным пострадавшим. По указанию Ответственного руководителя отключают поврежденный участок. Принимают меры по эвакуации из помещения корпуса персонала, не занятого в ликвидации аварийной ситуации, оказывают первую медицинскую помощь возможным пострадавшим. Совместно с Ответственным руководителем определяют газоопасную зону, устанавливают предупредительные знаки «Стой - опасная зона», «Проход запрещен» и выставляют перед загазованным участком дежурные посты. 9. Члены дежурного караула ПЧ-2, получив сигнал об аварийной ситуации, в течение 5-ти минут прибывают на место аварии. Подъезжают к месту аварии с подветренной стороны, подключают передвижную технику к пожарным гидрантам, проводят боевое развертывание, подают распыленную струю воды на газообразное облако. В случае возникновения пожара, подают распыленную струю воды на очаг возгорания. Оказывают первую медицинскую помощь пострадавшим и принимают меры по их эвакуации. Остаются на месте аварии до полной ее ликвидации. 10. Персонал здравпункта (МСЧ) по вызову, немедленно прибывает на место аварии с подветренной стороны и оказывает медицинскую помощь возможным пострадавшим. При необходимости организует отправку пострадавших в больницу. 11. Ремонтный персонал производства, по указанию Ответственного руководителя работ, совместно с дежурным персоналом ВГСО обязаны: 11.1. С применением средств защиты органов дыхания и кожи отглушить поврежденный учас­ток трубопровода от технологической схемы.

 

 

Начальник ПМУ А.Б.Грибков

 

Зам.начальника ПМУ по технологии А.В.Шибнев

 

Командир ВГСО С.Б.Мартюшов

 

Начальник ПЧ-2 Ю.В.Веселов

 

 


7. Оперативная часть плана по локализации и ликвидации аварийных ситуаций уровня «Б»

Участок минеральных удобрений № 2 производства минеральных удобрений

 

 

Таблица 4

Наименование, уровень и место аварийной ситуации Опознавательные признаки аварийной ситуации Оптимальные способы противоаварийной защиты (ПАЗ) Технические средства (системы) противоаварийной защиты, применяемые при подавлении и локализации аварийной ситуации (ПАЗ) и средства индивидуальной защиты Исполнители и порядок их действий
         
Блок № 1. Участок приема жидкого аммиака в корпус
Б. Аварийная разгерметизация коллектора жидкого аммиака, арматуры на эстакаде от электрозадвижек № 13\1 (№13\2) до входа в корпус 2.70 (2.67) 1.Появление характерного запаха аммиака из-за пропусков. 2. Падение давления в блоке 3. Срабатывание сигнализации по падению давления аммиака перед смесителями, аммонизаторами. 4. Отсечка подачи жидкого аммиака в смесители, аммонизаторы. 1. Прекращение подачи аммиака в корпус. 2. Отсечка аварийного оборудования. 3.Применение индивидуаль

Поделиться с друзьями:

mylektsii.su - Мои Лекции - 2015-2026 год. (0.964 сек.)Все материалы представленные на сайте исключительно с целью ознакомления читателями и не преследуют коммерческих целей или нарушение авторских прав Пожаловаться на материал