Студопедия

Главная страница Случайная страница

КАТЕГОРИИ:

АвтомобилиАстрономияБиологияГеографияДом и садДругие языкиДругоеИнформатикаИсторияКультураЛитератураЛогикаМатематикаМедицинаМеталлургияМеханикаОбразованиеОхрана трудаПедагогикаПолитикаПравоПсихологияРелигияРиторикаСоциологияСпортСтроительствоТехнологияТуризмФизикаФилософияФинансыХимияЧерчениеЭкологияЭкономикаЭлектроника






Обработка журнала тахеометрической съемки






Обработка ведется в следующей последовательности.

1. Вычисляют дальномерные расстояния от станции до реечных точек по формуле

.

Расстояние от станции I до реечной точки № 1 будет равно (см. табл.3)

.

2. Находят угол наклона визирной оси трубы теодолита

δ = КЛ – МО.

Угол наклона визирной оси со станции I на реечную точку № 1 составит (см. табл.3)

δ = – 2 56′ – 0 01′ = –2 57′.

3. Определяют превышение между станцией и реечными точками по формуле

.

Превышение между станцией I и реечной точкой № 1 составит (см. табл.3)

.

4. Вычисляют горизонтальное проложение между станцией и реечной точкой

.

Горизонтальное проложение между станцией I и реечной точкой № 1 составит (см. табл.3)

 

.

5. Находят отметки реечных точек по формуле

.

Отметка реечной точкой № 1 будет равна (см. табл.3)

.

 

Построение плана теодолитно-тахеометрической съемки

 

Построение плана теодолитно-тахеометрической съемки выполняется на листе чертежной бумаги, размеры которого определяются в зависимости от размеров координатной сетки со стороной квадрата, равной 100 мм. Масштаб плана - 1: 1000 (в 1 см 10 метров).

Размеры координатной сетки, т.е. число квадратов (девять или двенадцать) выбирают с таким расчетом, чтобы план разместился внутри границ этой сетки. Координатную сетку можно построить при помощи линейки Дробышева, а при ее отсутствии - посредством циркуля и масштабной линейки.

На листе бумаги прочерчивают две диагонали, проходящие через углы листа. От точки пересечения диагоналей по ним откладывают циркулем равные отрезки. Соединяя концы отрезков прямыми линиями, получают правильный прямоугольник. На сторонах прямоугольника откладывают отрезки, равные длине стороны квадрата (100мм). Соединив концы отрезков, расположенные на противоположных сторонах правильного прямоугольника, получают координатную сетку. Правильность построения сетки проверяют путем сравнения в каждом квадрате диагоналей и сторон квадрата. Допустимое расхождение - 0, 2 мм. Оформление координатной сетки показано на рис. 3.

Точки полигона I, II, III, IV, V наносятся на план по координатам при помощи поперечного масштаба, циркуля и линейки. Правильность нанесения полигона проверяется сравнением длин и румбов его сторон, полученных на плане, с данными ведомости вычисления координат. После изображения на плане точек съемочной сетки приступают к вычерчиванию ситуации, руководствуясь абрисом (см. рис.1).

Например, чтобы нанести ЛЭП низкого напряжения, необходимо от точки V по линии V-I отложить отрезок, равный 16 м (в масштабе плана это 16 мм), и от точки II по линии II-III - 108 м, полученные на линии V-I и II-III точки соединить прямой линией (см. рис. 1, а).

Точки А, Б, В, Г, Д, Е, характеризующие расположение рейки на плане, наносятся путем угловой засечки (см. рис.1, б и расположенную рядом таблицу). Эти точки на оформленном плане не показываются.

Для вычерчивания плана теодолитно-тахеометрической съемки нужна тушь черного, зеленого и коричневого цветов.

Условные обозначения точки теодолитного хода, луга, редкого леса, строящейся дороги с покрытием, фруктового сада, деревянного забора, ЛЭП и координатная сетка с надписями выполняются черной тушью. Горизонтали и их отметка изображаются коричневой тушью (толщина основных горизонталей - 0, 1 мм, основных утолщенных - 0, 25 мм), берега реки - зеленой (толщина 0, 2 мм).

Положение реечных точек тахеометрической съемки 1, 2, 3....20 (см. рис. 2) устанавливается методом полярных координат. Например, чтобы нанести на план точку 7 (см. рис. 2а. и табл. 3) необходимо от линии I-II по ходу часовой стрелки при помощи транспортира построить угол 48°45¢ и на стороне угла от точки I отложить отрезок 35, 8 м (в масштабе плана 35, 8 мм).

Около реечной точки подписывается ее номер (в числителе) и отметка (в знаменателе). Например: . Такая запись оставляется на плане.

Горизонтали проводятся путем интерполирования отметок реечных точек. Вуальный способ интерполирования включает следующие действия (рис.4).

Рис. 3. Оформление рамки плана и размещение подписей

 

Рис. 4. Проведение горизонталей визуальным способом

 

1. Соседние точки соединяются карандашом и на полученных линиях визуально намечаются горизонтали, кратные заданной высоте сечения рельефа. На рис. 4 между точками 1 и 2 проходит одна горизонталь 26 метров при заданной высоте сечения 1 м. Расстояние от этой горизонтали до точки 1 составляет 0, 9, а до точки 2 – 0, 3 от заложения, соответствующего 1 м по высоте рельефа. Между точками 2 и 3 проходят две горизонтали 27 и 28 метров с соответствующими заложениями 0, 7, 1, 0, 0, 5 и т. д.

2. Намеченные следы горизонталей между точками соединяются плавными линиями и изображаются коричневым цветов. В разрывах горизонталей тем же цветом указываются высоты горизонталей, при чем верх цифр должен быть направлен в сторону подъема (см. на рис. 8.3, б горизонталь 27 метров).

Через здания, дороги, водоемы и искусственные сооружения горизонтали не проводятся.

После полевого контроля черной тушью изображаются линии тахеометрического хода, реечные точки, местные предметы, линии дорог, границы угодий, условные знаки лесных массивов, луговая растительность, кустарники и пр.

После составления плана в карандаше его проверяют, при необходимости корректируют, а затем приступают к вычерчиванию в туши, применяя условные топографические знаки, приведенные на рис. 5.

Результаты вычислительных и графических работ оформляются в виде отчета, состоящего из титульного листа (номер страницы этого листа №1, он не подписывается), вторая и последующие страницы подписываются: стр. 2 – это табл.1 (журнал теодолитной съемки), стр.3 – абрис, стр. 4 – журнал тахеометрической съемки, стр. 5 – ведомость вычисления прямоугольных координат, стр. 6. –условные знаки, стр. 7 – план теодолитно-тахеометрической съемки.

 

Точка теодолитного хода Фруктовый сад
Луг Сплошной деревянный забор
Редкий лес ЛЭП низкого напряжения
Строящаяся дорога с покрытием Пешеходная тропа
Рис. 5. Условные знаки для топографических планов масштаба 1: 1000

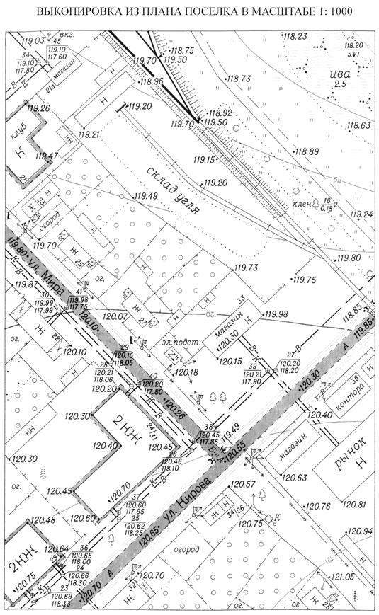
Пример оформления плана участка местности приводится на рис. 6.

 

 

Рис. 6. Образец построения топографического плана


Поделиться с друзьями:

mylektsii.su - Мои Лекции - 2015-2026 год. (0.831 сек.)Все материалы представленные на сайте исключительно с целью ознакомления читателями и не преследуют коммерческих целей или нарушение авторских прав Пожаловаться на материал