Студопедия

Главная страница Случайная страница

КАТЕГОРИИ:

АвтомобилиАстрономияБиологияГеографияДом и садДругие языкиДругоеИнформатикаИсторияКультураЛитератураЛогикаМатематикаМедицинаМеталлургияМеханикаОбразованиеОхрана трудаПедагогикаПолитикаПравоПсихологияРелигияРиторикаСоциологияСпортСтроительствоТехнологияТуризмФизикаФилософияФинансыХимияЧерчениеЭкологияЭкономикаЭлектроника






Ферма деревянная

Учебно-методическое пособие

 

 

Тольятти

ТГУ

Составитель Амирджанова И.Ю.

Редактор Живоглядова И.А.

 

 

Учебно-методическое пособие выполнено в соответствии с рабочей программой дисциплины «Инженерная графика». Содержит основные положения по выполнению рабочих чертежей деревянных конструкций.

В методических указаниях изложены теоретические сведения о соединениях

деревянных конструкций и приведены их условные графические изображения в соответствии со стандартами Системы проектной документации для строительства и строительными нормами и правилами.

Представлен порядок выполнения и оформления задания, приведены некоторые справочные материалы, условные графические обозначения деревянных и металлических изделий, а также крепёжных элементов. Рассмотрены виды соединений элементов стропильной фермы.

Предназначено для студентов направления подготовки 270800.62 «Строительство» очной и заочной форм обучения.

 

СОДЕРЖАНИЕ

 

ВВЕДЕНИЕ.. 4

ОБЩИЕ СВЕДЕНИЯ О ДРЕВЕСИНЕ.. 4

ОБЩИЕ СВЕДЕНИЯ О ДЕРЕВЯННЫХ КОНСТРУКЦИЯХ... 6

ОБЩИЕ ПРАВИЛА ОФОРМЛЕНИЯ ЧЕРТЕЖЕЙ ДЕРЕВЯННЫХ КОНСТРКЦИЙ 7

ВИДЫ СОЕДИНЕНИЙ ЭЛЕМЕНТОВ ФЕРЫ... 9

ВРУБКА... 9

СОЕДИНЕНИЕ ЧЕРЕЗ «ПОДУШКУ».. 11

СОЕДИНЕНИЕ ЧЕРЕЗ ПОДПЯТНИК.. 13

СОЕДИНЕНИЕ НА ШПОНКАХ... 15

НАКЛАДКИ... 15

СОЕДИНЕНИЕ СТЯЖНЫМИ БОЛТАМИ... 16

НАГЕЛИ.. 17

СВАРНОЕ СОЕДИНЕНИЕ.. 21

СОДЕРЖАНИЕ РАБОТЫ... 22

ПОСЛЕДОВАТЕЛЬНОСТЬ ВЫПОЛНЕНИЯ РАБОТЫ... 23

ПОСЛЕДОВАТЕЛЬНОСТЬ ПОСТРОЕНИЯ ГЛАВНОГО ВИДА.. 24

ПРОСТАНОВКА РАЗМЕРОВ.. 25

НАНЕСЕНИЕ НОМЕРОВ ПОЗИЦИЙ ОСНОВНЫХ ЭЛЕМЕНТОВ И СРЕДСТВ СОЕДИНЕНИЙ.. 27

МАРКИРОВКА И СОСТАВЛЕНИЕ ВЕДОМОСТИ ЭЛЕМЕНТОВ.. 28

ПРИМЕР ОФОРМЛЕНИЯ РАБОТЫ.. 30

ДОПОЛНИТЕЛЬНЫЕ МАТЕРИАЛЫ ДЛЯ ПРОВЕРКИ И ЗАКРЕПЛЕНИЯ ЗНАНИЙ ПО ТЕМЕ 32

ВОПРОСЫ ДЛЯ САМОПРОВЕРКИ.. 30

ТЕСТЫ ДЛЯ ПРОВЕРКИ ЗНАНИЙ ПО ИЗУЧЕННОЙ ТЕМЕ. 33

БИБЛИОГРАФИЧЕСКИЙ СПИСОК 40

РЕКОМЕНДУЕМАЯ ЛИТЕРАТУРА... 41

Цели и задачи раздела «ФЕРМА ДЕРЕВЯННАЯ» дисциплины «Инженерная графика»

 

Цель настоящего пособия – способствовать формированию профессиональных компетенций ПК-3 и ПК-5, предусмотренных для бакалавров, а именно, ознакомиться с приёмами графического оформления чертежей строительных конструкций на примере рабочего чертежа деревянной фермы, а также с положениями ГОСТ 21.501-93. СПДС «Правила выполнения архитектурно-строительных рабочих чертежей».

 

Задачи:

- сформировать долговременные знания по изучаемой теме;

- привить навыки выполнения чертежей деревянных конструкций.

 

В результате изучения темы «Ферма деревянная» студенты должны:

иметь представление:

- о древесине и лесоматериалах

знать:

- основные конструктивные элементы фермы;

- правила выполнения и оформления чертежей деревянных конструкций

владеть навыками:

- пользования справочной литературой;

- составления и оформления чертежей деревянных конструкций

 

ВВЕДЕНИЕ

ОБЩИЕ СВЕДЕНИЯ О ДРЕВЕСИНЕ

 

Древесина — традиционный строительный материал с многовековым опытом применения. Как материал для ограждающих и несущих конструкций дерево применяется для малоэтажного строительства (стены, перекрытия, полы, столярные изделия). При раскрое брёвен получают пиломатериалы различного вида и размеров. Из них вырабатывают заготовки строительных деталей или используют в целом виде.

Древесина легко обрабатывается, обладает низкой теплопроводностью, достаточной прочностью.

Лесоматериалы, применяемые в строительстве, можно разделить на три группы:

 

1. Круглый лес - очищенные от коры и сучьев древесные стволы:

- бревна строительные;

- подтоварник (кругляк тонкий);

- жерди.

Промежуточное положение между круглым и пиленым лесом занимают:

- пластины-бревна (распиленные пополам вдоль);

- четвертины-бревна (распиленные на четыре части);

- горбыли (боковые части бревен).

 

2. Пиленый лесоматериал представляет собой:

- лежни - бревна, опиленные с двух сторон;

- брусья - бревна, опиленные с четырех сторон;

- бруски - толщиной не более 100 мм и шириной не более двойной толщины;

- доски - толщиной не более 50 мм и шириной более двойной толщины.

В зависимости от чистоты кромок доски делят на необрезные и обрезные.

 

3. Изделия из древесины - шпунтованные доски, галтели, паркет, строительная

фанера и т.п.

Строительная фанера представляет собой лист, склеенный из нескольких слоев древесного шпона толщиной от 2 до 15 мм.

 

 

Условное изображение древесины в сечении ГОСТ 2.306-68.

 

 

 

ОБЩИЕ СВЕДЕНИЯ О ДЕРЕВЯННЫХ КОНСТРУКЦИЯХ.

 

Конструкциями из дерева называются сооружения или части их, несущие нагрузку и выполненные целиком или преимущественно из дерева.

С особенностями чертежей деревянных конструкций студенты знакомятся при выполнении рабочего чертежа деревянной фермы.

Фе́ рма (фр. ferme, от лат. firmus прочный), в строительстве - стержневая система, остающаяся геометрически неизменяемой после замены её жёстких узлов шарнирными. Фермы образуются из прямолинейных стержней, соединенных в узлах.

Ферма является несущей конструкцией и представляет собой «плоскую» стержневую решетчатую конструкцию, предназначенную для поддержания покрытия здания.

Деревянными фермами можно перекрывать пролёты от 4 до 20 м.

Фермы изготавливают в заводских условиях, а их монтаж и, если необходимо, укрупнительную сборку выполняют на строительной площадке.

 

 

 

 

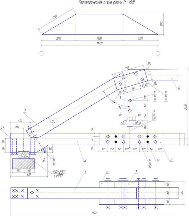
Верхний и нижний элементы фермы называют ВЕРХНИМ и НИЖНИМ ПОЯСАМИ, вертикальные стержни — СТОЙКАМИ, а наклонные — РАСКОСАМИ.

Место соединения отдельных элементов решётки фермы друг с другом называется УЗЛОМ.

В отличие от остальных узлов фермы, узел у места перелома верхнего пояса называется КОНЬКОВЫМ УЗЛОМ, а узел опорной части фермы — ОПОРНЫМ УЗЛОМ.

Расстояние между опорами называется ПРОЛЁТОМ фермы, между узлами нижнего пояса — ПАНЕЛЬЮ, от оси нижнего пояса до оси конькового узла — ВЫСОТОЙ ФЕРМЫ (рис. 3).

 

 

ОБЩИЕ ПРАВИЛА ОФОРМЛЕНИЯ ЧЕРТЕЖЕЙ ДЕРЕВЯННЫХ КОНСТРУКЦИЙ

 

При выполнении чертежей деревянных конструкций необходимо соблюдать

общие правила графического оформления строительных чертежей.

Оформление чертежа должно соответствовать требованиям стандартов ЕСКД, СПДС, ЕСТД и других нормативных документов.

На чертежах деревянных конструкций применяют масштабы уменьшения

ГОСТ 2.302-68:

Геометрические схемы 1: 50; 1: 100; 1: 200

Схемы расположения элементов конструкции (планы, разрезы, виды)

1: 50; 1: 100; 1: 200

Рабочие чертежи конструкций 1: 20; 1: 50

Узлы 1: 5; 1: 10; 1: 20

Заготовительные чертежи элементов 1: 2; 1: 5; 1: 10

 

Масштабы чертежей деревянных конструкций выбирают в зависимости от

сложности конструкции. Они должны обеспечить компактность изображения, удобство пользования чертежами и возможность получения четких копий при современных способах размножения чертежей.

Для всех элементов фермы, отдельно для деревянных и отдельно для металлических, составляют спецификацию.

Маркировку позиций основных элементов деревянных конструкций и позиций

средств их соединения выполняют арабскими цифрами на полочках.

Нумерации позиций деревянных, металлических и стандартных изделий должны быть сквозными и начинаться с номера 1.

Последовательность нумерации:

пояса (верхний и нижний),

стойки,

раскосы,

подушки,

прокладки,

накладки и т.д.

Линии чертежа должны быть выполнены по правилам ГОСТ 2.303-68.

При вычерчивании геометрической схемы фермы толщину линий принять равной 0, 4...0, 5 мм.

При вычерчивании узла стропил и других элементов фермы толщина линии должна быть 0, 6...0, 8 мм.

 

ВИДЫ СОЕДИНЕНИЙ ЭЛЕМЕНТОВ ФЕРМЫ

 

Нагрузка на стропильную ферму может передаваться как на отдельные узлы, так и на всю ферму, поэтому элементы решётки фермы работают и рассчитываются как на сжатие, так и на растяжение, причём, нижний пояс — на растяжение, верхний пояс — на сжатие или сжатие с изгибом.

Решётка деревянной или комбинированной фермы выполняется из сплошных элементов: досок, брусьев, брёвен. Для соединения отдельных элементов деревянных конструкций применяют различные детали, позволяющие не только обеспечить заданную форму конструкции, но и передавать значительные усилия с одного элемента на другой.

 

ВРУБКА

Соединение отдельных элементов весьма часто осуществляется с помощью врубок. На рис. 6 показана так называемая ЛОБОВАЯ ВРУБКА С ОДНИМ ЗУБОМ, на рис. 7 — С ДВОЙНЫМ ЗУБОМ.

Верхний сжатый элемент фермы упирается своей торцовой частью в гнездо, выбранное в нижнем элементе фермы. Такая врубка рассчитывается на смятие и скалывание. Ось раскоса должна быть перпендикулярна опорной площадке, а опорная площадка симметрична относительно оси раскоса. Глубина врубки не должна превышать четвёртой части высоты сечения элемента в пролёте и третьей части в опорном узле фермы. Минимальная глубина врубки должна быть 30 мм в брёвнах и 20 мм в брусьях.

Врубка с двойным зубом выполняется, когда врубка с одним зубом не может обеспечить необходимого размера площади смятия. Второй зуб врезается всегда ниже первого не менее чем на 20 мм.

Во избежание смещения элементов, соединённых врубкой, они закрепляются скобами или стяжными болтами.

Для создания опорной площадки под шайбу и головку болта в одном из элементов устраивается соответствующий вырез (рис. 6). Если же по расчёту ослаблять сечение элемента вырезом не допустимо, то опорная площадка создаётся скошенной кромкой доски, которая прибивается к элементу конструкции, в данном случае к нижнему поясу фермы гвоздями (рис. 7).

 

 

 

СОЕДИНЕНИЕ ЧЕРЕЗ «ПОДУШКУ»

 

Когда невозможно соединение деталей фермы с помощью лобовой врубки, например, если в узле сходятся два раскоса (рис. 8), то соединение раскосов с поясом фермы осуществляется через подушку (рис. 8, поз. 3).

ПОДУШКА — короткий брус, который врезается в пояс фермы и скрепляется с ним болтами.

Скошенные плоскости подушки, в которые упираются раскосы, должны быть перпендикулярны осям раскосов.

Раскосы скрепляются с подушкой при помощи штырей.

Штырь - небольшого размера стальной стержень круглого сечения, вставляемый в гнёзда, высверленные в торцах раскоса и подушки (рис.8, поз. 5). Обычно при такой конструкции узлов фермы вертикальные элементы её решётки выполняются из стального стержня круглого сечения, имеющего на обеих концах резьбу (рис. 8, поз. 13).

Чтобы увеличить площадь пояса фермы, на которую передаётся усилие от стержня, а также передать усилие на накладки (рис. 8, поз. 2), при составном сечении нижнего пояса под гайку стержня подкладывается на всю ширину пояса с учётом толщины накладок кусок швеллера или уголка (рис.8, поз. 16), выполняющего роль шайбы.

 

 

 

 

СОЕДИНЕНИЕ ЧЕРЕЗ ПОДПЯТНИК

На рис. 9 представлен ещё один вид соединения, где раскос деревометаллической фермы присоединяется через металлический подпятник М1, который крепится к верхнему поясу фермы с помощью болтов М3. Раскос проходит через щёки подпятника, упирается торцом в его опорную часть и скрепляется с ним болтом.

СОЕДИНЕНИЯ НА ШПОНКАХ

 

Шпонками называют деревянные или металлические вкладыши разнообразной

формы. Они работают на сжатие и препятствуют взаимному сдвигу соединяемых элементов. Шпонки помещают в заранее приготовленные гнезда.

В строительных конструкциях широкое применение находят деревянные призматические шпонки: поперечные натяжные, наклонные и продольные.

 

НАКЛАДКИ

 

Так как по сортаменту лесоматериал имеет меньшую длину, чем длина поясов ферм, то они выполняются из состыкованных по длине элементов с помощью НАКЛАДОК — коротких брусьев или досок (рис. 4, 8), накладываемых с двух сторон на стыкуемые элементы и скрепляемых с ними нагелями и болтами (рис.8, поз. 12 и 9).

Для крепления деревянных элементов применяются также металлические планки (рис. 10, поз. 3).

Плотное прилегание соединяемых элементов и восприятие отдирающих усилий обеспечивает стяжное болтовое соединение (рис. 10, поз. 4, 5. 6).

 

СОЕДИНЕНИЯ СТЯЖНЫМИ БОЛТАМИ

 

Применяют для соединения отдельных элементов деревянных конструкций. Стяжные БОЛТЫ обеспечивают плотное прилегание соединяемых элементов и восприятие отдирающих усилий в фермах.

В деревянных конструкциях применяют болты с квадратной головкой, шестигранные гайки грубой точности и круглые шайбы.

Диаметр болтов должен быть не менее 12 мм. Для этих болтов используют квадратные или круглые шайбы. Длина стороны или диаметр шайбы должны быть не менее 3, 5 диаметров болта, а толщина - не менее 0, 25 диаметра болта.

НАГЕЛИ

Одним из распространённых видов соединений деревянных элементов являются нагели — гибкие стержни или пластинки из стали, пластмасс и древесины твёрдых пород (дуба или берёзы).

К стальным цилиндрическим нагелям относятся гладкие цилиндрические стержни сплошного или трубчатого сечения, которые ставятся плотно в отверстия, отвечающие их диаметру, заранее высверленные в стыкуемых элементах.

Длина нагеля должна превышать проектную толщину пакета на 10-20 мм

(рис. 8, поз. 12).

К стальным цилиндрическим нагелям относятся также болты, тяжи, гвозди, глухари, винты.

Тяжи имеет нарезку с обоих концов (рис. 11) или на одном или обоих концах петли, соединяемые с тяжем сваркой (рис. 12).

ХОМУТЫ охватывают присоединяемый элемент и при помощи болтов могут плотно подтянуть его к другому или отрегулировать расстояние до другого элемента. Хомуты выполняются из круглой или полосовой стали.

 

Часто прибегают к сварному соединению полосовой стали с круглой

(рис. 13 и 14).

 

 

К простейшим конструктивным связям, используемым для скрепления брёвен и брусьев, относятся СКОБЫ из квадратной или круглой стали диаметром

10-22 мм при длине 200-500 мм. Длина заострённой части скоб 80-120 мм

(рис. 15, поз. 7). В настоящее время применение скоб ограничено.

В деревянных конструкциях применяются проволочные гвозди круглого сечения диаметром 4; 4, 5; 5; 5, 5; 6 мм и длиной соответственно 100, 125, 150, 170 и 200 мм (ГОСТ 4028-48), имеющие шляпку и заострение

(рис. 15, поз. 6; рис. 16).

 

СВАРНОЕ СОЕДИНЕНИЕ

 

Неразъёмное соединение деталей с помощью сварного шва состоит в том, что место соединения расплавляется электродуговой или газовой горелкой и промежуток между кромками свариваемых деталей заполняется расплавленным металлом самого электрода или особого прутка, в результате чего затвердевший металл в месте соединения образует сварной шов. Условные изображения и обозначения швов сварных соединений выполняют по ГОСТ 2.312-72.

Допускается принимать условные изображения швов сварных соединений по таблице 1.

 

 

СОДЕРЖАНИЕ РАБОТЫ

1. Начертить геометрическую схему фермы в масштабе 1: 100 с соответствующей надписью.

2. Выполнить чертёж фермы с необходимым количеством дополнительных изображений в масштабе 1: 20.

3. Составить ведомости на деревянные элементы и металлические изделия.

Работа выполняется в карандаше.

Основную надпись применять по ГОСТ 21.103-78, форма 2 (рис. 17).

В графе «Наименование изделия» записать — ФЕРМА ДЕРЕВЯННАЯ.

 

ПОСЛЕДОВАТЕЛЬНОСТЬ ВЫПОЛНЕНИЯ РАБОТЫ

 

1. Ознакомиться с исходными данными задания, выяснив форму фермы, её размеры по геометрической схеме задания, конструкцию заданных узлов фермы, их форму, вид соединения, а также размеры всех элементов фермы по заданным в задании ведомостям изделий.

2. Определить количество изображений.

3. Продумать расположение графического материала на листе, так как композиция является важным признаком квалифицированного исполнения чертежа.

4. Вычертить в левом верхнем углу листа геометрическую схему фермы в масштабе 1: 100 с нанесением размеров решётки и пролёта фермы (без указаний усилий в стержнях). В геометрических схемах конструкций размеры можно проставлять непосредственно над линиями схемы или сторонами треугольника без выносных и размерных линий. Толщину линий обводки схемы принять 1 мм.

5. Выполнить изображение самой фермы (главный вид) в масштабе 1: 20, используя чертежи отдельных узлов фермы, приведённые в задании. Для симметричных конструкций допускается изображать только её половину с линиями обрыва на расстоянии 15-20 мм от оси симметрии.

 

ПОСЛЕДОВАТЕЛЬНОСТЬ ПОСТРОЕНИЯ ГЛАВНОГО ВИДА

 

Так как чаще всего элементы решётки фермы центрируются в её узлах, то начать вычерчивание главного вида фермы с проведения осей верхнего и нижнего поясов фермы, стоек и раскосов в соответствии с геометрической схемой фермы в масштабе 1: 20.

Осевые линии, сходящиеся в узле, следует пересекать в одной точке и проводить штрихпунктирной линией толщиной 0, 3 мм хорошо заострённым карандашом марки «2Т».

После нанесения всех осевых линий, с учётом размеров поперечных сечений, вычертить продольные контуры элементов решётки фермы. Если осевые линии проходят через центры тяжести сечений, то контуры каждого элемента из дерева и металлических элементов круглого сечения будут параллельны осевой линии. Если металлические элементы выполнены из уголков, то контуры этих элементов должны быть проведены по отношению к осевой линии с учётом их центра тяжести.

Законструировать узлы фермы точно в соответствии с чертежами узлов, приведёнными в задании, по правилам выполнения чертежей металлических конструкций.

Условные графические изображения элементов деревянных конструкций приведены в ГОСТ 21.501-2011.

Выполнить необходимые виды, разрезы и сечения, а также чертежи металлических изделий, приведённые в задании для деревометаллических ферм.

На главном виде фермы указывают направление взгляда для дополнительных и местных видов и секущих плоскостей для размеров и сечений.

При необходимости могут быть вычерчены и узлы соединений отдельных элементов фермы. Обычно их вычерчивают в более крупном масштабе, чем главный вид конструкции (в нашем случае в масштабе 1: 10) и сохраняют такое положение элементов, какое принято на главном виде конструкции.

На чертеже узлов указывают вид соединения и соединяющие элементы, их расположение, размеры и т. п.

Проставить размеры, необходимые для изготовления конструкции.

Произвести обводку чертежа линиями толщиной 0, 8 мм, карандашом марки «Т» или «ТМ». Цифровые записи обвести карандашом марки «ТМ».

Нанести номера позиций основных элементов и средств соединений.

Составить ведомости на деревянные элементы и металлические изделия фермы. Пример выполнения работы дан на рис. 20, 21.

 

ПРОСТАНОВКА РАЗМЕРОВ

 

Размеры на рабочих чертежах строительных конструкций и их узлах наносятся в мм без указания наименования. Сначала на рабочем чертеже фермы проставляются все размеры, характеризующие данную конструкцию. Производится разметка всех болтов, шпонок, нагелей, гвоздей и т. п., при помощи которых соединяются отдельные элементы конструкции. За базу простановки размеров можно принять ось узла или обработанный конец элемента. Затем проставляются габаритные размеры фермы.

Чтобы ограничить размерные линии, на пересечении размерных линий с выносными линиями контура или осевыми линиями вместо стрелок применяются засечки в виде короткой сплошной основной линии, толщиной 6 мм. Длиной 3-4 мм под углом 45 градусов к размерной линии слева вверх направо, при этом продолжение выносных, а также концевых размерных линий после взаимного пересечения не должно превышать 2-3 мм. При недостатке места для засечек на размерных линиях, расположенных цепочкой. Засечки допускается заменять точкой.

Линии контура, осевые, штриховые, выносные линии, а также их продолжение не могут служить размерными линиями. Размерные линии должны быть параллельны отрезку, размер которого показывается.

На симметричных изображениях допускается наносить размеры только по одну сторону от оси симметрии, а размерные линии на пересечении с осью симметрии ограничивать крестиком из засечек. Общие размеры указываются полностью.

Размерные числа проставляются над размерной линией на расстоянии 1 мм от неё. Следует избегать пересечения размерных чисел и размерных линий с какими-либо линиями.

В случае пересечения выносной линии с линией нагелей или болтов, к которым она не относится, необходимо изогнуть выносную линию скобкой.

Расстояние от последней линии контура изображения до первой цепочки размерных линий должно быть не менее 10 мм. Расстояние между последующими размерными линиями 7-8 мм.

Рис. 18

Рис. 19

НАНЕСЕНИЕ НОМЕРОВ ПОЗИЦИЙ ОСНОВНЫХ ЭЛЕМЕНТОВ И СРЕДСТВ СОЕДИНЕНИЙ

 

На рабочем чертеже фермы все её составные части нумеруют в соответствии с номерами позиций, указанными в ведомости элементов. Номера позиций составных частей фермы проставляют на том виде или разрезе, на котором данная составная часть конструкции проецируется как видимая (отдавая предпочтение главному виду). Номера позиций проставляются на полках линий выносок шрифтом №5 или №7 (на один или два размера больше, чем принятый для размерных чисел) и, как правило, даются на чертеже один раз.

Линии выноски и полки, на которых наносят позиции, выполняются сплошными тонкими линиями толщиной 0, 3 мм. Они (по возможности) не должны пересекать изображений других составных частей

и размерных линий чертежа. Допускается применять линии выноски с одним изломом. Один конец линии выноски должен заходить на изображение указываемой составной части изделия и заканчиваться утолщением в виде точки, другой конец — полкой длиной 10 мм, на которой наносится номер позиции. Когда линия не может заходить на изображение (например, у тонких деталей), допускается заканчивать её стрелкой к контуру (или без неё).

Номер позиций группируют в колонку или строчку по возможности на одной линии. Допускается общая линия выноски для группы крепёжных деталей, относящихся к одному и тому же месту крепления, например, рис. 8, поз. 6 — болт, поз. 7 — гайка, поз. 8 — шайба и рис. 14, поз. 13, 14, 15.

В этом случае линия выноски одним концом должна заходить на изображение составной части, другим концом примыкать к полке, на которой проставлена позиция болта.

 

МАРКИРОВКА И СОСТАВЛЕНИЕ ВЕДОМОСТИ ЭЛЕМЕНТОВ

 

На рабочем чертеже фермы все её составные части нумеруют в соответствии с номерами позиций, указанными в ведомости элементов.

При маркировке деревометаллических конструкций марки деревянных элементов обозначают буквой Д, марки металлических элементов — буквой М.

На рис. 9 в качестве примера произведена условная маркировка элементов. В марку могут входить простые изделия, состоящие из одного элемента, или сложные, состоящие из нескольких как разъёмных так и неразъёмных элементов. Примером изделий, состоящих из нескольких разъёмных элементов, служат марки М2 и М3 (рис. 9).

В первую из указанных марок, кроме тяжа, входят опорные уголки, гайки и контргайки для обоих концов тяжа, во вторую марку, кроме болта, - две шайбы, гайка и контргайка.

Примером марки, присвоенной изделию, состоящему из нескольких неразъёмных элементов, может служить подпятник М1 (см. рис. 9), отдельные элементы которого соединены друг с другом при помощи сварки.

Если два металлических элемента или изделия соединяются между собой не заводским, а монтажным сварным швом, то каждому из них следует присвоить свою марку.

Чтобы изготовить изделие той или иной марки, нужны чертежи, выявляющие форму и размеры каждого элемента, входящего в изделие. В практике проектирования такие чертежи, как правило, выполняются в виде эскизов, для чего в спецификации на металлические изделия предусматривается специальная графа «эскиз». Если изделие простое, то эскизы отдельных его элементов выполняются без изготовления чертежа самого изделия, если изделие сложное, то по чертежу изделия, который предварительно вычерчивается в соответствующем масштабе на свободном поле чертежа основной конструкции. Там же отдельным элементам изделия присваиваются номера позиций (рис. 9, М1).

Если элемент простой, не требующий эскиза, или простое изделие, например штыри, гвозди и т. п., то в графе «эскиз» указываются лишь наименование элемента или изделия.

В спецификации (ведомости) кроме марки изделия, номеров позиций отдельных элементов и их эскизов указываются также сечение и длина каждого элемента, их количество в одной марке, вес одного элемента, общий вес всех элементов, входящих в марку, количество марок и их вес, а также общий вес металлических изделий всех марок, входящих в данную деревянную или металлодеревянную конструкцию. Форма и размеры спецификаций (ведомостей) приведены на рис. 18, 19.

В форме спецификации на металлические изделия отсутствует графа «эскиз».

Ведомости элементов выполняются на одном поле чертежа основной конструкции. Располагают их над основной надписью, совмещая правые стороны с рамкой чертежа.

В конце ведомости на металлические изделия даётся перечень стандартных изделий, применяемых для данной конструкции.

К стандартным изделиям следует отнести:

болты длиной до 300 мм (ГОСТ 7798-70),

гайки и контргайки (ГОСТ 15526-70),

шайбы косые (ГОСТ 10906-68),

шайбы круглые (ГОСТ 6558-78).

Запись указанных изделий производится по алфавиту в пределах каждого наименования в порядке возрастания обозначения стандартов, а в пределах каждого обозначения стандарта — в порядке возрастания основных параметров или размеров изделия.

Пример заполнения спецификации показан на рис. 21.

 

 

ПРИМЕР ВЫПОЛНЕНИЯ РАБОТЫ

 

 

 

 

Рис. 20

ПРИМЕР ВЫПОЛНЕНИЯ СПЕЦИФИКАЦИИ

 

Рис. 21


ДОПОЛНИТЕЛЬНЫЕ МАТЕРИАЛЫ ДЛЯ ПРОВЕРКИ И ЗАКРЕПЛЕНИЯ ЗНАНИЙ ПО ТЕМЕ

ВОПРОСЫ ДЛЯ САМОПРОВЕРКИ

 

1. Какие деревянные конструкции применяют при возведении зданий и сооружений?

2. Преимущества и недостатки применения деревянных конструкций в сравнении с металлическими конструкциями.

3. Назовите лесоматериалы, применяемые для изготовления деревянных конструкций.

4. Масштабы изображений деревянных конструкций.

5. Способы соединения элементов деревянных конструкций в узлы.

6. Последовательность выполнения чертежей деревянных конструкций.

7. Какие размеры проставляются на чертежах деревянных конструкций?

 

 

ТЕСТЫ ДЛЯ ПРОВЕРКИ ЗНАНИЙ ПО ИЗУЧЕННОЙ ТЕМЕ

 

1. Элемент 1 на геометрической схеме деревометаллической фермы называется…

 

 

 

 

1) раскос

2) опорный узел

3) верхний пояс

4) коньковый узел

 

 

2. Соединение лобовой врубкой с двойным зубом деревометаллической фермы указано в случае…

1)

 

2)

3)

4)

 

 

3. Соединение лобовой врубкой с одним зубом деревометаллической фермы указано в случае…

1

 

2

3

4

 

4. Соединение через подпятник деревометаллической фермы указано в случае…

1

2

3

 

4

5. Изделие из древесины поз. 1 называется…

1 горбыль

2 доска необрезная

3 брус

4 бревно

 

 

5 Условное изображение болтового соединения в разрезе показано в случае…

1 4

2 3

3 2

4 1

 

 

5 Условное изображение древесины в сечении указано в случае…

1 1

2 2

3 3

4 4

5 Тяж – это…

1 гладкий цилиндрический стержень

2 цилиндрический стержень с резьбой на одном конце и шестигранной головкой на другом

3 конический резьбовой стержень

4 цилиндрический стержень с резьбой с двух концов

 

5 Деталь деревометаллической фермы, обозначенная поз.1 называется…

1 накладка

2 нижний пояс

3 подушка

4 подпятник

5 Деталь деревометаллической фермы, обозначенная поз.1 называется…

1 нижний пояс

2 подбалка

3 подушка

4 подпятник

 

 

Ответы к тестам

 

№ вопроса                    
Ответ                    

 

 

БИБЛИОГРАФИЧЕСКИЙ СПИСОК

 

1. Рабочий чертёж деревянной (деревометаллической) фермы: Метод. указания к выполнению задания / Сост. Суворова З.Ф. – Тольятти: ТолПИ, 2000.

2. Георгиевский О.В. Единые требования по выполнению строительных чертежей: справ, пособие. - М.: Архитектура-С, 2004. - 144 с.: ил.

3. ГОСТ ЕСКД. Общие правила выполнения чертежей. – М., 2001.

4. Боголюбов СК. Инженерная графика: учеб. для сред. спец. учеб. заведений по специальностям техн. профиля. - 3-е изд., испр. и доп. - М.: Машиностроение, 2009.- 390 с.: ил.

5. ГОСТ 21.501-93. Система проектной документации для строительства. Правила выполнения архитектурно-строительных рабочих чертежей [Электронный ресурс]. - Доступ из справочной нормативной системы Norma CS.

6. Единая система конструкторской документации. Общие правила выполнения чертежей: сборник. - М.: Изд-во стандартов, 1984. - 232 с.

7. ЕСКД. Основные положения. - М: Изд-во стандартов, 1982. - 352 с.

8. Инженерная графика: учебник / Н.П. Сорокин, Е.Д. Ольшевский, А.Н. Заикина, Е.И Шибанова; под ред. Н.П. Сорокина. - 3-е изд., стер. - СПб.: Лань, 2008. - 400 с.: ил. - (Учебники для вузов. Специальная литература).

9. Каминский В.П., Георгиевский О.В., Будасов Б.В. Строительное черчение: учеб. Для вузов / под общ. ред. О.В. Георгиевского. - 6-е изд. - М.: Архитектура-С, 2006. - 456 с.: ил.

10. Чекмарев А.А., Осипов В.К. Справочник по машиностроительному черчению. - 4-е изд., стер. - М.: Высш. шк., 2003. - 493 с.

 

 

РЕКОМЕНДУЕМАЯ ЛИТЕРАТУРА

 

 

1. Кароев Ю. И. Черчение для строителей: учебник для вузов – М.: ФГУП Издательство «Высшая школа», 2005.- 255 с.

2. Георгиевский О. В. Правила выполнения архитектурно-строительных чертежей: справочное пособие / О. В. Георгиевский – М.: АСТ, Астрель, 2005. -104 с.

3. Каминский В. П. Строительное черчение: учебник для вузов / В. П. Каминский, О. В. Георгиевский, Б. В. Будасов. – М.: ООО Издательство «Архитектура – С», 2004 – 456 с.

 

 

<== предыдущая лекция | следующая лекция ==>
Если день праздника совпал с пятницей, то совершается ли групповая | После форматирования открываем flash-носитель и создаем папку с любым именем(желательно чтобы имя было коротким).
Поделиться с друзьями:

mylektsii.su - Мои Лекции - 2015-2026 год. (6.565 сек.)Все материалы представленные на сайте исключительно с целью ознакомления читателями и не преследуют коммерческих целей или нарушение авторских прав Пожаловаться на материал