Студопедия

Главная страница Случайная страница

КАТЕГОРИИ:

АвтомобилиАстрономияБиологияГеографияДом и садДругие языкиДругоеИнформатикаИсторияКультураЛитератураЛогикаМатематикаМедицинаМеталлургияМеханикаОбразованиеОхрана трудаПедагогикаПолитикаПравоПсихологияРелигияРиторикаСоциологияСпортСтроительствоТехнологияТуризмФизикаФилософияФинансыХимияЧерчениеЭкологияЭкономикаЭлектроника






Раздел 4. Оформление строительных чертежей.






1. Назовите виды строительных чертежей?

2. Как маркируются строительные чертежи?

3. В каких масштабах выполняют строительные чертежи?

4. Каковы особенности обводки линий в строительных чертежах?

5. Как на строительных чертежах показывают размерные засечки и высотные отметки?

6. Как изображают оконные и дверные проймы на плане здания?

7. Дайте определение плана этажа.

8. В какой последовательности вычерчивается план этажа?

9. Каковы особенности нанесения наружных и внутренних размеров на планах зданий?

10. Как маркируются оконные и дверные проёмы на планах зданий?

11. В каких случаях и каким образом на планах этажей указывают наименование помещений?

12. Какие контуры на планах обводят сплошной основной толстой линией, какие тонкой сплошной линией?

13. Как на планах этажей обозначают площади помещений?

14. Что называется разрезом здания?

15. Каков порядок вычерчивания разреза здания?

16. Какие размеры указывают на разрезах зданий?

17. Особенности обводки разреза здания?

18. Как обозначаются фасады зданий?

19. Особенности обводки фасада здания?

20. Какие размеры указывают на фасадах зданий?

 

 

6. МЕТОДИЧЕСКИЕ УКАЗАНИЯ И РЕКОМЕНДАЦИИ

ПО ВЫПОЛНЕНИЮ КОНТРОЛЬНОЙ РАБОТЫ № 2

Контрольная работа № 2 охватывает раздел 4 тематического плана учебной дисциплины «Инженерная графика». Чтение и оформление строительных чертежей;

Перечень заданий контрольной работы №2

Задание № 1 Чертёж плана, фасада, разреза здания.

Задание № 2 Основные надписи.

Задание № 3 Условные обозначения на строительных чертежах.

 

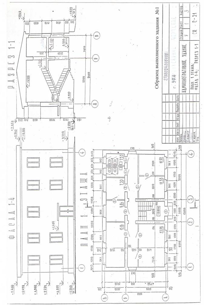
Контрольная работа №2 выполняется на форматах АЗ и А2. Каждый лист оформляют рамкой и основной надписью. Основная надпись (форма 3) на чертежах выполняется в соответствии с требованиями ГОСТ 21.101-97. Размеры и начертание основной надписи даны на рисунке 1

 

Рис. 1

При заполнении основной надписи используется прописной шрифт размером 7мм, строчный шрифт размером 3, 5мм прямой или наклонный по ГОСТу 2.304-81 или шрифт прямой архитектурный узкий, его начертание дано на рисунке 2.

Рис.2

 

Работу над заданиями контрольной работы №2 нужно вести в следующей последовательности: сначала ознакомиться с содержанием и образцом выполненного задания, найти свой вариант, изучить методические указания к выполнению заданий, ответить на вопросы самопроверки по изучаемой теме. Затем приступить к работе.

 

Задание № 1 План, фасад, разрез здания, (формат А2),

Цель задания: Изучить правила вычерчивания чертежей планов, фасадов, разрезов зданий в соответствии с требованиями СПДС.

С одержание задания: по выданном заданию выполнить чертёж плана здания, фасада, разреза здания. Варианты заданий и образец выполненной работы даны в Таблице 1 на странице.

Методические указания

Планом здания называется горизонтальный разрез здания на уровне оконных проёмов чуть выше подоконника. Планы вычерчиваются в масштабах 1: 50, 1: 100, 1: 200.

 

 

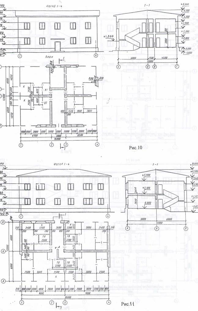
Последовательность Вычерчивания плана здания (рис. 4).

• Вычерчивание координационных осей. Координационные оси выполняются штрих пунктирной линией (S/3) и маркируются. Мирки ставится в кружок ǿ 6.... ǿ 12 (ǿ 9… ǿ 10) мм, на расстоянии 3 5 мм от последней размерной цепочки (рис 4 а).

Продольные координационные оси маркируются буквами русского алфавита снизу вверх в порядке возрастания. Поперечные координационные оси - цифрами слева направо в порядке возрастания. Высота цифр - 7мм, расстояние от последней размерной цепочки до маркировочного кружка равно 3-5 мм.

• Вычерчивание контура стен с учётом привязки к координационным осям (рисунок 4 б, в). Привязка это расстояние от координационной оси до граней стены. Виды привязок

(рис. 3):


 

Рис.З

а) двусторонняя привязка; б) центральная привязка; в) односторонняя привязка; г) односторонняя привязка с зазором.

• Вычерчивание оконных и дверных проёмов (рисунок 4 г).

Условные обозначения оконных и дверных проёмов:

оконные проёмы: без четвертей с четвертями


 

дверные проёмы

без четвертей с четвертями

однопольные двупольные однопольные двупольные


 

• Вычерчивание перегородок, лестничных клеток, санитарно-технического оборудования:

Условные обозначения лестницы в плане: нижний марш промежуточный марш верхний марш


 


Условные обозначения санитарно-технического оборудования:

• Вычерчивание технологического оборудования для промышленных зданий с учётом привязки его к координационным осям.

Обозначение наименования фасада:

Фасады обозначают по крайним координационным осям:

ФАСАД 1 - 5 - главный фасад,

ФАСАД 5 - 1 - задний фасад,

ФАСАД В - А - слева,

ФАСАД А - В - справа

Оформления чертежа фасада здания дано на рисунке 5, образец выполненной работы дан в приложении 1

Разрезы вычерчиваются в масштабах 1: 100; 1: 200.

Последовательность вычерчивания разреза:

 

• Вычерчивание координационных осей.

• Вычерчивание контура стен с учётом привязки к координационным осям.

• Вычерчивание с учётом высотных отметок линии грунта, чистого пола, междуэтажных перекрытий.

• Вычерчивание оконных и дверных проёмов.

• Вычерчивание лестничной клетки, доработка элементов разреза (кровли, козырьков, балконов, лоджий) Для вычерчивания лестницы надо пользоваться следующими данными: ширина марша не менее 1200мм, расстояние между маршами 80... 120мм, ширина проступи 300мм, высота подступенка 150 мм, ширина лестничной площадки не менее ширины марша. В основу графической разбивки лестницы берётся высота от пола нижнего этажа до пола верхнего этажа. Число подступенков равно: высоту этажа делим на высоту подступенка, например: 3000: 150 =20.

Получаем количество подступенков в двух маршах, в одном марше будет 10 подступенков и 9 проступей.


 

Нанесение размеров. На разрезах наносят размеры в миллиметрах и в метрах.

Размеры в миллиметрах:

1. по горизонтали - расстояние между промежуточными координационными осями

(первая размерная цепочка), расстояние между крайними координационными осями (вторая размерная цепочка).

 

 

• Нанесение размеров (рис. 4 г). Размеры на планах проставляются в миллиметрах. Наружные размеры наносят в виде трёх цепочек. Первая цепочка чертится на расстоянии 15-20 мм. от контура здания, наносят размеры оконных и дверных проёмов. Вторая размерная цепочка чертится на расстоянии 8 - 10 мм. от первой цепочки - расстояния между координационными осями, привязка наружных стен.

Третья размерная цепочка чертится на расстоянии 8-10 мм. от второй цепочки, указывается 1асстояпие между крайними координационными осями. Три размерных цепочки обычно чертят на планах кирпичных зданий.

На планах промышленных зданий: на первой размерной цепочке указывают размер шага колонн, нa второй - расстояние между крайними координационными осями (6000 X 9 = 54000мм.) Внутренние размеры наносят в виде одной, двух горизонтальных и одной, двух вертикальных замкнутых размерных цепочек. На них указывают размер комнаты в чистоте, т е. расстояние от стены до стены, толщину стен, перегородок, привязки к координационным осям.

•Обводка плана здания.

S - 1 мм. - стены наружные и внутренние, несущие и самонесущие,

S /2 - перегородки, лестницы, оборудование, окна, двери, площадки (0, 5 мм).

S / 3 - размерные и выносные линии, координационные оси (0, 3 мм)

•В правом нижнем углу помещения наносят размер площади помещения 7 размером шрифта. Площадь указывают в кв. м. без записи размерности, с указанием двух знаков после запятой, подчёркивают сплошной основной линией, толщиной S.

•На плане здания, вдоль наружных стен ставится марка оконных проёмов: OKI, ОК2, ОКЗ и т.д. Марка дверных проёмов ставится в кружок о 5 мм. который обводится линией S/3(рис. 4 д).

• Планы подписываются: «ПЛАН 1 ЭТАЖА», «ПЛАН 2 - 9 ЭТАЖЕЙ»

«ПЛАН НА ОТМ. 0.000» - для планов промышленных зданий, высота букв 10 мм.

Фасады вычерчиваются в масштабах 1: 50, 1: 100, 1: 200, над планом этажа в проекционной связи

Последовательность вычерчивания фасада здания.

•Вычерчивание уровня земли.

•Вычерчивание крайних координационных осей.

•Вычерчивание контура здания, с учётом высотных отметок проемы (окна, двери)

Вычерчивание оконных и дверных проёмов, соблюдая проекционную связь с планом.

•Нанесение размеров. Размеры наносят только в метрах. Проставляют следующие высотные отметки: уровень земли, цоколя, низа и верха оконных и дверных проёмов, кровли, козырьков, балконов.

•Обводка фасада. Контур фасады обводится тонкой сплошной линией S / 2, оконные переплёты и координационные оси - линия толщиной S/3, линия грунта -сплошная основная утолщённая - 1.5 S.


7. КОНТРОЛЬНАЯ РАБОТА №2 Приложение 1

7.1 Задание 1

«План, фасад, разрез здания»

Содержание работы: Вычертить план здания, оформить чертёж в соответствии с требованиями СПДС.

1. Вычертить фасад здания, оформить чертёж в соответствии с требованиями СПДС.

2. Вычертить разрез здания, оформить чертёж в соответствии с требованиями СПДС.

Работа выполняется на формате А2, масштаб 1: 100

Таблица вариантов

№ варианта                                
№ варианта                                

 

________ АЛГОРИТМ ПОСТРОЕНИЯ АРХИТЕКТУРНО - СТРОИТЕЛЬНОГО ЧЕРТЕЖА ЗДАНИЯ.

1. Вычерчивание координационных осей.

2. Вычерчивание контура стен с учетом привязки к координационным осям.

3. Вычерчивание оконных и дверных проёмов.

4. Вычерчивание лестничной клетки (для планов и разрезов здания).

5. Вычерчивание внутренней планировки и санитарно-технического оборудования (для планов зданий)

6. Нанесение размеров.

7. Обводка чертежа.

8. Выполнение надписей над чертежами и заполнение основной надписи.

 

*    

 

 

Рис 3

 

 

 

 

 

 

 

 

Задание №2 «Основные надписи»

 

Методические указания:

 

· На формате А-3 (вертикальном) начертить четыре основные надписи: Форму 3, форму 4, форму 5 и форму 6 в натуральных размерах;

· Нанести размеры;

· Заполнить основные надписи архитектурным узким шрифтом.

· Оформить формат А 3: рамка, заполненная основная надпись формы 3.

 

ЗАДАНИЕ 2

 

ФОРМА 3

 

ФОРМА 4

 

ФОРМА 5

 

ФОРМА 6

 

 

7.3 ЗАДАНИЕ № 3

«Условные обозначения на строительных чертежах».

__ Содержание

1. Начертить графические обозначения строительных материалов в сечении

2. Начертить условные графические изображения элементов здания

  1. Начертить условные графические изображения санитарно-технических

Работу выполнить на листе формата А-3, масштаб изображений зданий и сантех­нических устройств 1: 100. Все условные графические обозначения и изображения должны соответствовать стандартам ЕСКД и СПДС. Основная надпись формы 3.

Указания к выполнению работы:

1.2.1 При изображении строительных материалов в сечение условные обозначения должны соответствовать ГОСТ 2.306- и выполнятся линиями по ГОСТ 2.303- 68* ЕСКД. Наклон линий под 45 гр., слева на право, толщина линий S/2. Контуры фигуры сечения обводить сплошной толстой линией. Без чертежных инструмен­тов выполнять изображения песка, глины, дерева, засыпки.

1.2.2 При выполнении условных изображений дверных и оконных проемов и ворот толщину стен принять равной 510 мм.

1.2.3 Оконные проемы с четвертями и без принять шириной 1, 2м. и высотой 1, 8м.

1.2.4 Дверные проемы принять шириной:

однопольные -1, 0м

двупольные - 1.5м

Ворота для всех типов принять шириной 3, 2м.

1.2.5 Лестничную клетку в плане принять размером 3x5м, длину марша на 9 ступеней, ширина марша должна быть одинакова с зазором между ними 1, 5-2, 0мм. Изо­бражение лестничных клеток дать в проекционной связи, нижние марши снизу, верхние- сверху. Стрелка на лестничном марше показывает направление подъе­ма, которая начинается прозрачным кружком на первой ступени марша.

1.2.6 При изображении подъемно-транспортного оборудования разрез крана показы­вать в проекционной связи над планом. На изображении транспортного обору­дования указать грузоподъемность и в плане и в разрезе (кран однобалочный подвесной грузоподъемность принять 1тн., для мостового крана Ютн.).

Контуры транспортного оборудования и рельсовые пути на планах изображать линиями штрих пунктирными с двумя точками толщиной S/2., в разрезах обору­дования чертить сплошной тонкой линией, толщиной S/2.

1.2.7 На изображении входной площадки перед наружной дверью здания дверные по­лотна условно не даны. При изображении пандусов ширину ворот принять 3, 2м. Стрелка на пандусе показывает направление спуска и его уклон.

1.2.8 Санитарно технические устройства на планах зданий чертят с учетом их габа­ритных размеров, в заданном масштабе.

1.2.9 Все условные графические изображения элементов зданий, транспортного обо­рудования и санитарно технических устройств выполнят линиями S/2 (кроме оговоренных выше).

 

 

 


Поделиться с друзьями:

mylektsii.su - Мои Лекции - 2015-2026 год. (0.715 сек.)Все материалы представленные на сайте исключительно с целью ознакомления читателями и не преследуют коммерческих целей или нарушение авторских прав Пожаловаться на материал