Студопедия

Главная страница Случайная страница

КАТЕГОРИИ:

АвтомобилиАстрономияБиологияГеографияДом и садДругие языкиДругоеИнформатикаИсторияКультураЛитератураЛогикаМатематикаМедицинаМеталлургияМеханикаОбразованиеОхрана трудаПедагогикаПолитикаПравоПсихологияРелигияРиторикаСоциологияСпортСтроительствоТехнологияТуризмФизикаФилософияФинансыХимияЧерчениеЭкологияЭкономикаЭлектроника






Эргономические параметры размещения мебели и оборудования.






9.1. Основное помещение школы (класс - учебный кабинет (должно отвечать требованиям активного ведения учебного урока с организацией как фронтальных, так групповых и индивидуальных форм обучения с широким привлечением технических средств.

Помещение должно включать рабочую зону учащихся, рабочую зону учителя, дополнительное пространство для размещения учебно-наглядных пособий, ТСО, личных вещей учащихся, зону для групповой работы и для индивидуальных занятий учеников (особо успевающих и неуспевающих) и возможности активной деятельности. Эти зоны как сумма пространств должны обеспечивать оптимальные условия обучения.

Помещения 1 (8 (9) классов следует оборудовать одноместными легкими ученическими столами и, как правило, встроенными шкафами, а также дополнительным мобильным оборудованием для решения проблем " гибкой" организации пространства с целью активизации форм обучения.

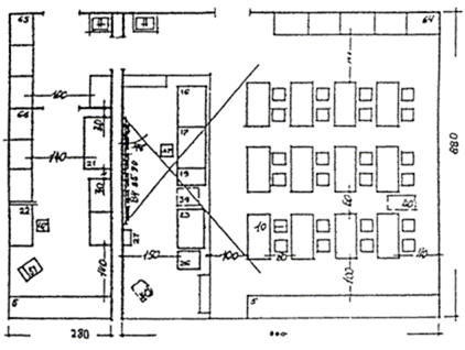
*9.2. Проходы и расстояния между оборудованием в основных учебных помещениях (приложение рис. 1 (3) должны приниматься в см.:

П1 (между рядами двухместных или спаренных столов не менее 60;

П1 (между рядами одноместных столов не менее 50;

П2 (между рядами столов и наружной продольной стеной не менее 70;

П3 (между рядами столов и внутренней продольной стеной (перегородкой) или шкафами, стоящими вдоль этой стены, не менее 160;

П4 (между передними столами и демонстрационным столом не менее 140;

Р1 (от передней стены с классной доской до передних столов всех рядов при трехрядной расстановке не менее 280.

Р2 (от задних столов до задней стены (перегородки) не менее 160;

Р3 (от задних столов до шкафов, стоящих вдоль задней стены (перегородки) (не менее 140;

Р4 (между столом преподавателя и передней стеной (перегородкой) (не менее 140;

Р5 (между группами столов не менее 140;

Д1 (между столами в ряду (не менее 50;

Д2 (между столом преподавателя и передними столами учащихся не менее 80;

У (наибольшая удаленность последнего места учащегося от классной доски в учебном помещении 860.

Высота нижнего края классной доски над полом (в рабочем положении) для 1 классов (70 (80; 2 (4 классов (75 (80; 5 (11 классов (80 (90. Угол рассматривания классной доски принимается не менее 40(.

Рисунок 2. Лаборатория с лаборантской.

Рисунок 3. Класс иностранного языка.

Рисунок 4. Мастерская.


Поделиться с друзьями:

mylektsii.su - Мои Лекции - 2015-2026 год. (1.007 сек.)Все материалы представленные на сайте исключительно с целью ознакомления читателями и не преследуют коммерческих целей или нарушение авторских прав Пожаловаться на материал