Студопедия

Главная страница Случайная страница

КАТЕГОРИИ:

АвтомобилиАстрономияБиологияГеографияДом и садДругие языкиДругоеИнформатикаИсторияКультураЛитератураЛогикаМатематикаМедицинаМеталлургияМеханикаОбразованиеОхрана трудаПедагогикаПолитикаПравоПсихологияРелигияРиторикаСоциологияСпортСтроительствоТехнологияТуризмФизикаФилософияФинансыХимияЧерчениеЭкологияЭкономикаЭлектроника






Исходные данные. Рассчитать параметры установившегося режима заданной кольцевой электрической сети на ПВК Project.

Задание

Рассчитать параметры установившегося режима заданной кольцевой электрической сети на ПВК Project.

Исходные данные

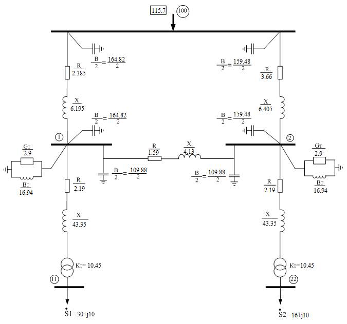
Электрическая схема кольцевой электрической сети:

 

3. Схема замещения (подготовка данных к расчёту):

 

Линия 100-1

 

Линия 100-2

Линия 1-2

Трансформатор 1-11

Коэффициент трансформации:

Трансформатор 2-22

Коэффициент трансформации:

4. Ввод исходных данных в ЭВМ:

Табл. 4.1

 

Табл. 4.2

5. Установка на расчёт. Расчёт режима:

 

В установках вместо заданной по умолчанию точности расчёта 0, 1 (МВт или Мвар) введем точность расчёта 0, 0001.

Табл. 5

6. Протокол расчёта:

Табл. 6

7. Результаты расчёта в форме таблиц:

Табл. 7.1

 

Табл. 7.2

 

Табл. 7.3

 

8. Карта режима:

 

9. Определение дополнительных параметров в элементах сети:

Линия 100-1

Зарядная мощность в начале линии: Qcн = U2 В/2 = 115.72 164.82 10-6/2 = 1, 1 Мвар;

зарядная мощность в конце линии: Qcк = U2 В/2 =114.482 164.82 10-6/2 = 1, 08 Мвар;

поток мощности, текущий от узла 100 в линию 100-1 из табл.7.3: =25.29+j12.11 МВ·А;

поток мощности в начале линии: н= +jQcн =25.29+j12.11+j1.1=25.29+j13.21 МВ·А;

поток мощности, текущий от узла 1 в линию 100-1 из табл.7.3: =25.15+j13.92 МВ·А;

поток мощности в конце линии: к= -jQcк =25.15+j13.92-j1, 08=25.15+j12.84 МВ·А.

потери мощности в линии 100-1 “по данным конца”:

Линия 1-2

Зарядная мощность в начале линии: Qcн = U2 В/2 = 114.482 109.88 10-6/2 = 0.72 Мвар;

зарядная мощность в конце линии: Qcк = U2 В/2 = 114.522 109.88 10-6/2 = 0.72 Мвар;

поток мощности, текущий от узла 1 в линию 1-2 из табл.7.3: =5.07+j0.06 МВ·А;

поток мощности в начале линии: н=S+jQcн =5.07+j0.06 +j0.72=5.07+j0.78 МВ·А;

поток мощности, текущий от узла 2 в линию 1-2 из табл.7.3: =5.07+j1.49 МВ·А;

поток мощности в конце линии: к= -jQcк =5.07+j1.49- j0.72=5.07+j0.77 МВ·А.

потери мощности в линии 1-2 “по данным конца”:

Линия 100-2

Зарядная мощность в начале линии: Qcн = U2 В/2 = 115.72 159.48 10-6/2 = 1, 07 Мвар;

зарядная мощность в конце линии: Qcк = U2 В/2 = 114.522 159.48 10-6/2 = 1, 05 Мвар;

поток мощности, текущий от узла 100 в линию 100-2 из табл.7.3: =21.32+j8.15 МВ·А;

поток мощности в начале линии: н= +jQcн =21.32+j8.15+j1.07=21.32+j9.22 МВ·А;

поток мощности, текущий от узла 1 в линию 100-2 из табл.7.3: =21.17+j10.01 МВ·А;

поток мощности в конце линии: к= -jQcк =21.17+j10.01-j1.05=21.17+j8.96 МВ·А.

потери мощности в линии 100-2 “по данным конца”:

Трансформатор 1-11

Поток мощности, текущий от узла 1 в трансформатор 1-11 из табл.7.3: =30.22+j13.86 МВ·А;

поток мощности в начале: н= ст=30.22+j13.86-0.035-j0.202=30.185+j13.658 МВ·А;

поток мощности в конце: к= S1 =30+j10 МВ·А;

потери мощности в медных обмотках “по данным конца”:

Трансформатор 2-22

Поток мощности, текущий от узла 2 в трансформатор 2-22 из табл.7.3: =16.10+j11.5 МВ·А;

поток мощности в начале: н= ст=16.10+j11.5-0.035-j0.205=16.065+j11.295 МВ·А;

поток мощности в конце: к= 2=16+j10 МВ·А;

потери мощности в медных обмотках “по данным конца”:

 

 

Литература:

1. Идельчик В.И. Электрические системы и сети-М: Энергоатомиздат, 1989.-592 с.

2. Справочник по проектированию электрических сетей / Под редакцией Д.Л. Файбисовича. – М.: Изд-во НЦ ЭНАС, 2006. – 320 с.

 

<== предыдущая лекция | следующая лекция ==>
СТИХИ интересная форма. Такие стихи. Но шутки не очень пока. Пишите. | 
Поделиться с друзьями:

mylektsii.su - Мои Лекции - 2015-2026 год. (5.624 сек.)Все материалы представленные на сайте исключительно с целью ознакомления читателями и не преследуют коммерческих целей или нарушение авторских прав Пожаловаться на материал