Студопедия

Главная страница Случайная страница

КАТЕГОРИИ:

АвтомобилиАстрономияБиологияГеографияДом и садДругие языкиДругоеИнформатикаИсторияКультураЛитератураЛогикаМатематикаМедицинаМеталлургияМеханикаОбразованиеОхрана трудаПедагогикаПолитикаПравоПсихологияРелигияРиторикаСоциологияСпортСтроительствоТехнологияТуризмФизикаФилософияФинансыХимияЧерчениеЭкологияЭкономикаЭлектроника






Приложение 2






Справочное

 

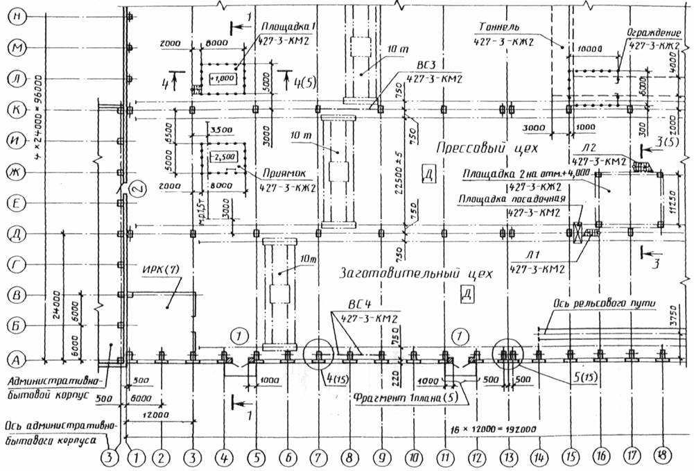
Пример выполнения плана одноэтажного производственного здания

 



Пример выполнения плана этажа жилого дома

ПРИЛОЖЕНИЕ 3

Справочное

 

Пример заполнения ведомости перемычек

 

 

Примечание. Схема сечения может быть дополнена отметками низа перемычек и ориентацией расположения перемычек по отношению к координационным осям.

 

Пример заполнения спецификации элементов перемычек

 

Поз. Обозначение Наименование Кол. на этаж Масса Примеч.
      1 2 3 Всего ед., кг  
1   2ПБ19—3 16 8 4 28 81  
2 ГОСТ 948-84 5ПБ18—27 5 2 1 8 250  
3   3ПБ18—8 3 2 1 6 119  

 

Пример выполнения спецификации элементов заполнения проемов

 

Поз. Обозначение Наименование Кол. по фасадам Масса Примеч.*
      1-10 10-1 Л-А А-Л Всего ед., кг  
    Окна              
1   ОГД 18.12—2 10   9   19   1200
2 1.436.3—16 ОГД 18.18—2 10       10   1800
3   ОГД 18.18—2 10 13 9 13 45    
4   ОГД 24.18—2   15 9 14 38   2400
5   ОГД 24.12—2 3       3    
    Жалюзийные решетки              
6 3453-1-КЖ.И5 РШ1       1 1   2400
7   РШ2   1     1   5000
    Дверные блоки              
8 ГОСТ 14624-84 ДВГ21—15 4 2     6   2070
9   ДВГ24—15 1       1    
10 ГОСТ 6629-88 ДУ24—10 2 1     3   2370
11 ГОСТ 24584-81 ДАО24—10ВЛ 8       8    
12 ТУ 36-1965-16 Ворота 3, 6 х 3, 6 2       2   3600

_____________

* В графе приведена высота проема.


Поделиться с друзьями:

mylektsii.su - Мои Лекции - 2015-2026 год. (0.433 сек.)Все материалы представленные на сайте исключительно с целью ознакомления читателями и не преследуют коммерческих целей или нарушение авторских прав Пожаловаться на материал