Студопедия

Главная страница Случайная страница

КАТЕГОРИИ:

АвтомобилиАстрономияБиологияГеографияДом и садДругие языкиДругоеИнформатикаИсторияКультураЛитератураЛогикаМатематикаМедицинаМеталлургияМеханикаОбразованиеОхрана трудаПедагогикаПолитикаПравоПсихологияРелигияРиторикаСоциологияСпортСтроительствоТехнологияТуризмФизикаФилософияФинансыХимияЧерчениеЭкологияЭкономикаЭлектроника






Сооружения для предварительной аэрации и биокоагуляции






 

Преаэраторы и биокоагуляторы применяют в тех случаях, когда в сточной жидкости требуется уменьшить содержание взвешенных веществ на большую величину, чем это способны сделать первичные отстойники. Преаэраторы устраивают перед первичными отстой­никами в виде отдельных или пристроенных, либо встроенных со­оружений, а биокоагуляторы совмещают в отстойниками.



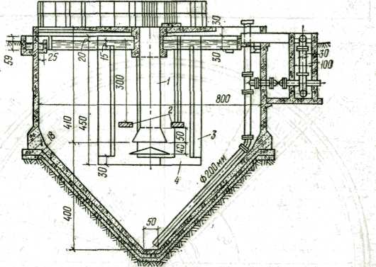
Рис 111.46. Биокоагулятор
Предварительная аэрация, проводимая в подводящих каналах или преаэраторах, заключается в продувке сточной жидкости воз­духом в течение 10—20 мин с добавкой активного ила или без нее. Эффективность задержания взвешенных веществ в первичных от­стойниках с преаэраторами достигает 50—60%, а БПК20снижается на 15%. Количество подаваемого в преаэраторы воздуха составляет 0, 5 м3 на 1 м3 сточной жидкости.

Биокоагуляция, проводимая в биокоагуляторах (рис. III.46), заключается в следующем. Сточная жидкость по центральной тру­бе 1 подается в камеру биокоагуляции 4. В камеру добавляется ак­тивный ил или биологическая пленка. Воздух вводится в камеру с помощью фильтросных пластин 2. Водовоздушная смесь движется в камере вверх и по карманам 3 спускается вниз, направляясь в зону отстаивания. В зоне отстаивания жидкость проходит через взвешенный слой, осветляется и отводится по кольцевому лотку.


 


Рис. 111.47. Вторичный радиальный отстойник из сборного железобетона

/ — металлический направляющий цилиндр: 2 — сборный желоб; 3 — илосос; 4 — подво­дящий трубопровод; 5 —люк-лаз; 6 — трубопровод возвратного активного ила; 7 — трубопровод опорожнения; 8 — датчики уровня ила; 9 — труба для электрокабеля; 10 — отводя­щий трубопровод; // — выпускная камера
Количество подаваемого воздуха составляет 0, 5 м3 на 1 м3 сточной жидкости. Перед подачей в биокоагулятор активный ил или биоло­гическую пленку необходимо регенерировать в течение 24 ч. Ско­рость движения воды в зоне отстаивания биокоагулятора должна быть не более 0, 8—0, 85 мм/с.
§ 112. ВТОРИЧНЫЕ ОТСТОЙНИКИ И ИЛОУПЛОТНИТЕЛИ
Сточная жидкость, прошедшая аэротенки, содержит активный ил, а прошедшая биофильтры, — биологическую пленку. Для за­держания активного ила или биологической пленки применяют вторичные отстойники, располагаемые после аэротенков и био­фильтров. Вторичные отстойники в зависимости от направления по­тока бывают горизонтальные, вертикальные и радиальные. Макси­мальную скорость протекания жидкости для горизонтальных и ра­диальных отстойников принимают равной 5 мм/с, а для вертикаль­ных — 0, 5 мм/с.

Время пребывания сточной жидкости в отстойниках после аэро­тенков, работающих на полную очистку, составляет 2 ч, после ка­пельных биофильтров и аэротенков, работающих на неполную очи­стку, — 0, 75 ч и после высоконагружаемых биофильтров— 1, 5 ч.

Активный ил, осевший в остойниках, снова перекачивается в аэ­ротенки. Расход циркулирующего активного ила составляет 30— 70% расхода сточной жидкости, поступающей на аэротенки. Влаж­ность активного ила, выгружаемого из вторичных отстойников, равняется 99, 2—99, 5%.

На рис. II 1.47 приведена конструкция вторичного отстойника с илососами. Сточная жидкость поступает по трубе в центр отстой­ника и движется радиально к сборному лотку. Выпадающий на дно активный ил непрерывно удаляется илососом, подвешенным к вра­щающейся ферме.

Конструкции вертикальных вторичных отстойников аналогич­ны конструкциям вертикальных первичных отстойников. Обычно вертикальные вторичные отстойники применяют на станциях малой и средней производительности, а для станций большой производи­тельности проектируют радиальные отстойники.

Избыточный активный ил из вторичных отстойников направляет­ся на илоуплотнители, которые служат для уменьшения его влаж­ности перед подачей в метантенки с 99, 2—99, 5 до 95—98%. При этом объем ила уменьшается в 4—10 раз. Илоуплотнители бывают вертикальные и радиальные. Их конструкции аналогичны конструк­циям отстойников. Продолжительность пребывания ила в уплот­нителях радиального типа 5—14 ч, в уплотнителях вертикальною типа 10— 16 ч. Илоуплотнители радиального типа устраивают с илососами или илоскребами. Уплотненный ил выпускают под гид­ростатическим напором 0, 5—1 м через водосливы.

 


Поделиться с друзьями:

mylektsii.su - Мои Лекции - 2015-2026 год. (0.753 сек.)Все материалы представленные на сайте исключительно с целью ознакомления читателями и не преследуют коммерческих целей или нарушение авторских прав Пожаловаться на материал