Студопедия

Главная страница Случайная страница

КАТЕГОРИИ:

АвтомобилиАстрономияБиологияГеографияДом и садДругие языкиДругоеИнформатикаИсторияКультураЛитератураЛогикаМатематикаМедицинаМеталлургияМеханикаОбразованиеОхрана трудаПедагогикаПолитикаПравоПсихологияРелигияРиторикаСоциологияСпортСтроительствоТехнологияТуризмФизикаФилософияФинансыХимияЧерчениеЭкологияЭкономикаЭлектроника






Различного назначения






При решении задач по тушению пожара по данным, изложенным в задании необходимо:

1. Произвести расчет требуемого количества сил и средств на момент введения первых средств тушения (привлекаемые силы и средства, противопожарное водоснабжение принимаются по табл. 5.5, 5.6). При определении основных параметров пожара линейную скорость распространения горения (табл. 1.1) принимать по максимальному ее значению.

2. Описать действия, принятые РТП по прибытию на пожар с учетом определения формы и площади пожара (табл. 5.3).

Таблица 5.3

Действия РТП–1 при тушении пожара.

Время «Ч+», мин. Обстановка на пожаре и ее оценка РТП Принятые РТП решения
     
Действия по прибытии
  Оценка обстановки по внешним признакам: ... … … Сообщение на ЦУС: ... … … Отдача приказаний: … … …
Действия по результатам разведки:
     
  Оценка обстановки по результатам разведки: … … … Сообщение на ЦУС: ... … … Отдача приказаний: … … …

 

 

3. Выполнить схему тушения пожара первыми прибывшими подразделениями.

4. Произвести расчет требуемого количества сил и средств на момент локализации пожара (подача средств тушения последним подразделением по вызову №2) учитывая, что пожару автоматически присвоен вызов № 2.

5. Описать действия, принятые РТП на момент локализации пожара с учетом определения формы и площади пожара (табл. 5.4).

Таблица 5.4

Действия РТП на момент локализации пожара.

Время «Ч+», мин. Обстановка на пожаре и ее оценка РТП Принятые РТП решения
     
Действия на момент локализации пожара
  Оценка обстановки на момент локализации: … … … Отдача приказаний: ….. … Сообщение на ЦУС: ... … …

 

Полагать наступление момента локализации – введение ОС последним прибывшим подразделением по вызову № 2.

6. Выполнить схему тушения пожара прибывшими подразделениями на момент локализации.

7. Номер варианта соответствует номеру задачи.

 

 

Задача № 1

Характеристика здания.

Здание детского сада двухэтажное, III С.О. – стены и перегородки кирпичные, перекрытия трудногорючие с пустотами строительные конструкции чердачного помещения деревянные, кровля шиферная. Основной пожарной нагрузкой на этажах здания является сгораемая отделка помещений. и мебель.

Обстановка на пожаре.

Пожар возник на первом этаже в кухне. В окнах первого этажа видны отблески пламени и дым. Дверные проемы открыты. Обслуживающий персонал проводит эвакуацию детей.

Временные параметры:

– время возникновения пожара – = 18 ч. 15 мин.;

– время обнаружения и сообщения о пожаре – мин.;

– время развертывания первого прибывшего подразделения – мин.;

– время развертывания последнего прибывшего подразделения по вызову № 2 – мин.

Привлекаемые силы и средства, противопожарное водоснабжение – по варианту № 1 (табл. 5.5, 5.6).

Требуется:

На момент подачи огнетушащих средств первым подразделением и на момент локализации пожара (подача огнетушащих средств последним подразделением по вызову № 2):

– определить форму пожара и его геометрические параметры, показать их на плане этажа;

– произвести расчет сил и средств;

– описать действия РТП и оформить их в виде таблицы;

– выполнить схему расстановки сил и средств.

 

 
 

 


Задача № 2

Характеристика здания:

Здание гостиницы 7-и этажное, II С.О. – стены и перегородки кирпичные, перекрытия и покрытие выполнены из железобетонных плит, кровля рубероидная на битумной мастике. Основной пожарной нагрузкой на этажах здания является сгораемая отделка помещений и мебель в номерах.

Обстановка на пожаре:

Пожар возник в 219 номере второго этажа. В окнах видны отблески пламени и дым. Дверные проемы открыты. Обслуживающий персонал проводит эвакуацию проживающих.

Временные параметры:

– время возникновения пожара – = 12 ч. 20 мин.;

– время обнаружения и сообщения о пожаре – мин.;

– время развертывания первого прибывшего подразделения – мин.;

– время развертывания последнего прибывшего подразделения по вызову № 2 – мин.

Привлекаемые силы и средства, противопожарное водоснабжение – по варианту № 2 (табл. 5.5, 5.6).

Требуется:

На момент подачи огнетушащих средств первым подразделением и на момент локализации пожара (подача огнетушащих средств последним подразделением по вызову № 2):

– определить форму пожара и его геометрические параметры, показать их на плане этажа;

– произвести расчет сил и средств;

– описать действия РТП и оформить их в виде таблицы;

– выполнить схему расстановки сил и средств.

 

 
 

 

 


Задача № 3

Характеристика здания:

Здание столовой двухэтажное, II С.О. – стены и перегородки кирпичные, перекрытия и покрытие выполнены из железобетонных плит, кровля рубероидная на битумной мастике.

Обстановка на пожаре:

Пожар возник на первом этаже в гардеробной. В окнах видны отблески пламени и дым. Дверные проемы открыты.

Временные параметры:

– время возникновения пожара – = 11 ч. 30 мин.;

– время обнаружения и сообщения о пожаре – мин.;

– время развертывания первого прибывшего подразделения – мин.;

– время развертывания последнего прибывшего подразделения по вызову № 2 – мин.

Привлекаемые силы и средства, противопожарное водоснабжение – по варианту № 3 (табл. 5.5, 5.6).

Требуется:

На момент подачи огнетушащих средств первым подразделением и на момент локализации пожара (подача огнетушащих средств последним подразделением по вызову № 2):

– определить форму пожара и его геометрические параметры, показать их на плане этажа;

– произвести расчет сил и средств;

– описать действия РТП и оформить их в виде таблицы;

– выполнить схему расстановки сил и средств.

 
 

 


Задача № 4

Характеристика здания:

Здание общежития трехэтажное коридорного типа, III С.О. – с трудногорючими перегородками и перекрытиями. Кровля металлическая по деревянной обрешетке, выход на чердак с лестничных клеток.

Обстановка на пожаре:

Пожар возник на третьем этаже в помещении кухни от короткого замыкания электроплиты (рис. 5.2). Из окон третьего этажа идет дым, видны отблески пламени.

Временные параметры:

– время возникновения пожара – = 22 ч. 20 мин.;

– время обнаружения и сообщения о пожаре – мин.;

– время развертывания первого прибывшего подразделения – мин.;

– время развертывания последнего прибывшего подразделения по вызову № 2 – мин.

Привлекаемые силы и средства, противопожарное водоснабжение – по варианту № 4 (табл. 5.5, 5.6).

Требуется:

На момент подачи огнетушащих средств первым подразделением и на момент локализации пожара (подача огнетушащих средств последним подразделением по вызову № 2):

– определить форму пожара и его геометрические параметры, показать их на плане этажа;

– произвести расчет сил и средств;

– описать действия РТП и оформить их в виде таблицы;

– выполнить схему расстановки сил и средств.

 

 
 

 


Задача № 5

Характеристика объекта:

Здание гаража одноэтажное, кирпичное, высотой 12 м. Покрытие – металлический профилированный настил со сгораемым утеплителем. В здании имеется зона стоянки автомобилей и зона ремонта.

Обстановка на пожаре:

Из ворот зоны ремонта выходит густой черный дым.

Временные параметры:

– время возникновения пожара – = 16 ч. 10 мин.;

– время обнаружения и сообщения о пожаре – мин.;

– время развертывания первого прибывшего подразделения – мин.;

– время развертывания последнего прибывшего подразделения по вызову № 2 – мин.

Привлекаемые силы и средства, противопожарное водоснабжение – по варианту № 5 (табл. 5.5, 5.6).

Требуется:

На момент подачи огнетушащих средств первым подразделением и на момент локализации пожара (подача огнетушащих средств последним подразделением по вызову № 2):

– определить форму пожара и его геометрические параметры, показать их на плане этажа;

– произвести расчет сил и средств;

– описать действия РТП и оформить их в виде таблицы;

– выполнить схему расстановки сил и средств.

 

 
 

 


Задача № 6

Характеристика здания:

Здание спортшколы двухэтажное, II С.О. – стены и перегородки кирпичные, перекрытия и покрытие выполнены из железобетонных плит, кровля рубероидная на битумной мастике.

Обстановка на пожаре:

Пожар возник в кабинете на первом этаже. В окнах этажа видны отблески пламени и дым. Дверные проемы открыты.

Временные параметры:

– время возникновения пожара – = 10 ч. 40 мин.;

– время обнаружения и сообщения о пожаре – мин.;

– время развертывания первого прибывшего подразделения – мин.;

– время развертывания последнего прибывшего подразделения по вызову № 2 – мин.

Привлекаемые силы и средства, противопожарное водоснабжение – по варианту № 6 (табл. 5.5, 5.6).

Требуется:

На момент подачи огнетушащих средств первым подразделением и на момент локализации пожара (подача огнетушащих средств последним подразделением по вызову № 2):

– определить форму пожара и его геометрические параметры, показать их на плане этажа;

– произвести расчет сил и средств;

– описать действия РТП и оформить их в виде таблицы;

– выполнить схему расстановки сил и средств.

 
 

 


Задача № 7

Характеристика объекта:

Склад красок находится на территории торгового предприятия. Здание склада одноэтажное, II С.О., размером 30 х 12 м. Стены и перегородки кирпичные, покрытие совмещенное железобетонное. Склад разделен на отсеки, в которых хранятся краски и моющие средства в бумажной упаковке.

Обстановка на пожаре:

Из центральных ворот склада красок № 2 выходит дым, видны отблески пламени. Создалась угроза распространения пожара в соседние помещения.

Временные параметры:

– время возникновения пожара – = 14 ч. 35 мин.;

– время обнаружения и сообщения о пожаре – мин.;

– время развертывания первого прибывшего подразделения – мин.;

– время развертывания последнего прибывшего подразделения по вызову № 2 – мин.

Привлекаемые силы и средства, противопожарное водоснабжение – по варианту № 7 (табл. 5.5, 5.6).

Требуется:

На момент подачи огнетушащих средств первым подразделением и на момент локализации пожара (подача огнетушащих средств последним подразделением по вызову № 2):

– определить форму пожара и его геометрические параметры, показать их на плане этажа;

– произвести расчет сил и средств;

– описать действия РТП и оформить их в виде таблицы;

– выполнить схему расстановки сил и средств.

 

 
 

 


Задача № 8

Характеристика здания:

Подвал расположен в здании 9-и этажного жилого дома II С.О. Надподвальное перекрытие выполнено из железобетонных плит.

Обстановка на пожаре:

Пожар в помещении водомерного узла. Из окон подвального помещения выходит густой дым. Жители первого этажа покидают квартиры.

Временные параметры:

– время возникновения пожара – = 22 ч. 45 мин.;

– время обнаружения и сообщения о пожаре – мин.;

– время развертывания первого прибывшего подразделения – мин.;

– время развертывания последнего прибывшего подразделения по вызову № 2 – мин.

Привлекаемые силы и средства, противопожарное водоснабжение – по варианту № 8 (табл. 5.5, 5.6).

Требуется:

На момент подачи огнетушащих средств первым подразделением и на момент локализации пожара (подача огнетушащих средств последним подразделением по вызову № 2):

– определить форму пожара и его геометрические параметры, показать их на плане этажа;

– произвести расчет сил и средств;

– описать действия РТП и оформить их в виде таблицы;

– выполнить схему расстановки сил и средств.

 

 
 

 


Задача № 9

Характеристика объекта:

Предприятие по изготовлению мебели. Здание одноэтажное, II С.О., высотой – 12 м, стены кирпичные, покрытие выполнено из железобетонных плит, кровля рубероидная на битумной мастике. В цехах предприятия ведется обработка древесины и изготовление мебели.

Обстановка на пожаре:

Пожар возник в цехе сборки мебели. Из дверей цеха выходит густой дым, в окнах видны отблески пламени.

Временные параметры:

– время возникновения пожара – = 15 ч. 50 мин.;

– время обнаружения и сообщения о пожаре – мин.;

– время развертывания первого прибывшего подразделения – мин.;

– время развертывания последнего прибывшего подразделения по вызову № 2 – мин.

Привлекаемые силы и средства, противопожарное водоснабжение – по варианту № 9 (табл. 5.5, 5.6).

Требуется:

На момент подачи огнетушащих средств первым подразделением и на момент локализации пожара (подача огнетушащих средств последним подразделением по вызову № 2):

– определить форму пожара и его геометрические параметры, показать их на плане этажа;

– произвести расчет сил и средств;

– описать действия РТП и оформить их в виде таблицы;

– выполнить схему расстановки сил и средств.

 

 


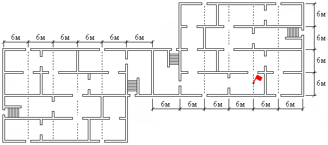
Задача № 10

Характеристика здания:

Здание детского санатория двухэтажное, II С.О. – стены и перегородки кирпичные, плиты перекрытия железобетонные. В здании одновременно может находиться 120 детей и 25 человек обслуживающего персонала.

Обстановка на пожаре:

Пожар возник на первом этаже в кабинете врача. В окнах первого этажа видны отблески пламени и дым. Дверные проемы открыты. Обслуживающий персонал проводит эвакуацию детей с этажей здания.

Временные параметры:

– время возникновения пожара – = 13 ч. 00 мин.;

– время обнаружения и сообщения о пожаре – мин.;

– время развертывания первого прибывшего подразделения – мин.;

– время развертывания последнего прибывшего подразделения по вызову № 2 – мин.

Привлекаемые силы и средства, противопожарное водоснабжение – по варианту № 10 (табл. 5.5, 5.6).

Требуется:

На момент подачи огнетушащих средств первым подразделением и на момент локализации пожара (подача огнетушащих средств последним подразделением по вызову № 2):

– определить форму пожара и его геометрические параметры, показать их на плане этажа;

– произвести расчет сил и средств;

– описать действия РТП и оформить их в виде таблицы;

– выполнить схему расстановки сил и средств.

 

 

 
 

 

 


Задача № 11

Характеристика здания:

Предприятие по изготовлению мебели. Здание одноэтажное, II С.О., высотой – 12 м, стены кирпичные, покрытие выполнено из железобетонных плит, кровля рубероидная на битумной мастике. В цехах предприятия ведется обработка древесины и изготовление мебели.

Обстановка на пожаре:

Пожар возник в цехе окраски и полировки мебели. В окнах видны отблески пламени.

Временные параметры:

– время возникновения пожара – = 13 ч. 00 мин.;

– время обнаружения и сообщения о пожаре – мин.;

– время развертывания первого прибывшего подразделения – мин.;

– время развертывания последнего прибывшего подразделения по вызову № 2 – мин.

Привлекаемые силы м средства, противопожарное водоснабжение – по варианту № 1 (табл. 5.5, 5.6).

Требуется:

На момент подачи огнетушащих средств первым подразделением и на момент локализации пожара (подача огнетушащих средств последним подразделением по вызову № 2):

– определить форму пожара и его геометрические параметры, показать их на плане этажа;

– произвести расчет сил и средств;

– описать действия РТП и оформить их в виде таблицы;

– выполнить схему расстановки сил и средств.

 
 

 

 


Задача № 12

Характеристика здания:

Здание гостиницы 3-х этажное, III С.О., с чердаком – стены кирпичные, перегородки и перекрытия трудногорючие с пустотами. Кровля металлическая по деревянной обрешетке. Основной пожарной нагрузкой на этажах здания является сгораемая отделка помещений и мебель в номерах.

Обстановка на пожаре:

Пожар возник в 203 номере второго этажа. В окнах видны отблески пламени и дым. Дверные проемы открыты.

Временные параметры:

– время возникновения пожара – = 13 ч. 00 мин.;

– время обнаружения и сообщения о пожаре – мин.;

– время развертывания первого прибывшего подразделения – мин.;

– время развертывания последнего прибывшего подразделения по вызову № 2 – мин.

Привлекаемые силы и средства, противопожарное водоснабжение – по варианту № 2 (табл. 5.5, 5.6).

Требуется:

На момент подачи огнетушащих средств первым подразделением и на момент локализации пожара (подача огнетушащих средств последним подразделением по вызову № 2):

– определить форму пожара и его геометрические параметры, показать их на плане этажа;

– произвести расчет сил и средств;

– описать действия РТП и оформить их в виде таблицы;

– выполнить схему расстановки сил и средств.

 

 

 
 

 

 


Задача № 13

Характеристика здания:

Здание столовой двухэтажное, II С.О. – стены и перегородки кирпичные, перекрытия и покрытие выполнены из железобетонных плит, кровля рубероидная на битумной мастике.

Обстановка на пожаре:

Пожар возник в кухне на втором этаже. В окнах видны отблески пламени и дым. Дверные проемы открыты.

Временные параметры:

– время возникновения пожара – = 13 ч. 00 мин.;

– время обнаружения и сообщения о пожаре – мин.;

– время развертывания первого прибывшего подразделения – мин.;

– время развертывания последнего прибывшего подразделения по вызову № 2 – мин.

Привлекаемые силы и средства, противопожарное водоснабжение – по варианту № 3 (табл. 5.5, 5.6).

Требуется:

На момент подачи огнетушащих средств первым подразделением и на момент локализации пожара (подача огнетушащих средств последним подразделением по вызову № 2):

– определить форму пожара и его геометрические параметры, показать их на плане этажа;

– произвести расчет сил и средств;

– описать действия РТП и оформить их в виде таблицы;

– выполнить схему расстановки сил и средств.

 
 

 


Задача № 14

Характеристика объекта:

Склад красок торгового предприятия. Здание склада одноэтажное, III С.О., размером 30 х 12 м. Стены и перегородки кирпичные. Покрытие – металлический профилированный настил со сгораемым утеплителем. Склад разделен на отсеки, в которых хранятся краски и моющие средства в бумажной упаковке.

Обстановка на пожаре:

Из центральных ворот склада красок № 2 выходит дым, видны отблески пламени. Создалась угроза распространения пожара в соседние помещения.

Временные параметры:

– время возникновения пожара – = 13 ч. 00 мин.;

– время обнаружения и сообщения о пожаре – мин.;

– время развертывания первого прибывшего подразделения – мин.;

– время развертывания последнего прибывшего подразделения по вызову № 2 – мин.

Привлекаемые силы и средства, противопожарное водоснабжение – по варианту № 4 (табл. 5.5, 5.6).

Требуется:

На момент подачи огнетушащих средств первым подразделением и на момент локализации пожара (подача огнетушащих средств последним подразделением по вызову № 2):

– определить форму пожара и его геометрические параметры, показать их на плане этажа;

– произвести расчет сил и средств;

– описать действия РТП и оформить их в виде таблицы;

– выполнить схему расстановки сил и средств.

 

 
 

 

 


Задача № 15

Характеристика объекта:

Здание гаража одноэтажное, кирпичное, высотой 10 м. Покрытие выполнено из железобетонных плит, кровля рубероидная на битумной мастике. В здании имеется зона стоянки автомобилей и зона ремонта.

Обстановка на пожаре:

Пожар возник в зоне ремонта автомобилей. Из ворот зоны ремонта выходит густой черный дым. В зоне стоянки и ремонта находятся автомобили.

Временные параметры:

– время возникновения пожара – = 13 ч. 00 мин.;

– время обнаружения и сообщения о пожаре – мин.;

– время развертывания первого прибывшего подразделения – мин.;

– время развертывания последнего прибывшего подразделения по вызову № 2 – мин.

Привлекаемые силы и средства, противопожарное водоснабжение – по варианту № 5 (табл. 5.5, 5.6).

Требуется:

На момент подачи огнетушащих средств первым подразделением и на момент локализации пожара (подача огнетушащих средств последним подразделением по вызову № 2):

– определить форму пожара и его геометрические параметры, показать их на плане этажа;

– произвести расчет сил и средств;

– описать действия РТП и оформить их в виде таблицы;

– выполнить схему расстановки сил и средств.

 

 
 

 

 


Задача № 16

Характеристика здания:

Здание спортшколы двухэтажное, II С.О. – стены и перегородки кирпичные, перекрытия и покрытие выполнены из железобетонных плит, кровля рубероидная на битумной мастике.

Обстановка на пожаре:

Пожар возник на первом этаже в раздевалке гимнастического зала. Коридор и помещения первого этажа задымлены. Дверные проемы открыты.

Временные параметры:

– время возникновения пожара – = 13 ч. 00 мин.;

– время обнаружения и сообщения о пожаре – мин.;

– время развертывания первого прибывшего подразделения – мин.;

– время развертывания последнего прибывшего подразделения по вызову № 2 – мин.

Привлекаемые силы и средства, противопожарное водоснабжение – по варианту № 6 (табл. 5.5, 5.6).

Требуется:

На момент подачи огнетушащих средств первым подразделением и на момент локализации пожара (подача огнетушащих средств последним подразделением по вызову № 2):

– определить форму пожара и его геометрические параметры, показать их на плане этажа;

– произвести расчет сил и средств;

– описать действия РТП и оформить их в виде таблицы;

– выполнить схему расстановки сил и средств.

 
 

 

 


Задача № 17

Характеристика здания:

Здание общежития пятиэтажное коридорного типа, II С.О., стены и перегородки кирпичные. Плиты перекрытий и совмещенного покрытия – железобетонные. Кровля рубероидная на битумной мастике.

Обстановка на пожаре:

Пожар возник на пятом этаже в комнате отыха и психологической разгрузки. Из окон пятого этажа идет дым, видны отблески пламени.

Временные параметры:

– время возникновения пожара – = 13 ч. 00 мин.;

– время обнаружения и сообщения о пожаре – мин.;

– время развертывания первого прибывшего подразделения – мин.;

– время развертывания последнего прибывшего подразделения по вызову № 2 – мин.

Привлекаемые силы и средства, противопожарное водоснабжение – по варианту № 7 (табл. 5.5, 5.6).

Требуется:

На момент подачи огнетушащих средств первым подразделением и на момент локализации пожара (подача огнетушащих средств последним подразделением по вызову № 2):

– определить форму пожара и его геометрические параметры, показать их на плане этажа;

– произвести расчет сил и средств;

– описать действия РТП и оформить их в виде таблицы;

– выполнить схему расстановки сил и средств.

 

 
 

 


Задача № 18

Характеристика здания:

Подвал расположен в здании 5-и этажного жилого дома II С.О. Надподвальное перекрытие выполнено из железобетонных плит.

Обстановка на пожаре:

Горит сгораемый мусор в подвале. Подвал и помещения первого этажа задымлены.

Временные параметры:

– время возникновения пожара – = 13 ч. 00 мин.;

– время обнаружения и сообщения о пожаре – мин.;

– время развертывания первого прибывшего подразделения – мин.;

– время развертывания последнего прибывшего подразделения по вызову № 2 – мин.

Привлекаемые силы и средства, противопожарное водоснабжение – по варианту № 8 (табл. 5.5, 5.6).

Требуется:

На момент подачи огнетушащих средств первым подразделением и на момент локализации пожара (подача огнетушащих средств последним подразделением по вызову № 2):

– определить форму пожара и его геометрические параметры, показать их на плане этажа;

– произвести расчет сил и средств;

– описать действия РТП и оформить их в виде таблицы;

– выполнить схему расстановки сил и средств.

 

 
 

 

 


Задача № 19

Характеристика здания:

Здание элеватора состоит из сплошного железобетонного корпуса высотой 30 м и рабочей башни высотой 40 м. На здании элеватора установлены наружные пожарные лестницы с выходом в надсилосное помещение и на кровлю.

Обстановка на пожаре:

Пожар возник в надсилосном помещении. Из окон помещения идет дым. Горит оборудование, зерно и зерновая пыль. м/мин.

Временные параметры:

– время возникновения пожара – = 13 ч. 00 мин.;

– время обнаружения и сообщения о пожаре – мин.;

– время развертывания первого прибывшего подразделения – мин.;

– время развертывания последнего прибывшего подразделения по вызову № 2 – мин.

Привлекаемые силы и средства, противопожарное водоснабжение – по варианту № 9 (табл. 5.5, 5.6).

Требуется:

На момент подачи огнетушащих средств первым подразделением и на момент локализации пожара (подача огнетушащих средств последним подразделением по вызову № 2):

– определить форму пожара и его геометрические параметры, показать их на плане этажа;

– произвести расчет сил и средств;

– описать действия РТП и оформить их в виде таблицы;

– выполнить схему расстановки сил и средств.

 
 

 

 


Задача № 20

Характеристика здания:

Предприятие по изготовлению мебели. Здание одноэтажное, II С.О., высотой – 12 м, стены кирпичные, покрытие выполнено из железобетонных плит, кровля рубероидная на битумной мастике. В цехах предприятия ведется обработка древесины и изготовление мебели.

Обстановка на пожаре:

Пожар возник в сушильной камере. Из ворот цеха идет густой черный дым.

Временные параметры:

– время возникновения пожара – = 13 ч. 00 мин.;

– время обнаружения и сообщения о пожаре – мин.;

– время развертывания первого прибывшего подразделения – мин.;

– время развертывания последнего прибывшего подразделения по вызову № 2 – мин.

Привлекаемые силы и средства, противопожарное водоснабжение – по варианту № 10 (табл. 5.5, 5.6).

Требуется:

На момент подачи огнетушащих средств первым подразделением и на момент локализации пожара (подача огнетушащих средств последним подразделением по вызову № 2):

– определить форму пожара и его геометрические параметры, показать их на плане этажа;

– произвести расчет сил и средств;

– описать действия РТП и оформить их в виде таблицы;

– выполнить схему расстановки сил и средств.

 
 

 

 


Задача № 21

Характеристика здания.

Здание детского сада двухэтажное, II С.О., стены и перегородки кирпичные, перекрытия железобетонные, кровля рубероидная на битумной мастике. Основной пожарной нагрузкой на этажах здания является сгораемая отделка помещений и мебель.

Обстановка на пожаре.

Пожар возник на первом этаже в игровой комнате. В окнах первого этажа видны отблески пламени и дым. Дверные проемы открыты. Обслуживающий персонал проводит эвакуацию детей.

Временные параметры:

– время возникновения пожара – = 13 ч. 00 мин.;

– время обнаружения и сообщения о пожаре – мин.;

– время развертывания первого прибывшего подразделения – мин.;

– время развертывания последнего прибывшего подразделения по вызову № 2 – мин.

Привлекаемые силы и средства, противопожарное водоснабжение – по варианту № 1 (табл. 5.5, 5.6).

Требуется:

На момент подачи огнетушащих средств первым подразделением и на момент локализации пожара (подача огнетушащих средств последним подразделением по вызову № 2):

– определить форму пожара и его геометрические параметры, показать их на плане этажа;

– произвести расчет сил и средств;

– описать действия РТП и оформить их в виде таблицы;

– выполнить схему расстановки сил и средств.

 

 
 

 


Задача № 22

Характеристика здания:

Здание гостиницы 5-и этажное, II С.О. – стены и перегородки кирпичные, перекрытия и покрытие выполнены из железобетонных плит, кровля рубероидная на битумной мастике. Основной пожарной нагрузкой на этажах здания является сгораемая отделка помещений и мебель в номерах.

Обстановка на пожаре:

Пожар возник на втором этаже в помещении дежурной. В окнах видны отблески пламени и дым. Дверные проемы открыты.

Временные параметры:

– время возникновения пожара – = 13 ч. 00 мин.;

– время обнаружения и сообщения о пожаре – мин.;

– время развертывания первого прибывшего подразделения – мин.;

– время развертывания последнего прибывшего подразделения по вызову № 2 – мин.

Привлекаемые силы и средства, противопожарное водоснабжение – по варианту № 2 (табл. 5.5, 5.6).

Требуется:

На момент подачи огнетушащих средств первым подразделением и на момент локализации пожара (подача огнетушащих средств последним подразделением по вызову № 2):

– определить форму пожара и его геометрические параметры, показать их на плане этажа;

– произвести расчет сил и средств;

– описать действия РТП и оформить их в виде таблицы;

– выполнить схему расстановки сил и средств.

 

 
 

 

 


Задача № 23

Характеристика здания:

Здание столовой двухэтажное, II С.О. – стены и перегородки кирпичные, перекрытия и покрытие выполнены из железобетонных плит, кровля рубероидная на битумной мастике.

Обстановка на пожаре:

Пожар возник на первом этаже в помещении продуктового склада. Помещения первого этажа задымлены. Дверные проемы открыты.

Временные параметры:

– время возникновения пожара – = 13 ч. 00 мин.;

– время обнаружения и сообщения о пожаре – мин.;

– время развертывания первого прибывшего подразделения – мин.;

– время развертывания последнего прибывшего подразделения по вызову № 2 – мин.

Привлекаемые силы и средства, противопожарное водоснабжение – по варианту № 3 (табл. 5.5, 5.6).

Требуется:

На момент подачи огнетушащих средств первым подразделением и на момент локализации пожара (подача огнетушащих средств последним подразделением по вызову № 2):

– определить форму пожара и его геометрические параметры, показать их на плане этажа;

– произвести расчет сил и средств;

– описать действия РТП и оформить их в виде таблицы;

– выполнить схему расстановки сил и средств.

 
 

 

 


Задача № 24

Характеристика объекта:

Склад красок находится на территории торгового предприятия. Здание склада одноэтажное, II С.О., размером 30 х 12 м, высотой 10м. Стены и перегородки кирпичные, покрытие совмещенное железобетонное. Склад разделен на отсеки, в которых хранятся краски и моющие средства в бумажной упаковке.

Обстановка на пожаре:

Из центральных ворот склада красок № 1 выходит дым, видны отблески пламени. Создалась угроза распространения пожара в соседние помещения.

Временные параметры:

– время возникновения пожара – = 13 ч. 00 мин.;

– время обнаружения и сообщения о пожаре – мин.;

– время развертывания первого прибывшего подразделения – мин.;

– время развертывания последнего прибывшего подразделения по вызову № 2 – мин.

Привлекаемые силы м средства, противопожарное водоснабжение – по варианту № 4 (табл. 5.5, 5.6).

Требуется:

На момент подачи огнетушащих средств первым подразделением и на момент локализации пожара (подача огнетушащих средств последним подразделением по вызову № 2):

– определить форму пожара и его геометрические параметры, показать их на плане этажа;

– произвести расчет сил и средств;

– описать действия РТП и оформить их в виде таблицы;

– выполнить схему расстановки сил и средств.

 
 

 

 


Задача № 25

Характеристика объекта:

Здание гаража одноэтажное, кирпичное, высотой 10 м. Покрытие выполнено из железобетонных плит, кровля рубероидная на битумной мастике. В здании имеется зона стоянки автомобилей и зона ремонта.

Обстановка на пожаре:

Пожар возник на покрытии в ходе проведения кровельных работ. Происходит открытое горение на покрытии. В зоне стоянки и ремонта находятся автомобили.

Временные параметры:

– время возникновения пожара – = 13 ч. 00 мин.;

– время обнаружения и сообщения о пожаре – мин.;

– время развертывания первого прибывшего подразделения – мин.;

– время развертывания последнего прибывшего подразделения по вызову № 2 – мин.

Привлекаемые силы и средства, противопожарное водоснабжение – по варианту № 5 (табл. 5.5, 5.6).

Требуется:

На момент подачи огнетушащих средств первым подразделением и на момент локализации пожара (подача огнетушащих средств последним подразделением по вызову № 2):

– определить форму пожара и его геометрические параметры, показать их на плане этажа;

– произвести расчет сил и средств;

– описать действия РТП и оформить их в виде таблицы;

– выполнить схему расстановки сил и средств.

 
 

 

 


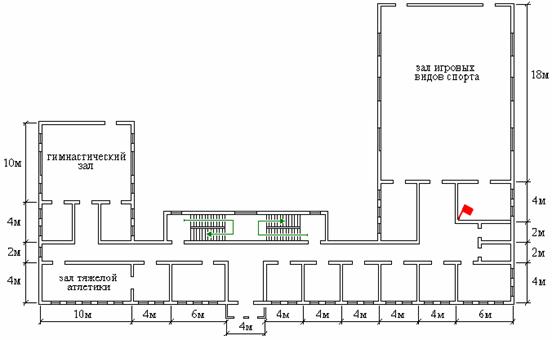
Задача № 26

Характеристика здания:

Здание спортшколы двухэтажное, II С.О. – стены и перегородки кирпичные, перекрытия и покрытие выполнены из железобетонных плит, кровля рубероидная на битумной мастике.

Обстановка на пожаре:

Пожар возник на первом этаже в раздевалке зала игровых видов спорта. Коридор и помещения первого этажа задымлены. Дверные проемы открыты.

Временные параметры:

– время возникновения пожара – = 13 ч. 00 мин.;

– время обнаружения и сообщения о пожаре – мин.;

– время развертывания первого прибывшего подразделения – мин.;

– время развертывания последнего прибывшего подразделения по вызову № 2 – мин.

Привлекаемые силы и средства, противопожарное водоснабжение – по варианту № 6 (табл. 5.5, 5.6).

Требуется:

На момент подачи огнетушащих средств первым подразделением и на момент локализации пожара (подача огнетушащих средств последним подразделением по вызову № 2):

– определить форму пожара и его геометрические параметры, показать их на плане этажа;

– произвести расчет сил и средств;

– описать действия РТП и оформить их в виде таблицы;

– выполнить схему расстановки сил и средств.

 
 

 

 


Задача № 27

Характеристика здания:

Предприятие по изготовлению мебели. Здание одноэтажное, II С.О., высотой – 12 м, стены кирпичные, покрытие выполнено из железобетонных плит, кровля рубероидная на битумной мастике. В цехах предприятия ведется обработка древесины и изготовление мебели.

Обстановка на пожаре:

Пожар возник в столярном цехе. Из ворот здания идет дым.

Временные параметры:

– время возникновения пожара – = 13 ч. 00 мин.;

– время обнаружения и сообщения о пожаре – мин.;

– время развертывания первого прибывшего подразделения – мин.;

– время развертывания последнего прибывшего подразделения по вызову № 2 – мин.

Привлекаемые силы и средства, противопожарное водоснабжение – по варианту № 7 (табл. 5.5, 5.6).

Требуется:

На момент подачи огнетушащих средств первым подразделением и на момент локализации пожара (подача огнетушащих средств последним подразделением по вызову № 2):

– определить форму пожара и его геометрические параметры, показать их на плане этажа;

– произвести расчет сил и средств;

– описать действия РТП и оформить их в виде таблицы;

– выполнить схему расстановки сил и средств.

 
 

 

 


Задача № 28

Характеристика здания:

Здание столовой двухэтажное, II С.О. – стены и перегородки кирпичные, перекрытия и покрытие выполнены из железобетонных плит, кровля рубероидная на битумной мастике.

Обстановка на пожаре:

Пожар возник на первом этаже в раздевалке для обслуживающего персонала. Помещения первого этажа задымлены. Дверные проемы открыты.

Временные параметры:

– время возникновения пожара – = 13 ч. 00 мин.;

– время обнаружения и сообщения о пожаре – мин.;

– время развертывания первого прибывшего подразделения – мин.;

– время развертывания последнего прибывшего подразделения по вызову № 2 – мин.

Привлекаемые силы и средства, противопожарное водоснабжение – по варианту № 8 (табл. 5.5, 5.6).

Требуется:

На момент подачи огнетушащих средств первым подразделением и на момент локализации пожара (подача огнетушащих средств последним подразделением по вызову № 2):

– определить форму пожара и его геометрические параметры, показать их на плане этажа;

– произвести расчет сил и средств;

– описать действия РТП и оформить их в виде таблицы;

– выполнить схему расстановки сил и средств.

 
 

 

 


Задача № 29

Характеристика здания:

Здание элеватора состоит из сплошного железобетонного корпуса высотой 30 м и рабочей башни высотой 40 м.

Обстановка на пожаре:

Пожар произошел в подсилосном помещении. Горит транспортерная лента, зерно и зерновая пыль. м/мин.

Временные параметры:

– время возникновения пожара – = 13 ч. 00 мин.;

– время обнаружения и сообщения о пожаре – мин.;

– время развертывания первого прибывшего подразделения – мин.;

– время развертывания последнего прибывшего подразделения по вызову № 2 – мин.

Привлекаемые силы и средства, противопожарное водоснабжение – по варианту № 9 (табл. 5.5, 5.6).

Требуется:

На момент подачи огнетушащих средств первым подразделением и на момент локализации пожара (подача огнетушащих средств последним подразделением по вызову № 2):

– определить форму пожара и его геометрические параметры, показать их на плане этажа;

– произвести расчет сил и средств;

– описать действия РТП и оформить их в виде таблицы;

– выполнить схему расстановки сил и средств.

 
 

 


Задача № 30

Характеристика здания:

Здание детского сада двухэтажное, II С.О., стены и перегородки кирпичные, перекрытия железобетонные, кровля рубероидная на битумной мастике. Основной пожарной нагрузкой на этажах здания является сгораемая отделка помещений и мебель.

Обстановка на пожаре.

Пожар возник в раздевалке второго этажа. Видны отблески пламени, из окон выходит дым. Дверные проемы открыты. Обслуживающий персонал проводит эвакуацию детей.

Временные параметры:

– время возникновения пожара – = 13 ч. 00 мин.;

– время обнаружения и сообщения о пожаре – мин.;

– время развертывания первого прибывшего подразделения – мин.;

– время развертывания последнего прибывшего подразделения по вызову № 2 – мин.

Привлекаемые силы и средства, противопожарное водоснабжение – по варианту № 10 (табл. 5.5, 5.6).

Требуется:

На момент подачи огнетушащих средств первым подразделением и на момент локализации пожара (подача огнетушащих средств последним подразделением по вызову № 2):

– определить форму пожара и его геометрические параметры, показать их на плане этажа;

– произвести расчет сил и средств;

– описать действия РТП и оформить их в виде таблицы;

– выполнить схему расстановки сил и средств.

 

 

 
 

 


Таблица 5.5

Выписка из расписания выезда подразделений на пожары

№ вари-анта Район выезда Подразделения, выезжающие по номеру пожара
№1 , мин №2 , мин
           
1, 11, ПЧ – 1 ПЧ – 1: АЦ 3-40(4326) АЦ-40(131)137 АКП-30   ПЧ – 3: АЦ-4-40 АНР-40 (130Е)127  
ПЧ – 2: АНР-40(130)127А АЛ –30(131)  
ПЧ – 4: АЦ 2, 5-40(433)  
2, 12, ПЧ – 2 ПЧ – 2: АЦ-40(131)137 АНР-40(130)127А АЛ –30(131)   ПЧ – 6: АЦ 2, 5-40( АЦ 2, 5-40(433362) АКП-30  
ПЧ – 1: АЦ 3-40(4326)  
ПЧ – 9: АЦ 2, 5-40(433440)  
3, 13, ПЧ – 3 ПЧ – 3: АЦ-4-40 АНР-40 (130Е)127   ПЧ – 4: АЦ 2, 5-40(433) АНР-40(130)127А  
ПЧ – 9: АЦ 2, 5-40(433440) АНР-40-800  
ПЧ – 5: АЦ 3, 0-40(433104) АЛ-30(131)  
4, 14, ПЧ – 4 ПЧ – 4: АЦ 2, 5-40(433) АНР-40(130)127А   ПЧ – 5: АНР-40-800 АЛ-30(131)  
ПЧ – 7: АЦ 3-40/4(4325)  
ПЧ – 3: АЦ-4-40  

 

Продолжение таблицы 5.5.

           
5, 15, ПЧ – 5 ПЧ – 5: АЦ 3, 0-40(433104) АНР-40-800 АЛ-30(131)     ПЧ – 9: АНР-40-800  
ПЧ – 7: АЦ 3-40/4(4325)  
ПЧ – 9: АЦ 2, 5-40(433440) АНР-40-800  
6, 16, ПЧ – 6 ПЧ – 6: АЦ 2, 5-40( АЦ 2, 5-40(433362) АЦ 3-40(4326) АНР-40-1400 АКП-30   ПЧ – 2: АНР-40(130)127А АЛ –30(131)  
ПЧ – 1: АЦ 3–40(4326)  
ПЧ – 7: АНР-40(130Е)127  
7, 17, ПЧ – 7 ПЧ – 7: АЦ 3-40/4(4325) АНР-40(130Е)127   ПЧ – 3: АЦ-4-40 АНР-40 (130Е)127  
ПЧ – 2: АНР-40(130)127А  
ПЧ – 5: АЦ 3, 0-40(433104) АЛ-30(131)  
8, 18, ПЧ – 8 ПЧ – 8: АЦ 2, 5-40(131Н) АНР-40(130)127А АЛ -30(131)   ПЧ – 3: АНР-40 (130Е)127  
ПЧ – 4: АЦ 2, 5-40(433)  
ПЧ – 6: АЦ 2, 5-40( АЦ 2, 5-40(433362) АКП-30  
9, 19, ПЧ – 9 ПЧ – 9: АЦ 2, 5-40(433440) АЦ-40(131)137 АНР-40-800   ПЧ – 10: АЦ 1, 0-4/400(5301)  
ПЧ – 8: АНР-40(130)127А АЛ-30(131)  
ПЧ – 7: АЦ 3-40/4(4325)  

 

 

Продолжение таблицы 5.5.

           
10, 20, ПЧ – 10 ПЧ – 10: АЦ 1, 0-4/400(5301) АЦ 3-40/4(4325)     ПЧ – 7: АНР-40(130Е)127  
ПЧ – 8: АНР-40(130)127А АЛ-30(131)  
ПЧ – 6: АЦ 2, 5-40(433362) АЦ 3-40(4326)  

 

 

Таблица 5.6

Схемы противопожарного водоснабжения

№ варианта Схема водоснабжения
1, 11,  
2, 12,  
3, 13,    

Продолжение таблицы 5.6

   
4, 14,    
5, 15,    
6, 16,    
7, 17,    

 

Продолжение таблицы 5.6

   
8, 18,    
9, 19,

Поделиться с друзьями:

mylektsii.su - Мои Лекции - 2015-2026 год. (0.416 сек.)Все материалы представленные на сайте исключительно с целью ознакомления читателями и не преследуют коммерческих целей или нарушение авторских прав Пожаловаться на материал