Студопедия

Главная страница Случайная страница

КАТЕГОРИИ:

АвтомобилиАстрономияБиологияГеографияДом и садДругие языкиДругоеИнформатикаИсторияКультураЛитератураЛогикаМатематикаМедицинаМеталлургияМеханикаОбразованиеОхрана трудаПедагогикаПолитикаПравоПсихологияРелигияРиторикаСоциологияСпортСтроительствоТехнологияТуризмФизикаФилософияФинансыХимияЧерчениеЭкологияЭкономикаЭлектроника






Подготовка фундамента






Если основание в месте установки станка не обеспечивает достаточную прочность, указанную в ПРИЛОЖЕНИИ 1 ЧЕРТЕЖ ФУНДАМЕНТА, необходимо усилить грунт при помощи свай

Свяжитесь с инженером по строительной части для определения необходимого размера и количества свай.

< Необходимые материалы для подготовки фундамента >

Machine – станок Concrete – бетон Chamfer – фаска Reinforcing bar – арматура Foundation bolt box – втулка анкера Concrete subslab – бетонное основание Filling ballast – балластный заполнитель Ground – грунт Rubble – щебень Void – полость втулки
1) Бетон

Прочность (28 дней после заливки): 210 кгс/см2

Величина осадки: 8

Балласт: примерно 25 мм

ВНИМАНИЕ: величина осадки указывает на текучесть бетонной смеси: чем больше величина осадки, тем мягче бетон

 

2) Бутовая смесь из твердых камней, раздробленных до размера 50 – 150 мм

 

3) Балласт-заполнитель

Примерно 25 мм балласта

 

4) Втулка фундаментного анкера

Втулка фундаментного анкера, показанная на рисунке, представляет собой трубку из твердого картона (производство Fuji Void и 3K), к которой посредством пропитанной ткани крепится материал Elastic Felloe (губчатый материал производства Toyo Sholi), предотвращающий выпадение втулки.

5) Пенопласт

Армирующие детали (диаметром от 13 до 19 мм.)


< Процедура>

Styrofoam – пенополистирол Outline of the foundation – контур фундамента Filling ballast – балластный заполнитель Rubble – щебень Ground – грунт Concrete subslab – бетонное основание Rubble – щебень Approx. – примерно…   Втулки анкеров крепятся к арматуре  
1) В связи с необходимостью установки 100 мм пенопласта на внутренней поверхности канавы, необходимо выполнить дополнительную выемку грунта на 100 мм за пределами периметра фундамента. Глубина выемки приведена в ПРИЛОЖЕНИИ 2 ЧЕРТЕЖ ФУНДАМЕНТА

2) Выполните засыпку щебнем и уплотните его балластом (из расчета 20% от массы щебня). Толщина этого слоя должна составлять порядка 200 мм.

3) Залейте примерно 100 мм бетона на получившееся основание и выдержите его двое суток зимой и одни сутки в теплое время года.

4) Разметьте площадь фундамента и центры анкеров на бетонной поверхности фундаментного основания.

5) Выполните бортик из 100 мм пенопласта по периметру канавы.

 

6) Поместите втулки анкеров в размеченные точки и расположите арматуру диаметром от 13 до 19 мм с шагом примерно 200 мм, как показано на рисунке слева.

Закрепите втулки анкеров при помощи арматуры.


1) Установите станок на регулировочные домкраты и выставите уровень.

Jack bolt – регулировочный болт Temporary jack bolt – временный домкрат Jack bolt plate – пластина домкрата Foundation bolt – анкер Protrusion of secondary concrete – выступающая часть второго слоя бетона Nut and washer – шайба и гайка Machine – станок Jack bolt – регулировочный болт First concrete – первый слой бетона Foundation bolt – анкер Reinforcing bar – арматура Concrete subslab – бетонное основание Rubble – щебень Ground – грунт Mortar – раствор    
Закрепите пластины домкрата при помощи шайбы и регулировочных винтов таким образом, чтобы пластина была параллельна полу.

2) Залейте второй слой бетона вровень с полом. Второй слой должен немного выступать по периметру пластины.

Тщательно утрамбуйте второй слой бетона, чтобы обеспечить надлежащее прилегание к обратной поверхности регулировочной пластины

ВНИМАНИЕ: Второй слой бетона:

Используйте смесь из бетона и противоусадочных присадок.

3) После схватывания второго слоя удалите временные домкраты и снова отрегулируйте уровень станка.

ВНИМАНИЕ: Период схватывания может быть различным в зависимости от множества условий.

Теперь можно производить установку станка, как показано на рисунке слева.

MT 52S Foundation drawing - MT 52S ЧЕРТЕЖ ФУНДАМЕНТА M12*P1, 75 NUT – ГАЙКА WASHER – ШАЙБА LEVELING BOLT – РЕГУЛИРОВОЧНЫЙ БОЛТ FOUNDATION BOLT – АНКЕР M12*P1, 75*500L FOUNDATION BOLT – АНКЕР LEVELING BLOCK – РЕГУЛИРОВОЧНЫЙ БЛОК FOUNDATION STEEL BASE – СТАЛЬНАЯ ОСНОВА ФУНДАМЕНТА  


 
 
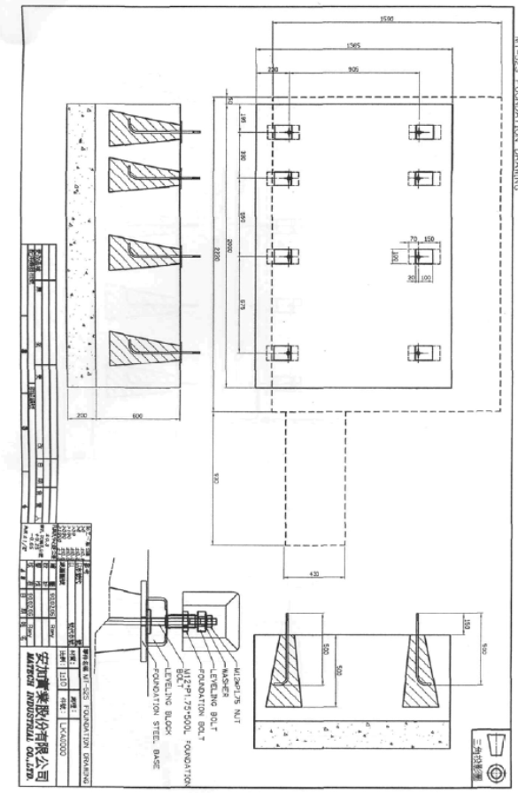
MT 52L Foundation drawing - MT 52S ЧЕРТЕЖ ФУНДАМЕНТА M12*P1, 75 NUT – ГАЙКА WASHER – ШАЙБА LEVELING BOLT – РЕГУЛИРОВОЧНЫЙ БОЛТ FOUNDATION BOLT – АНКЕР M12*P1, 75*500L FOUNDATION BOLT – АНКЕР LEVELING BLOCK – РЕГУЛИРОВОЧНЫЙ БЛОК FOUNDATION STEEL BASE – СТАЛЬНАЯ ОСНОВА ФУНДАМЕНТА    

 

 


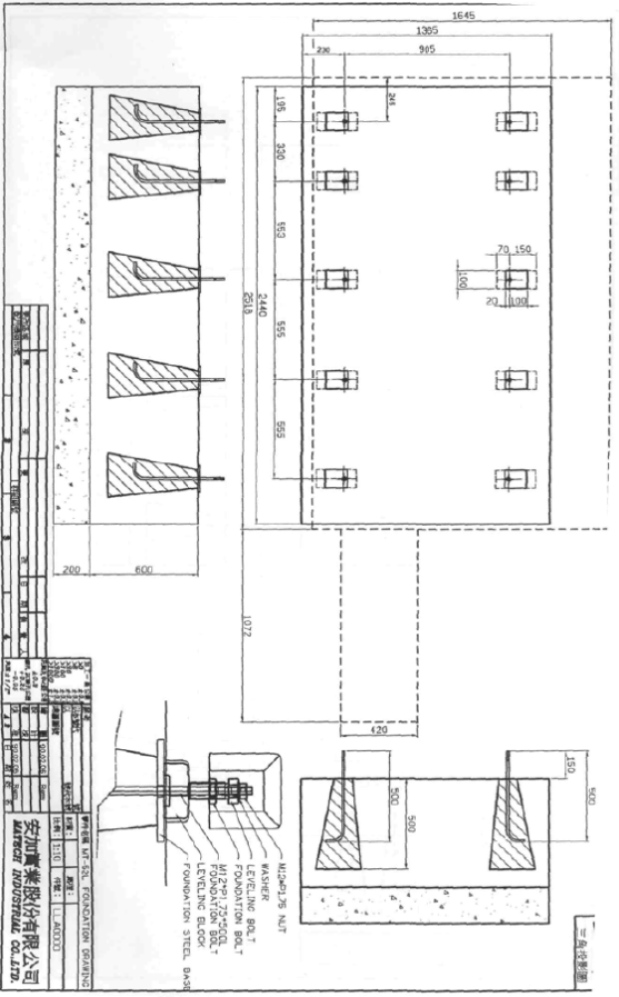
MT 75L Foundation drawing - MT 52S ЧЕРТЕЖ ФУНДАМЕНТА M12*P1, 75 NUT – ГАЙКА M12*P1, 75*500L FOUNDATION NUT – ГАЙКА АНКЕРА WASHER – ШАЙБА LEVELING BOLT – РЕГУЛИРОВОЧНЫЙ БОЛТ FOUNDATION BOLT – АНКЕР M12*P1, 75*500L FOUNDATION BOLT – АНКЕР LEVELING BLOCK – РЕГУЛИРОВОЧНЫЙ БЛОК FOUNDATION STEEL BASE – СТАЛЬНАЯ ОСНОВА ФУНДАМЕНТА  

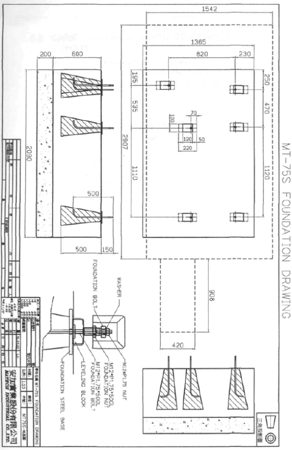
MT 75S Foundation drawing - MT 52S ЧЕРТЕЖ ФУНДАМЕНТА M12*P1, 75 NUT – ГАЙКА M12*P1, 75*500L FOUNDATION NUT – ГАЙКА АНКЕРА WASHER – ШАЙБА LEVELING BOLT – РЕГУЛИРОВОЧНЫЙ БОЛТ FOUNDATION BOLT – АНКЕР M12*P1, 75*500L FOUNDATION BOLT – АНКЕР LEVELING BLOCK – РЕГУЛИРОВОЧНЫЙ БЛОК FOUNDATION STEEL BASE – СТАЛЬНАЯ ОСНОВА ФУНДАМЕНТА  



Поделиться с друзьями:

mylektsii.su - Мои Лекции - 2015-2026 год. (1.433 сек.)Все материалы представленные на сайте исключительно с целью ознакомления читателями и не преследуют коммерческих целей или нарушение авторских прав Пожаловаться на материал