Студопедия

Главная страница Случайная страница

КАТЕГОРИИ:

АвтомобилиАстрономияБиологияГеографияДом и садДругие языкиДругоеИнформатикаИсторияКультураЛитератураЛогикаМатематикаМедицинаМеталлургияМеханикаОбразованиеОхрана трудаПедагогикаПолитикаПравоПсихологияРелигияРиторикаСоциологияСпортСтроительствоТехнологияТуризмФизикаФилософияФинансыХимияЧерчениеЭкологияЭкономикаЭлектроника






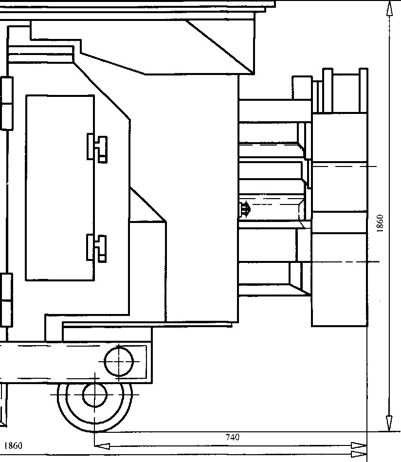
Центрифуга многовалковая СМТ 183А






 

 

Наименование показателя значение

Производительность (по расплаву), кг/час, в пределах 2 000-3 600 Количество валков, шт. 4

Диаметр валков, мм. Валок Ы / Валок Ь2 235 / 340 Скорость передвижения центрифуги, м/сек. 0, 12 Расход воды на охлаждение валков, л/час, не более 4 080 Установленная мощность, кВт 53, 25

Удельный расход электроэнергии, кВт/(кг/час) 0, 027-0, 015 Габаритные размеры (длина х ширина х высота) не более, мм 1 860 х 1 960 х 1 255

Масса, кг, не более 2 980

Масса стержневой загрузки, кг 8 250

Удельная масса, кг/(кг/час) 0, 82-1, 49

Габаритные размеры шкафа управления (длина х ширина х высота), мм 1 340 х 360 х 2 000

Масса шкафа управления, кг 277 Напряжение питания, В 380

Центрифуга многовалковая СМТ 183А предназначена для получения минерального волокна из шлаковых и каменных расплавов методом центрифугирования.

Центрифуга входит в состав оборудования технологических линий по производству минеральной ваты и изделий из нее и устанавливается в закрытых помещениях с положительной температурой.

Вид климатического исполнения центрифуги - УХЛ4 ГОСТ 15150. Для своевременного и качественного техобслуживания центрифуги в технологической линии должны работать как минимум две центрифуги: одна в рабочем режиме, другая в режиме техобслуживания.


Центрифуга состоит из тележки с приводом передвижения, шпинделей с валками (4 шт.) и электродвигателей вращающих их, электрооборудования и пневмооборудования (установки смазки шпинделей).

Центрифуга СМТ 183А-01 дополнительно комплектуется шкафом управления центрифугой.

Смазка подшипниковых узлов шпинделей осуществляется централизованно масляным туманом.

Охлаждение валков осуществляется с помощью воды поступающей из цеховой магистрали. Температура воды контролируется на выходе из шпинделей с помощью датчиков.

Для погашения вибраций от вращения шпинделей последние устанавливаются на амортизаторах.

Работа центрифуги осуществляется в следующем порядке: Ввести центрифугу в восьмерку воздушного шкафа. Подать смазку подшипниковым узлам шпинделей. Подать воду в валки. Включить последовательно привода шпинделей. Направить струю расплава с лотка на первый валок.

Образующиеся волокна отдуваются от валков с помощью воздушных систем воздушного шкафа.

 

-5" О-




 


Технические требования I. Производительность(по расплаву)
кг/ч в пределах 2000-3000
2. Количество валков, шт 4.
3. Диаметр валков, шт валок№1 235-1, 15 валок№2, 3, 4 340-1, 4
4.Скорость предвижения центрифуги м*с, не менее 0, 11
5. Смазка подшибниковых узлов шпинделей масляным туманом.
6.Расход воды на охлаждение, л/ч, не более 35, 25
7.Установленая мощность электродвигателей(общая), кВт, не более 4000-80
8.Удельный расход электроэнергии кВт/ч, не более 53, 25
9.Удельная масса кг*кг*ч, в пределах ___________ 0, 82-1, 49

 

\

«л


 

  +  
    о
+   + я
    о
     
  + +

 



5


 

 

3-


Технологическая часть проекта

 

 

 

 

 

 

 

 

 

          Д. 330.0.04.00.106.0000.П.З
        /
Изм. Лист № докум. Подпись Д^а
Разраб. Шаланго О.Н.     ^Реконструкция Улан-Удэнского стекольного завода под производство полужестких теплоизоляционных плит Лит. Лист Листов
    л /        
Проверил Беппле Р. Р.     ПСМИ ВСПГУ 333-1гр.
Н. Контр. ДамдиноваД.Р.    
Утверд. Заяханов М.Е. | г  

11. КОНТРОЛЬ И УПРАВЛЕНИЕ КАЧЕСТВОМ ПРОДУКЦИИ

Для получения изделий высокого качества необходимо проводить постоянный контроль за их производством и основываясь на полученных данных вносить необходимые изменения и коррективы, учитывающие колебания свойств исходных материалов и условий производства и гарантирующие получение заданных свойств при минимальных материальных, энергетических и трудовых затрат.

Контроль организуется на всех стадиях производства и включает контроль поступающих материалов, приготовление смеси, условия твердения и качество готовой продукции. Для контроля используются различные методы и приборы.

На организующемся заводе будет создан отдел технического контроля, в обязанности которого входит непосредственный контроль за выпуском продукции. Отдел технического контроля (ОТК) завода при заводоуправлении, как правило, подчиняется непосредственно директору завода или главному инженеру. Основной задачей ОТК является принятие действенных мер по предотвращению выпуска и выдачи с завода потребителям недоброкачественной и некомплектной продукции, несоответствующей стандартам и технологическим условиям. С этой целью ОТК организует послеоперационный контроль за качеством выполнения каждой операции на всех этапах технологического потока.

Контроль ОТК начинается с приемки сырья и заканчивается отпуском готовой продукции со склада. ОТК имеет право прекратить приемку от цеха-изготовителя недоброкачественной продукции и относить такую продукцию к различным категориям брака, ОТК контролирует работу всех производственных подразделений. Заводские производственные лаборатории, как правило, являются структурными подразделениями отделов завода. Их основной задачей является обеспечение контроля качества сырьевых материалов и изготовляемых изделий.

 

-5ч-


 

Наименование процесса Контролируемые параметры Место отбора Периодичность Методика Средство Ответственный
Единица, измерения Предельные, значения пробы контроля испытания измерения За контроль
Подготовка сырья из горных пород(входной контроль) Чистота исходного сырья Не допускается загрязнение глиной, пес-ком, включение металлов и т.п. Склады сырья В период приема сырья В соответсвии с РСТУ ССР 5020-90   лаборант
Дробление сырья. Размер фракций, мм. Базальт до 20мм, доломит до 5мм. грохот В период дробления Ситовой анализ Набор сит по ГОСТ 8269-87 лаборант
Получение расплава Расход сырья, кг/час 1250 10 кг/г • Загрузчик печи непрерывно По уровню расплава Уровнемер автоматический УРК-2 стекловар
  + Температура пламенного расплава, С 1500П0 Пламенное пространство непрерывно Автоматическое измерение и регулирование Прибор А565-002- 03, 0-1600 С преобразователь термоэлектрический ТПР1788, 300- 1700 С стекловар

 

Таблица 5.1
Схема контроля производства.


 

Наименование процесса Контролируемые параметры Место отбора Периодичность Методика Средство Ответственный
Единица, измерения Предельные, значения пробы контроля испытания измерения За контроль
  температура В выработочной части печи, С 1470 10 Температура расплава непрерывно Автоматическое измерение и регулирование Прибор А565-002- 03, 0-1600./..-°С преобразователь термоэлектрический ТПР 1788, 300- 1700 С стекловар
  Температура; -расплава в фидере; 1470 5 Температуру расплава Непрерывно Автоматическое измерение и регулирование Прибор А565-002- 03, 0-1600 " С преобразователь термоэлектрический ТПР 1788, 300- 1700 С стекловар
Уровень расплава в печи. мм   Окно в стене ванной печи Непрерывно Автоматическое измерение и регулирование Уравномер УРК-2 шкала 2мм стекловар
Давление пламенной среды. Кгс/м 30-50 Пламенно пространство печи непрерывно Автоматическое измерение и регулирование тягонапоромер стекловар

  Наименование процесса Контролируемые параметры Место отбора Периодичность Методика Средство Ответственный
    Единица, измерения Предельные, значения пробы контроля испытания измерения За контроль
  Давление подаваемого на форсунки мазута Кгс/м 4-5 мазутопровод Непрерывно измерение манометр стекловар
» I Давление воздуха подаваемого на форсунки Кгс/ м ' -с. 5-6 Воздушная магистраль непрерывно измерение манометр стекловар
  Температура подогретого воздуха на горение •о °С 500 50 регенератор непрерывно измерение Электрический шкаф СМТ 184А оператор
  Средний диаметр волокна, мкм 7-8 Конвейер приемно-формирующий В смену 2 раза Визуально, измерение Весы ВПР-200г, шкала 0-5 Ог; Электропечь сопротивлениякамерная лабораторная СНОЛ-1, 6.2, 5 лаборант  

 

Наименование процесса Контролируемые параметры Место отбора Периодичность Методика Средство Ответственный
Единица, измерения Предельные, значения пробы контроля испытания измерения За контроль
  Массовая доля неволокнистых включений(корольков) размером 0, 25мм, % не более 11-20 Конвейер приемно-формирующий В смену 2 раза Визуально, измерение Весы ВПР-200 г, шкала 0- 5 Ог; Электропечь сопротивления камерная лаборатория СНОЛ лаборант
Формиро­вание ковра Скорость конвейера, м/мин 1-5 Конвейер приемно-формирующий При переналадке на другую толщину матов Визуально, измерение Секундомер СОПР 1-2, рулетка ЗПКЗ-5 АУТ/1 Машинист упаковщик
  Толщина ковра, мм 50-100 То же То же То же Толщино-мер То же
Сушка ковра Толщина, время выдержки 5-100 5-10 мин То же То же То же толщина лаборант

Наименование процесса Контролируемые параметры Место отбора Периодичность Методика Средство Ответственный
  Единица, измерения Предельные, значения пробы контроля испытания измерения За контроль
  Контроль качества продукции. В соответствии с ГОСТ 9573-96. ГОСТ 21880-94. Склад готовой продукции Каждая партия измерение Весы ВШ-200 весы ВПР-200, установка ИТСМ-1 (для измерения теплопроводности), рулетка ЗПКЗ-5 АУТ/1, штангенциркуль лаборант

12. ОРГАНИЗАЦИЯ ТРУДА И СИСТЕМА УПРАВЛЕНИЯ ПРЕДПРИЯТИЕМ

Под организацией труда на предприятии понимают комплекс мероприятий, направленных на планомерное и наиболее целесообразное использование рабочей силы при данном уровне техники и организации производственного процесса.

Проектируемый цех устанавливает прямые производственные связи с различными предприятиями по поставке сырьевых материалов.

Форма организации труда - бригадная, форма оплаты труда -сдельно- премиальная.

Для обеспечения непрерывности труда рабочие обеспечиваются необходимыми инструментами и материалами. Ежедневно мастером выдается производственное задание. По окончании рабочей смены мастер

-0> О-

 

 

 

Содержание Затраты Текущее время
Мин. %
1. Решение оперативных вопросов связанных с работой цеха   15, 6 800_915
2. Анализ производственно - хозяйственной деятельности   9, 4 915 _ 1000
3. Отдых ЛО 2, 1 1000- 1010
4. Обход технологических линий цеха. ПО 22, 9 10ю-12°°
5. Обед     12оо_13оо
6. Рассмотрение вопросов связанных с внедрением новой технологии.   9, 4 13°°-1345
7. Изучение передового опыта; обмен опытом.   15, 6 1345 - 15°°
8. Отдых   2, 1 15°°-1510
9. Проведение оперативных совещаний, в т.ч. у руководства.   15, 4 15ю -1624
10. Оформление документов, служебных записок, подбор и оформление кадров.   7, 5 1624- 17°°

 

Таблица 12.1. ____________ Организация трудового процесса начальника цеха ___________

выполняет проверку качества выполненной работы.


Начальник цеха является административно-техническим руководителем и организатором всей производственной и хозяйственной деятельности предприятия. Он подчиняется директору предприятия. Все указания администрации реализуются через начальника цеха.

На данном предприятии планируется применить линейную схему подчинения.

На любого инженерно-технического работника и рабочего должна быть разработана и утверждена карта организации трудового процесса.

В проекте рассчитывается трудоемкость выработки продукции, производительности труда, энерговооруженность, съём продуктов с 1 м2 производственной площади, которая определяется мощностью предприятия и технологии производства.

Для проведения расчетов необходимо знать штатную ведомость предприятия, составленную на основе типовых проектов. В состав предприятия входят: руководители производства (начальник цеха), сменные мастера, производственные рабочие, обслуживающий персонал, дежурные механики, электрики и др.)

Численность вспомогательных рабочих составляет 25-40%, служащих 8-10% от числа производственных рабочих. Данные по потребности в рабочей силе сводятся в таблицу.

 

 

-ел-


№ п/п Наимено­вание Группа произ­водст­венного процес­са Кол-во смен Явочная числен­ность Списоч­ная числен­ность Цеховой персо­нал (ИТР)
             
  Цеховой персонал          
  Начальник цеха          
  Мастер смены          
  Механик          
4 5 Контролер - лаборант Уборщица   3 2     1 2
  Итого          
Основные производственные рабочие
  обжигальщик -оператор плавильной печи        
2 5 обжигальщик -оператор плавильной печи          
  Итого          

 

Таблица. 12.2


Вспомогательные рабочие
  Наладчик оборуд.          
  Дежурный          
  слесарь          
  Дежурный электросле сарь        
  Слесарь        
  КИПиА          
  ИТОГО          
  ВСЕГО          
Промышленно - производственный персонал: 30 человек

 

Трудоемкость производства базальтовых плит составила: 1, 14 чел -час/т. Расчеты были проведены делением годового количества человека -часов на годовую производительность предприятия по производству

з

базальтовых плит (м /год).

Производительность труда - количество продукции, приходящейся на год на одного списочного рабочего, в натуральном или стоимостном выражении:

Пт= Пг/Кс = 80000/30 - 6896, 55 т/чел;

Энерговооруженность - это мощность в кВт всех электродвигателей основного и транспортного оборудования, отнесенная к I - му рабочему:

Э = Еп! /Кс= 1, 73 КВт/чел Съем продукции с 1м2 (С) производственной площади составляет:

С = Пг/Е$1,

где Пг - годовая производительность предприятия, Т 8 - суммарная площадь производственных помещений на всех уровнях, м С = 666, 7 Т/м.


На современном предприятии все большее распространение получают автоматизированные системы управления. Вычислительная техника используется на различных уровнях производства. Данная структура отражает взаимодействие как людей между собой, так и с техникой, а также непосредственное управление производственными процессами. Внедрение АСУ позволяет достичь высоких показателей качества продукции. Организация любого нового предприятия обеспечивает создание новых рабочих мест. Для обеспечения выпуска наиболее качественной продукции необходимо принимать на запланированные рабочие места квалифицированных работников. Помощь в поиске рабочей силы может быть оказана системой трудовой занятости населения, а также привлечением СМИ.


13. ГЕНЕРАЛЬНЫЙ ПЛАН И ТРАНСПОРТ.

 

 

Производство базальтового теплоизоляционного материала предполагается разместить на территории существующего завода ОАО «БАЗАЛЬТ». Поэтому целесообразно использовать производственную территорию завода, а не организовывать новое строительство.

На территории завода расположены: административно-бытовой корпус.

К заводу подведены железнодорожные и автотранспортные пути. Внутризаводские дороги и подъездные пути асфальтированы. На территории завода имеются следующие коммуникации: водопровод хозяйственно-питьевой, водопровод производственно-промышленный, кабельная линия электроснабжения, городская канализация, теплоснабжение от котельной юго-западная.

Для озеленения внутризаводского участка используются следующие виды насаждений: тополь, ель сибирская, черемуха азиатская, желтая акация.

Помещение, где будет организованно производство базальтового цемента выполнено из железобетона: несущие конструкции - колонны, расположенные на расстоянии 6 метров друг от друга, ограждающие конструкции железобетонные блоки. Для естественного освещения по всему периметру здания по периметру здания предусмотрены окна. Помещение оборудовано противопожарной сигнализацией, имеются вентиляционные шахты. Также, к зданию подведены отопление, производственно-промышленное водоснабжение и канализация.


14. СТРОИТЕЛЬНЫЕ РЕШЕНИЯ

 

 

Цех по производству базальтового теплоизоляционного материала размещается на территории ОАО " БАЗАЛЬТ" с существующими инженерными коммуникациями в производственном цехе 50x20 м в плане и высотой 13 м. Цех выполнен из железобетонных конструкций и бетонных блоков.

По пожаробезопасное™ и взрывоопасное™ производство относится к категории " Д". Для обеспечения пожаробезопасное™ все электрооборудование и электромашины заземляются и огораживаются.

В корпусах предусматривается искусственное и естественное освещение.

Для рабочих предусмотрено использование административно -бытового корпуса (бытовок и комнаты приема пищи).

Объемно - планировочное и конструктивное решение основывается на применении унифицированных типовых пролетов и элементов.

Несущей конструкцией является сборный железобетонный каркас.

Фундамент - сборный, железобетонный стаканного типа.

Фундаментные балки - железобетонные.

Колонны - сборные железобетонные.

Балки перекрытия - ригели сборные железобетонные.

Покрытия - сборные железобетонные, ребристые по ГОСТу 22701.1-

77*.

Панели - типа сэндвич из минеральной ваты, профильные листы из строительной стали.

Кровля - рулонная из 3-х слоев рубероида РЭМ 150 на битумной мастике с утеплителем пенополистиролом и защитным слоем из гравия.


Автоматизация

 

 

 

 

 

 

 

          Д. 333.08.0.3.276.0000.П.З
         
Изм. Лист № докум. Подпись Дата
Разраб. Шаланго О.Н   1С.Г- 1 \Ре}«эяструкция Улан-Удэнского Лит. Лист Листов
        'Стекольного завода под производство      
Проверил Бовкун А.Ф     полужестких теплоизоляционных плит ВСГТУ 333-1гр.
Н. Контр. ДамдиноваД.Р. Ш  
Утверд. Заяханов М.Е.  

 

7©—-° 9©----- 0


 

Экспликация оборудования

 

1. Приемный бункер.
  Элеватор.
  Силоса
  Силоса.
  Смеситель
  Элеватор загрузки

1.... 11

^_____ 1_



Микро ЭВМ

Сбор данных


Управление

исполнительными

механизмами


 

2=а


ВСГТУ гр 333-1


Автоматизация производства теплоизоляционных плит на минеральном

волокне (базальтовом волокне).

 

 

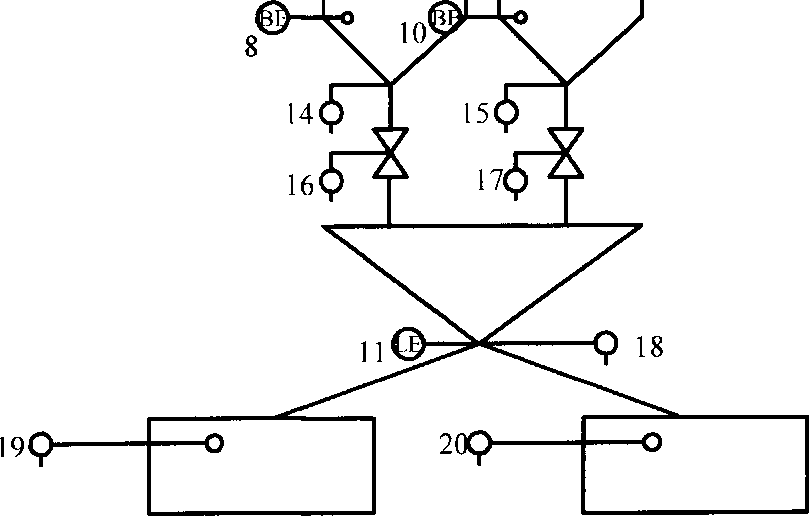
Для облегчения технологического процесса, т.е обеспечения точного и быстрого дозирования сырьевых компонентов, показателями уровней наполнения бункеров, управление клапанами, двигателями сигнализациями, задвижками, снижение трудоемкости и стоимости работ, повышение качества, улучшения условий труда, обеспечение безопасности выполняемых работ, при производстве теплоизоляционных плит внедряется система регулирования с помощью электро вычислительной машины ЭВМ.

Автоматизация процессов приготовления сырья для расплава в печи на различных заводах в зависимости от наличия оборудования, его компоновки и.т.п. решается по разному. В общем виде систему автоматизации заготовительного отделения с учетом достижений предприятий эффективного производства теплоизоляционных плит можно представить так, как она показана на чертеже. Основная задача этой системы состоит в том, чтобы обеспечить устойчивую работу формовочных машин путем своевременной подачи заданного количества сырьевой смеси, имеющей высокое качество. Необходимое количество сырья получает за счет точного дозирования сырьевых компонентов, высокое количество обеспечивают за счет точного соблюдения параметров их обработки. Поэтому система автоматизации предусматривает:

1) Двухпозиционный контроль уровня шихты в бункерах; в зависимости от степени заполнения бункеров производится подача шихты или прекращается его подача в бункера;

2) Контроль поступления шихты с конвейера в бегуны, необходимый для своевременного сигнала для ЭВМ о наличии или отсутствии асбеста в нем; эту величину контролируют при помощи


отклоняющей под воздействием массы шихты пластинки, связной с ЭВМ и устанавливаемом на входе в бегуны.

3) Двухпозиционный контроль заполнения бункера шихтой; при достижении верхнего или нижнего уровня подается сигнал на ЭВМ, воздействующий на краны подачи цемента.

4) В голендерах и смесителях уровень контролирует в двух точках.


Безопасность жизнедеятельности

 

 

 

 

 

 

 

 

 

          Д. 330.0.0..106.0000.П.З
         
Изм. Лист № докум. Подпись Дата-
Разраб. Шаланго О.Н     'Реконструкция Улан-Удэнского стекольного завода под производство полужестких теплоизоляционных плит Лит. Лист Листов
      /     ЛОЗ
Проверил ПереваловаО.А     ПСМИ ВСГТУ 333-1гр.
Н. Контр. ДамдиноваД.Р.    
Утверд. Заяханов М.Е.    

16. БЕЗОПАСНОСТЬ ЖИЗНЕДЕЯТЕЛЬНОСТИ Безопасность жизнедеятельности является одной из важнейших социальных проблем. Для успешного решения задач безопасности жизнедеятельности и охраны труда разработаны и реализованы многочисленные правовые, технические и организационные мероприятия по охране жизнедеятельности.

Уровень решения проблем обеспечения безопасности жизнедеятельности в любом современном государстве может служить наиболее достоверным и комплексным критерием для оценки, как степени экономического развития, так и стабильности этого государства.

Проблемы обеспечения безопасности при производстве работ для человека особо остро проявляются непосредственно на предприятиях, где зоны формирования различных опасных и вредных факторов практически пронизывают всю производственную среду, в которой осуществляется трудовая деятельность персонала.

Производственные процессы должны соответствовать требованиям безопасности по ГОСТ 12.3.002 - 89; применяемое оборудование должно соответствовать требованиям ГОСТ 12.2.003 - 89.

В соответствии с требованиями стандартов ССБТ, безопасность труда обеспечивают:

1) Выбором применяемых технологических процессов.

2) Выбором производственных помещений и площадок.

3) Выбором исходных материалов, способов их хранения и транспортирования.

4) Выбором производственного оборудования, его размещением на площадях и порядком обслуживания.

5) Организацией рабочих мест и распределением функций между человеком и оборудованием в целях ограничения тяжести труда.

6) Противопожарными техническими решениями и организационными мероприятиями.

7) Профессиональным отбором и обучением работающих.

8) Применением средств защиты.

9) Пожарной безопасностью объекта.

10)Применением методов и принципов по безопасности жизнедеятельности.


11)Контролем за безопасностью процессов и эксплуатацией оборудования.

16.1. Безопасность технологического процесса Безопасность технологических процессов обеспечивают за счет:

1) Идентификации опасностей, вредных и опасных факторов, снижением или
ограничением воздействия на работающего с использованием различных методов и
принципов.

2) Замены технологических процессов и операций, связанных с
возникновением опасных и вредных производственных факторов, процессами и
операциями при которых указанные факторы отсутствуют или обладают меньшей
интенсивностью.

3) Комплексной механизацией, автоматизацией и дистанционным управлением процессами.

4) Герметизации оборудования и применения средств защиты работающих.

5) Снижения уровня шума и вибрации.

 

6) Рациональной организации труда и отдыха с целью профилактики монотонности и гиподинамии, а также ограничения тяжести труда.

7) Системы контроля, быстрого извещения об опасностях, аварийного отключения оборудования и удаления или обезвреживания источников опасности.

16.2. Идентификация опасностей на объекте Выполняя технологические операции при производстве пенобетона, на

работающих будут воздействовать вредные производственные факторы.

При анализе следует, что в цехе при выполнении технологического процесса

имеют место опасные и вредные производственные факторы перечисленные в

таблице 1. При производстве могут возникать постоянные или периодически

опасные производственные факторы. Для устранения опасных зон установлены

ограждающие устройства.

К работе на оборудовании допускаются лица, прошедшие обучение и сдавшие

экзамен по технике безопасности, получившие допуск к работе на данном

оборудовании.

 

 

-Ц.Ц —


Опасные и вредные производственные факторы
Рабочее место или цех, где воздействует фактор Опасные производст­венные факторы Продолжитель­ность действия в смену Вредные производст­венные факторы Продолжитель­ность действия в смену
         
  Электрическое напряжение Постоянно Повышенная, пониженная температура воздуха Периодически
Цех Острые кромки, заусенцы, шероховатость Случайно Повышенный уровень шума Периодически
  Падение деталей Случайно Повышенная запыленность и загазованность Периодически
  Передвижение деталей, изделий, заготовок Периодически Недостаточная освещенность рабочих мест Для отдельных рабочих мест
  Разрушающиеся конструкции Случайно Повышенная скорость движения воздуха Случайно

 

Таблица 1.

16.2.1. При подсчете уровня автоматизации и механизации на данном участке было замечено, что доля ручного труда составляет 30 %, а автоматизированного 70%. Для облегчения труда в данном проекте предусмотрена организация питьевого водоснабжения с добавлением микроэлементов, рациональное и калорийное питание и комната психологической разгрузки.

16.2.2. При выполнении технологических операций на работающих будут воздействовать вредные вещества, выделяемые в воздух рабочей зоны. Таким образом, в проекте предусмотрена приточно-вытяжная вентиляция.

16.2.3. Проектом предусматривается обеспечение уровня шума и вибрации на рабочих местах с мероприятиями работодателя по допустимым нормам. При этом на предприятии должен снизиться уровень шума за счет акустических, строительно-акустических, инженерно- технических, режимных и организационных мероприятий, средств индивидуальной защиты.

16.2.4. На предприятии ОАО «БААЛИТ» на участке производства
теплоизоляционных плит предусматривают следующий режим труда и отдыха.


Начало работы с 8 до 17 часов. С 8 до 10 рабочее время для технологического процесса. С 10°° до 1015 - перерыв. Обед с 12°°до 13°°. После обеда до 15°° рабочие заняты технологическим процессом. С15°° до 1515 - перерыв. Далее до 17°° выполнение технологических операций. В 17°° часов рабочий день заканчивается.

16.2.5. Для контроля параметров ОПФ и ВПФ должны использоваться следующие отечественные приборы: электрический аспиратор (822), УГ-3, шумо-мер, виброметр, психрометр Ассмана, спиртовой термометр и т.д. Измерения производить по соответствующим методикам.

16.3. Безопасность производственных помещений

Безопасность производственных помещений обеспечивают:

1) Объемно- планировочными и конструктивными решениями.

2) Санитарно- бытовым обеспечением.

3) Противопожарными нормами.

4) Эвакуацией людей из зданий и помещений.

Объемно - планировочные решения предусматривают обеспечение безопасности на проектном уровне:

• ограничением количества и площади этажей;

• объединением в одном здании помещений для различных операций, складских, административных и бытовых помещений;

• принятием площадей световых проемов в соответствии с нормами естественного и искусственного освещения;

• рациональной окраской строительных конструкций и оборудования для создания благоприятного светоцветового климата;

• применением приточно-вытяжной вентиляции для предупреждения взрывов, пожаров, острых отравлений и профессиональных хронических заболеваний.

При проектировании цеха принимаем решения с учетом градостроительных, климатических условий, в соответствии с требованиями ГОСТ23838 и ГОСТ24336, которые регламентируют геометрические параметры зданий.

16.3.1. В соответствии с положениями СНиП 2.09.02 и других нормативных документах о количестве этажей, их площадях, геометрических параметрах зданий, объеме и площади помещений, приходящихся на одного рабочего. Они не должны

3 2

быть меньше соответственно 15м и 4, 5м.


В данном проекте производственная площадь занимает 2268 м2, а бытовые помещения 162 м. Численность основных рабочих составляет 11 человек и вспомогательных 3 человека. Из данных видно, что площадь соответствует нормативам и требованиям.

При подготовке к пуску цеха в эксплуатацию по разрабатываемому проекту соответствующими службами должен быть составлен план эвакуации людей и оборудования.

16.3.2. Для защиты органов зрения предлагается использование ламп и светильников:

1). Все рабочие места- ЛБ-80.

2). Для рабочих мест браковки и контроля- ЛДЦ-80.

3). В бытовых помещениях с мокрым процессом- ЛН.

4). Во всех других помещениях- ЛТБ-80.

5). Во всех производственных помещениях использовать светильники ПВЛМ со степенью защиты 1Р-55.

Проводку проводов и кабелей питания в энергосетях проложить в соответствии с ГОСТ 12.1.019, СНиП 2.01.02. Результаты исследований сведены в таблицы 2, 3.

Цвет в интерьере

Таблица 2.

 

 

 

 

 

Строительные конструкции, элементы Цвет Примечание
. „ Рекомендуемый Фактический \ по СН 181-70
Стены Окрашивают в бежевый цвет  
Колонны  
Окна Окрашивают в белый цвет  
Потолок  

Цвета сигнальные и знаки безопасности

 

Объект окраски Применяемый цвет, нормируемый по ГОСТ 12.4.026-76
Предмет Фон
     
Пожарная техника красный красный
Пожарный стенд красный Белый
Ограждение красный  
Строительные конструкции желтый, белый  
Внутризаводской транспорт желтый  
Средства обеспечения безопасности зеленый, светлое табло  
Запасный выход зеленый Белый
Аптека синий контур, красный крест Белый
Производственное оборудование зеленый  
Трубопроводы: вода; горючая жидкость и т.п. зеленый  
Знаки безопасности красный контур, черный предмет Белый

 

Таблица 3.

Расчёт искусственного освещения Искусственное освещение применяется в часы суток, когда естественного света недостаточно либо в помещениях, где оно отсутствует по технологическим ограничениям.

Расчет сводится к определению потребного количества светильников N для установки в цехе, которое определяется по формуле:

 

 

Р., -V

где 8 - освещаемая площадь, м2;

Етш - уровень минимальной освещенности. Ет)п=300к. (СНиП 23-05-95) К3 - коэффициент запаса. К3=1, 5 (Помещение с малыми пылевыделениями) 2 - коэффициент неравномерности освещенности (отношение средней освещенности к минимальной). 2 =1, 1 (для люминесцентных ламп) Рл - световой поток лампы. Рл=3000Лм (ЛБ 40Вт)

? ] - коэффициент использования осветительной установки.? /=0, 67 (зависит от индекса помещений 1):


АВ гр-(А + ВУ

где А - длина помещения, м; В - ширина помещения, м;

Ьр - высота подвеса светильников над столом (пр=3, 4м).

_ 108-21 _ ^ ~ 3, 4(108 + 21) ~ '

 

 

3000 • 0, 67

Согласно данному расчёту для искусственного освещения проектируемого цеха потребуется 559 люминесцентных ламп мощностью 40Вт.

Расчёт воздухообмена Воздухообмен, необходим для создания нормальных условий в рабочей зоне и определяется по формуле:

0=Л/*К

где V - объём рабочей зоны, м; К - кратность воздухообмена.

К = С/Х

где С - весовая концентрация пыли, мг/м3; X - предельно допустимая концентрация пыли в рабочей зоне, мг/м3.

К = 9/6 = 1, 5 (2=3600*1, 5=5400 м3/ч На данном предприятии инженером по охране труда и технике безопасности должны контролироваться ряд мероприятий, таких как: проведение первичного инструктажа, инструктажа работников по графику, соблюдение необходимых и достаточных мер безопасности.

 

 

16.3.3. В соответствии с требованиями СНиП 2.09.04 санитарная группа проектируемого процесса: I; 1а; 16; II и Па. Исходя из этого, рабочих следует обеспечить следующими помещениями, указанными в таблице 4.


16.3.4.

Состав санитарно- бытовых помещений
Количество работающих, чел Наименование санитарно-бытовых помещений Количество Площадь, м2
       
  Гардеробные мужские    
  Гардеробные женские   10, 5
  Душевые мужские   7, 5
  Душевые женские   7, 5
  Курительные мужские    
  Курительные женские    
  Комната личной гигиены мужчин   2, 8
  Комната личной гигиены женщин   2, 8
  Санузел мужской   1, 5
  Санузел женский   2, 8
  Комната психологической разгрузки    
  Комната приема пищи    

 

Таблица 4.

Водоснабжение осуществляется от инженерных сетей города. В цех вода подается по водопроводу.

Цех оборудован питьевыми фонтанчиками и автоматами газированной воды, температура воды 7-20°С.

16.3.5. Питание работников цеха организовано в столовой предприятия. В проекте предусмотрена комната приема пищи, комната отдыха и зона отдыха, прилегающая к цеху. По проекту предлагается за смену 2 перерыва по 15 минут и перерыв на обед в 1 час.

16.3.6. Лечебно- профилактические мероприятия заключаются в организации ежегодного медицинского осмотра, в соответствии с правилами установленными на предприятии, а также организована работа медицинского пункта.

16.3.7. Для поддержания допустимых установленных метеоусловий в цехе предусмотрена приточно-вытяжная вентиляция и водяное отопление, согласно ГОСТ 12.04.021 и СНиП 2.04.05.

16.3.8. Рабочим регулярно выдается специальная одежда и средства индивидуальной защиты. Специальной одеждой является выдача халатов, верхонок, фартуков.


16.4. Безопасность производственного оборудования Безопасность производственного оборудования обеспечивается за счет:

• Выбора оборудования;

• Конструирования рабочего места, его размеров и взаимного расположения элементов с учетом антропогенных, физиологических и психофизиологических свойств человека, а также характера работы;

• Применения в конструкции средств защиты, безопасных материалов и

т.п.;

• Выбора принципов действия, конструктивных схем, безопасных элементов конструкции и т.п.

 

16.4.1. Выбор оборудования произведен в соответствии с требованиями стандартов: ГОСТ 12.2.003, ГОСТ 12.2.026, ГОСТ 12.2.026-3, ГОСТ 12.2.026.12.

Выбранное оборудование оснащено следующими устройствами безопасности согласно требованиям ГОСТ 12.4.124, ГОСТ12.4.155, ГОСТ12.1.030:

- электрическими предохранителями;

- регулярная работа тепло оборудования.

16.4.2. Оборудование соответствует эргономическим требованиям согласно требованиям ГОСТ 12.2.049. Педали, рычаги управления станков удобно расположены. Необходимый рабочий инструмент находится в непосредственной близости от рабочего.

Организация рабочего места осуществляется согласно требованиям ГОСТ 12.2.032, ГОСТ 12.2.033, ГОСТ 12.2.061 с учетом антропометрических данных человека.

При выборе оборудования и организации рабочих мест использована антропометрическая характеристика- средний рост человека в России 167см для мужчин и 157см для женщин.

16.4.3. Оборудование разместили на плане цеха, лист №3 графической части проекта, в соответствии с требованиями ГОСТ 12.3.007, СНиП 2.02.02, СНиП 3.31. При проектировании цеха и планировки размещения оборудования соблюдены все требования СНиП 2.02.02.

16.4.4. Для защиты рабочих от поражения электрическим током предусмотрен ряд мероприятий:

- все доступные токопроводящие части изолируются и ограждаются;

- 8\~


- персоналу обслуживающему электрооборудование, выдаются СИЗ;

- защитное зануление оборудования;

- защитное заземление оборудования;

- разделение сетей;

- аварийное отключение оборудования.

16.5. Требования безопасности к профессиональному отбору и обучению

работающих

К персоналу для обслуживания технологического процесса предъявляют ряд требований:

- профессиональная подготовка работников;

- знания техники безопасности;

- коммуникабельность;

освидетельствование соответствия их физиологических, психофизиологических и антропометрических особенностей характеру работ.

Средство защиты Тип, вид Назначение Нормативный документ
Система приточно- вытяжной вентиляции Приточно-вытяжная вентиляция Для снижения запыленности и загазованности воздуха; для создания оптимальных параметров микроклимата ГОСТ 12.4.021 СНиП 2.014.05
Отопление Центральное водяное Для создания теплового баланса; для обеспечения благоприятных условий труда; для обеспечения оптимальной влажности ГОСТ 12.4.021 СНиП 2.014 05
Водопроводная сеть Производст­венная и хозяйственно-питьевая Для обеспечения предприятия водой СНиП 2.04.02

 

Таблица 5.

16.6. Требования безопасности к средствам защиты Средства коллективной защиты

16.7. Пожарная безопасность Пожарную безопасность рассматривают по 4 направлениям:

- пожарная безопасность зданий;

- пожарная автоматика зданий;


- режимные мероприятия;

- организационные мероприятия.

 

 

16.7.1 В соответствии с требованиями СНиП 2.01.02, СНиП 2.04.09, СНиП 2.09.02, НПБ 105 необходимо проектирование и строительство производственных зданий и сооружений, которые с обращающимися в них материалами, веществами и оборудованием, не создавали вредных и опасных условий труда.

Основные показатели мероприятий по пожарной безопасности сведены в таблицы 7-10.

Наименование помещения Огнестойкость строительных конструкций Тип противопожар­ных преград Классифика ция здания по молниеза-щите Группа производства по степени развития пожара Группа веществ и материалов по пожарной опасности
Цех пенобетонных блоков III I III   Негорючие

 

Таблица 7

Характеристика зданий по пожароопасности

Пожарная автоматика

Таблица 8

 

Наименование помещения Система внутреннего пожаротушения Тип пожарной сигнализации Тип пожарного извещателя
Цех пенобетонных блоков спринклерная автоматическая Температурный

 

- 2Ъ~


Первичные средства пожаротушения

 

 

 

Наименование помещений Огнетушители Пожарные щиты Ящики с песком Емкости с водой Кошма, войлок, асбест
ОХВП-10 ОУ-2 ОУ-5 ОУ-8 ОУ-25 ОУ-80 ОУ-400
Цех пенобетонных блоков             Имеются

 

Таблица 9.

16.7.2. Для предотвращения пожара в цехе не допускается без согласия пожарной охраны и получения соответствующего разрешения на проведение каких бы то ни было работ с применением огня и вызывающих искрений, а также сооружений всякого рода временных сгораемых перегородок, пристроек.

Курение в цехе разрешается только в курительных комнатах, кроме этого отведены места для курения в туалетах. На всех участках цеха предусмотрены знаки и плакаты, запрещающие курение вне курильной комнаты.

Организация курения в помещениях и на территории предприятия представлена в таблице 10.


Организация курения на объекте

 

 

 

 

 

Цех Количество работающих Помещения для курения Место для курения
Всего Из них
женщин мужчин мужские, м2 женские, м2
             
Цех           Оборудованы
пенобетонных           уличные
блоков           скамейки

 

Таблица 10.

16.7.3. Организационные мероприятия предусматривают:

1. инструктирование вновь поступающих и постоянных работников по всем видам инструктажей в соответствии с нормами их проведения;

2. обучение по специальностям и специальные программы, и аттестацию всех работников в соответствии с требованиями ГОСТ 12.0.004 и другими нормативными документами;

3. организацию осмотров по пожарной профилактике на объекте;

4. организацию работ по классифицированию объектов по правилам пожарной безопасности;

5. массовую пропаганду.

Инженерно-технические мероприятия направлены на оснащение цеха техническими средствами обнаружения и тушения пожаров в соответствии с требованиями СНиП 2.04.09, СНиП 2.01.02, СНиП 2.09.02, а также на монтаж и эксплуатацию технологического оборудования, инженерных сетей и технических средств пожаротушения в соответствии с требованиями нормативных документов.

Основные направления форм и методов противопожарной пропаганды:

1. устная пропаганда;

2. публикация статей, книг и т.п.;

3. оформление стендов, издание плакатов;


4. демонстрация кинофильмов и т.д.

16.8. Методы и принципы обеспечения безопасности жизнедеятельности В проекте предусмотрены 4 группы мероприятий:

1. обеспечение защиты расстоянием;

2. приведение всех параметров ОПФ и ВПФ к нормативным показателям;

3. выдача СИЗ;

4. комбинация первых трех групп.

16.8.1. Техническая культура предприятия повышается за счет:

1. повышения уровней техники и автоматизации производства, текучести кадров и т.д.;

2. культура труда в цехе повышается за счет: организации рабочих мест и их обслуживания, санитарно-гигиенических условий труда, атмосферы в производственном коллективе и т.д.;

3. личная культура рабочих повышается за счет: уровня технических знаний и производственной квалификации, отношения к труду и в коллективе и т.д.

I


ОХРАНА ОКРУЖАЮЩЕЙ СРЕДЫ

 

 

Длительность процесса любого материального производства связана с окружающей средой. Человек пользуется природными ресурсами в виде сырья, горючего, воды. Функционирование производственного процесса приводит к выпуску продукции и выбросу отходов. Такими отходами могут быть сточные воды, газы, шлаки. В современных условиях ставится задача, прежде всего, развивать безотходное производство с утилизацией и уничтожением отходов, с многоцикличным использованием воды, сокращения до минимума загрязнения воды, воздуха и почвы.

Преимущество представленной технологии состоит из следующего: • улучшение экологической обстановки района достигается, за счет утилизации отходов собственных производств;

Охрана атмосферного воздуха от загрязнения.

Чистота атмосферного воздуха характеризуется предельно допустимой концентрацией различных включений в массе воздуха в мг/м. Соблюдение этих норм обязательно для всех промышленных предприятий. В случае превышения предельной концентрации включений предприятие обязано обеспечить их сбор и рассеивание с устройством уловителей вредных газов и твердых частиц.

При проектировании завода уменьшение загрязнения воздуха достигается путем:

- применения безотходного технологического процесса;

- герметизации транспортных сетей и агрегатов с целью предотвращения

выделения пылевидных частиц.

Охрана водоемов от загрязнения сточными водами.

Возможность естественного самоочищения водоемов очень ограничены, поэтому сброс загрязненных промышленных и бытовых вод в естественные водоемы постепенно приводит к их биологической смерти.


Промышленные и сточные воды подразделяются на загрязненные (непосредственно контактирующие с активными химическими веществами) и на условно чистые (не имеющие в производственном процессе контакта с загрязнителями).

В проектируемом предприятии вода, используемая для промывки технологического оборудования, содержит различные примеси (частицы смазки, химических добавок и др.), подвергается очистке на локальных очистных сооружениях до концентрации, при которых она может снова поступать на технологические нужды для обеспечения бессточного производства.


17.Экономическая часть

 

          Д. 333.0.0..106.0000.П.З
 

Поделиться с друзьями:

mylektsii.su - Мои Лекции - 2015-2026 год. (1.024 сек.)Все материалы представленные на сайте исключительно с целью ознакомления читателями и не преследуют коммерческих целей или нарушение авторских прав Пожаловаться на материал