Студопедия

Главная страница Случайная страница

КАТЕГОРИИ:

АвтомобилиАстрономияБиологияГеографияДом и садДругие языкиДругоеИнформатикаИсторияКультураЛитератураЛогикаМатематикаМедицинаМеталлургияМеханикаОбразованиеОхрана трудаПедагогикаПолитикаПравоПсихологияРелигияРиторикаСоциологияСпортСтроительствоТехнологияТуризмФизикаФилософияФинансыХимияЧерчениеЭкологияЭкономикаЭлектроника






Фундаменти.






Дається опис прийнятих у проекті фундаментів: тип фундаменту (наприклад стрічковий монолітний), метеріал фундаменту, глибина закладення. Виконується ескіз розрізу фундаменту під зовнішню стіну та розріз фундаменту під внутрішню стіну з вказанням всіх розмірів, прив’язок, рівнем ґрунту, глибини закладання.

Якщо фундамент виконан з збірних залізобетонних елементів вказуються технічні характеристики в табличній формі. (див.п.4.3)

 

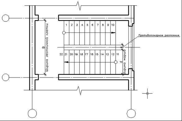
4.5 Розрахунок сходової клітки, її елементи.

1) Викреслюємо фрагмент плану будівлі (сходову клітку) М 1: 50 з встановленням розмірів.

2) Визначаємо по кресленню ширину сходової клітки «В».

Наприклад В=2220мм

Ширіна сходової клітки «В» дорівнює сумарній ширині обох маршів плюс проміжок між ними. Проміжок, який необхідний для пропуску пожежного шланга, має бути не менш 100 мм.

Приймаємо ширину маршу d не менше 1050мм (кратно 50 мм)

В = 2 * d +(100 …150) мм

В = 2*1050+120 =2220 мм

3) Визначаємо довжину горизонтальної проекції маршу «L»

Передбачимо, що висота поверху Н == 3000 мм, ширина маршу 1050 мм, зазор між маршами 120 мм, ухил сходів 1: 2. Для цього ухилу підбирають сходинки розмірами 150х300 мм.

Висоту подступенка приймають рівною 135...180 мм приймаємо h= 150 м

Ширіну проступи - 250... 300 мм. Приймаємо b=300 мм

Ширіну сходових майданчиків приймає не менше ширина маршу і не менше 1200 мм, в будівлях з ліфтами майданчика мають бути шириною не менше 1600 мм.

А) визначаємо висоту маршу.

С= Н/2 (мм) З = 3000/2=1500 мм

По висоті поверху розташовуються 2 марші

Б) визначаємо число подступенков в одному марші

п = 1500: 150 = 10.

Число проступей в одному марші на одиницю менше числа подступенков, оскільки верхня проступь розташовується на рівні майданчика.

В) Визначаємо довжину горизонтальної проекції маршу (його заставляння) рівна:

L == 300*(10-1)= 2700 мм.

4) Визначаємо ширину міжповерхової і поверхової сходових майданчиків по кресленню.

Наприклад А=5610 мм

Ширіну сходових майданчиків приймає не менше ширина маршу і не менше 1200 мм, в будівлях з ліфтами майданчика мають бути шириною не менше 1600 мм. Ширіна проміжною(міжповерховоuj) майданчик може бути менше ширини поверхового сходового майданчика

А = L +fп + f м (мм)

Де: fп -ширина поверхового майданчика (мм)

f м-ширина міжповерхового майданчика (мм)

L - довжина горизонтальної проекції марша L = 2700 мм.

А= 2700+1500+1410 =5610 мм

При заданій довжині сходової клітки 5610 мм ширина міжповерхового майданчика буде 1410 мм, а ширина поверхового - 1500 мм.

Графічне розбиття сходів здійснюється з використанням результатів їх розрахунку, причому одночасно проводиться розбиття маршу в плані і по висоті в розрізі. Для виконання останнього на розрізі розбивається сітка, розміри прямокутників сітки по горизонталі дорівнюють ширині сходинки а, а по вертикалі її висоті h (заздалегідь від стін сходової клітки відкладають по ширині f сходових майданчиків). У сітку вписують сходинки і проводять лінії косоура сходів, не показуючи на кресленні її конструкцію (мал.).

Після цього викреслюють на розрізі сходові марші, сходові майданчики, обводять основними лініями контури перетинів всіх елементів (стін, майданчиків, сходинок), розташованих в площині розрізу. Слід мати на увазі, що площину розрізу по сходах проводять по найближчих до спостерігача маршах

 

Якщо елементи сходів виконані з збірних залізобетонних елементів вказуються технічні характеристики в табличній формі. (див.п.4.3)

4.6 Вікна.

Дається опис прийнятих у проекті віконих блоків: матеріал, тип остеклення, виконуються ескізи вікон з вказуванням габаритних розмірів віконних блоків. Вказується кількість блоків маркам.

4.7 Двері.

Дається опис прийнятих у проекті дверних блоків: матеріал, виконуються ескізи дверей з вказуванням габаритних розмірів дверних блоків. Вказується кількість блоків маркам.

4.8 Підлога.

Вказується види підлог, які прийняті в проекті, в залежності від призначення приміщень. Виконується експлікація підлог в табличній формі.

Експлікація підлог

 

Номер приміщень або найменування   Тип підлог за проектом   ескіз   Найменування конструктивних шарів підлоги і їх товщина   Площа|площа| підлоги|статі| кв.м  
25, 33 (2поверх) I     -Покриття –лінолеум утеплений| -Стягування|стяжка| з|із| цементного розчину М150 - 25 мм -Керамзитобетон -55мм -Ж/б плита - 220мм   22.9  
3, 6, 9, 10, 13, 15, 20 (1поверх) II     -Плитка керамічна на цем|. розчині -20мм -1шар руберойду на бітумній мастиці -Керамзитобетон –80мм -Ущільнений щебенем грунт     72.9

Якщо на першому аркуші графічної частини проекту є вільне місце, то експлікацію підлог можна викреслювати на ньому.

 

Дах.

Дається опис прийнятого у проекті даху: тип конструкції, матеріал покрівлі, пароізоляціі, матеріал і товщину теплоізоляції, тощо. Вказується організація водостоку.

4.10 Інші конструкції.

Дається опис прийнятих у проекті інших конструкцій (балконних плит, плит лоджій: тип конструкції, матеріал. Вказуються технічні характеристики елементів виконаних з збірного залізобетону в табличній формі. (див.п.4.3)

5. Зовнішне та внутрінне оздоблення будинку.

Дається опис прийнятого у проекті внутрішнього оздоблення будинку по приміщеннях, чи групах приміщень (стелі і стіни), та опис завнішнього оздоблення будинку (фасад і цоколь)

6. Специфікація збірних залізобетонних виробів і конструкцій

Специфікація заповнюється згідно вибраних по каталогах збірних

залізобетонних конструкцій

 

Приклад виконання специфікації

 

 

Специфікація збірних залізобетонних виробів і конструкцій

Марка ПОЗ Позначення   Найменування   К-ть   маса ед.  
  Серія 1.141-в6     Серія 1.120.83   Плити покриття ПР 60-| 30   ПК 60-15 ПК 60-12          

7. Інженерне устаткування|обладнання|.

Дається опис прийнятого у проекті інженерне обладнання будинку, яке виписують з паспорту будинку, даного з завданням на ткурсове проектування..

 

Перелік літератури для виконання курсовогопроекту

1. В.П Гетун. Проектування громадських та промислових будівель Київ 2006р

2. Буга П.Г. Гражданские, промышленые и сельскохозяйственные здания Москва

«Высшая школа», 1987

3.СербиновичП.П. Архитектура Москва «Высшая школа», 1970

4.Черкасов Н.А. Архітектура Київ " Будівельник", 1968

5. Красенский В.Е. Гражданские, промышление сельскохозяйственные здания,
Москва, 1972.

6. Русскевич Н.Л. Справочник по инженерно-строительному черчению, Київ, «Будівельник», 1987.

7. ДСТУ БА.2.4-7-95

8. ДСТУ БА 2.4-4-99 - Основні вимоги до проектної та робочої документації.

 

Додаток 1

Додаток 2

 

 

Форма 2 (ГОСТ 21.101-97* )

Рисунок 5

 

 

Форма 2а (ГОСТ 21.101-97

 

Рисунок 6

Форма 3 (ГОСТ 21.101-97 )

 

 


Поделиться с друзьями:

mylektsii.su - Мои Лекции - 2015-2026 год. (0.849 сек.)Все материалы представленные на сайте исключительно с целью ознакомления читателями и не преследуют коммерческих целей или нарушение авторских прав Пожаловаться на материал