Студопедия

Главная страница Случайная страница

КАТЕГОРИИ:

АвтомобилиАстрономияБиологияГеографияДом и садДругие языкиДругоеИнформатикаИсторияКультураЛитератураЛогикаМатематикаМедицинаМеталлургияМеханикаОбразованиеОхрана трудаПедагогикаПолитикаПравоПсихологияРелигияРиторикаСоциологияСпортСтроительствоТехнологияТуризмФизикаФилософияФинансыХимияЧерчениеЭкологияЭкономикаЭлектроника






Основні геометричні параметри






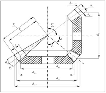
Аналогами початкових і ділильних циліндрів циліндричних передач у конічних передачах є початкові і ділильні конуси з кутами δ 1 і δ 2 (рис. 9.1). При коефіцієнтах зміщення інструмента х1 + х2 = 0 початкові і ділильні конуси збігаються.

 


Зведення прямозубого конічного колеса до еквівалентного прямозубого циліндричного
виконують при розрахунках конічної передачі на міцність. Форма зуба конічного колеса в нормальному перерізі додатковим конусом φ 1 така ж (див. рис. 9.1), як і в циліндричного колеса. Еквівалентне циліндричне колесо одержимо як розгортку додаткового конуса, яка обмежена кутом φ 2. Діаметри еквівалентних коліс:

(9.4)

Виразивши діаметри через число зуб’їв z і модуль m, запишемо:

тобто число зуб’їв еквівалентних коліс можна знайти із формул:

(9.5)

 


Поделиться с друзьями:

mylektsii.su - Мои Лекции - 2015-2026 год. (2.268 сек.)Все материалы представленные на сайте исключительно с целью ознакомления читателями и не преследуют коммерческих целей или нарушение авторских прав Пожаловаться на материал