Студопедия

Главная страница Случайная страница

КАТЕГОРИИ:

АвтомобилиАстрономияБиологияГеографияДом и садДругие языкиДругоеИнформатикаИсторияКультураЛитератураЛогикаМатематикаМедицинаМеталлургияМеханикаОбразованиеОхрана трудаПедагогикаПолитикаПравоПсихологияРелигияРиторикаСоциологияСпортСтроительствоТехнологияТуризмФизикаФилософияФинансыХимияЧерчениеЭкологияЭкономикаЭлектроника






Эстакады, галереи, конвейеры






Эстакады — надземное (надводное) мостовое сооружение из железобетона, стали, дерева, камня, предназначенное для пропуска транспорта (пешеходного движения), прокладки различных коммуникаций, погрузочно-разгрузочных работ. Эстакада состоит из ряда опор и пролетного строения (горизонтального или наклонного). В зависимости от назначения, материала и местных условий применяют балочные, подкосные, рамные, арочные или иные конструкции эстакад.

Пешеходные эстакады часто применяются как переходные мостики над станционными железнодорожными путями или для прохода на пассажирские платформы.

В промышленности также широко применяют различные эстакады (например под трубопроводы) такие эстакады бывают одноярусные и двухъярусные, состоящие из специальных пролетных строений, промежуточных и анкерных опор.

Подкрановые эстакады – это инженерное сооружение, которое состоит из опор, находящихся в горизонтальном пролетном строении. Подкрановые эстакады применяются для обеспечения передвижения кранового устройства. Крановое устройство при этом устанавливается на рельсы для безопасного осуществления грузоперевозки. Подкрановая эстакада устанавливается на земле под основными опорами кранового устройства.

В качестве справочной информации можно использовать следующие документы:

· Пособие к СНиП 2.09.03-85 Проектирование открытых крановых эстакад

· ГОСТ 23235-78 Эстакады одноярусные под технологические трубопроводы. Типы и основные параметры

· ГОСТ 23236-78 Эстакады двухъярусные под технологические трубопроводы. Типы и основные параметры

 

Галерея - надземное или наземное, полностью или частично закрытое, горизонтальное или наклонное протяженное сооружение, соединяющее помещения зданий или сооружений, предназначенное для инженерных и технологических коммуникаций, а также для прохода людей.

В качестве справочной информации можно использовать следующие документы:

· СНиП 2.09.03-85 Сооружения промышленных предприятий

Пример галереи на рис.2:

Рис.2

Ленточные и пластинчатые конвейеры

Ленточный конвейер — транспортирующее устройство непрерывного действия с рабочим органом в виде ленты.

Ленточный конвейер является наиболее распространённым типом транспортирующих машин, он служит для перемещения насыпных или штучных грузов. Применяется на промышленных производствах, в рудниках и шахтах, в сельском хозяйстве. В зависимости от свойств и природы перемещаемого груза угол наклона рабочей стороны ленты может быть установлен до 30°.

Ленточные конвейеры бывают передвижными, переносными, поворотными и стационарными.

Стационарные машины применяют для перемещения большого количества материалов на расстояние от 3 до 3000т м., а передвижные и переносные машины – для перемещения небольшого количества материала на расстояние от 2 до 20м.

Виды ленточных конвейеров:

по типу трассы:

1.Горизонтальные ленточные конвейеры

2.Наклонные ленточные конвейеры

3.Крутонаклонные ленточные конвейера

4.С изменяющимся углом наклона

5.Z-образные ленточные конвейеры

6.L-образные ленточные конвейеры

7.V-образные ленточные конвейеры

по типу несущей поверхности:

1.С прямой гладкой поверхностью ленты

2. Желобчатые ленточные конвейеры и транспортеры

3. С перегородками (поперечинами) на ленте

4. С гофробортом (бортиками) на ленте

5. С модульной лентой модульные конвейеры

В качестве справочной информации можно использовать следующие документы:

1. Конвейеры ленточные наименования частей ГОСТ 25722-83 (СТ СЭВ 1331-78)

2. Конвейеры ленточные. Основные параметры и размеры ГОСТ 22644-77

3. Конвейеры строительные передвижные ленточные ГОСТ 31549-2012

4. Конвейеры ленточные. Роликоопоры. Типы и основные размеры ГОСТ 22645-77

5. Конвейеры ленточные. Ролики. Типы и основные размеры ГОСТ 22646-77.

Пример ленточного конвейера на рис.3

Рис.3

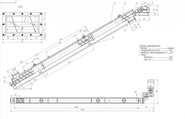
Шнековые конвейеры

Шнековый конвейер, иначе называемый винтовым, предназначен для перемещения материалов сыпучей, пылевидной, порошкообразной консистенции или мелкофракционных материалов (размер фракции не превышает 20 мм). С помощью подобного оборудования осуществляют транспортировку зерна, сахара, муки, песка, извести, цемента, шлама, опилок, металлической стружки, химических материалов и пр. Перемещение производится в трех положениях: горизонтальном, вертикальном и наклонном, с углом наклона до 20°.

Шнековые конвейеры бывают разной длины – от нескольких метров до десятков метров (как правило, горизонтальные до 40 м, а вертикальные до 30м) и имеют различную мощность электродвигателя – от 1, 5 до 55 кВт. Это оборудование пользуется большой популярностью благодаря простоте конструкции и технического обслуживания, габаритным размерам, возможности перемещения материалов в герметичном состоянии, не контактируя с окружающей средой, и удобному процессу промежуточной разгрузки. К минусам относят большое потребление энергии, высокую скорость износа винта и желоба и повышенное истирание транспортируемого материала.

Конструкция шнекового конвейера может различаться в зависимости от модели, но принцип работы одинаковый. Установленный спиральный винт перемещает загруженный материал в результате своего вращения. В действие устройство приводится включением электромотора. Конструкция также оборудована редуктором и приводным валом, отвечающих за передачу тягового усилия. Эффективность процесса транспортировки материалов зависит от конструкции установленного винта (лопастный, ленточный, сплошной или фасонный), его диаметра и переменности шага. Форма винта соответствует типу перемещаемого груза. Направление спирали (лево- или правосторонняя) также влияют на производительность конвейера. Шнеки выдерживают высокие нагрузки и интенсивную работу, но модель конвейера необходимо подбирать исходя из типа транспортируемого материала.

Шнековые конвейеры цилиндрического типа имеют модульную структуру, которая позволяет регулировать длину оборудования. Корпусные модули скрепляются друг с другом за счет промежуточных фланцев, а установка промежуточных опор дает возможность удлинения спирали. Желобовидные конвейеры имеют секционный корпус, длину которого можно наращивать в соответствии с потребностями производства. Комплектуется подобное оборудование промежуточными опорами и муфтами.

 

Пример шнекового конвейера на рис.4

Рис.4

Конвейеры скребковые

Предназначены для транспортирования порошкообразных, зернистых и мелкокусковых с максимальным размером до 15 мм насыпных грузов с температурой до 200°С без принудительного охлаждения или до 450°С при охлаждении конвейера, предусмотренного конструкцией и понижении производительности до 3 раз. Допускается транспортировка груза до 700°С при интенсивном водяном охлаждении конвейера и снижении высоты слоя груза до 30мм В зависимости от температуры транспортируемого груза днища секций могут быть оборудованы ребрами воздушного охлаждения или водяной рубашкой.

Как правило работают в длительном непрерывном режиме. Нереверсивные. Трасса может быть горизонтальной, наклонной до 15°, горизонтально-наклонной с углом подъема 15° для всех типов конвейеров и 30° - только для конвейеров КПС(2М)-500Т и 650Т.

Предназначены для работы в помещениях с нормальным уровнем запыленности. Короба средней части конвейера могут устанавливаться на открытом воздухе.

В качестве справочной информации можно использовать следующие документы:

1. Конвейер скребковый с погружными скребками ГОСТ 23939-79

2. Конвейеры шахтные скребковые передвижные. Общие требования безопасности ГОСТ 27039-86

Пример ленточного конвейера на рис.5:

Рис.5

Подвесные конвейеры

Подвесные конвейеры в основном используются на мясоперерабатывающих предприятиях для перемещения птиц, туш и полутуш КРС. Реже используют для перемещения плодоовощной продукции в таре.Данные транспортеры могут осуществлять перемещение груза по замкнутому контуру пространственной трассы.Основными элементами подвесного конвейера являются подвесные пути в виде двутавровой балки 1, по которой перемещаются каретки 2. Каретка состоит из двух катков и корпуса каретки. Каретки между собой соединены тяговым органом 3. В качестве тягового органа используют цепи, реже тросы.


Поделиться с друзьями:

mylektsii.su - Мои Лекции - 2015-2026 год. (1.584 сек.)Все материалы представленные на сайте исключительно с целью ознакомления читателями и не преследуют коммерческих целей или нарушение авторских прав Пожаловаться на материал