Студопедия

Главная страница Случайная страница

КАТЕГОРИИ:

АвтомобилиАстрономияБиологияГеографияДом и садДругие языкиДругоеИнформатикаИсторияКультураЛитератураЛогикаМатематикаМедицинаМеталлургияМеханикаОбразованиеОхрана трудаПедагогикаПолитикаПравоПсихологияРелигияРиторикаСоциологияСпортСтроительствоТехнологияТуризмФизикаФилософияФинансыХимияЧерчениеЭкологияЭкономикаЭлектроника






Изделия для паркетных покрытий полов






 

В народной архитектуре для покрытия полов в избах служили специально вырубленные тесницы – широкие и массивные, а в городских постройках богатых и знатных людей уже в XVII в. полы отделывались паркетом. Зодчие издавна придавали большое значение устройству полов. В настоящее время промышленность предлагает большое количество материалов для покрытия полов, тем не менее лучшими считаются паркетные полы из натуральной древесины.

Паркетные полы отличаются большим разнообразием: паркетные доски, паркетные щиты, штучный и мозаичный паркет. Они выпускаются в полностью отделанном виде и на стройке их монтируют. Исходным материалом для паркетных планок служит древесина дуба, бука, ясеня, клена и других твердых пород.

 

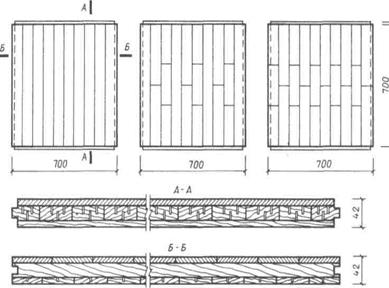
Рис. 12. Паркетная доска:

1 – нижний компенсационный слой шпона; 2 – паз; 3 – несущая доска,

склеенная из брусков; 4 – лицевой слой из твердых пород

Паркетные доски состоят из верхнего лицевого слоя износостойкой древесины, наклеенной на основание реек. Размер досок от 120 до 300 см по длине и от 15 до 20 см по ширине. Лицевая поверхность делается из планок твердолиственных пород (дуба, бука). Она шлифуется и покрывается лаком. Основание изготовляют из неделовой древесины. Паркетные доски изготавливают двухслойными и трехслойными. В двухслойных нижний слой – основание состоит из фрезерованных брусков или досок, лицевое покрытие – верхний слой – из прямоугольных одинаковых планок. Оба слоя между собой прочно склеены водостойкими клеями на основе синтетических смол. В нижнем слое паркетной доски с одной длинной и одной короткой кромками сделан паз, а с противоположных кромок – гребень, с помощью которых доски соединяются между собой.

Трехслойные паркетные доски состоят из верхнего лицевого слоя из строганного шпона толщиной от 3 до 6 мм. Средний слой выполняют, как правило, из сосновых реек толщиной от 5 до 15 мм, шириной до 40 мм. Нижний слой – основание – изготовляют из елового или соснового шпона толщиной 2-2, 5 мм (рис. 12). Все слои склеены между собой водостойким синтетическим клеем. Паркетные доски, как и обычные дощатые полы, укладываются по лагам на деревянных балках или по песчаной засыпке на железобетонных перекрытиях, которая одновременно служит и хорошей звукоизоляцией. Паркетные дощечки и квадры шпона наклеивают на основание в соответствии с заданным рисунком. Паркетные доски после укладки в пол не нуждаются в дальнейшей обработке (циклевании, шлифовке), на них только наносится прозрачное лаковое или другое покрытие.

Паркетные щиты или щитовой паркет. Паркетные щиты различных конструкций и размеров изготавливаются так же, как и паркетные доски. Этот вид паркета, как и выше рассмотренный, не слишком трудоемок при укладке и экономичен. Щиты состоят из лицевого слоя и основания. Лицевой слой делают обычно из узких планок древесины твердолиственных пород, а нередко и из древесных отходов, а основание – из древесины хвойных пород, ДСП и фанеры. Верхнее лицевое покрытие представляет собой паркетные планки одинаковой ширины с прямыми фрезерованными кромками и наклеенные на основание в виде квадратных элементов, расположенных в шахматном порядке. Квадратный элемент представляет собой набор планок, плотно уложенных кромка к кромке (рис. 13). Сторона квадрата принимается равной длине планки.

 

Рис. 13. Паркетные щиты – возможные конструкции и размеры

Мозаичный (наборный) паркет. Паркет мозаичный – одно из наиболее распространенных паркетных покрытий в РФ и за рубежом. Этот тип паркета, благодаря простоте изготовления, индустриальности, экономичности и художественным качествам служит весьма прогрессивным материалом для отделки чистых полов. Он представляет из себя паркетные планки прямоугольной формы, собранные в ковер квадратной формы (40х40 и 60х60 см). Планки набирают в щиток рисунком в виде прямого квадрата с взаимно перпендикулярным расположением квадратов (по направлению волокон древесины).

Мозаичный паркет требует хорошо выровненного основания (стяжки) и планок одинаковой толщины. Он настилается на цементно-песчаной стяжке с помощью водо- и биостойких клеев. Размеры планок позволяют изготовлять их из отходов древесины и тем самым экономить деловую древесину. В эстетическом отношении этот вид паркета позволяет архитекторам разнообразить композиции рисунка пола, увязать его с архитектурой интерьера. Благодаря небольшому размеру планок можно получить большое художественное разнообразие решений, укладывая планки в плетенку, в елку, в шашку, а также используя древесину различных цветовых оттенков [18].

Паркет штучный – наиболее традиционное высококачественное и дорогостоящее покрытие пола. Он состоит из планок прямоугольной формы, на кромках которых имеется паз или гребень для взаимного сопряжения при настиле. Лицевая плоскость планок калибрована так, чтобы при их соединении создавалась гладкая поверхность, которую затем пришлифовывают, циклюют и покрывают специальным паркетным лаком. В зависимости от профиля кромки паркетные планки подразделяют на два вида: с гребнями и пазами на противоположных кромках и торцах (с правыми и левыми сторонами); с гребнем на одной кромке и пазами на другой кромке и торцах. Основанием под чистый пол могут служить деревянные, ксилолитовые, бетонные и другие виды покрытий. К деревянному и ксилолитовому основанию планки крепятся гвоздями, а к другим видам – синтетическими клеями и мастиками. Штучный паркет не отвечает требованиям индустриальности производства, трудоемок в изготовлении и укладке. Кроме того, на него расходуется больше ценных сортов древесины, чем на другие виды паркетных полов. Тем не менее, он включен в номенклатуру, так как применяется в тех районах страны, где не налажен выпуск более прогрессивных видов паркетных покрытий.

Еще одна разновидность паркетного покрытия – художественныйпаркет – нестандартное изделие. Его изготовляют в заводских условиях по специальным чертежам в виде щитов, имеющих квадратную или прямоугольную форму. В качестве основания используют рамку из брусков древесины хвойных пород толщиной 55–65 и шириной 110 мм. Верхний, лицевой слой паркета выполняют из древесины ценных пород, преимущественно лиственных. Наряду с широко применяемыми для изготовления штучного паркета древесными породами используется древесина груши, яблони, вишни, черешни, ореха, можжевельника, кипариса.

Чтобы получить красивый яркий рисунок, используют древесину красного дерева (махагони), черного эбенового дерева, лимонного дерева, розового амаранта и др. Рисунок художественного паркета может быть самым разнообразным: сочетание различных геометрических элементов, розетки, растительный орнамент (рис. 14).

 

 

Рис. 14. Варианты рисунка художественного паркета

 


Поделиться с друзьями:

mylektsii.su - Мои Лекции - 2015-2026 год. (1.207 сек.)Все материалы представленные на сайте исключительно с целью ознакомления читателями и не преследуют коммерческих целей или нарушение авторских прав Пожаловаться на материал