Студопедия

Главная страница Случайная страница

КАТЕГОРИИ:

АвтомобилиАстрономияБиологияГеографияДом и садДругие языкиДругоеИнформатикаИсторияКультураЛитератураЛогикаМатематикаМедицинаМеталлургияМеханикаОбразованиеОхрана трудаПедагогикаПолитикаПравоПсихологияРелигияРиторикаСоциологияСпортСтроительствоТехнологияТуризмФизикаФилософияФинансыХимияЧерчениеЭкологияЭкономикаЭлектроника






Холодный цех. Горячий цех






Холодные цехи организуются на предприятиях с цеховой структурой производства (в ресторанах, столовых, кафе и др.).
На специализированных предприятиях и в хозяйствах небольшой мощности, реализующих небольшой ассортимент холодных закусок, имеющих бесцеховую структуру, для приготовления холодных блюд отводится отдельное рабочее место в общем производственном помещении.
Холодные цехи предназначены для приготовления, порционирования и оформления холодных блюд и закусок. При организации холодного цеха необходимо учитывать его особенности: продукция цеха после изготовления и порционирования не подвергается вторично тепловой обработке, поэтому необходимо строго соблюдать санитарные правила при организации производственного процесса, а поварам - правила личной гигиены; холодные блюда должны изготовляться в таком количестве, которое может быть реализовано в короткий срок. [12]

Учитывая, что в холодном цехе изготовляется продукция из продуктов, прошедших тепловую обработку, и из продуктов без дополнительной обработки, необходимо четко разграничить производство блюд из сырых и вареных овощей, из рыбы и мяса. На небольших предприятиях организуются универсальные рабочие места, на которых последовательно готовят холодные блюда в соответствии с производственной программой, в крупных холодных цехах организуются специализированные рабочие места.

В холодных цехах используется механическое оборудование: универсальные приводы П-II, ПХ-06 со сменными механизмами (для нарезки сырых, вареных овощей; для перемешивания салатов и винегретов, для взбивания муссов, самбуков, сливок, сметаны; для выжимания соков из фруктов); машина для нарезки вареных овощей МРОВ. Эти машины выполняют всевозможные операции: нарезают сырые и вареные овощи, перемешивают салаты и винегреты (когда их готовят в большом количестве), взбивают, протирают, выжимают соки. В небольших цехах эти операции в основном выполняют вручную. Кроме того, в цехе при большом ассортименте гастрономических изделий, бутербродов используют средства малой механизации: машина для нарезки гастрономических изделий МРГУ-370 (для нарезки и укладки в лотки ветчины, колбасы, сыра); хлеборезка МРХ; ручной маслоделитель РДМ. Холодный цех должен быть оснащен достаточным количеством холодного оборудования. Для хранения продуктов и готовых изделий устанавливают холодильные шкафы (ШХ-0, 4, ШХ-0, 8, ШХ-1, 2), производственные столы СОЭСМ-2 с охлаждаемым шкафом, СОЭСМ-3 с охлаждаемым шкафом, горкой и емкостью для салата, низкотемпературны. [13]

Подбор производственных столов зависит от количества работников, одновременно работающих в цехе, из расчета, что фронт работы на каждого работника должен быть не менее 1, 5 м. Промывка овощей, зелени, фруктов производится в стационарных или передвижных ваннах или для этой цели используют секционный модулированный стол со встроенной моечной ванной СМВСМ. В холодных цехах больших столовых применяют передвижные стеллажи для кратковременного хранения блюд перед отправкой их на реализацию. В ресторанах холодный цех имеет раздаточный прилавок. Примерная планировка холодного цеха показана на схеме 1. [14]

Схема 15. План холодного цеха общедоступной столовой:
1 - холодильный шкаф ШХ-0, 8; 2 - холодильный шкаф ШХ-0, 6; 3 - стол производственный СП-1050; 4 - секция-стол с охлаждаемым шкафом и горкой СОЭСМ-3; 5 - низкотемпературный прилавок СН-0, 15; б- секция-стол с охлаждаемым шкафом СОЭСМ-2; 7 - передвижной стеллаж; 8 - моечная ванна ВМ-2СМ на два отделения; 9 - машина МРОВ-160 для нарезки вареных овощей; 10 - маслоделитель ручной РДМ-5

На крупных предприятиях для приготовления мягкого мороженого устанавливают фризер. Для кратковременного хранения и отпуска мороженого промышленного производства используют низкотемпературный прилавок ПХН-1-0, 4 или низкотемпературную секцию СН-0, 15.

Горячий цех занимает в предприятии общественного питания центральное место. В том случае, когда горячий цех обслуживает несколько торговых залов, расположенных на разных этажах, его целесообразно расположить на одном этаже с торговым залом, имеющим наибольшее число посадочных мест.

Горячий цех должен быть оснащен современным оборудованием - тепловым, холодильным, механическим и немеханическим: плитами, жарочными шкафами, пищеварочными котлами, электросковородами, электрофритюрницами, холодильными шкафами, а также производственными столами и стеллажами.

В зависимости от типа и мощности предусматривается применение в горячем цехе механического оборудования (универсальный привод П-II, машина для приготовления картофельного пюре). Оборудование для горячего цеха подбирают по нормам оснащения торгово-технологическим и холодильным оборудованием в соответствии с типом и количеством посадочных мест в предприятии, режимом его работы, максимальной загрузкой торгового зала в часы пик, а также формам обслуживания. Так, в ресторанах, где первые блюда готовят небольшими партиями, меньше требуется стационарных пищеварочных котлов, чем в столовых, имеющих столько же посадочных мест. В горячем цехе для удобства организации процессов приготовления горячих блюд целесообразно использовать секционное модулированное оборудование, которое можно устанавливать островным способом, или организовывать несколько технологических линий -для приготовления бульонов и первых и вторых блюд; гарниров и соусов (схема 2). [15]

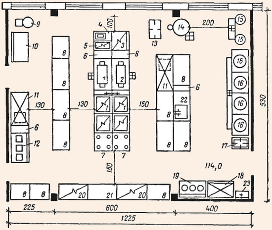
Схема 2 - Примерный план горячего цеха ресторана на 300 мест:
1 - плита электрическая четырехконфорочная ПЭСМ-4Ш; 2 - сковорода электрическая СЭСМ-0, 5; 3 - шкаф жарочный электрический; 4 - фритюрница ФЭСМ-20; 5 - плита электрическая двухконфорочная для непосредственного жаренья; 6 - вставка к тепловому оборудованию; 7-мармит электрический МСЭСМ-50 для соусов; 8 - стол производственный СП-1470; 9 - универсальный привод ПГ-0, 6; 10 - ^тол для установки средств малой механизации; 11 ~ стол охлаждаемый СОЭСМ-2; 12 - печь шашлычная; 13 - стеллаж передвижной; 14 - котел пищеварочный КПЭ-100; 15 - электрокипятильник КРНЭ-100Б; 16 - котел пищеварочный КПЭСМ-60; 17- ванна передвижная ВПГСМ для промывки гарниров; 18 - шкаф холодильный ШХ-0, 4М; 19 - прилавок-мармит для первых блюд; 20 - стойка раздаточная электрическая СРТЭСМ; 21 - стойка раздаточная СРСМ; 22 - стол со встроенной моечной ванной СМВСМ; 23 – раковина

Секционное модулированное оборудование экономит производственную площадь на 5-1%, повышает эффективность использования оборудования, снижает утомляемость работников, повышает их трудоспособность. Секционное модулированное оборудование снабжено индивидуальным вытяжным устройством, удаляющим из цеха вредные газы, образующиеся при жаренье продуктов, что способствует созданию благоприятного микроклимата в цехе и улучшению условий труда. Для рациональной организации рабочего места повара' следует применять также секционные модулированные производственные столы и другое немеханическое оборудование (рисунок 4). [16]

Рисунок 4 - Секционное немеханическое оборудование:
а - стол с охлаждением СОЭСМ-3; б - стол с охлаждением СОЭСМ-2; в - стол с моечной ванной СМИСМ; г - стол для установки средств малой механизации СММСМ; д - секция-вставка ВСМ-210; е - секция-вставка с краном-смесителем ВКСМ; ж - передвижная ванна

Это оборудование может применяться во всех доготовочных цехах[17]:

1) Секция-стол с охлаждаемым шкафом и горкой СОЭСМ-3 применяется для приготовления порционных первых блюд (в ёмкостях горки набор подготовленных необходимых продуктов); этот стол предназначен также для холодных цехов.

2) Секция-стол с охлаждаемым шкафом СОЭСМ-2 служит для оформления блюд, хранения полуфабрикатов, зелени в охлаждаемом шкафу емкостью 0, 28 м3.

3) Секция-стол со встроенной моечной ванной СМВСМ предназначен для доработки полуфабрикатов и зелени.

4) Секция-стол для установки средств малой механизации СММСМ имеет розетки подключенной электроэнергии.

5) Секции-вставки к тепловому оборудованию ВСМ-210 являются подсобными элементами в технологических линиях секционного модулированного оборудования. Длина секции 210 и 420 мм.

6) Секции-вставки к тепловому оборудованию с краном-смесителем ВКСМ устанавливаются в технологических линиях для заполнения водой пищеварочных наплитных котлов.

Ванна передвижная для промывки гарниров ВПГСМ имеет чашу, установленную на тележку.

Суповое отделение. Технологический процесс приготовления первых блюд состоит из двух стадий: приготовления бульона и приготовления супов. В столовых большой мощности, где ассортимент первых блюд небольшой (2-3 наименования), супы готовят большими партиями, поэтому требуется много бульона. На рабочем месте повара, приготовляющие бульоны, устанавливают в линию стационарные котлы - электрические, газовые или паровые. Чаще применяют электрические котлы КПЭ-100, КПЭ-160, КПЭ-250 вместимостью 100, 160, ' 250 л или КЭ-100, КЭ-160 с функциональными емкостями. Варочное устройство УЭВ-40 предназначено для варки заправочных супов, вторых и третьих блюд, гарниров; от котлов отличается тем, что после приготовления пищи варочную емкость отсоединяют от парогенератора и транспортируют на раздачу. Над стационарными котлами целесообразно устанавливать местную вытяжную вентиляцию в виде зонтов, подсоединенную к общей системе вытяжной вентиляции горячего цеха. Это способствует созданию нормального микроклимата цеха. [18]

Горячий цех подразделяется на два специализированных отделения - суповое и соусное. В суповом отделении осуществляется приготовление бульонов и первых блюд, в соусном - приготовление вторых блюд, гарниров, соусов, горячих напитков. Количество поваров в каждом отделении определяется соотношением 1: 2, т. е. в суповом отделении поваров вдвое меньше. В горячих цехах малой мощности такого деления, как правило, нет.

Вывод: Оборудование для горячего цеха подбирают по нормам оснащения торгово-технологическим и холодильным оборудованием в соответствии с типом и количеством посадочных мест в предприятии, режимом его работы, максимальной загрузкой торгового зала в часы пик, а также формам обслуживания. Так, в ресторанах, где первые блюда готовят небольшими партиями, меньше требуется стационарных пищеварочных котлов, чем в столовых, имеющих столько же посадочных мест.

Холодный цех должен быть оснащен достаточным количеством холодного оборудования. Для хранения продуктов и готовых изделий устанавливают холодильные шкафы, производственные столы с охлаждаемым шкафом, горкой и емкостью для салата, низкотемпературный прилавок для хранения и отпуска мороженого. В ресторанах и барах применяют льдогенераторы для получения льда, который используется при приготовлении коктейлей, холодных напитков. Подбор холодильного оборудования зависит от мощности холодного цеха, количества продуктов и готовых изделий, подлежащих хранению.

 

ГЛАВА 3 Охрана труда на раб. Месте 3.1 Инструкция при охране труда при работе на кухне

Считается, что кухня – это сердце ресторана, его основное, функциональное звено, работа которого должна быть слаженной и безупречной.

ИНСТРУКЦИЯ

по охране труда при работе на кухне[19]

1. ОБЩИЕ ТРЕБОВАНИЯ БЕЗОПАСНОСТИ

1. К работе на кухне допускаются лица, прошедшие медицинский осмотр и инструктаж по охране труда. К работам на кухне учащиеся не допускаются.

2. Опасные производственные факторы:

o порезы рук ножом при неаккуратном обращении с ним;

o травмирование пальцев рук при работе с мясорубкой и теркой;

o ожоги горячей жидкостью или паром;

o поражение электрическим током при пользовании электроплитами;

o возгорания при неправильном пользовании газовыми плитами.

3. При выполнении работ на кухне используется специальная одежда: халат хлопчатобумажный или фартук, косынка.

2. ТРЕБОВАНИЯ БЕЗОПАСНОСТИ ПЕРЕД НАЧАЛОМ РАБОТЫ

1. Надеть спецодежду, волосы убрать под косынку, тщательно вымыть руки с мылом.

2. Необходимо проверить исправность и чистоту используемого оборудования, кухонного инвентаря, его маркировку.

3. Проверить целостность эмалированной посуды, отсутствие сколов эмали, трещин и сколов столовой посуды.

4. Убедиться в соответствии нормам охраны труда места работы. Включить вентиляцию.

3. ТРЕБОВАНИЯ БЕЗОПАСНОСТИ ВО ВРЕМЯ РАБОТЫ

1. В ходе работы четко соблюдать требования охраны труда.

2. При пользовании электроплитой убедиться в наличии заземления, исправности шнура питания, вилки, розетки. Электроплитой с открытой спиралью пользоваться запрещено.

3. При пользовании газовой плитой убедиться, что краны горелок и духового шкафа закрыты; открыть кран на газопроводе, затем зажечь спичку, после чего открывать кран горелки. Пламя необходимо регулировать, чтобы оно было равномерным.

4. Для приготовления пищи желательно использовать эмалированную посуду.

5. Соблюдать осторожность при чистке овощей. Картофель чистить желобковым ножом, а рыбу – скребком.

6. Хлеб, гастрономические изделия, овощи и другие продукты нарезать хорошо наточенными ножами на разделочных досках, соблюдая правильные приемы резания: пальцы левой руки должны быть согнуты и находиться на некотором расстоянии от лезвия ножа. Сырые и вареные овощи, мясо, рыбу, хлеб нарезать на разных разделочных досках в соответствии с их маркировкой.

7. При работе с мясорубкой мясо и другие продукты проталкивать в мясорубку не руками, а специальным деревянным пестиком.

8. Соблюдать осторожность при работе с ручными терками, надежно удерживать обрабатываемые продукты, не обрабатывать мелкие части.

9. Передавать ножи и вилки друг другу только ручками вперед.

10. Пищевые отходы для временного их хранения убирать в урну с крышкой

11. Следить, чтобы при закипании содержимое посуды не выливалось через край, крышки горячей посуды брать полотенцем или прихваткой и открывать от себя.

12. Сковороду снимать и ставить на плиту сковородником.

4. ТРЕБОВАНИЯ БЕЗОПАСНОСТИ В АВАРИЙНЫХ СИТУАЦИЯХ

1. При неисправности оборудования и инвентаря прекратить работу и немедленно его заменить.

2. При разливе жидкости, жира немедленно убрать ее с пола.

3. Если разбилась посуда, необходимо с помощью веника и совка убрать осколки.

4. При получении травмы (ранения, отравления, ожога) оказать первую медицинскую помощь пострадавшему, сообщить об этом руководству, при необходимости доставить пострадавшего в ближайшее лечебное учреждение.

5. ТРЕБОВАНИЯ БЕЗОПАСНОСТИ ПО ОКОНЧАНИИ РАБОТЫ

1. Аккуратно выключить плиту.

2. Тщательно вымыть рабочие столы, кухонную посуду и инвентарь.

3. Вынести мусор, отходы и очистки в отведенное место.

4. Проверить чистоту и исправность оборудования, кухонного инвентаря.

5. Снять спецодежду, выключить вентиляцию, вымыть руки с мылом.

Вывод: От этого во многом зависит скорость приготовления блюд и их вкусовые качества, комфортное состояние гостей и сервис, обеспечивающийся обслуживающим персоналом зала. Все эти составляющие в совокупности влияют на общий престиж и статус заведения. Поэтому, на ресторанной кухне поддерживается неукоснительное соблюдение правил охраны труда и техники безопасности, выполнение которых контролирует заведующий производством.

 


Поделиться с друзьями:

mylektsii.su - Мои Лекции - 2015-2026 год. (0.398 сек.)Все материалы представленные на сайте исключительно с целью ознакомления читателями и не преследуют коммерческих целей или нарушение авторских прав Пожаловаться на материал