Студопедия

Главная страница Случайная страница

КАТЕГОРИИ:

АвтомобилиАстрономияБиологияГеографияДом и садДругие языкиДругоеИнформатикаИсторияКультураЛитератураЛогикаМатематикаМедицинаМеталлургияМеханикаОбразованиеОхрана трудаПедагогикаПолитикаПравоПсихологияРелигияРиторикаСоциологияСпортСтроительствоТехнологияТуризмФизикаФилософияФинансыХимияЧерчениеЭкологияЭкономикаЭлектроника






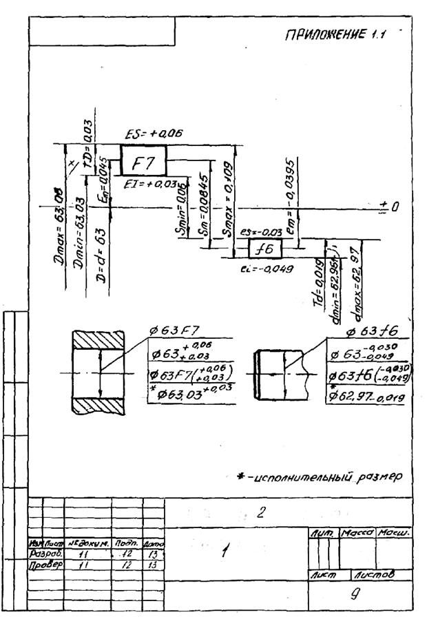
Решение данной задачи методом регулировки






(без снятия материала)

 

В качестве компенсатора возьмем

Допуск на шлифовку следует брать по 6-9 квалитетам.

 

Определим число прокладок:

При увеличении увеличивается число прокладок, что нецелесообразно.

Определим размер ступени (разницу толщин прокладок):

(округлять до двух знаков после запятой).

Примечание: Толщина должна быть .

Наиболее часто используется 2 набора прокладок. Первый состоит из одной постоянной, толщина которой и сменных толщиной .

I набор.

Скорректируем на допуск а так же учитывая допуск (при N=4):

можно брать

Проверка:

Задача считается решенной верно, если для худших условий сборки (прокладки имеют минимальные размеры) выполняется условие:

Условие выполняется.

II набор.

Во втором наборе, т.к. используется только одна прокладка, корректировка на не нужна.

Примечание:

II набор прокладок требует большего расхода металла, но он удобнее при сборке, если очень мала (меньше 0, 1 мм) и прокладка может сминаться.

Примечание:

Подбор прокладок осуществляется следующим образом:

После сборки деталей в корпусе (одна из крышек не установлена) замеряется размер между последней деталью () и торцом корпуса. Замер производится с помощью микрометрического глубиномера.

После установки последней крышки должно выполняться условие откуда При регулировке после расчета подбирается прокладка, при методе пригонки – заготовка компенсатора шлифуется до нужного размера.

СПИСОК ИСПОЛЬЗОВАННОЙ ЛИТЕРАТУРЫ

 

1. Радкевич Я.М. Метрология, стандартизация и сертификация: учеб. для вузов / Я.М. Радкевич, А.Г. Схиртладзе, Б.И.Лактионов – 2-е изд., доп. – М.: Высш. шк. 2006- 800с.

2. Якушев А.И. и др. Взаимозаменяемость, стандартизация и тех­нические измерения, - М.: Машиностроение, 1986. - 352 с.

3. Допуски и посадки. Справочник/Под ред. В.Д.Мягкова. В 2-х ч. – Л.: Машинострое-ние. Ленингр. отд-ние, 1978. - 544 с.

4. Зябрева Н.Н. и др. Пособие к решению задач по курсу " Взаимозаменяемость, стандартизация и технические измерения". - М.: Высш. шк., 1977. -208 с.

5. Исполнительные размеры калибров: Справочник В 2-х кн./ И.А.Медовой, Я.Г.Уманский, Н.М.Журавлев. – М.: Машиностроение, 1980. - 384 с.

6. Подшипники качения: Справочник-каталог /Под ред. В.Н.Нарышкина, Р.В. Короста-шевского. – М.: Машиностроение, 1984. - 280 с.

7. ГОСТ 25346-82 (СТ СЭВ 145-75) ЕСДП СЭВ. Общие положения, ряды допусков и основных отклонений

8. ГОСТ 25347-82 (СТ СЭВ 144-75) ЕСДП СЭВ. Поля допусков и рекомендуемые посадки.

9. ГОСТ 24853-81 (СТ СЭВ 157-75) ЕСДП СЭВ. Калибры гладкие для размеров до 500 мм. Исполнительные размеры.

10. ГОСТ 21041-75. Калибры гладкие для размеров 500мм. Исполнительные размеры.

11. ГОСТ 14807-69 – ГОСТ 14827-69. Конструкции и основные раз­меры.

12. ГОСТ 50285-92 – ГОСТ 50288-92. Калибры-скобы. Размеры.

13. ГОСТ 3255-85 (СТ СЭВ 774-77). Точность размеров, формы и вза­имного располо-жения поверхностей шариковых и роликовых подшип­ников.

14. ГОСТ 16093-81 (СТ СЭВ 640-77). Резьба метрическая. Посадки с зазором для диа-метров от 1 до 600 мм.

15. ГОСТ 4608-81 (СТ СЭВ 306-76). Резьба метрическая. Посадки с натягом

16. ГОСТ 24834-81 (СТ СЭВ 305-76). Резьба метрическая. Переходные посадки.

17. ГОСТ 9150-81 (СТ СЭВ 180-75). Резьба метрическая. Резьбы среднего и внутреннего диаметров метрических резьб.

18. ГОСТ24997-81 (СТ СЭВ 2647-80). Калибры для метрической резьбы.

19. ГОСТ 16319-80. Размерные цепи. Основные термины и опреде­ления.

 

 

Приложение 2

№ варианта Исходные данные
Передаваемая осевая сила А, кН Передаваемый крутящий момент Мкр, Нм Номинальный диаметр сопряжения d, мм Внутренний диаметр вала d1, мм Наружный диаметр втулки d2, мм Длина сопряжения Материал вала Материал втулки Метод соединения втулки и вала Вариант
                   
              Сталь Сталь Сталь Чугун Латунь Сталь Сталь Сталь Чугун Сталь Сталь Сталь Сталь Сталь Чугун Сталь Сталь Латунь Сталь Сталь Сталь Сталь Чугун Латунь Сталь Чугун Сталь Сталь Сталь Чугун Сталь Бронза Сталь Сталь Сталь Сталь Сталь Бронза Сталь Бронза Сталь Сталь Латунь Сталь Сталь Сталь Сталь Сталь Сталь Сталь Латунь Сталь Сталь Сталь Сталь Сталь Сталь Сталь Бронза Сталь 1.2.3 2.3.1 3.1.2 1.3.2 2.1.3 1.3.2 2.1.3 1.2.3 2.3.1 1.2.3 2.3.1 1.2.3 3.1.2 1.3.2 2.1.3 3.2.1 2.3.1 1.2.3 2.1.3 3.1.2 1.3.2 2.1.3 3.2.1 1.2.3 2.1.3 3.1.2 1.2.3 2.3.1 1.3.2 3.1.2

Примечания:

1. В качестве материала “сталь” брать сталь 35 или 45.

2. Метод соединения деталей:

- вариант 1: механическая запрессовка при нормальной температуре без смазки;

- вариант 2: механическая запрессовка при нормальной температуре со смазкой;

- вариант 3: запрессовка нагревом охватывающей детали.

3. В том случае, если стандартная выбранная посадка не обеспечивает эксплуатационный запас прочности, применяют дополнительное крепление: шпонку, винт, штифт. При таком варианте выполнить эскиз крепления, расчет эксплуатационного запаса прочности не производить.

4. В том случае, если сборка деталей производится только со смазкой, независимо от варианта, выбирать соответствующий коэффициент трения.

Приложение 3.3

Основные типы калибров-пробок для контроля отверстий и контрольные калибры к скобкам:

а – пробка двусторонняя со вставками ();

б - пробка двусторонняя со вставками ();

в – пробка проходная (непроходная) со вставками ();

г – штампованная проходная (непроходная) с насадками ();

д – пробка проходная (непроходная) неполная штампованная ();

е – пробка проходная (непроходная) неполная ();

ж – пробка одностороння листовая ();

з – шайба полная ();

и – шайба неполная ()

 

 

* Схему расположения полей допусков выполнять для валов, также как и для корпусов.

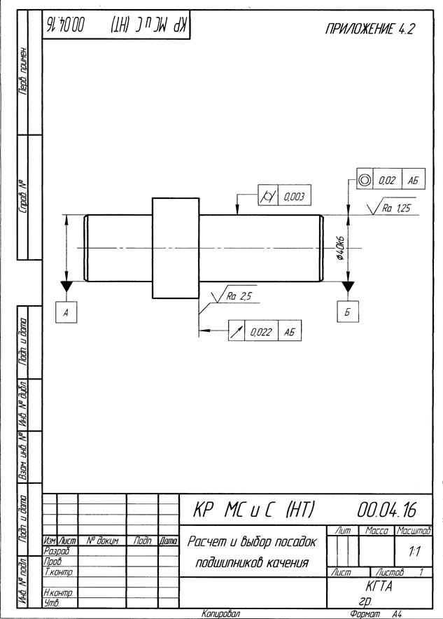
Приложение 4.3

№ варианта   Условное обозначение подшипника Класс точности Нагрузка, кН P-радиальная, A-осевая Вращается: D/Dk или dотв/d Характер нагрузки
Вариант Вариант
           
                     
      P=12 вал 0, 4   0, 6 У У Т
      P=3 вал   0, 2 0, 4 У У У
      P=10 корпус 0, 6 0, 4   У Т У
      P=14 вал 0, 5 0, 75   У У Т
  сдвоенный     P=30, A=15   вал     0, 4   0, 2   У   У   Т
      P=20 корпус 0, 6   0, 7 У Т У
      P=12 корпус   0, 8 0, 4 Т У У
      P=15 вал 0, 7 0, 5   У Т Т
      P=30 вал   0, 6 0, 4 Т У Т
      P=15, A=10 вал 0, 6   0, 4 У Т У
      P=20 корпус   0, 6 0, 4 Т У Т
      P=16, A=4 корпус 0, 5 0, 8   У У Т
      P=12, A=2 вал 0, 7   0, 5 У Т У
      P=30, A=10 вал 0, 6   0, 4 У Т У
      P=10 корпус   0, 6   Т У Т
  сдвоенный     P=20, A=8   вал       0, 4   У   Т   У
      P=5, A=5 корпус 0, 6 0, 8   У У Т
      P=14 вал 0, 7   0, 5 У Т У
      P=12, A=6 корпус   0, 6   Т У У
      P=10 вал 0, 6 0, 75 0, 4 У У У
      P=30 корпус   0, 5 0, 4 Т У У
      P=25, A=5 вал   0, 7   У Т Т
      P=10, A=10 вал 0, 6 0, 4   У У Т
      P=16 корпус   0, 7 0, 5 Т У Т
      P=26 корпус 0, 7 0, 4   У У Т
      P=20, A=8 вал   0, 5 0, 7 Т У У
      P=4 вал 0, 6 0, 75   У У Т
      P=20, A=4 корпус     0, 5 Т У У
      P=10, A=2 корпус 0, 5 0, 8   У У Т
      P=16 вал   0, 4 0, 7 Т Т У
                       

 

 

 

N ва- ри- ан- та Диаметр резьбы, мм Шаг резьбы Посадка
Вариант Вариант
           
               
    1.25 1.5   6H/6g 7G/6h 7H/7h
    1.5   2.5 2H5C/2r 2H5C/3p 2H4C/3n
    1.5     6G/6g 6H/6h 6G/8h
      1.5 1.25 3H6H/2m 4H6H/4j 5H6H/4j
        1.5 7H/7h 2H4C/3n 7G/6g
      1.5 1.25 2H4C/3n 2H5C/3p 2H5D/2r
    0.5 0.7 0.7 5H/4h 6G/6h 6H/6g
        3.5 7G/7g 2H5C/3p 5H6H/4j
      0.75 1.25 4H6H/4j 6H/6g 2H5C/3p
        4.5 7H/7g 7G/6h 7H/7h
    1.25 1.75 1.5 6H/6g 6H/6h 6H/6g
    1.25 1.5   2H4D/3n 3H6H/2m 4H6H/4j
    1.5   2.5 7G/6h 6G/6g 7G/6h
      1.25 1.25 3H6H/2m 4H6H/4j 2H5C/2r
    1.5   2.5 7H/7h 6G/6g 7G/6h
          4H6H/4j 2H4C/3n 2H5C/3p
    0.5 0.8 0.8 7G/6g 5H/4h 6H/6g
    1.5     7H/7e 7G/6d 7H/6d
      1.5 2.5 6H/6g 7H/7h 5H/4h
    1.25   1.5 7G/7g 6H6G/7h 7H/6g
        1.5 2H5C/3p 2H4C/3n 7G/7g
    1.75 1.25 1.5 2H5C/2r 2H5C/3p 2H4C/3n
          6H/6g 7G/7h 7H7G/6h
        4.5 3H6H/2m 7H/7h 4H6H/4j
    1.5 2.5   2H5C/3p 2H4C/3n 2H5C/3p
    0.75   0.5 6H/6e 7H/6g 6G/6h
    0.75 1.25   7G/7g 6H/6h 5H/4h
    1.5 1.25   5H/4h 4H6H/4j 3H6H/2m
      1.5 1.5 7H/7g 2H5C/2r 4H6H/4j
    2.5   1.5 3H6H/2m 7G/7g 7G/7e

 

Приложение 5.2

 

Примечание. Допуски остальных степеней точности определяются умножение допуска степени точности 6 на следующие коэффициенты:

 

Степень точности              
Коэффициент 0.50 0.63 0.80 1.25 1.60 2.00 2.50

 

Основные отклонения h и H равны нулю, остальные отклонения определяются по формулам: для болтов кроме для гаек кроме где верхнее отклонение болтов, мкм; нижнее отклонение гаек, мкм; Р – шаг резьбы, мк.

 

 

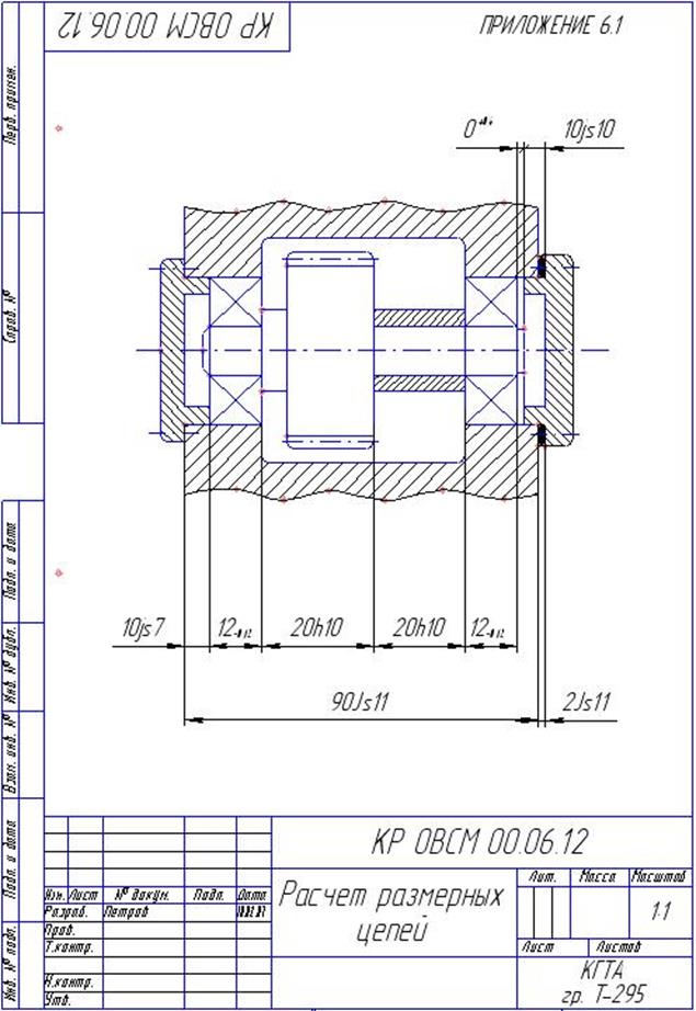
Приложение 6.2

№ ва-ри-ан-та Но-мер уз-ла Номинальные размеры составляющих звеньев, мм Исходное звено За-кон рас-пре-дел. поз. 3 Про-цент бра-ка P. % поз. 4  
вариант поз. 2  
поз. 1 поз. 2 поз. 3 поз. 4 поз. 5 поз. 6 поз. 1  
     
                           
          -           -    
      1.5           1.5        
    X     -     X     -    
                           
      1.5   -       1.5   -    
                           
    X 0.5   -     X 0.5   -    
      2.5           2.5        
      1.5   -       1.5   -    
                           
    X     -     X     -    
                           
      2.5   -       2.5   -    
      2.5           2.5        
    X 1.5   -     X 1.5   -    
      1.5           1.5        
          -           -    
      0.5           0.5        
    X     -     X     -    
                           
      0.5   -       0.5   -    
      2.5           2.5        
    X     -     X     -    
      1.5           1.5        
      1.5   -       1.5   -    
                           
    X 2.5   -     X 2.5   -    
                           
          -           -    
      2.5           2.5        

 

Примечание:

  1. Для подшипников (поз. 3 и поз. 6) верхнее отклонение нижнее -
  2. Коэффициенты, характеризующие степень отличия данного закона распределения от нормального

- При единичном и мелкосерийном производстве (закон равной вероятности )

- При постоянном действии одного(двух) факторов (закон Симпсона; закон «Треугольника» )

- При массовом производстве (нормальный закон )


Поделиться с друзьями:

mylektsii.su - Мои Лекции - 2015-2026 год. (1.625 сек.)Все материалы представленные на сайте исключительно с целью ознакомления читателями и не преследуют коммерческих целей или нарушение авторских прав Пожаловаться на материал