Студопедия

Главная страница Случайная страница

КАТЕГОРИИ:

АвтомобилиАстрономияБиологияГеографияДом и садДругие языкиДругоеИнформатикаИсторияКультураЛитератураЛогикаМатематикаМедицинаМеталлургияМеханикаОбразованиеОхрана трудаПедагогикаПолитикаПравоПсихологияРелигияРиторикаСоциологияСпортСтроительствоТехнологияТуризмФизикаФилософияФинансыХимияЧерчениеЭкологияЭкономикаЭлектроника






Конструирование и расчет базы колонны






База колонны является опорной частью колонны и служит для передачи усилий с колонны на фундамент. Конструкция базы должна соответствовать принятому в расчетной схеме колонны способу сопряжения ее с фундаментом. При расчетном усилии в колонне до 6000 кН принимают базу с траверсами, в колонне с расчетным усилиям 6000 кН и более – базу с фрезерованным торцом колонны.

При шарнирном сопряжении колонны с фундаментом ставят два или четыре анкерных болта диаметром d = 24 мм для фиксации проектного положения колонны. Анкеры в этом случае прикрепляются непосредственно к опорной плите базы. При жестком сопряжении ставят четыре анкерных болта диаметром d = 30…36 мм, которые крепят колонну к фундаменту через выносные консоли и затягиваются с напряжением.

Диаметр отверстий в плите базы принимается в 1, 5…2 раза больше диаметра анкерных болтов. На анкерные болты надеваются шайбы с отверстием, которое на 3 мм больше диаметра болта, и после натяжения болта гайкой шайбу приваривают к базе.

Размеры плиты базы B и L определяются по требуемой площади плиты, при этом из конструктивных соображений длина плиты

L pl > b +2 × (75…120) мм,

а ширина плиты

B pl = h + 2 × (tt r +40…50) мм.

Здесь b и h – соответственно ширина и высота сечения стержня колонны; ttr – толщина листа траверсы; 75 мм – минимальный габарит, равный расстоянию от грани колонны до края плиты, необходимый по конструктивным соображениям для размещения анкерных болтов диаметром d = 24…30 мм.

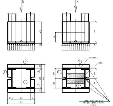
В соответствии с конструкцией базы ее плита может иметь участки, опертые по трем-четырем сторонам, и консольный участок (рис. 17). Толщину плиты следует определять по наибольшему изгибающему моменту из найденных для различных участков плиты. Обычно толщина плиты принимается в пределах 20…40 мм. Если толщина плиты по 1-го участка сильно отличается от толщины плиты 2-го участка (более 40 %), то наиболее напряженный участок плиты следует перекрывать с помощью диафрагм и (или) ребер.

Рис. 17. К расчету базы колонны

 

Пример

Определение размеров опорной плиты

Размер опорной плиты в плане определяется исходя из условия прочности бетона фундамента смятию под плитой:

где где – коэффициент (зависит от отношения площади фундамента к площади плиты). В курсовом проекте можно приближенно принимать = 1, 2; Rb – прочность бетона осевому сжатию. Для бетона класса В12, 5 Rb = 7, 5 МПа.

Назначается минимально возможная длина плиты базы колонны:

Lpl = b + 2 90 мм = 380 + 180 = 560 мм = 0, 56 м.

Тогда ширина плиты:

Принимается плита с размерами в плане 580 ´ 560 мм.

Уточняется значение коэффициента :

Перерасчет плиты не требуется.

Здесь Af = (Bp l + 2 a)× (Lp l + 2 b) = (0, 58 + 2 × 0, 1)× (0, 56 + 2 × 0, 1) = 0, 5928 м2; a = b = 100 мм = 0, 1 м – расстояние от края опорной плиты базы колонны до наружной грани подколонника.

= = м2,

Вычисляется значение равномерно распределенной нагрузки на плиту снизу, равной реактивному давлению фундамента:

Из условия работы опорной плиты базы колонны на изгиб, которая рассматривается как пластина, опертая на торец стержня колонны и траверсы, устанавливаются значения максимальных изгибающих моментов на отдельных расчетных участках.

 

Уч а с т о к 1 (п л и т а, о п е р т а я п о ч е т ы р е м с т о р о н а м)

 

Отношение большей стороны участка (b = 0, 4 м) к меньшей (а = 0, 4 м) равно:

По табл. 5 приложения определяется коэффициент a = 0, 048.

Максимальный момент в плите участка 1 в направлении короткой стороны а= 0, 4 м равен:

Требуемая толщина плиты (коэффициент γ с = 1, 2, п.11 по табл. 6* [3]:

– максимальной толщины стали С245 (табл. 51*[3]). Принимается для плиты сталь С345. При толщине проката 20…40мм Ry = 300 МПа.

 

У ч а с т о к 2 (к о н с о л ь н а я п л и т а)

 

В пластинке, опертой по трем сторонам, изгибающий момент в середине свободного края определяют по формуле:

,

где а – закрепленная сторона отсека; – коэффициент (см. приложение, табл. 6).

Так как отношение закрепленной стороны участка к свободной:

участок 2 рассматривается как консольный:

[6]

Требуемая толщина плиты:

У ч а с т о к 3 (к о н с о л ь н а я п л и т а)

 

Назначается толщина листа траверсы tt r = 12 мм и определяется вылет консольной части плиты:

Требуемая толщина плиты:

Принимается толщина плиты 40 мм (2 мм принимаются на фрезеровку).

 


Поделиться с друзьями:

mylektsii.su - Мои Лекции - 2015-2026 год. (2.461 сек.)Все материалы представленные на сайте исключительно с целью ознакомления читателями и не преследуют коммерческих целей или нарушение авторских прав Пожаловаться на материал