Студопедия

Главная страница Случайная страница

КАТЕГОРИИ:

АвтомобилиАстрономияБиологияГеографияДом и садДругие языкиДругоеИнформатикаИсторияКультураЛитератураЛогикаМатематикаМедицинаМеталлургияМеханикаОбразованиеОхрана трудаПедагогикаПолитикаПравоПсихологияРелигияРиторикаСоциологияСпортСтроительствоТехнологияТуризмФизикаФилософияФинансыХимияЧерчениеЭкологияЭкономикаЭлектроника






Этикетки и основные надписи






 

115


Федеральное агентство по образованию Ухтинский государственный технический университет Кафедра лесных, деревообрабатывающих машин и материаловедения   ДП–02009562–150405–045–06   С.Н. Молокова   Тема: " Проект модернизации технологического оборудования колесной машины" (в двух книгах) Книга 1. Текст дипломного проекта   Ухта 2008

 

Рисунок А1 - Пример оформления этикетки к дипломным проектам (работам)

 

Указания к заполнению этикетки

1) В буквенно-числовой индекс включаются обозначения (через тире):

- наименование работы (ДП – дипломный проект, ДР – дипломная работа);

- код университета (02009562);

- шифр специальности (таблица Б1, приложение Б);

- порядковый номер студента в приказе по университету;

- год выполнения работы.

2) Надписи " в двух книгах" и " Книга 1..." выполняются только для дипломных проектов работ, состоящих из двух книг. Этикетка для второй книги оформляется аналогично, с надписью,

например: Книга 2. Приложения.

 


Федеральное агентство по образованию Ухтинский государственный технический университет Кафедра лесных, деревообрабатывающих машин и материаловедения   КП–150405–41–06   С.Н. Молокова   Тема: " Проект лесотранспортной машины" Текст курсового проекта (работы)   Ухта 2008

 

Рисунок А2 - Пример оформления этикетки к курсовым проектам (работам)

 

Указания к заполнению этикетки

1) В буквенно-числовой индекс включаются обозначения (через тире):

- наименование работы (КП – дипломный проект, КР – дипломная работа);

- шифр специальности;

- шифр кафедры (таблица Б2, приложение Б);

- год выполнения работы.

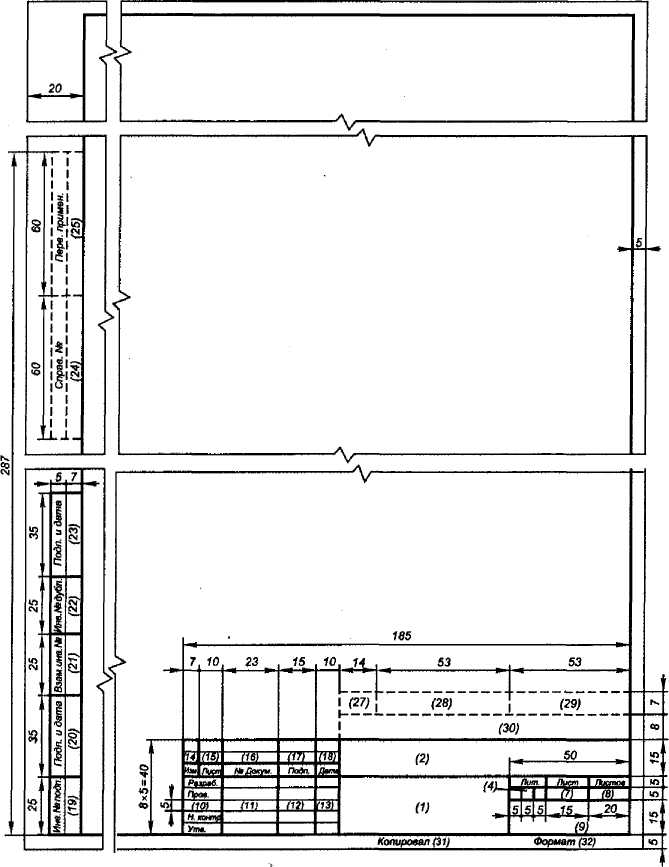
Рисунок А3 - Основная надпись для первых листов разделов основной части (форма 2 по ГОСТ 2.104)
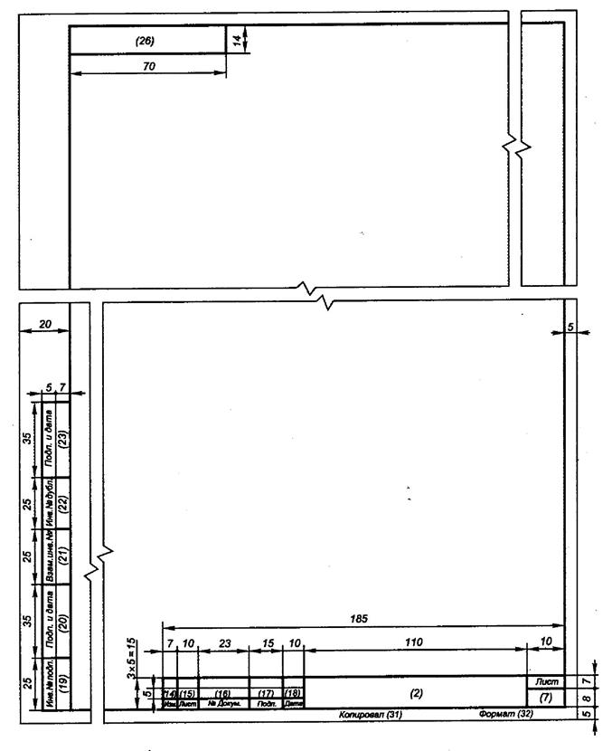
Рисунок А4 - Основная надпись для последующих листов разделов основной части (форма 2 а по ГОСТ 2.104)

Поделиться с друзьями:

mylektsii.su - Мои Лекции - 2015-2026 год. (1.577 сек.)Все материалы представленные на сайте исключительно с целью ознакомления читателями и не преследуют коммерческих целей или нарушение авторских прав Пожаловаться на материал