Студопедия

Главная страница Случайная страница

КАТЕГОРИИ:

АвтомобилиАстрономияБиологияГеографияДом и садДругие языкиДругоеИнформатикаИсторияКультураЛитератураЛогикаМатематикаМедицинаМеталлургияМеханикаОбразованиеОхрана трудаПедагогикаПолитикаПравоПсихологияРелигияРиторикаСоциологияСпортСтроительствоТехнологияТуризмФизикаФилософияФинансыХимияЧерчениеЭкологияЭкономикаЭлектроника






Специальные виды кладки






Отделку кирпичных стен часто выполняют облицовкой, выполняемой одновременно с кладкой. В качестве отделочных материалов используются лицевой кирпич (силикатный, обыкновенный глиняный повышенного качества или с декоративным покрытием), лицевые камни (керамические или природные) закладные бетонные или керамические плиты. Плиты из камня устанавливают с помощью анкеров из нержавеющих материалов на расстоянии 3-5 см от стены. Это пространство заполняют раствором или оставляют незаполненными. При использовании лицевого кирпича кладку ведут как обычно, предпочтительнее многорядная разрезка, так как в этом случае требуется меньше лицевого кирпича.

Кладка перегородок из кирпича, шлакобетонных камней, гипсовых и керамзитобетонных плит. Перегородки из гипсолитовых плит устраивают только в помещениях с нормальной влажностью воздуха, из кирпича и легкобетонных камней – в помещениях с нормальной и повышенной влажностью. Элементы перегородок укладывают на раствор с перевязкой швов.

При кладке перегородок из гипсолитовых плит, как правило, не удается обеспечить ровную поверхность с обеих сторон перегородки, поэтому стремятся выровнять только одну сторону, которая впоследствии не затирается. Все неровности при этом окажутся на другой стороне; их ликвидируют затиркой. При кладке перегородок больших размеров в промышленных зданиях в перегородки встраиваются металлические колонны, обеспечивающие устойчивость перегородок. Все виды перегородок крепятся к стенам и перекрытиям. К стенам - с помощью ершей или гвоздей и проволоки, а перегородки из гипсолитовых плит - путем укладки металлических оцинкованных деталей. Детали крепления перегородок к перекрытиям дают в рабочих чертежах.

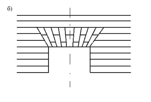
Перемычки, арки, своды, дымовые и вентиляционные каналы, карнизы и др. В настоящее время в качестве перемычек чаще всего используют сборные железобетонные балочки с опиранием 12-15 см, но можно применять и рядовые, клинчатые, лучковые арочные или стрельчатые перемычки из отдельных камней (рис. 7.4), для устройства которых устанавливают специальную опалубку – кружало.

Рядовые перемычки выполняют из отборного кирпича М75

Рис. 7.4 а, б. Перемычки из кирпича:


Поделиться с друзьями:

mylektsii.su - Мои Лекции - 2015-2026 год. (0.476 сек.)Все материалы представленные на сайте исключительно с целью ознакомления читателями и не преследуют коммерческих целей или нарушение авторских прав Пожаловаться на материал