Студопедия

Главная страница Случайная страница

КАТЕГОРИИ:

АвтомобилиАстрономияБиологияГеографияДом и садДругие языкиДругоеИнформатикаИсторияКультураЛитератураЛогикаМатематикаМедицинаМеталлургияМеханикаОбразованиеОхрана трудаПедагогикаПолитикаПравоПсихологияРелигияРиторикаСоциологияСпортСтроительствоТехнологияТуризмФизикаФилософияФинансыХимияЧерчениеЭкологияЭкономикаЭлектроника






Разрезы зданий и сооружений






Разрезы на строительных чертежах служат для выявления объемного и конструктивного решения здания, взаимного расположения отдельных конструкций, помещений и т.п. Разрезы бывают архитектурные и конструктивные.

Архитектурный разрез служит для определения композиционных сторон внутренней архитектуры. Архитектурные разрезы составляют в начальной стадии проектирования, на них не показывают конструкции фундаментов, перекрытий, крыш и т.д. Такие разрезы выполняют для проработки фасада здания.

Конструктивные разрезы входят в рабочие чертежи проекта здания. На этом разрезе показывают конструктивные элементы здания, а также наносят необходимые размеры и отметки.

В учебном задании выполняют архитектурный разрез без показа конструктивных решений элементов здания в целом.

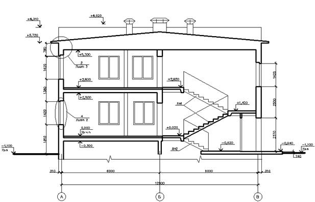
На рис.10 показаны пример выполнения разреза административно – бытового (общественного) здания.

На разрезах наносят и показывают:

а) координационные оси здания (сооружения) и расстояния между соседними и крайними осями, оси у деформационных швов;

б) элементы конструкции здания (сооружения), попавшие в секущую плоскость, выполняемые основными линиями, включая линии (уровня) земли, чистого пола этажей и площадок, лестницы, линии потолка, перекрытий, покрытий, кровли и т.п. (рис.10);

в) элементы конструкции здания (сооружения), находящиеся за секущей плоскостью, выполняемые сплошными тонкими линиями, включая колонны, перегородки, оконные и дверные проемы, лестницы, ниши в стенах и перегородках, дымоходы и т.д. (рис.10). При вычерчивании оконных проемов расстояние от пола до низа оконного проема (подоконника) должно быть 750-800мм;

г) отметки уровня земли, чистого пола этажей и площадок;

д) отметки низа несущих конструкций покрытия одноэтажных зданий (сооружений) и низа плит покрытия верхнего этажа многоэтажных зданий (сооружений);

е) отметку низа опорной части заделываемых в стены элементов конструкций;

ж) отметку верха стен, карнизов, уступов стен, головки рельсов крановых путей;

з) размеры и привязку (по высоте) проемов, отверстий, ниш, гнезд в стенах и перегородках, изображаемых в сечении при помощи вертикальных и горизонтальных размерных линий;

и) толщину стен и их привязку к координационным осям здания или сооружения (при необходимости);

к) марки элементов здания (сооружения), не замаркированных на планах и фасадах (на конструктивных разрезах);

л) ссылку на узлы, а также на чертежи элементов здания или сооружения, замаркированных на разрезах.

м) выполняют надпись, определяющую название разреза. В надписи указывают обозначение соответствующей секущей плоскости (например: «Разрез 1-1») и, если необходимо, указывают масштаб изображения по типу «Разрез 1-1 (1: 50)». Надпись не подчеркивают.

На разрезах здания без подвалов грунт и элементы конструкций, расположенные ниже фундаментных балок и верхней части ленточных фундаментов, не изображают. Тоннели показывают схематично тонкой штриховой линией. Пол на грунте изображают одной основной линией, пол на перекрытии и кровлю – одной сплошной тонкой линией независимо от числа слоев в их конструкции.

Состав и толщину слоев покрытия в конструктивных разрезах указывают в выносной надписи. Если в нескольких разрезах изображены покрытия, не отличающиеся по составу, выносную линию приводят только на одном из разрезов, а в других дают ссылку на разрез, содержащий полную выносную надпись.

 

Разрез 1-1

Рисунок 10 – Пример выполнения разреза здания

 

 

Расчет и изображение лестницы в разрезе и плане

 

Разрез для зданий в два и более этажа выполняют по лестничной клетке, для чего предварительно выполняют расчет и графическую разбивку лестницы.

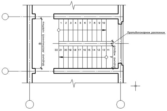
Лестница состоит из лестничных маршей (наклонных элементов со ступенями) и лестничных площадок, устраиваемых на уровне каждого этажа и между этажами, и размещается в помещении, называемом лестничной клеткой (рис.11). Естественно, что между соседними этажами два лестничных марша и одна лестничная площадка (рис.11).

Рисунок 11 – Опирание лестничного марша на межэтажную площадку

 

Основным элементом лестницы является ступень, состоящая из проступи (ширина ступени а) и подступенка (высота ступени h) (рис.12). Ступени опираются на наклонные балки, называемые для каменных или бетонных лестниц косоурами. Для косоуров применяются железобетонные балки 200х300 мм. Следует учесть, что в каждом марше подступенков на один больше, чем проступей, так как одна из них (фризовая ступень) входит в площадку (рис.11).

 

 

Рисунок 12 – Фрагмент лестничного марша

 

Под расчетом лестницы понимают определение числа ступеней (подступенков) п, и их высоты h, ширины а, заложения (длины марша в плане) l и ширины B лестничной клетки (рис.11).

В основе расчета лестницы и ее последующей графической разбивки лежит высота этажа, то есть расстояние от пола этажа до пола следующего этажа, и такие рекомендации: высота ступени должна быть не более 170мм, а ширина – не менее 260мм; ширина марша d – не менее 1200мм, пожарное расстояние между маршами 80…120мм, ширина лестничных площадок t должна быть не менее ширины марша. В одном марше допускается не более 16 и не менее 3 ступеней.

Пусть, например, высота этажа H =3400мм, ширина марша d =1200мм, противопожарное расстояние e =100мм, а высота ступени h =150мм. Определяем число подступенков в двух маршах: n=H/h =3400: 150=22, 66. Так как число подступенков должно быть целым, а для двух маршей еще и четным, принимаем, что n =22. Уточняем высоту ступени: h=H/n =154, 5мм.

Размер проступи а подбирается в зависимости от высоты h по графику или вычисляется из зависимости a+h =450мм. В обоих случаях, а =295, 5мм.

Поскольку в каждом марше число проступей на одну меньше, чем подступенков, то длину (заложение) марша в плане определяют по формуле l=a(n/2-1)= 295, 5(22/2-1)=295, 5x10=2955мм.

Ширина лестничной клетки B=2d+e =2x1200+100=2500мм, а ее минимальная длина L=2t+l =2x1200+2955=5350мм (длина минимальная, так как в примере приняли, что t=d).

Графическая разбивка лестницы осуществляется с использованием результатов ее расчета, причем одновременно проводится разбивка марша на ступени в плане и ступеней по высоте в разрезе. Для выполнения последнего на разрезе разбивается сетка, размеры прямоугольников сетки по горизонтали равны ширине ступени а, а по вертикали ее высоте h (предварительно от стен лестничной клетки откладывают по ширине t лестничных площадок). В сетку вписывают ступени и проводят линии косоура лестницы, не показывая на чертеже ее конструкцию (рис.10).

Площадки бетонных и каменных лестниц на косоурах делают сборными из ребристых железобетонных плит, уложенных по балкам площадок. По плитам кладется слой шлакобетона 40…50мм, а по нему чистый пол. Лестничные марши и площадки ограждают перила высотой 800мм. На разрезе перила вычерчиваются условно в тонких линиях. Они могут иметь самую разнообразную конструкцию. При их вычерчивании следует обратить внимание на то, как заделываются стойки перил, на которых держится поручень.

 


Поделиться с друзьями:

mylektsii.su - Мои Лекции - 2015-2026 год. (0.865 сек.)Все материалы представленные на сайте исключительно с целью ознакомления читателями и не преследуют коммерческих целей или нарушение авторских прав Пожаловаться на материал