Студопедия

Главная страница Случайная страница

КАТЕГОРИИ:

АвтомобилиАстрономияБиологияГеографияДом и садДругие языкиДругоеИнформатикаИсторияКультураЛитератураЛогикаМатематикаМедицинаМеталлургияМеханикаОбразованиеОхрана трудаПедагогикаПолитикаПравоПсихологияРелигияРиторикаСоциологияСпортСтроительствоТехнологияТуризмФизикаФилософияФинансыХимияЧерчениеЭкологияЭкономикаЭлектроника






Создание карнизов






Черчение фасадов

 

Черчение крыши

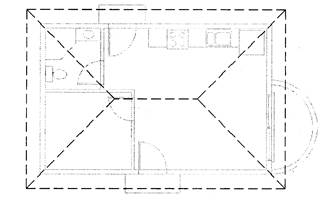
Прежде чем начать чертить контуры крыши, внимательно изучите рисунок 7.1 и обратите внимание на линии, обозначающие различные части крыши:

· четыре линии карнизов, расположенные по периметру зданий и соответствующие самому нижнему краю крыши;

· одна линия конька, соответствующая самой верхней части крыши;

· четыре линии ребер крыши, соединяющие конечные точки линий карнизов с конечными точками линии конька.

Крыша нашего коттеджа называется шатровой, или четырехскатной, так как все панели кровли полого спускаются карнизам в форме шатра. Пересечения панелей образуют ребра крыши. Начнем с карнизов.

Рис.7.1 Поэтажный план с контурами крыши

Создание карнизов

Поскольку укосины крыши выходят за пределы наружных стен на одинаковое расстояние по всем сторонам здания, контуры карнизов можно создать путем смещения линий наружных стен.

1. Активизируйте команду ПОДОБИЕ затем введите 0.45, чтобы задать расстояние смещения. Выберите линию левой наружной стены и, чтобы сместить ее наружу, укажите точку слева от выбранной линии.

2. Повторите описанную процедуру применительно к трем оставшимся стенам. В результате чертеж должен выглядеть так, как это показано на рис. 7.2. для завершения команды ПОДОБИЕ нажмите < ENTER>.

Рис.7.2. С каждой стороны здания смещено по одной линии

3. Активизируйте команду СОПРЯЖЕНИЕ. Убедитесь в том, что радиус сопряжения равен нулю. Если это так, переходите к следующему пункту. В противном случае введите р, нажмите < ENTER>, затем наберите 0, и два раза нажмите < ENTER> для того, чтобы задать значение радиуса и заново запустить команду СОПРЯЖЕНИЕ.

4. Щелкните на любых двух линиях, расположенных на смежных сторонах здания. При этом не забывайте, что щелкнуть нужно на той половине линии, которая находится ближе к предполагаемому углу сопряжения (рис. 7.3, вверху). Линии будут продлены таким образом, чтобы их пересечение образовало угол (рис. 7.3, внизу), После этого команда СОПРЯЖЕНИЕ будет завершена.

Рис. 7.3. Выбор линий для сопряжения углов карнизов (вверху) и результат сопряжения (внизу)

 

5. Нажмите < ENTER> для того, чтобы вновь запустить команду СОПРЯЖЕНИЕ. Выберите следующие две линии, расположенные на смежных сторонах здания.

6. Продолжайте выполнять описанную процедуру до тех пор, пока не будут сопряжены все углы и не будет создан прямоугольник, обозначающий окаймляющие здание карнизы, смещенные на 45 см от наружных стен (рис. 7.4).

 

Рис. 7.4. Линии карнизов после сопряжения

Поскольку линии карнизов являются производными от линий стен, они также находятся на слое Стены. Необходимо перенести их на слой Крыша (этому слою назначьте штриховой тип линии). Затем следует сделать слой Крыша текущим для того, чтобы сразу же расположить на нем линии конька и ребер крыши.

1. Выберите все четыре линии карнизов, а затем откройте список СЛОИ панели инструментов СВОЙСТВА ОБЪЕКТОВ.

2. Выберите слой Крыша. Линии карнизов теперь расположены на слое Крыша.

3. Нажмите дважды клавишу < ESC> для удаления ручек.

Контуры карнизов выведены сплошными линиями, несмотря на то, что слою Крыша назначен штриховой тип линии. Однако линии действительно являются штриховыми, просто штрихи слишком большие и их длина превышает размеры объектов, изображенных соответствующими линиями.


Поделиться с друзьями:

mylektsii.su - Мои Лекции - 2015-2026 год. (0.567 сек.)Все материалы представленные на сайте исключительно с целью ознакомления читателями и не преследуют коммерческих целей или нарушение авторских прав Пожаловаться на материал