Студопедия

Главная страница Случайная страница

КАТЕГОРИИ:

АвтомобилиАстрономияБиологияГеографияДом и садДругие языкиДругоеИнформатикаИсторияКультураЛитератураЛогикаМатематикаМедицинаМеталлургияМеханикаОбразованиеОхрана трудаПедагогикаПолитикаПравоПсихологияРелигияРиторикаСоциологияСпортСтроительствоТехнологияТуризмФизикаФилософияФинансыХимияЧерчениеЭкологияЭкономикаЭлектроника






Черчение конька и ребер крыши






 

Выберите слой Крыша в качестве текущего. Начертите две диагональные линии ребер крыши под углом 45.

Далее необходимо соединить ребра, но в точке их пересечения находится дверь спальни.

1. Заморозьте слой двери.

2. Активизируйте команду СОПРЯЖЕНИЕ. Радиус сопряжения должен быть нулевым. Щелкните на двух диагональных линиях, чтобы соединить их (рис. 7.6, слева). Теперь нужно воспользоваться командой зеркального отображения.

3. Включите режим ОРТО. Активизируйте команду ЗЕРКАЛО. Вам будет предложено выбрать объекты — щелкните на диагональных ребрах крыши и нажмите < ENTER>. Чтобы задать первую точку оси симметрии, щелкните на кнопке СЕРЕДИНА панели инструментов ОБЪЕКТНАЯ ПРИВЯЗКА и переместите перекрестие к середине верхней горизонтальной лини крыши. Когда появится треугольник, обозначающий середину данной линии, щелкните мышью.

4. Переместите указатель в центр гостиной и щелкните там. В ответ на приглашение удалить старые объекты нажмите < ENTER>. В правой части крыши появятся такие же диагональные линии, как и в левой (рис. 7.6, справа). Команда ЗЕРКАЛО автоматически завершится. Теперь нам осталось лишь начертить линию конька.

Рис. 7.6. Первые две линии сопряжены (слева) и отображены вправо (справа)

5. Активизируйте команду ОТРЕЗОК. Режим привязки КОНТОЧКА должен быть включен. Выберите пересечения диагональных линий и нажмите < ENTER>.

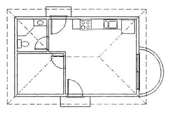
6. Разморозьте слой двери. Чертеж крыши готов (рис. 7.7).

Рис. 7.7. Завершенный чертеж крыши.

Теперь, когда созданы все компоненты плана этажа, можно приступить к вычерчиванию фасадов здания. Под термином “фасад” подразумеваются такой вид здания, при котором взгляд стоящего перед зданием наблюдателя направлен горизонтально. На фасадах показывают расположение окон и двёрей в стенах также иллюстрируют внешний вид здания в целом.

 


Поделиться с друзьями:

mylektsii.su - Мои Лекции - 2015-2026 год. (0.232 сек.)Все материалы представленные на сайте исключительно с целью ознакомления читателями и не преследуют коммерческих целей или нарушение авторских прав Пожаловаться на материал