Студопедия

Главная страница Случайная страница

КАТЕГОРИИ:

АвтомобилиАстрономияБиологияГеографияДом и садДругие языкиДругоеИнформатикаИсторияКультураЛитератураЛогикаМатематикаМедицинаМеталлургияМеханикаОбразованиеОхрана трудаПедагогикаПолитикаПравоПсихологияРелигияРиторикаСоциологияСпортСтроительствоТехнологияТуризмФизикаФилософияФинансыХимияЧерчениеЭкологияЭкономикаЭлектроника






Вставка двери, ступени и окон






Чтобы завершить фронтальный фасад, необходимо вставить дверь, ступени, окна и добавить несколько завершающих штрихов. Контуры двери и окон (за исключением круглого) мы вставим с помощью одной операции. Ступени и порог начертим немного позже.

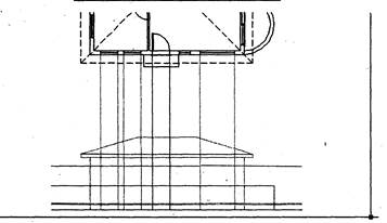
1. Увеличьте масштаб изображения таким образом, чтобы на чертеже отображался весь фронтальный фасад и примерно половина балкона, как показано в левой части рис.8.12.

2. Включите режим ОРТО и с помощью привязок КОНТОЧКА и ПЕРПЕНДИКУЛЯР начертите линию вниз от левого конца крайнего левого окна фасадной стены до линии земли.

3. Щелкните на новой линии, чтобы на ней появились маркеры выделения, и с помощью описанной выше процедуры скопируйте ее к каждому концу каждого окна передней стены (за исключением круглого окна, расположенного справа от двери) и к левому и правому косякам входных дверей.

4. Для завершения команды ПЕРЕНЕСИ введите Х. Для удаления маркеров выделения нажмите дважды < ЕSС> (рис. 8.12, справа).

Рис. 8.12. Примерные размеры окна масштабирования (слева) и линия, опущенная от окна и скопированная для обозначения других объектов (справа)

!!! Прежде чем обрезать все эти линии внимательно рассмотрите план этажа и фасад, попытавшись зрительно представить среди всего этого хаоса пересекающихся линий три окна и дверь. Мы будем последовательно обрезать линии, продвигаясь сверху вниз.

5. Активизируйте команду ОБРЕЖЬ и выберите в качестве секущих горизонтальную линию, соответствующую верхнему краю окон и дверей, а также все линии, опущенные от окон и двери. Нажмите < ENTER>

6. Щелкните на горизонтальной линии в каждом промежутке между окнами и дверью, а также на левом и правом ее конце (пять сегментов). Затем щелкните на каждой из опущенных линий выше уровня окон и двери (восемь сегментов). Всего должно быть удалено 13 сегментов. Затем нажмите < ENTER>. Чертеж должен выглядеть так, как показано на рис. 8.13.

Рис. 8.13. Контуры дверей и окон обрезаны сверху

 

Сместившись вниз, обрежем линии низа окон.

7. Активизируйте команду ОБРЕЖЬ и выберите в качестве секущих:

(а) горизонтальную линию, соответствующую нижнему уровню окон и верху балконной стены;

(б) шесть вертикальных линий, соответствующих сторонам окон;

(в) вертикальную линию, соответствующую правой стене. Нажмите < ENTER>

8. Щелкните на каждом участке горизонтальной линии слева от окон, между окнами, а также между правой стороной окна шириной 1.8 м и правой стеной здания. Затем щелкните на фрагментах вертикальных линий, которые выходят за нижний уровень окон. Всего таких сегментов будет 10. Затем нажмите < ENTER>. Результат выполненной обрезки показан на рис.8.14.

СОВЕТ: Для упрощения задачи можно увеличить масштаб, а затем восстановить его до предыдущего значения.

 

Рис. 8.14. Контуры окон обрезаны снизу

 

Теперь нам нужно начертить ступени, порог, нижнюю часть двери и внутренние контуры балкона.

1. Убедитесь в том, что включен режим ОРТО. Начертите линию, начинающуюся в левом нижнем углу порога на плане этажа и заканчивающуюся немного ниже уровня земли. С помощью маркеров выделения скопируйте эту линию в другую точку порога и в точки, находящиеся в левом и правом углу контура ступеней (рис. 8.15, слева).

2. Увеличьте масштаб изображения, чтобы четко видеть все линии порога и ступеней на фронтальном фасаде. С помощью команды ОБРЕЖЬ обрежьте лишние линии, чтобы получить результат, показанный справа на рис. 8.15. При этом вам придется несколько раз запускать и отменять выполнение команды, поэтому мы лишь вкратце остановимся на последовательности выполняемых операций.

 

Рис. 8.15. Линии, опущенные от поэтажного плана на чертеж фасада (слева) и законченный чертеж с изображением ступеней и порога (справа)

 

· Сначала займитесь ступенями. В качестве секущих выберите две нижние горизонтальные и две внешние вертикальные линии. При отсечении сегментов выбирайте каждую из этих линий (кроме линии уровня земли) в двух местах — выше или ниже либо слева или справа от ступеней.

· Обрежьте две вертикальные линии, которые теперь стали внешними, до уровня верхней горизонтальной линии.

· Перейдите к созданию порога. В качестве секущих выберите все четыре линии, образующие контур порога. При отсечении сегментов выбирайте их в двух местах – выше или ниже либо слева или справа от контура порога.

3. Восстановите предыдущий масштаб просмотра.

 

В результате мы получили почти готовое изображение главного фасада. Для полного его завершения необходимо вставить круглое окно, закончить балкон и сделать несколько финальных штрихов. Поэтому взгляните еще разок на рис. 8.1 и обратите внимание, что центр круглого окна находится на высоте 1.8 м от уровня земли.

1. Сместите линию уровня земли на 1.8 м вверх.

2. Активизируйте команду ЛИНИЯ и щелкните на кнопке ТОЧКА ВСТАВКИ панели инструментов ОБЪЕКТНАЯ ПРИВЯЗКА. Щелкните на поэтажном плане на окне (шириной 0.6м, справа от дверей) для того, чтобы начать линию в точке вставки оконного блока.

В режиме ОРТО проведите вертикально вниз линию до пересечения с созданной в п. 1 линией. При рисовании окружности щелкните на пересечении этих двух линий и в качестве значения радиуса укажите задайте значение 0.30 м.

3. Активизируйте команду ОБРЕЖЬ и выберите окружность в качестве секущей, а затем на жмите < ENTER>.

4. Щелкните на пересекающихся линиях в четырех местах за пределами окружности. На этом черчение круглого окна будет закончено (рис. 8.16)

Рис. 8.16. Начерченное круглое окно

 

6. С помощью команды ПОКАЖИ РАМКУ увеличьте масштаб просмотра главного фасада.

7. Сместите вертикальную линию правой стены балкона на 15 см влево. После этого сместите линию земли вверх на 30 см. Эти линии будут представлять невидимые внутренние контуры пола и стены балкона.

8. С помощью команды СОПРЯГИ сопрягите линию внутренней стены с линией пола балкона нулевым радиусом. После этого обрежьте линию пола балкона с помощью соответствующей линии стены.

9. Выберите две новые линии и щелкните на кнопке СВОЙСТВА.

10. В диалоговом окне СВОЙСТВА щелкните на свойстве ТИП ЛИНИИ, затем из списка выберите тип линии DASHED. Закройте диалоговое окно СВОЙСТВА и дважды нажмите < ЕSС>. Линии станут штриховыми, так как они соответствуют невидимым объектам фасада (рис. 8.17).

11. Выполните команду ПОКАЖИ ВСЁ и сохраните чертеж под именем ФАСАД1.

 

Рис. 8.17. Завершенный чертеж балкона.

 


Поделиться с друзьями:

mylektsii.su - Мои Лекции - 2015-2026 год. (1.758 сек.)Все материалы представленные на сайте исключительно с целью ознакомления читателями и не преследуют коммерческих целей или нарушение авторских прав Пожаловаться на материал