Студопедия

Главная страница Случайная страница

КАТЕГОРИИ:

АвтомобилиАстрономияБиологияГеографияДом и садДругие языкиДругоеИнформатикаИсторияКультураЛитератураЛогикаМатематикаМедицинаМеталлургияМеханикаОбразованиеОхрана трудаПедагогикаПолитикаПравоПсихологияРелигияРиторикаСоциологияСпортСтроительствоТехнологияТуризмФизикаФилософияФинансыХимияЧерчениеЭкологияЭкономикаЭлектроника






Золотниковые гидрораспределители






Запорно-регулирующим элементом золотниковых гидрораспределителей является цилиндрический золотник 1, который в зависимости от числа каналов (подводов) 3 в корпусе 2 может иметь один, два и более поясков (рис.5.15, а). На схемах гидрораспределители обозначают в виде подвижного элемента, на котором указываются линии связи, проходы и элементы управления. Рабочую позицию подвижного элемента изображают квадратом (прямоугольником), число позиций соответствует числу квадратов (рис.5.1, б).

Рис.5.15. Схема (а) и обозначение (б) гидрораспределителя

Рассмотрим принцип работы распределителя (рис.5.16). В первой (исходной) позиции все линии А, В, Р и Т, подходящие к распределителю разобщены, т.е. перекрыты (рис.5.16, а). При смещении золотника влево распределитель переходит во вторую позицию, в которой попарно соединены линии Р и А, В и Т (рис. 5.16, б). При смещении золотника вправо - в третью, где соединяются линии Р и В, А и Т (рис. 5.16, в). Такой распределитель часто называют реверсивным, так как он используется для остановки и изменения направления движения исполнительных органов.

Рис. 5.16. Схема работы золотникового гидрораспределителя

В зависимости от числа подводов (линий, ходов) распределители могут быть двухходовые (двухлинейные); трехходовые (трехлинейные), четырех- и многоходовые. В соответствии с этим в обозначениях гидрораспределителей первая цифра говорит о числе подводов. Например, из обозначения гидрораспределителя " 4/2" можно понять, что он имеет 4 подвода, т.е. он четырехходовой (четырехлинейный).

Вторая цифра в обозначении говорит о числе позиций. То же обозначение распределителя " 4/2" говорит, что у него две позиции.

Примеры обозначения распределителей приведены на рис.5.17.

 

Рис.5.17. Примеры обозначения типов распределителей

Управление положением золотника распределителя может быть нескольких типов.

 

Важным параметром гидрораспределителя является усилие, необходимое для управления запорно-распределительным устройством. В машиностроении в основном применяются гидрораспределители золотникового или крано­вого типа. Клапанные гидрораспределители, несмотря на их простоту и надежность, применяются редко, так как для управления ими требуются значительные усилия.

На рис. 5.18 показана схема гидрораспределителя типа Г74-1, предназначенного для реверсирования движения рабочих органов станков или других машин с помощью ручного управления. При среднем фиксированном положении обе полости гидродвигателя А и Б и напорная линия соединены с баком. В левом или правом фиксированном положении одна из полостей отсекается от напорной линии и соединяется со сливом, а другая отсекается от слива и соединяется с напорной линией. Габаритные и присоединительные размеры зависят от типоразмера распределителя.

Переключение позиций распределителя осуществляется рукояткой 1, которая при помощи серьги 2 шарнирно присоединяется к золотнику 10. С корпусом 6 рукоятка шарнирно соединена с ушком 11. Для фиксации каждого положения золотника служит шариковый фиксатор 9, помещенный в задней крышке 8. Утечки жидкости по золотнику со стороны передней крышки 3 исключаются манжетным уплотнением. Рабочая жидкость подводится к отверстию 5, а отводится через отверстие 4. Канал 7 дренажный, служит для отвода утечек.

На рис.5.19 изображен гидрораспределитель с электрогидравлическим управлением и его условное обозначение. Он состоит из основного гидрораспределителя 2 с гидравлическим управлением и вспомогательного гидрораспределителя 1 с электромагнитным управлением. Основной гидрораспределитель управляет потоком рабочей жидкости гидросистемы, а вспомогательный регулирует поток управления. Такие гидрораспределители применяют в гидроприводах с дистанционным и автоматическим управлением при больших расходах и высоком давлении в гидросистеме, когда применение гидрораспределителей с электромагнитным управлением невозможно.

Рис. 5.18. Гидрораспределитель с ручным управлением

 

Модификацией гидрораспределителя Г74-1 является гидрораспределитель типа БГ74-1, отличающийся системой фиксации золотника в характерных позициях.

Гидрораспределители работают на минеральных маслах вязкостью 10 — 60 мм2/с при температуре до 50 °С. Технические данные гидрораспределителей типа Г74-1 приведены в табл. 5.

 

Табл. 5. Технические характеристики распределителей Г74-1

Параметр Типоразмер
Г74-12 Г74-13 Г74-14 Г74-16
Номинальный расход, л/с 0, 3 0, 6 1, 2 2, 40
Номинальное давление, МПа 0, 3 – 8
Потери давления при номинальном расходе, МПа 0, 2
Утечки через зазоры при номинальном давлении, л/с 0, 0004 0, 0009

Рис. 5.19. Двухступенчатый гидрораспределитель с электрогидравлическим управлением

 

Если распределитель управляет большими расходами рабочей жидкости, для уменьшения величины управляющего воздействия применяют двухступен­чатые распределители, в которых перемещение золотника основного распреде­лителя происходит под действием потока рабочей жидкости, направляемого вспомогательным распределителем. Перемещение же запорно-регулирующего элемента вспомогательного распределителя, требующее минимального усилия, может осуществляться любым способом.

На рис. 5.20 приведена схема трехпозиционного двухступенчатого распре­делителя типа МН с электрогидравлическим управлением. Золотник 3 основного распределителя перемещается под действием потока рабочей жидкости, направляемой к нему золотником 1 вспомогательного распределителя, управ­ляемого электромагнитами 2. Гидрораспределитель предназначен для реверси­рования движения мощных прессов и других машин с большим расходом ра­бочей жидкости. Он работает на минеральных маслах вязкостью 10—50 мм2/с (10—50 сСт) при температуре до 50 °С. Технические данные гидрораспредели­теля типа МН приведены в табл. 6.

 

 

Табл. 6. Технические характеристики распределителей МН

Параметр Типоразмер
10МН 12МН 20МН 25МН 32МН 40МН 50МН
Номинальный расход, л/с 0, 26 0, 4 1, 05 1, 7 2, 7 4, 2 6, 7
Утечки через зазоры, л/с 0, 0003 0, 005 0, 007 0, 009 0, 01
Потери давления при номинальном расходе, МПа Не более 0, 4
Время срабатывания, с 0, 01 – 2 0, 25 – 2 0, 3 – 3 0, 4 – 3 0, 5 – 4
Тяговое усилие магнита, Н Не более 12

 

Примечание. Рабочее давление до 32 МПа; давление управления от 10 до 16 МПа.

 

 

Рис.5.21. Гидрораспределитель с электрогидравлическим управлением

 

При проектировании гидравлических систем расчет распределителей с цилиндрическим золотником проводится по трем основным направлениям:

1) определение конструктивных размеров, обеспечивающих заданный расход;

2) определение усилий управления;

3) расчет потерь давления в гидрораспределителе.

 

Размер проходных сечений определяется расходом и заданной скоростью рабочей жидкости.

 

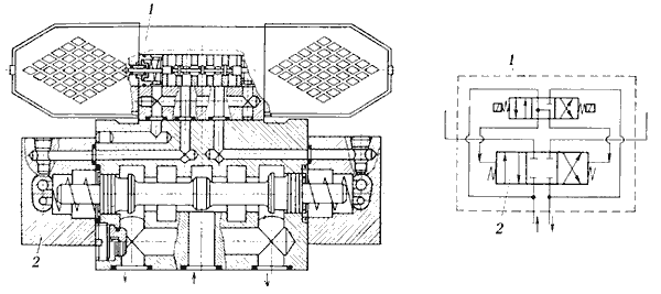
В зависимости от числа золотников гидрораспределители подразделяют на распределители с одним и несколькими золотниками. В последнем случае распределители могут быть моноблочными или секционными. Секции распределителя соединяют между собой болтами. На рис.5.6 представлен моноблочный гидрораспределитель.

Рис.5.22. Общий вид (а) и продольный разрез (б) моноблочного
четырехзолотникового гидрораспределителя

 

Золотники гидрораспределителя могут выполняться в трех исполнениях (рис.5.7).

Золотники с положительным осевым перекрытием (рис.5.7, а) имеют ширину поясков b больше, чем ширину проточки c или диаметр рабочих окон в корпусе. При нейтральном положении золотника такого гидрорапределителя напорная гидролиния отделена от линий, соединяющих полости гидродвигателя и слива. Величина перекрытия П = (b - c) / 2 зависит от диаметра золотника: при d = 10…12 мм перекрытие принимают равным 1…2 мм; при d до 25 мм - 3…5 мм; при d до 50 мм - 6…8 мм. Золотники с положительным осевым перекрытием позволяют фиксировать положение исполнительного механизма. Недостатком является наличие у них зоны нечувствительности, определяемой величиной осевого перекрытия: в пределах этой зоны при перемещении золотника расход жидкости через гидрораспределитель равен нулю, а исполнительный механизм не движется, несмотря на подаваемый к золотнику сигнал управления.

Рис.5.23. Конструктивные исполнения золотников

Золотники с нулевым осевым перекрытием (рис.5.7, б) имеют ширину пояска b равную ширине проточки c или диаметру рабочих окон, а осевое перекрытие П = 0. Такие золотники не имеют зоны нечувствительности и наилучшим образом удовлетворяют требованиям следящих гидросистем. Однако изготовление таких золотников связано со значительными технологическими трудностями.

Золотники с отрицательным осевым перекрытием (рис.5.7, в), у которых b < c; при нейтральном положении их напорная гидролиния соединена со сливом и с обеими полостями гидродвигателя. При этом жидкость через зазоры непрерывно поступает на слив, а в обеих полостях гидродвигателя устанавливается одинаковое давление. В гидрораспределителях с таким золотником зона нечувствительности сводится к минимуму, но из-за слива рабочей жидкости часть мощности теряется. Кроме этого, гидросистема с таким золотником будет иметь меньшую жесткость, так как из-за перетекания жидкости через начальные зазоры в золотнике будет переходить смещение исполнительного механизма при изменении преодолеваемой нагрузки.


Поделиться с друзьями:

mylektsii.su - Мои Лекции - 2015-2026 год. (1.155 сек.)Все материалы представленные на сайте исключительно с целью ознакомления читателями и не преследуют коммерческих целей или нарушение авторских прав Пожаловаться на материал