Студопедия

Главная страница Случайная страница

КАТЕГОРИИ:

АвтомобилиАстрономияБиологияГеографияДом и садДругие языкиДругоеИнформатикаИсторияКультураЛитератураЛогикаМатематикаМедицинаМеталлургияМеханикаОбразованиеОхрана трудаПедагогикаПолитикаПравоПсихологияРелигияРиторикаСоциологияСпортСтроительствоТехнологияТуризмФизикаФилософияФинансыХимияЧерчениеЭкологияЭкономикаЭлектроника






Расчет производственных участков






Площади производственных участков РММ определяются по удельной площади, приходящейся на одного производственного рабочего из числа одновременно работающих на участке по формуле

 

, (8.17)

 

где f1 – удельная площадь на первого рабочего;

fА– удельная площадь на каждого следующего рабочего;

P – число рабочих на участке в наибольшей смене.

Например для агрегатного участка:

м2

Таблица 8.8 – Площади производственных участков

Наименование отделений Удельная площадь, м2 Число рабочих Площадь
для первого рабочего f1 для следующих рабочих fΔ
         
Агрегатное        
Электротехническое        
Топливной аппаратуры        
Аккумуляторное        
Шиномонтажное        
Вулканизационное        
Кузнечно-рессорное        
Сварочное        
Медницко-радиаторное        
Слесарно-механические        
Кабино-арматурное        
Жестяницкое        
Обойное        
Столярное        
Малярное        
итого        

 

 

Площадь производственного корпуса определяется по формуле:

 

Fпр.быт= (FСК+Fпр+FАДМ.БЫТ+FУЧ)·kПР, (8.18)

 

где FСК – площади складов, находящиеся в корпусе(запасных частей и инструмента);

kПР – коэффициент проходов и проездов. kПР =1, 2.

Fпр.быт=(91, 5+704+313+235, 3)·1, 2=1612, 5 м2.


Компоновка производственного корпуса и построение генплана

 

Планировка производственного корпуса должна учитывать технологические связи производственных участков, зон и складов, а также противопожарные и санитарные нормы.

Здание производственного корпуса выполняется многопролетным. Ширина пролетов 9, 12, 18 м, реже 24 м. Шаг колонн 6 м или 12 м. Высота здания до нижнего пояса ферм при ширине пролета до 12 м и использовании кран-балок, управляемых с пола 5, 4 м или 6, 8 м, при ширине пролета 18 м будет равна 7, 2 м; при использовании мостовых кранов и пролете 18-24 м будет равна 8, 4 м.

Типовые ворота (ширина´ высота) 3, 0´ 3, 0; 3, 6´ 3, 6; 3, 6´ 4, 2.

Ширина проездов 3, 5-4 м. Ширина проходов 1, 0-1, 5 м. Санитарными нормами предусмотрено не менее 4, 5 м2 площади и не менее 15 м3 объема на одного работающего в производственных помещениях; в административно-хозяйственных помещениях - 3, 25 м2.

Площадь производственного корпуса с учетом зон ТО и ремонта, производственных участков, административных, бытовых помещений и складов запасных частей и инструментов составит: Fпрк = 2102, 5 м2.

Определим длину корпуса, число и ширину пролетов и шаг колонн.

Принимаем 1 пролет 12 и 1 пролет 18 метров тогда ширина корпуса составит Bпрк=30 м.

 

Lпрк=Fпрк/Bпрк=1612, 5/30=53, 75 м. (9.1)

 

Принимаем шаг колонн 6 и 12 метров, дополнительно предусматриваем колонны для подкрановых путей, площадь корпуса составит: Fпрк = 1620 м2.

 

Производственный корпус РММ состоит, как правило, из трех основных зон: диагностирования, технического обслуживания и ремонтов.

В зоне диагностирования определяется техническое состояние машин и устанавливается объем работ по ТО и ремонту, а также выполняется заключительный контроль показателей после ТО и ремонта.

Зона ТО состоит из универсальных или специализированных постов, где выполняются контрольно-регулировочные и смазочные работы.

Зона ремонта включает: специализированные или универсальные посты, где производится замена неисправных агрегатов и сборочных единиц; участки по ремонту агрегатов и сборочных единиц; специализированные производственные отделения: кузнечно-рессорный, термический, сварочный, медницко-радиаторный, механический, малярный, обойный, жестяницкий, мойки и очистки деталей и других работ.

Количество постов и участков, а также оборудования рассчитывается по объемам выполняемых работ.

 

 

 

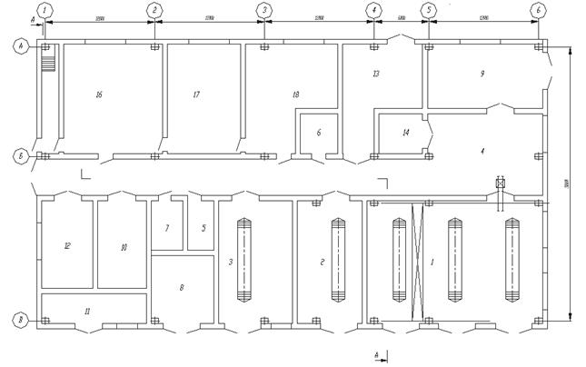
Рисунок 9.1 – План производственного корпуса

 

При планировке производственного корпуса участки, опасные в пожарном отношении: кузнечный, сварочный, термический, медницкий, малярный, обойный и столярный, - изолируют от остальных помещений огнестойкими стенами и перекрытиями.

Посты, на которых обслуживание машин производится снизу, должны обеспечиваться смотровыми канавами тупикового или проездного типа.

Посты наружной мойки машин оборудуют эстакадами с устройством очистки сточных вод.

При разработке генплана необходимо разместить на отведенном земельном участке все здания, сооружения и службы в такой последовательности, чтобы: обеспечить кратчайшие пути перемещения машин, отсутствие встречных потоков, соблюдение противопожарных норм, а также розу ветров, определяющую направление преобладающих ветров.

Оценка эффективности использования площади земельного участка производится по коэффициенту застройки:

 

, (9.2)

где Fзд - площадь зданий и крытых сооружений (навесов);

Fу - площадь участка, обычно k3 = 0, 3...0, 35.

 

Площадь зданий и крытых сооружений определяется по формуле:

 

Fзд = Fпр.быт + Fст.п + Fсклад

где Fпр.быт – площадь производственно-бытовых и административных помещений со складом запасных частей;

Fст.с – площадь стоянок машин для сезонного использования;

Fст.п – площадь стоянок для подвижного состава;

Fсклад – площадь под складские помещения.

Fзд = 1620 + 1412, 25+ 497, 15 = 3529, 4 м2

 

Площадь участка определяется по формуле:

 

Fуч = Fзд*Kоз*Kпр,

где Kоз – коэффициент озеленения, принимается равным 1, 2;

Kпр – Коэффициент проездов, принимается 3..5;

 

Fуч = 3529, 4*1, 2*4 = 1691, 12 м2, принимаем Fуч =17000 м2.

Тогда коэффициент застройки будет равен:

 

Кзд = 3529, 4/17000» 0, 2

Всю территорию свободную от зданий, сооружений, площадок, стоянок и проездов озеленяют и благоустраивают. Под зеленые насаждения отводится не менее 20% площади участка.

Оценка эффективности использования площади земельного участка производится так же по коэффициенту использования площади kи

 

, (9.3)

 

где F– площадь открытых площадок складов и стоянок.

Обычно kи = 0, 45 – 0, 50.

 

 

 

Рисунок 9.2 – План базы механизации



Поделиться с друзьями:

mylektsii.su - Мои Лекции - 2015-2026 год. (0.881 сек.)Все материалы представленные на сайте исключительно с целью ознакомления читателями и не преследуют коммерческих целей или нарушение авторских прав Пожаловаться на материал