Студопедия

Главная страница Случайная страница

КАТЕГОРИИ:

АвтомобилиАстрономияБиологияГеографияДом и садДругие языкиДругоеИнформатикаИсторияКультураЛитератураЛогикаМатематикаМедицинаМеталлургияМеханикаОбразованиеОхрана трудаПедагогикаПолитикаПравоПсихологияРелигияРиторикаСоциологияСпортСтроительствоТехнологияТуризмФизикаФилософияФинансыХимияЧерчениеЭкологияЭкономикаЭлектроника






Виды горизонтальной разметки и её назначение.






 

Дорожная разметка выступает маркировкой автомобильных дорог, направленной на информирование участников дорожного движения.

Ее изобретателем считается Э.Н.Хайнз (1870—1938), член дорожной комиссии Wayne County в штате Мичиган США.

Он в 1911 году предложил нанести на первую бетонную дорогу мира, Woodward Avenue в Детройте, центральную линию для разделения полос движения.

10 лет спустя (1921) в английском городке Sutton Coldfield, пригороде Бирмингема, появилась первая маркировка на дорогах Великобритании. Этот эксперимент для повышения безопасности на дорогах был таким успешным, что впоследствии белая маркировка дорог стала стандартом в Великобритании и множестве других государств.

За свою историю развития дорожная разметка претерпела существенные изменения не только в разнообразии её видом, значении наносимых линий на проезжую часть, элементы дорожных сооружений, но и применяемых материалов и их цвета.

В первой половине 20 века дорожная разметка представляла собой линии, назначение которых сводилось к делению лишь транспортных потоков.

С учетом роста автомобильного парка, развития дорожной инфраструктуры арсенал дорожной разметки постепенно пополняется линиями и надписями, которые наносится как в горизонтальной, так вертикальной плоскости сечения дороги.

Дальнейшее совершенствование оптимальных методов и способов организации дорожного движения привели к необходимости к классификации применяемой разметки.

В целях систематизации применяемой дорожной разметки она была поделена на несколько типов.

Первая группа объединила линии продольной разметкой, которая обеспечивала разделение транспортных потоков на противоположных направлениях, а также для обозначения границ полосы движения. В эту группу вошли сплошные, прерывистые, комбинированные (две линии – сплошная и прерывистая), двойные сплошные и двойные прерывистые линии.

Вторая группа была представлена поперечной разметкой, в которую включены линии, наносимые поперек проезжей части в виде сплошных и прерывистых, а также «зебра» (пешеходный переход).

С появлением необходимости выделения отдельных элементов дорожных сооружений, ограждающих и направляющих устройств, возникла потребность их выделения в створе дороги. На таких сооружениях стали наносить чередующиеся белые и черные полосы. В последствие это привело к иной классификации дорожной разметки. Была выделена горизонтальная разметка, объединившая продольную и поперечную разметку и новая группа – вертикальная разметка.

За свою историю дорожная разметка имела три цвета: желтый, черный и белый. Данная цветовая схема используется на дорогах в связи с необходимостью достижения контраста.

В принципе можно использовать любой цвет для маркировки. Но из-за нужного контраста к дорожному покрытию не все цвета одинаково пригодны.

Посредством длительных экспериментов на различных по цветовой гамме дорожных покрытий выбор пал в разных странах на цвета, которые по своей палитре одинаково контрастируют с материалом дорожной одежды в условиях светлого времени и ночного периода суток, на участках дорог с искусственным освещением и в отсутствии его.

 


В Германии в 1930-х годах использовали даже черную разметку на автобанах[1] для повышения контраста к светлому бетонному покрытию.

Применение конкретного цвета для дорожной разметки позволило не только обеспечивать видимость линий, но и способствовало с помощью цвета определить статус разметки – как постоянная или временная.

Для постоянной разметки в большинстве стран используют белый цвет краски или применяют соответствующие пластиковые материалы.

Временная разметка используется при ведении строительных работах непосредственно на проезжей части или в непосредственной близости к ней, когда требуется изменить ранее существующую схему организации движения транспортных потоков.

Применяемый цвет временной разметки в ряде стран разный от жёлтого (Германия, Украина), оранжевого (Россия) до красного (Австрия, Швейцария) позволяющий указать на то, что постоянная разметка временно недействительна.

Наличие разметки на проезжей части в определенной степени отражается на эмоциональной напряженности водителя, что позво­ляет влиять на выбираемую им ско­рость и траекторию движения. Это связано со стремлением водителя поддерживать информационную нагруз­ку на уровне, позволяющим обеспечивать безопасное движение. Отклонение от этого уровня, вызванное, в частности, появлением на дороге разметки, заставляет во­дителя изменять скорость движения, поло­жение автомобиля на проезжей части, инициировать другие действия вплоть до полной остановки, обеспечивая при этом надлежащую безопасность.

 

 

Дорожная разметка является составной частью общей схемы организации движения транспортных и пешеходных потоков, поэтому при нанесении горизонтальной разметки на проезжую часть требуется соблюдать ее соответствие уста­новленных на дороге знакам, светофорам и другим техническим средствам регулирования.

 

Разметкой называются линии, надписи, и другие обозначения на проезжей части и элементах дорожных сооружений, устанавли­вающие порядок или информирующие водителей и пешеходов об условиях движения.

В настоящее время к гори­зонтальной относятся продольная, поперечная и другие виды раз­метки (островки, надписи, указательные стрелы и т. п.), наносимые на дорожное покрытие. Горизонтальная разметка, как правило, при­меняется на дорогах с усовершенствованными покрытиями, имею­щих проезжую часть шириной 6 метров и более при интенсивности движе­ния 1000 и более единиц транспортных средств в сутки.

Дорожная разметка является одним из простых и действенных средств регулирования движения. Ее применение способствует повышению пропускной способности до­роги и улучшению видимости проезжей части и придорожной обстановки, особенно в темное время суток.

Это свойство разметки используется при нанесении прерывистых продольных линий, получивших широкое рас­пространение в практике организа­ции движения.

По данным специаль­ных исследований, большая часть водителей на дорогах с прерывистой разметкой выбирает такую скорость, при которой частота мельканий штрихов и разрывов не превышает 3 Гц.

В связи с этим важной характе­ристикой прерывистой линии являет­ся отношение длин штриха и разры­ва, а также их общая длина. Наи­большее влияние на режим движения оказывает разметка с соотношением 1: 1 и наименьшее 1: 3. Уменьшение общей длины штриха и разрыва ведет к снижению скорости.

При общей длине штриха и разрыва 14—18 м и их соотношении 1: 3 скорость движения мало отличается от скорости, ха­рактерной для дорог, где разметка отсутствует.

Таким образом, на опасных участках в целях снижения скорости увеличивают частоту мелькания как за счет общей длины штриха и разрыва, так и за счет их соотношения. При этом целесообразной является организация переходных участков, обеспечивающих плав­ное изменение частоты мелькания. В этом отношении важным ме­роприятием является применение линии приближения, наносимой между прерывистой и сплошной линиями продольной разметки.

Сплошная осевая линия наносится на участках, где запрещается выезд на полосу встречного движения (например, в случаях ограни­ченной видимости). Это повышает безопасность движения, однако вызывает некоторое снижение скорости и пропускной способности дороги. Кроме того, как и любое ограничение, сплошная линия, находящаяся рядом с водителем, способствует развитию его утомле­ния. Поэтому разделение транспортных потоков противоположных направлений с помощью сплошной линии разметки должно быть в каждом случае оправдано. Особое значение это приобретает на до­рогах с узкой проезжей частью (шириной 6–6, 5 м), когда водители вынуждены двигаться у края дороги, заезжая порой на обочину, что не всегда является безопасным.

Сплошная линия, нанесенная у края проезжей части, особенно эффективна в темное время суток, так как позволяет водителю лучше ориентироваться и уменьшает вероятность съезда автомобиля с дороги. Вместе с тем в условиях узкой проезжей части она так же способствует снижению скорости. Учитывая это обстоятельство, нередко обе линии (сплошные краевую и осевую) применяют на отдельных участках дорог в целях выравнивания скоростей, так как их влияние сказывается, прежде всего, на быстро движущейся части транспортного потока.

Для горизонтальной разметки в нашей стране принят белый цвет, что обеспечивает её наилучшую видимость в различных дорожных условиях. Исключение составляют линии, связанные с ограничением остановки и стоянки транспортных средств, для которых применяется краска желтого цвета.

Цвет дорожной разметки, а также ее форма и размеры, принятые в нашей стране, соответствуют рекомендациям Конвенции о дорож­ных знаках и сигналах.

Каждому виду разметки в соответствии с государственным стандартом присвоен номер, первая цифра которого обозначает группу, к которой принад­лежит разметка (1 – горизонтальная, 2 – вертикальная), вторая цифра (или число) – порядковый номер разметки в группе, третья – разновидность разметки. В последующем тексте (в целях сокраще­ния) названия отдельных видов разметки в некоторых случаях заменены их номерами.

Виды горизонтальной разметки установлены ГОСТ Р 51256 - 99. «Технические средства организации дорожного движения. Разметка дорожная. Типы и основные параметры. Общие технические требования».

Названный стандарт предусматривает 25 видов горизонтальной разметки позволяющих в сочетании с другими средствами регулирования информировать участников движения об особенностях организации движения транспортных и пешеходных потоков на соответствующих участках дорог и улиц.

Горизонтальная разметка может быть постоянной или временной. Функции временной дорожной разметки ограничиваются продолжительностью дорожных работ или иных событий, потребовавших ее введения.

Постоянная разметка имеет белый цвет, кроме линий 1.4, 1.10 и 1.17 желтого цвета, а временная разметка – оранжевый цвет.

Для обеспечения видимости дорожной разметки и в зависимости от мест её применения наносимые линии имеют свои геометрические параметры, позволяющие адекватно вписываться в элементы автомобильных дорог с учетом их технических характеристик. Непосредственно параметры линий – их длина, ширина, расстояния между штрихами, размеры надписей на проезжей части содержаться в соответствующем разделе государственного стандарта.

Рассмотрим более подробно виды и назначение горизонтальной разметки применяемой в дорожном движении.

Разметка 1.1 представляет собой сплошную линию и предназначена для разделения транспортных потоков противоположных направлений. Кроме того, такой линей разметки обозначаются полосы для движения в опасных местах на многополосных дорогах, границы участков проезжей части, на которые въезд запрещен и обозначаются границы стояночных мест транспортных средств. Линию 1.1 пересекать запрещается.

Разметка 1.2.1 также представляет собою сплошную линию, но параметры по ширине превышают разметку 1.1 на 5 сантиметров. С помощью разметки 1.2.1 обозначается край проезжей части (краевая линия). Разметка наносится на расстоянии 0, 1-0, 2 метра от кромки проезжей части как со стороны обочины, так и со стороны разделительной полосы. Линию 1.2.1 пересекать запрещается. Однако, в местах где разрешена остановка или стоянка на обочине допускается её пересекать для остановки транспортного средства и при выезде с нее.

Разметка 1.2.2 (прерывистая линия, у которой длина штрихов в 2 раза короче промежутков между ними) – обозначает край проезжей части на двухполосных дорогах. Линию 1.2.2 пересекать разрешается с любой стороны.

Разметка 1.3 (двойная сплошная) применяется для разделения транспортных потоков противоположных направлений в качестве осевой линии на участках дорог, имеющих четыре и более полос движения в обоих направлениях, включая переходно-скоростные и дополнительные полосы. Линию 1.3 пересекать запрещается.

Разметка 1.4 в виде желтой сплошной линии применяют на участках дорог, где запрещена остановка транспортных средств. Применяется самостоятельной или в сочетании со знаком 3.27 «Остановка запрещена» и при этом зона действия знака определяется длиной линии разметки.

Разметка наносится на расстоянии 0, 1-0, 2 метра от кромки проезжей части или по верху бордюра, при наличии краевой линии 1.2.1 – вместо неё.

Разметка 1.5 пунктирная линия с длинной штриха к интервалу в соотношении 1: 3 применяется для разделения транспортных потоков противоположных направлений (осевая линия) на дорогах, имеющих две полосы движения в обоих направлениях и для обозначения границ полос движения при их числе две или более для одного направления. Линию 1.5 пересекать разрешается с любой стороны.

 

Пример применения горизонтальной дорожной разметки

Разметка 1.6 (линия приближения). Представляет собой прерывистую линию, у которой длина штрихов в 3 раза превышает промежутки между ними – предупреждает о приближении к разметке 1.1 или 1.11 , которая разделяет транспортные потоки противоположных или попутных направлений. Разметку 1.6 наносят на расстоянии не менее 50 (100) м перед разметкой 1.1 или 1.11.

Линию 1.6 пересекать разрешается с любой стороны.

Разметка 1.7 наносится в виде прерывистой линии с короткими штрихами и равными им промежутками. Применяется для обозначения границ полос движения в пределах перекрестка в случаях, когда необходимо показать траекторию движения транспортных средств или обозначить границы полосы движения, Линию 1.7 пересекать разрешается с любой стороны.

Разметка 1.8 прерывистая линия с шириной штриха 0, 4 метра на автомагистралях и 0, 2 метра – на других дорогах, и при соотношении штриха к интервалу 1: 3. Применяется для обозначения границ между полосой разгона или торможения и основной полосой проезжей части (на перекрестках, пересечениях дорог на разных уровнях, в зоне автобусных остановок и тому подобное).

Линию 1.8 пересекать разрешается с любой стороны.

 

Разметка 1.9 двойная прерывистая линия при соотношении штриха и интервала 3: 1. Обозначает границы полос движения, на которых осуществляется реверсивное регулирование. Разделяет транспортные потоки противоположных направлений (при выключенных реверсивных светофорах) на дорогах, где осуществляется реверсивное регулирование.

Линию 1.9 при отсутствии реверсивных светофоров или когда они отключены, разрешается пересекать, если она расположена справа от водителя.

При включенных реверсивных светофорах - с любой стороны, если она разделяет полосы, по которым движение разрешено в одном направлении.

При отключении реверсивных светофоров водитель должен немедленно перестроиться вправо за линию разметки 1.9.

Линию 1.9, разделяющую транспортные потоки противоположных направлений, при выключенных реверсивных светофорах пересекать запрещается.

Примеры нанесения разметки 1.9

Разметка 1.10 желтая прерывистая линия с равной длиной штриха и интервалом применяется самостоятельно или в сочетании со знаком 3.28 «Стоянка запрещена» и наносится от края проезжей части на расстоянии 0, 1-0, 2 метра или по верху бордюра. При наличии краевой линии разметки – вместо нее. Зона действия знака 3.28 определяется длиной нанесенной разметки 1.10.

Разметка 1.11 комбинированный (барьерная линия) вид разметки с применением одновременно сплошной и пунктирной линий, интервал которой равен 3: 1. Применяют для разделения транспортных потоков противоположных или попутных направлений при необходимости запрещения перестроения транспортных средств. А также обозначаются места, предназначенные для разворота, въезда и выезда со стояночных площадок и тому подобного, где движение разрешено только в одну сторону.

Линию 1.11 разрешается пересекать со стороны прерывистой, а также со стороны сплошной, но только при завершении обгона или объезда.

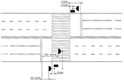
Разметка 1.12 (стоп-линия) шириной не менее 0, 4 метра наносится под прямым углом к оси полосы движения по все ширине проезжей части данного направления или на каждой полосе. Указывает место, где водитель должен остановиться при наличии знака 2.5 «Движение без остановки запрещено», при запрещающем сигнале светофора (регулировщика), перед железнодорожным переездом.

Разметку 1.12 наносят перед перекрестком при наличии знака 2.5 на расстоянии не более 1 метра от границы пересекающей проезжей части.

При наличии транспортных светофоров расположенных на проезжей частью стоп-линия наносится на расстоянии 10-20 метра от светофора и 3-5 метра – при расположении сбоку от проезжей части для обеспечения видимости их сигналов. В зависимости от конфигурации пересечения допускается уменьшение указанные расстояния соответственно до 5 и 1 метра при наличии дублирующих светофоров любых исполнений.

При наличии обозначенного пешеходного перехода разметку наносят на расстоянии не менее 1 метра перед переходом.

Разметку 1.12 наносят на расстоянии 1-3 метра до светофора с одноцветной сигнализацией бело-лунного цвета, используемого для регулирования движения маршрутных автобусов или троллейбусов, движущихся по специально выделенной полосе.

На железнодорожных переездах разметку 1.12 наносят на расстоянии 5 м от шлагбаума или светофора, а при их отсутствии - на расстоянии 10 м от ближнего рельса в одном створе со знаком 2.5.

 

Пример нанесения разметки 1.12 на подъезде к железнодорожному переезду

 

Разметка 1.13 линия из треугольников наносится под прямым углом к оси полосы движения по всей ширине проезжей части данного направления движения или на каждой полосе движения. Разметку 1.13 применяют для обозначения места остановки транспортных средств, при наличии знака 2.4 «Уступите дорогу» и наносят как можно ближе к границе пересекаемой проезжей части.

 

Пример нанесения разметки 1.13

 

Разметка 1.14.1 и 1.14.2 («зебра») применяется для обозначения мест, выделенных для пересечения проезжей части пешеходами. Чередующиеся белые полосы должны быть по ширине не менее 0, 4 метра, а интервалы между ними 0, 6 метра. Стрелы разметки 1.14.2 указывают направление движения пешеходов.

Ширину размечаемого пешеходного перехода определяют по интенсивности пешеходного движения из расчета 1 метр на каждые 500 пеш./ч, но не менее 4 метров.

Разметку 1.14.1 применяют на пешеходных переходах, ширина которых не превышает 6 метров. При ширине пешеходного перехода более 6 метров применяют разметку 1.14.2.

Линии разметки 1.14.1 и 1.14.2 наносят параллельно оси проезжей части.

 

 

Пример нанесения разметки 1.14.1

 

 

 

Пример нанесения разметки 1.14.2

 

Разметка 1.15. применяется для обозначения мест, выделенных для пересечения проезжей части велосипедистами. Представляет собой 2 пунктирные линии, удаленные друг от друга на расстоянии не менее 1.8 метра и должны быть равны ширине велосипедной дорожки. Размер штриха разметки составляет 0, 4 на 0, 4 метра при интервале – равной длине штриха.

 

 

Пример применения разметки 1.15

 

Разметка 1.16.1 , 1.16.2 , 1.16.3 – применяют для обозначения направляющих островков:

1.16.1 – в местах разделения потоков транспортных средств противоположных направлений;

1.16.2 – в местах разделения потоков транспортных средств одного направления;

1.16.3 – в местах слияния потоков транспортных средств.

На островках, имеющих большую площадь, разметку 1.16.1-1.16.3 выполняется на концевых участках островка и на расстоянии 1, 0 м от его границы. При небольшой площади островка допускается окраска всей его поверхности.

Разметку 1.16.1 допускается применять для обозначения островков безопасности на пешеходных переходах. Ширина островка безопасности в этом случае должна быть не менее 1, 5 м, а его длина должна быть равна ширине перехода. Расстояние между краем проезжей части и границей островка должно быть не менее 7, 0 м.


 

Пример нанесения разметки 1.16.1 – 1.16.3

 

Разметка 1.17 (зигзагообразная желтая линия) – обозначает остановки маршрутных транспортных средств и стоянки легковых такси.

Протяженность разметки определяют с учетом числа одновременно останавливающихся или стоящих транспортных средств, но не менее длины посадочной площадки. Конфигурация линии по ширине не должна превышать 2 метров.

Разметка 1.18 – указывает разрешенные на перекрестке направления движения по полосам. Применяется самостоятельно или в сочетании со знаками 5.15.1 «Направления движения по полосам», 5.15.2 «Направления движения по полосе». На полосе, которая предназначена для конкретного направления движения, последовательно наносятся две (три) или более соответствующих стрел с расстоянием между ними от 20 до 30 метров. Это необходимо для информирования водителя и позволяющее ему занять соответствующую полосу для дальнейшего движения через перекресток. Разметка, разрешающая поворот налево из крайней левой полосы, разрешает и разворот. Разметка с изображением тупика наносится для указания того, что поворот на ближайшую проезжую часть запрещен;

 

Пример нанесения разметки 1.18

Разметка 1.19 – применяется для предупреждения о приближении к сужению проезжей части (участку, где уменьшается количество полос движения в данном направлении). В этом случае разметка может применяться со знаками 1.20.1 , 1.20.2 , 1.20.3 «Сужение дороги».

Применение разметки 1.19 в сочетании с разметкой 1.6 – о приближении к разметке 1.1 или 1.11, разделяющей потоки транспортных средств противоположных направлений, при ограниченной видимости встречного автомобиля. При этом последовательно наносятся две (три) или более стрел с расстояниями между ними 15, 30, 45 метров и т.д. (30, 60, 90 метров и т.д.).

 

 

Пример нанесения разметки 1.19

Разметка 1.20 – применяется для предупреждения о приближении к разметке 1.13 на дорогах с интенсивностью движения более 3000 авт./сут. и наносится на каждой полосе движения.

Расстояние между основанием треугольника разметки 1.20 и разметкой 1.13 составляет от 2 до 10 метров (от 10 до 25 метров).

 


Поделиться с друзьями:

mylektsii.su - Мои Лекции - 2015-2026 год. (1.202 сек.)Все материалы представленные на сайте исключительно с целью ознакомления читателями и не преследуют коммерческих целей или нарушение авторских прав Пожаловаться на материал