Студопедия

Главная страница Случайная страница

КАТЕГОРИИ:

АвтомобилиАстрономияБиологияГеографияДом и садДругие языкиДругоеИнформатикаИсторияКультураЛитератураЛогикаМатематикаМедицинаМеталлургияМеханикаОбразованиеОхрана трудаПедагогикаПолитикаПравоПсихологияРелигияРиторикаСоциологияСпортСтроительствоТехнологияТуризмФизикаФилософияФинансыХимияЧерчениеЭкологияЭкономикаЭлектроника






Спецификации






Общий вид и спецификации гидравлического узла

9.3.1.1 DAIKIN

Максимальное рабочее давление D. H. 35 кгс/см2
Производительность насоса 21/24 л/мин. (50/60 Гц)
Вязкость 20 - 88 cSt
Используемое масло ISO VG32 (R& O)
Источник питания 3-ф.200/220В AC 50/60 Гц

< Общий вид>


< Название основных узлов >

 

No. Название узла К-во Тип примечание
  Масляный бак   39 L DAI KIN
  Всасывающий сетчатый фильтр   DHA-06-150 HIYOSHI
  Канал подачи масла и спуска воздуха   FA-35 TAISEI
  Уровнемер   KLA 805A KYOWA
  Насосный агрегат   M15A1Y-2-50 DAI KIN

< Принципиальная схема >

Выше уровня масла
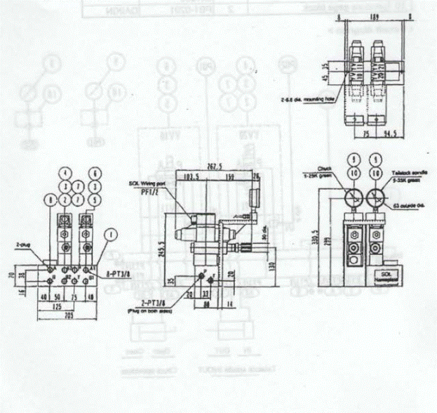
9.3.2 Общий вид и спецификации клапанного узла патрона

MT-52

< Спецификации >

 

Максимальное рабочее давление D. H. 35 кгс/см2
Вязкость 20 - 88 cst
Используемое масло ISO VG32 (R& O)
Источник питания 1-ф. 100/110 VAC 50/60 Гц

< Общий вид>


< Названия основных узлов>

 

No. Название узла К-во Тип примечание
  Коллектор   MF1 DAI KIN
  Крепежный блок   CH-SB DAIKIN
  Редукционный клапан канала   MGB-02P-03-50-T-30 DAfKIN
  Электромагнитный клапан канала   KSO-G02-2CA-10 DAIKIN
  Запорный клапан канала   MC-02P-05-50 DAIKIN
  Электромагнитный клапан     DAIKIN
  Дроссель   J02-C26(2.6dia.) DAIKIN
  Блокирующий блок   P-BS 02 DAIKIN
  Манометр   SPA1/4PTx60x7 0x1000 TOYO KEIKI
  Блок манометра   PB1-0201 DAIKIN

< Принципиальная схема >

Tailstock spindle IN/OUT - подача / возврат шпинделя задней бабки

Chuck open / close – раскрытие / закрытие патрона
9.3.3 Общий вид и спецификации двигателя подачи головки

< Спецификации >

Производительность гидравлического двигателя 116 см3/оборот
Давление 35 кгс/см2
Нагрузка (GD2) 1, 22 кгс м
Время шага 0, 4 секунды
Потребляемый объем 14 т/мин.
Максимальная скорость 1 1 5 мин.
Точность подачи +0, 1
Количество положений подачи (за 1 оборот) 3/оборот
Напряжение электромагнитного клапана 100 VAC
Позиция сигнала на замедление (относительно позиции подачи) 106 от позиции подачи

< Общий вид >


< Принципиальная схема >


9.4 МЕСТА УСТАНОВКИ УСТРОЙСТВ

< Схема >

Гидравлический узел

(1) Клапанный узел: chuck pressure gage – манометр патрона, chuck pressure reducing valve – редукционный клапан патрона, tailstock spindle pressure gage – манометр шпинделя задней бабки, tailstock spindle pressure reducing valve - редукционный клапан шпинделя задней бабки

(2) Двигатель подачи головки
9.5 ЗАМЕНА ГИДРАВЛИЧЕСКОЙ ЖИДКОСТИ

1) Поддерживайте уровень гидравлической жидкости в баке на необходимом уровне, обращайте внимание на предотвращение забора воздуха насосом.

2) Поддерживайте чистоту гидравлической жидкости.

3) Периодически очищайте сетчатый фильтр для предупреждения засорения, приводящего к снижению рабочего расхода насоса.

< Интервал замены гидравлической жидкости >

Выполняйте замену гидравлической жидкости через каждые 2 000 часов работы.

< Порядок выполнения >

1) Выключите питание.

2) Снимите канал подачи масла и воздухоспускное устройство

3) Поместите сливной поддон под сливной пробкой бака гидравлического узла.

4) Выверните сливную пробку.

5) После полного удаления масла установите сливную пробку на место.


6) Заполните бак гидравлической жидкостью через подающий канал.


7) Проверьте уровень масла уровнемером.

Тип масла: Daphne Hydraulic Fluid 32

Количество: 39 л (10.3 гал.)

 

 

8) Установите на место канал подачи масла и воздухоспускное устройство

9) Включите питание

10) Проверьте наличие шума перекачиваемого масла.

11) Убедитесь в плавности закрытия и открытия патрона


9.6 РЕГУЛИРОВКА ДАВЛЕНИЯ ОСНОВНОЙ МАГИСТРАЛИ

ВНИМАНИЕ: Значение давления основной магистрали гидравлической жидкости задано предприятием изготовителем. После установки станка нет необходимости проводить настройку или регулировку давления в магистрали. Подобная регулировка необходима только в случае замены поршневого насоса. Управляющий клапан на насосном узле используется для регулировки давления основной магистрали.

< Процедура выполнения>

Decrease – уменьшить, Increase – увеличить
1) Включите питание

 

 

2) Ослабьте стопорную гайку.

 

 

3) Поверните винт регулировки давления на выходе, контролируя давление при помощи манометра.

 

Заданная величина: 35 кгс/см2

 

 

4) Затяните стопорную гайку после окончания регулировки давления в главной магистрали



Поделиться с друзьями:

mylektsii.su - Мои Лекции - 2015-2026 год. (1.056 сек.)Все материалы представленные на сайте исключительно с целью ознакомления читателями и не преследуют коммерческих целей или нарушение авторских прав Пожаловаться на материал